Photos














Contact
2416 N Springfield Ave
Chicago, IL 60647

Floorplan Pricing and Availability
New! Interactive Property Map
3 Bedrooms
2 - 2416 N Springfield Ave
$2,500
3 Beds, 1 BathAvailable NowAvailability Details
Price Availability Date Unit $2,500 Available Now 2 - 2416 N Springfield Ave Model Amenities and Features
Features
- Air Conditioning
- Heat Type - Gas
Lease Terms
- 12
Model Rent and Fees
Model Price
- $2,500
Additional Property Details
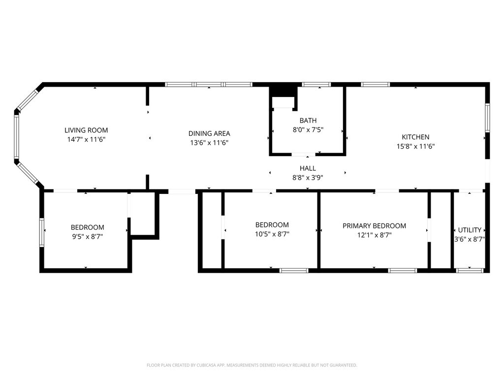
This newly rehabbed 3-bedroom,1-bathroom unit offers a fresh start with modern updates. Step inside to find beautiful new floors and a bright,airy feel thanks to south and west views,a fresh coat of new paint,and stylish new lighting fixtures throughout. A brand-new kitchen features white cabinetry,quartz countertops,a convenient center island,and a full suite of stainless steel appliances. The updated bathroom includes a new vanity,lights,and tile. Additional storage is available on the back porch,and there is coin laundry on-site. Located in one of Chicago's most vibrant neighborhoods,this unit is ready for you to move in and make it your own. Zoned parking out front for easy street parking and a short walk to the Healy Metra station. MLS# MRD12479039 Based on information submitted to the MLS GRID as of [see last changed date above]. All data is obtained from various sources and may not have been verified by broker or MLS GRID. Supplied Open House Information is subject to change without notice. All information should be independently reviewed and verified for accuracy. Properties may or may not be listed by the office/agent presenting the information. Some IDX listings have been excluded from this website. Prices displayed on all Sold listings are the Last Known Listing Price and may not be the actual selling price.
2 - 2416 N Springfield Ave
$2,500
3 Beds, 1 BathAvailable NowAvailability Details
Price Availability Date Unit $2,500 Available Now 2 - 2416 N Springfield Ave Model Amenities and Features
Lease Terms
- 12
Services
- Laundry Facilities
Model Rent and Fees
Model Price
- $2,500
Additional Property Details
This newly rehabbed 3-bedroom, 1-bathroom unit offers a fresh start with modern updates. Step inside to find beautiful new floors and a bright, airy feel thanks to south and west views, a fresh coat of new paint, and stylish new lighting fixtures throughout. A brand-new kitchen features white cabinetry, quartz countertops, a convenient center island, and a full suite of stainless steel appliances. The updated bathroom includes a new vanity, lights, and tile. Additional storage is available on the back porch, and there is coin laundry on-site. Located in one of Chicago's most vibrant neighborhoods, this unit is ready for you to move in and make it your own. Zoned parking out front for easy street parking and a short walk to the Healy Metra station. Living Room (14X11) Main Level Hardwood Kitchen (15X10) Main Level Porcelain Tile Blinds 2nd Bedroom (10X8) Main Level Hardwood Blinds Dining Room (14X11) Main Level Hardwood Blinds Master Bedroom (12X8) Main Level Hardwoo
Lease Terms
- 12
Features and Amenities
On-Site Services
- Laundry Facilities

Map
- Shopping
- Colleges
- Schools
- Grocery
- Medical
- Parks
- Transportation

Map
What Are Walk Score®, Transit Score®, and Bike Score® Ratings?
- Walk Score® measures the walkability of any address.
- Transit Score® measures access to public transit.
- Bike Score® measures the bikeability of any address.
Points of Interest
Time and distance from 2416 N Springfield Ave.
Arts Museums and Landmarks
Big Box and Retail
Walmart
Walgreens
Target
Colleges and Universities
Groceries
Aldi
Jewel-Osco
Hospitals
Norwegian - American Hospital
Presence Saints Mary And Elizabeth Medical Center
Community First Medical Center
Hotspots
Military Bases
O'Hare Air Force Base & Air National Guard
Parks and Recreation
2416 N Springfield Ave has 5 parks within 6.5 miles, including Garfield Park Conservatory, Oak Street Beach, Wendella Boats, Millennium Park, and Funhouse Maze.
Restaurants and Dining
Shopping Centers
2416 N Springfield Ave has 5 shopping centers within 0.9 miles.
Transit Stations
Nearby Neighborhoods
Nearby Apartments
Rental Price Ranges in the Area
Bedroom | Average Rent | Cheapest Rent | Highest Rent |
---|---|---|---|
Chicago Studio Apartments | $1,868 | $575 | $8,000 |
Chicago 1 Bedroom Apartments | $2,318 | $700 | $10,000+ |
Chicago 2 Bedroom Apartments | $2,945 | $825 | $10,000+ |
Chicago 3 Bedroom Apartments | $3,555 | $788 | $10,000+ |
Chicago 4 Bedroom Apartments | $3,755 | $650 | $10,000+ |
Chicago 5 Bedroom Apartments | $10,165 | $2,700 | $10,000+ |
Chicago 6 Bedroom Apartments | $17,926 | $1,795 | $10,000+ |
Browse Top Apartments in Chicago
- See Chicago Apartments for Rent
- See Chicago Homes for Rent
- See Chicago Condos for Rent
- See Chicago Townhomes for Rent
- Cheap Chicago Apartments
By Price
- Cheap Chicago Apartments
- Chicago Apartments Under $700
- Chicago Apartments Under $800
- Chicago Apartments Under $900
- Chicago Apartments Under $1000
- Chicago Apartments Under $1200
- Chicago Apartments Under $1500
- Chicago Apartments Under $2000
- Chicago Luxury Apartments
By Community Type
- Chicago Apartments for Rent by Owner
- Chicago Apartments with Rent Specials
- Chicago Top Rated Apartments
- Chicago Corporate Apartments
- Chicago Furnished Apartments
- Chicago Gated Apartments
- Chicago Loft Apartments
- Chicago Low Income Apartments
- Chicago Military Apartments
- New Chicago Apartments
- Chicago Senior Apartments
- Chicago Short-term Apartments
- Chicago Student Apartments
- Chicago Apartments with Utilities Included