Photos


















- Residencia Estudiantil
- Estudio–2 Dormitorios
- $4,000-$7,200Precios de alquiler
- 290–380Pies cuadrados
Acerca 138 E 37th St
FULLY FURNISHED APARTMENTS Fall Availability! Move in as early as August 16th, 2025. Rent starts at just $3,200** per month for a Studio and $5,000** per month for a 2 Bedroom. Don't miss out! **Price quoted is: (1) based on moving in no later than September 1st, 2025 (2) applicable only if billed upfront; can be higher if billed in monthly installments (3) inclusive all taxes, utilities and wifi. Rates are inclusive of Utilities, Wifi and Free Monthly Housekeeping Service. All apartments are fully air-conditioned/heated, completed with designer furnishing and fittings, and premium bedding. Other amenities include: - Wireless High Speed Internet Connection - Fully Equipped Kitchenette - Complimentary Set of Towels Security Features: • 24 hour Closed Circuit TV Surveillance • Smart Lock Door System Please feel free to contact us for a quote or to arrange for a viewing!
138 E 37th St se encuentra en el Barrio Murray Hill y el código postal 10016 de New York, NY.
Información de contacto de la propiedad
Precios y Disponibilidad de Plano
138 E 37th St ofrece apartamentos de Estudio a 2 Dormitorios desde $4,000 con 290–380 pies cuadrados. Aquí está el precio actual y la disponibilidad:
¡Nuevo! Mapa Interactivo de Propiedades
Estudio
Studio / 1 Bathroom
Desde $4,000
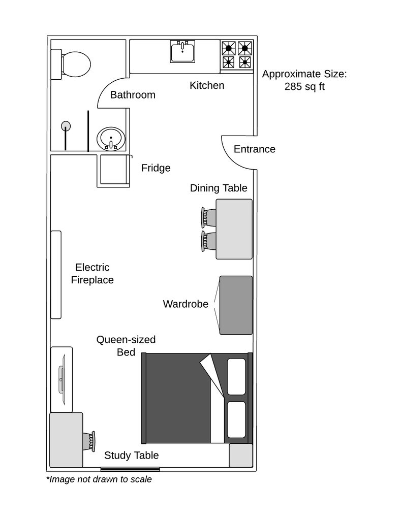
Estudio, 1 Baño, 290 pies²Disponible June 1, 2026Galería del Modelo
Planos
Fotos
Detalles de Diponibilidad
Precio Fecha Disponibilidad Unidad Pies² $4,000 June 1, 2026 1F 290 Detalles y características de la Unidad 1F
Cocina
- Microondas
Espacio Vital
- Suelos de madera maciza
Características Propias
- Amueblado
- Renovado
Tasas y precio de la unidad 1F
Precio por Unidad
- $4,000
Tasas y precios del modelo
Rango de Precios Modelo
- $4,000 - $4,700
Modelo de apartamento: Studio / 1 BathroomDesde $4,000Estudio, 1 Baño, 290 sq ftDisponible June 1, 2026PlanosFotos![]()
Studio / 1 Bathroom - Imagen 1 ![]()
Studio / 1 Bathroom - Imagen 2 ![]()
Studio / 1 Bathroom - Imagen 3 ![]()
Studio / 1 Bathroom - Imagen 4 ![]()
Studio / 1 Bathroom - Imagen 5 ![]()
Studio / 1 Bathroom - Imagen 6 ![]()
Studio / 1 Bathroom - Imagen 7 ![]()
Studio / 1 Bathroom - Plano 8 ![]()
Studio / 1 Bathroom - Plano 9 ![]()
Studio / 1 Bathroom - Plano 10 ![]()
Studio / 1 Bathroom - Plano 11 ![]()
Studio / 1 Bathroom - Plano 12 ![]()
Studio / 1 Bathroom - Plano 13 ![]()
Studio / 1 Bathroom - Plano 14 ![]()
Studio / 1 Bathroom - Plano 15 Unidad de apartamento: 1FModelo de apartamento: Studio / 1 Bathroom$4,000Estudio, 1 Baño, 290 sq ftDisponible June 1, 20262 Dormitorios
2 Bedroom / 1 Bathroom
Desde $6,200
2 Dormitorios, 1 Baño, 380 pies²Disponible June 1, 2026Galería del Modelo
Planos
Fotos
Detalles de Diponibilidad
Precio Fecha Disponibilidad Unidad Pies² $6,200 June 1, 2026 2F 380 Detalles y características de la Unidad 2F
Cocina
- Microondas
Espacio Vital
- Suelos de madera maciza
Características Propias
- Amueblado
- Espacio privado al aire libre
- Renovado
Tasas y precio de la unidad 2F
Precio por Unidad
- $6,200
Tasas y precios del modelo
Rango de Precios Modelo
- $6,200 - $7,200
Modelo de apartamento: 2 Bedroom / 1 BathroomDesde $6,2002 Dormitorios, 1 Baño, 380 sq ftDisponible June 1, 2026PlanosFotos![]()
2 Bedroom / 1 Bathroom - Imagen 1 ![]()
2 Bedroom / 1 Bathroom - Imagen 2 ![]()
2 Bedroom / 1 Bathroom - Imagen 3 ![]()
2 Bedroom / 1 Bathroom - Imagen 4 ![]()
2 Bedroom / 1 Bathroom - Imagen 5 ![]()
2 Bedroom / 1 Bathroom - Plano 6 ![]()
2 Bedroom / 1 Bathroom - Plano 7 ![]()
2 Bedroom / 1 Bathroom - Plano 8 ![]()
2 Bedroom / 1 Bathroom - Plano 9 ![]()
2 Bedroom / 1 Bathroom - Plano 10 ![]()
2 Bedroom / 1 Bathroom - Plano 11 ![]()
2 Bedroom / 1 Bathroom - Plano 12 ![]()
2 Bedroom / 1 Bathroom - Plano 13 ![]()
2 Bedroom / 1 Bathroom - Plano 14 ![]()
2 Bedroom / 1 Bathroom - Plano 15 Unidad de apartamento: 2FModelo de apartamento: 2 Bedroom / 1 Bathroom$6,2002 Dormitorios, 1 Baño, 380 sq ftDisponible June 1, 2026
Programar una Visita
Información de la Comunidad
- Unidades
- Plantas
- Construido en
- Unidades amuebladas disponibles
Está a punto de salir de ApartmentHomeLiving.com…
Características y Facilidades
Características Propias
- Equipados
- Espacio privado al aire libre
- Renovated
Servicios
- Instalaciones De Lavandería
Características Interior
- Acceso A Internet De Alta Velocidad
- Calefacción
- Aire Acondicionado
- Wifi
- Libre De Humo
Características de la Cocina
- Nevera
- Microondas
- Horno
Características de la Sala de Estar
- Suelos De Madera Maciza
Características Para Estudiantes
- Dormitorios Con Cerradura Individual
- Búsqueda De Compañero De Habitación

Mapa
- Compras
- Universidades
- Supermercado
- Médicos
- Parques
- Transporte

Mapa
Desplazarse
Walk Score®
100 / 100
Paraíso para peatones
Los trámites diarios no requieren de un carro.
Bike Score®
77 / 100
Muy apropiado para bicicletas
La bicicleta es conveniente para la mayoría de los viajes.
Transit Score®
100 / 100
Paraíso para pasajeros
Transporte público de primera categoría
¿Qué son las clasificaciones Walk Score®, Transit Score® y Bike Score®?
- Walk Score® mide la viabilidad peatonal de cualquier dirección.
- Transit Score® mide el acceso a transporte público.
- Bike Score® mide la infraestructura de rutas para bicicletas de cualquier dirección.
Preguntas Frecuentes sobre 138 E 37th St
¿Donde se encuentra 138 E 37th St?
138 E 37th St se encuentran en 138 E 37th St cerca de la zona Murray Hill en New York, NY
¿Cuál es el rango de alquiler vigente en 138 E 37th St?
El rango de alquiler de Apartamentos estudio a 2 dormitorios en 138 E 37th St van desde $4,000 a $6,200
¿Se permiten mascotas?
Llámenos hoy para conocer nuestra política de mascotas y saber si las aceptamos.
Calificación Según Estilo de Vida:
Conocer más sobre la búsqueda de estilos de vidaOpiniones y valoraciones de Inquilinos
Escuelas Cercanas
PS 116 Mary Lindley Murray
Jhs 104 Simon Baruch
Sitios de Interés
Tiempo y distancia desde 138 E 37th St.
Arte, Museos y Monumentos
Grandes Superficies de Ventas
Walgreen's
Shoprite
Target
Universidad
Tiendas
C-Town
Western Beef
Shoprite
Hospitales
New York University Langone Medical Center
Bellevue Hospital Center
Mount Sinai Beth Israel
Bases Militares
Brooklyn Support Activity
Governors Island Support Center
Military Ocean Terminal
Parques y opciones de recreación
138 E 37th St tiene 5 parques en un radio de 8.8 millas, incluyendo Bryant Park, Madison Square Park, Prospect Park, The Pelham Bay Park, y Central Park Zoo.
Restaurantes
Centros Comerciales
138 E 37th St tiene 5 centros comerciales en un radio de 3.2 millas.
Estaciones de Tránsito
Barrios cercanos
Rango de Precios de los Alquileres en la Zona
| Dormitorios | Precio Promedio | Más barato | Más caro |
|---|---|---|---|
| Apartamentos Estudio en New York | $3,216 | $800 | $10,000+ |
| Apartamentos 1 Dormitorios en New York | $3,444 | $735 | $10,000+ |
| Apartamentos 2 Dormitorios en New York | $4,180 | $1,209 | $10,000+ |
| Apartamentos 3 Dormitorios en New York | $4,635 | $825 | $10,000+ |
| Apartamentos 4 Dormitorios en New York | $5,121 | $940 | $10,000+ |
| Apartamentos 5 Dormitorios en New York | $6,811 | $1,050 | $10,000+ |
| Apartamentos 6 Dormitorios en New York | $7,016 | $1,500 | $9,450 |
| Apartamentos 7 Dormitorios en New York | $5,737 | $1,070 | $10,000+ |
Ver Apartamentos más destacados en New York
Por el Precio
- Apartamentos Barato en New York
- Apartamentos en New York menos de $800
- Apartamentos en New York menos de $900
- Apartamentos en New York menos de $1000
- Apartamentos en New York menos de $1200
- Apartamentos en New York menos de $1500
- Apartamentos en New York menos de $2000
- Apartamentos de Lujo en New York
Por tipo de comunidad
- Apartamentos en alquiler por el propietario en New York
- Apartamentos en New York con Oferta Especial
- Apartamentos en New York Más Valorados
- Apartamentos en New York Viviendas Corporativas
- Apartamentos en New York Amueblado
- Apartamentos en New York Reja de Entrada Automática
- Apartamentos en New York Loft
- Apartamentos en New York De Bajos Ingresos
- Apartamentos en New York Militar
- Nuevos Apartamentos en New York
- Apartamentos en New York Personas Mayores
- Apartamentos en New York Contratos de Corto Plazo
- Apartamentos en New York Estudiante
- Apartamentos en New York con Utilidades Incluidas
Por las Características
- Apartamentos en New York con Pisos de Madera
- Apartamentos en New York con Lavandería
- Apartamentos en New York con Estacionamiento Disponible
- Apartamentos en New York Se Permiten Mascotas
- Apartamentos en New York con Piscina(s)
- Apartamentos en New York con Lavadora y Secadora
- Apartamentos en New York con Estaciones de Carga EV


















