Photos


















- Residencia Estudiantil
- Estudio Dormitorios
- $920-$980 Precios de alquiler
- 273–457 Pies cuadrados
Acerca 431 West Ave N
Badger West is excited to be the first building in La Crosse, WI to offer Ori Expandable Apartments. These dynamic apartments come with a built-in Ori Cloud Bed Sofa, letting you transform your studio from living room to bedroom on demand. No need to bring bulky furniture just move in, settle down, and make the space your own.
431 West Ave N se encuentra en el Barrio Downtown La Crosse y el código postal 54601 de La crosse, WI. Esta comunidad está gestionada profesionalmente por Three Sixty Real Estate Solutions
Características personalizadas
- Aire acondicionado
- Portabicicletas
- Espacio de oficina comunitaria
- Servicio de lavadero
- Paredes insonorizadas
- Lavadora y secadora en todos los apartamentos
Información de contacto de la propiedad

Precios y Disponibilidad de Plano
431 West Ave N ofrece apartamentos de Estudio desde $920 con 273–457 pies cuadrados. Aquí está el precio actual y la disponibilidad:
¡Nuevo! Mapa Interactivo de Propiedades
Estudio
Ori Flex Studio
$920
Estudio, 1 Baño, 273-308 pies²Disponible AhoraEl más baratoEsta opción tiene los precios más bajos para este modeloGalería del Modelo
Planos
Detalles de Diponibilidad
Precio Fecha Disponibilidad Unidad Pies² Depósito Ver Detalles $920 Disponible Ahora APT205 273 $920 $920 Disponible Ahora APT206 273 $920 $920 Disponible Ahora APT207 273 $920 Características y Comodidades de Modelo
Características
- Acceso a internet de alta velocidad
- Aire acondicionado
- Balcón
- Calefacción
- Climatización controlada por el inquilino
- Detector de humo
- Lavadora/secadora
- Sistema de seguridad
- Ventanas
Cocina
- Cocina
- Cocina con isla
- Electrodomésticos de acero inoxidable
- Fogón
- Horno
- Nevera
- Zona de eliminación de desechos
Tasas y precios del modelo
Precio del Modelo
- $920
Tasas y precio de la unidad APT205
Precio por Unidad
- $920
Depósito
- $920 deposit
Tasas y precios del modelo
Precio
- $920
Tasas y precio de la unidad APT206
Precio por Unidad
- $920
Depósito
- $920 deposit
Tasas y precios del modelo
Precio
- $920
Tasas y precio de la unidad APT207
Precio por Unidad
- $920
Depósito
- $920 deposit
Tasas y precios del modelo
Precio
- $920
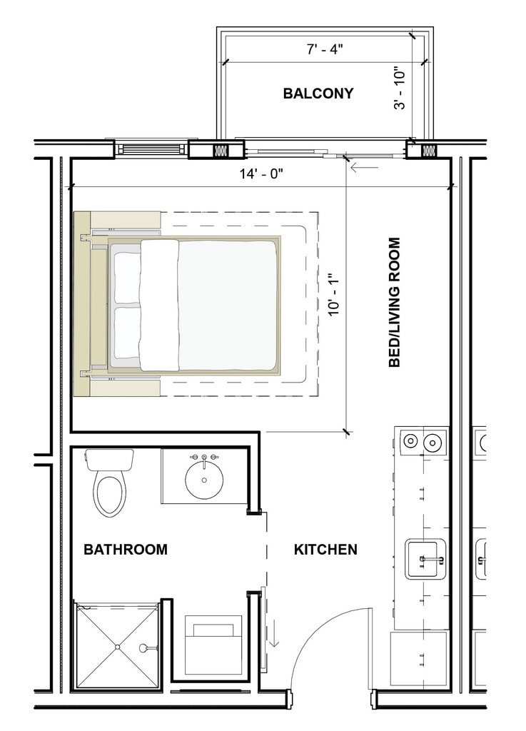
Modelo de apartamento: Ori Flex StudioDesde $920Estudio, 1 Baño, 273-308 sq ftDisponible Ahora![]()
Ori Flex Studio - Plano 1 ![]()
Ori Flex Studio - Plano 2 ![]()
Ori Flex Studio - Plano 3 ![]()
Ori Flex Studio - Plano 4 Unidad de apartamento: APT205Modelo de apartamento: Ori Flex Studio$920Estudio, 1 Baño, 273 sq ftDisponible AhoraUnidad de apartamento: APT206Modelo de apartamento: Ori Flex Studio$920Estudio, 1 Baño, 273 sq ftDisponible AhoraUnidad de apartamento: APT207Modelo de apartamento: Ori Flex Studio$920Estudio, 1 Baño, 273 sq ftDisponible AhoraOri Form Studio
$940
Estudio, 1 Baño, 324-367 pies²Disponible AhoraGalería del Modelo
Planos
Detalles de Diponibilidad
Precio Fecha Disponibilidad Unidad Pies² Depósito Ver Detalles $940 Disponible Ahora APT213 324 $940 $940 Disponible Ahora APT214 324 $940 $940 Disponible Ahora APT215 324 $940 Características y Comodidades de Modelo
Características
- Acceso a internet de alta velocidad
- Aire acondicionado
- Balcón
- Calefacción
- Climatización controlada por el inquilino
- Detector de humo
- Lavadora/secadora
- Sistema de seguridad
- Ventanas
Cocina
- Cocina
- Cocina con isla
- Electrodomésticos de acero inoxidable
- Fogón
- Horno
- Nevera
- Zona de eliminación de desechos
Tasas y precios del modelo
Precio del Modelo
- $940
Tasas y precio de la unidad APT213
Precio por Unidad
- $940
Depósito
- $940 deposit
Tasas y precios del modelo
Precio
- $940
Tasas y precio de la unidad APT214
Precio por Unidad
- $940
Depósito
- $940 deposit
Tasas y precios del modelo
Precio
- $940
Tasas y precio de la unidad APT215
Precio por Unidad
- $940
Depósito
- $940 deposit
Tasas y precios del modelo
Precio
- $940
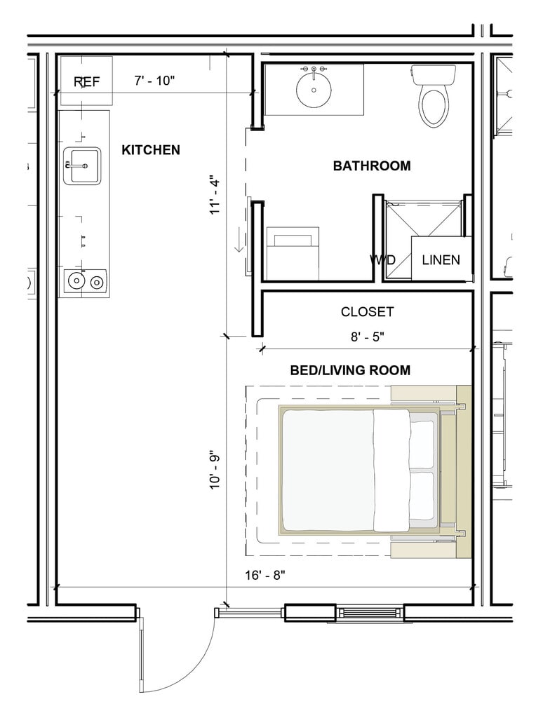
Modelo de apartamento: Ori Form StudioDesde $940Estudio, 1 Baño, 324-367 sq ftDisponible Ahora![]()
Ori Form Studio - Plano 1 ![]()
Ori Form Studio - Plano 2 Unidad de apartamento: APT213Modelo de apartamento: Ori Form Studio$940Estudio, 1 Baño, 324 sq ftDisponible AhoraUnidad de apartamento: APT214Modelo de apartamento: Ori Form Studio$940Estudio, 1 Baño, 324 sq ftDisponible AhoraUnidad de apartamento: APT215Modelo de apartamento: Ori Form Studio$940Estudio, 1 Baño, 324 sq ftDisponible AhoraOri Edge Super Studio
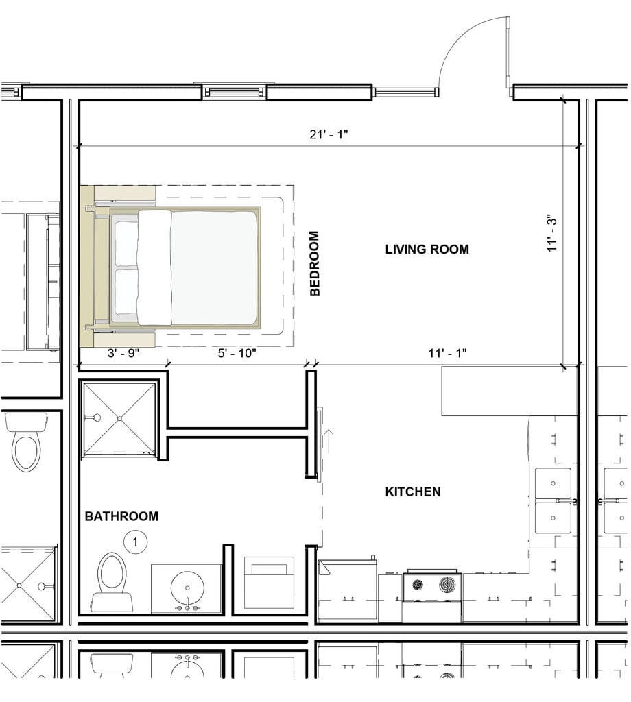
$980
Estudio, 1 Baño, 401-457 pies²Disponible AhoraEl más grandeEsta opción tiene las unidades más grandes para este modeloDetalles de Diponibilidad
Precio Fecha Disponibilidad Unidad Pies² Depósito Ver Detalles $980 Disponible Ahora APT204 401 $980 $980 Disponible Ahora APT414 457 $980 $980 Disponible Ahora APT415 457 $980 Características y Comodidades de Modelo
Características
- Acceso a internet de alta velocidad
- Aire acondicionado
- Balcón
- Calefacción
- Climatización controlada por el inquilino
- Detector de humo
- Lavadora/secadora
- Sistema de seguridad
- Ventanas
Cocina
- Cocina
- Cocina con isla
- Electrodomésticos de acero inoxidable
- Fogón
- Horno
- Nevera
- Zona de eliminación de desechos
Tasas y precios del modelo
Precio del Modelo
- $980
Tasas y precio de la unidad APT204
Precio por Unidad
- $980
Depósito
- $980 deposit
Tasas y precios del modelo
Precio
- $980
Tasas y precio de la unidad APT414
Precio por Unidad
- $980
Depósito
- $980 deposit
Tasas y precios del modelo
Precio
- $980
Tasas y precio de la unidad APT415
Precio por Unidad
- $980
Depósito
- $980 deposit
Tasas y precios del modelo
Precio
- $980
Unidad de apartamento: APT204Modelo de apartamento: Ori Edge Super Studio$980Estudio, 1 Baño, 401 sq ftDisponible AhoraUnidad de apartamento: APT414Modelo de apartamento: Ori Edge Super Studio$980Estudio, 1 Baño, 457 sq ftDisponible AhoraUnidad de apartamento: APT415Modelo de apartamento: Ori Edge Super Studio$980Estudio, 1 Baño, 457 sq ftDisponible Ahora
Programar una Visita
Información de la Comunidad
- Unidades
- Plantas
- Construido en
- Unidades amuebladas disponibles
- Ver el sitio web de la propiedad
Características y Facilidades
Características Propias
- Aire acondicionado
- Portabicicletas
- Espacio de oficina comunitaria
- Servicio de lavadero
- Paredes insonorizadas
- Lavadora y secadora en todos los apartamentos
Servicios
- Reciclaje
- Acceso Las 24 Horas
Características de la Comunidad
- Sin Ascensor
Características al Aire Libre
- Acceso Controlado
- Patio
Características Interior
- Balcón
- Ventanas
- Detector De Humo
- Climatización Controlada Por El Inquilino
- Sistema De Seguridad
- Acceso A Internet De Alta Velocidad
- Calefacción
- Lavadora/Secadora
- Aire Acondicionado
Características de la Cocina
- Cocina Con Isla
- Fogón
- Nevera
- Zona De Eliminación De Desechos
- Electrodomésticos De Acero Inoxidable
- Cocina
- Horno
Características de la Sala de Estar
- Oficina
Características Para Estudiantes
- Arrendamientos Individuales Disponibles
- Se Puede Caminar Al Campus

Mapa
- Compras
- Universidades
- Supermercado
- Médicos

Mapa
Horario e Información de Contacto
| Lunes | 8:00 am–4:30 pm |
| Martes | 8:00 am–4:30 pm |
| Miércoles | 8:00 am–4:30 pm |
| Jueves | 8:00 am–4:30 pm |
| Viernes | 8:00 am–4:30 pm |
| Sábado | Cerrado |
| Domingo | Cerrado |
Preguntas Frecuentes sobre 431 West Ave N
¿Donde se encuentra 431 West Ave N?
431 West Ave N se encuentran en 431 West Ave N cerca de la zona Downtown La Crosse en La crosse, WI
¿Cuál es el rango de alquiler vigente en 431 West Ave N?
estudio en 431 West Ave N a partir de $920. ¡Llámenos para obtener más información!
¿Qué horarios tiene la oficina de alquiler?
- El horario de oficina de 431 West Ave N es
- Lunes 8:00 am–4:30 pm
- Martes 8:00 am–4:30 pm
- Miércoles 8:00 am–4:30 pm
- Jueves 8:00 am–4:30 pm
- Viernes 8:00 am–4:30 pm
- Sábado Cerrado
- Domingo Cerrado
¿Se permiten mascotas?
Llámenos hoy para conocer nuestra política de mascotas y saber si las aceptamos.
Calificación Según Estilo de Vida:
Conocer más sobre la búsqueda de estilos de vidaOpiniones y valoraciones de Inquilinos
Escuelas Cercanas
Logan Middle
Emerson Elementary
Logan High
Sitios de Interés
Tiempo y distancia desde 431 West Ave N.
Grandes Superficies de Ventas
Menard's
Walgreens
Autozone
Universidad
Tiendas
Aldi
Festival Foods
Hospitales
Mayo Clinic Health System - Franciscan Medical Center
Gundersen Lutheran Medical Center
Centros Comerciales
431 West Ave N tiene 5 centros comerciales en un radio de 3.8 millas.
Barrios cercanos
Rango de Precios de los Alquileres en la Zona
| Dormitorios | Precio Promedio | Más barato | Más caro |
|---|---|---|---|
| Apartamentos Estudio en La crosse | $935 | $700 | $1,425 |
| Apartamentos 1 Dormitorios en La crosse | $1,230 | $475 | $2,050 |
| Apartamentos 2 Dormitorios en La crosse | $1,394 | $675 | $2,495 |
| Apartamentos 3 Dormitorios en La crosse | $1,627 | $712 | $2,950 |
| Apartamentos 4 Dormitorios en La crosse | $1,836 | $1,425 | $2,220 |
Ver Apartamentos más destacados en La crosse
Por el Precio
- Apartamentos Barato en La crosse
- Apartamentos en La crosse menos de $500
- Apartamentos en La crosse menos de $800
- Apartamentos en La crosse menos de $900
- Apartamentos en La crosse menos de $1000
- Apartamentos en La crosse menos de $1200
- Apartamentos en La crosse menos de $1500
- Apartamentos en La crosse menos de $2000
- Apartamentos de Lujo en La crosse
Por tipo de comunidad
- Apartamentos en alquiler por el propietario en La crosse
- Apartamentos en La crosse con Oferta Especial
- Apartamentos en La crosse Más Valorados
- Apartamentos en La crosse Viviendas Corporativas
- Apartamentos en La crosse Amueblado
- Apartamentos en La crosse Reja de Entrada Automática
- Apartamentos en La crosse Loft
- Apartamentos en La crosse De Bajos Ingresos
- Nuevos Apartamentos en La crosse
- Apartamentos en La crosse Personas Mayores
- Apartamentos en La crosse Contratos de Corto Plazo
- Apartamentos en La crosse Estudiante
- Apartamentos en La crosse con Utilidades Incluidas
