Photos


















- Estudio Dormitorios
- $1,495-$1,695 Precios de alquiler
- 375–550 Pies cuadrados
Acerca 620 W. Belmont
Da un paseo por el lago Michigan, el Belmont Harbor, y disfruta de un excelente acceso de viaje diario, ya sea en el Belmont el estación de tren, o local y las rutas de autobuses expreso de CTA. ~ pisos de parqué de roble ~ Las grandes, ventanas luminosas ~ Cocina abierta con lavaplatos y horno de microondas ~ renovado baño con azulejos ~ Las amplias habitaciones Ubicado en edificio con elevador con sala de lavandería y almacenaje para bicicletas. Estacionamiento mensual disponible en el lugar. ¡Sin depósito de seguridad! No hay tarifas por mascota. No se admiten perros. No se permite fumar. Lakeview Associates ofrece a los residentes la comodidad del pago de alquiler en línea, así como de enviar y hacer un seguimiento de las solicitudes de mantenimiento. (RLNE2793409)
620 W. Belmont se encuentra en el Barrio Lakeview y el código postal 60657 de Chicago, IL. Esta comunidad está gestionada profesionalmente por Lakeview Associates, Inc.
Información de contacto de la propiedad

- Listado por:
- Agencia:
- Logotipo del proveedor:
- Sitio web:
- Ver el sitio web de la propiedad
- Llámenos:
- (866) 788-9335
- Aviso legal:
Precios y Disponibilidad de Plano
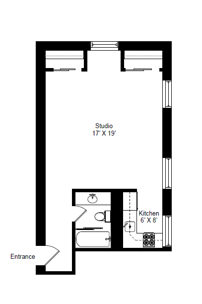
620 W. Belmont ofrece apartamentos de Estudio desde $1,495 con 375–550 pies cuadrados. Aquí está el precio actual y la disponibilidad:
¡Nuevo! Mapa Interactivo de Propiedades
Estudio
0BR/1.0BA
Desde $1,495
Estudio, 1 Baño, 375-550 pies²Disponible Jun 15Detalles de Diponibilidad
Precio Fecha Disponibilidad Unidad Pies² Fotos Ver Detalles $1,695 June 15, 2026 620-106 550 $1,585 June 15, 2026 620-107 425 $1,495 June 15, 2026 620-111 375 Características y Comodidades de Modelo
Características
- Acceso a Internet de alta velocidad
- Libre de humo
Tasas y precios del modelo
Rango de Precios Modelo
- $1,495 - $1,695
Gallería de la Unidad 620-106
Fotos
Detalles y características de la Unidad 620-106
Cocina
- Encimeras de granito
- Lavavajillas
- Nevera
Características Propias
- Acceso al edificio sin llave
- Agua incluida
- Baño reformado
- Calefacción incluida
- Cocina reformada
- Edificio con ascensor
- Estacionamiento en el lugar
- Horno/cocina incluidos
- Lavandería sin efectivo / con acceso mediante aplicación móvil
- Lavavajillas incluido
- Recogida de basura / Reciclaje / Alcantarillado incluidos
- Videoportero
Tasas y precio de la unidad 620-106
Precio por Unidad
- $1,695
Tasas y precios del modelo
Rango de Precios Modelo
- $1,495 - $1,695
Gallería de la Unidad 620-107
Fotos
Detalles y características de la Unidad 620-107
Cocina
- Nevera
Espacio Vital
- Suelos de madera maciza
Características Propias
- Agua incluida
- Calefacción incluida
- Edificio con ascensor
- Horno/cocina incluidos
- Lavandería sin efectivo / con acceso mediante aplicación móvil
- Recogida de basura / Reciclaje / Alcantarillado incluidos
- Ventilador de techo
- Vestidor
- Videoportero
Tasas y precio de la unidad 620-107
Precio por Unidad
- $1,585
Tasas y precios del modelo
Rango de Precios Modelo
- $1,495 - $1,695
Gallería de la Unidad 620-111
Fotos
Detalles y características de la Unidad 620-111
Cocina
- Nevera
Características Propias
- Acceso al edificio sin llave
- Agua incluida
- Calefacción incluida
- Cuartos para guardar bicicletas
- Edificio con ascensor
- Estacionamiento mensual disponible
- Horno/cocina incluidos
- Lavandería sin efectivo / con acceso mediante aplicación móvil
- Lavavajillas incluido
- Microondas incluido
- Recogida de basura / Reciclaje / Alcantarillado incluidos
- Videoportero
Tasas y precio de la unidad 620-111
Precio por Unidad
- $1,495
Tasas y precios del modelo
Rango de Precios Modelo
- $1,495 - $1,695
Unidad de apartamento: 620-106Modelo de apartamento: 0BR/1.0BA$1,695Estudio, 1 Baño, 550 sq ftDisponible June 15, 2026![]()
Unidad: 620-106 - Imagen 1 ![]()
Unidad: 620-106 - Imagen 2 ![]()
Unidad: 620-106 - Imagen 3 ![]()
Unidad: 620-106 - Imagen 4 ![]()
Unidad: 620-106 - Imagen 5 ![]()
Unidad: 620-106 - Imagen 6 ![]()
Unidad: 620-106 - Imagen 7 ![]()
Unidad: 620-106 - Imagen 8 ![]()
Unidad: 620-106 - Imagen 9 ![]()
Unidad: 620-106 - Imagen 10 Unidad de apartamento: 620-107Modelo de apartamento: 0BR/1.0BA$1,585Estudio, 1 Baño, 425 sq ftDisponible June 15, 2026![]()
Unidad: 620-107 - Imagen 1 ![]()
Unidad: 620-107 - Imagen 2 ![]()
Unidad: 620-107 - Imagen 3 ![]()
Unidad: 620-107 - Imagen 4 ![]()
Unidad: 620-107 - Imagen 5 ![]()
Unidad: 620-107 - Imagen 6 ![]()
Unidad: 620-107 - Imagen 7 ![]()
Unidad: 620-107 - Imagen 8 Unidad de apartamento: 620-111Modelo de apartamento: 0BR/1.0BA$1,495Estudio, 1 Baño, 375 sq ftDisponible June 15, 2026![]()
Unidad: 620-111 - Imagen 1 ![]()
Unidad: 620-111 - Imagen 2 ![]()
Unidad: 620-111 - Imagen 3 ![]()
Unidad: 620-111 - Imagen 4 ![]()
Unidad: 620-111 - Imagen 5 ![]()
Unidad: 620-111 - Imagen 6 ![]()
Unidad: 620-111 - Imagen 7
Programar una Visita
Información de la Comunidad
- Unidades
- Plantas
- Construido en
Fees and Policies
Las tarifas que se indican a continuación son proporcionadas por la comunidad y pueden excluir servicios públicos o complementos. Todos los pagos se realizan directamente a la propiedad y no son reembolsables, salvo que se especifique lo contrario.
Tasas Requeridas
Básicos de una sola vez
- Pagadero en el momento de la solicitud
- Administrative FeeiCharged Per Unit.$250.00
- Application Fee Per ApplicantiCharged per applicant.$50.00
Exención de responsabilidad sobre las tasas de propiedad: Based on community-supplied data and independent market research. Subject to change without notice. May exclude fees for mandatory or optional services and usage-based utilities.
Características y Facilidades
Servicios
- Instalaciones De Lavandería
Características de la Comunidad
- Ascensor
Recreación
- Almacenamiento De Bicicletas
Características Interior
- Ventanas
- Intercomunicador
- Libre De Humo
Características de la Cocina
- Lavavajillas
- Microondas
- Cocina

Mapa
- Compras
- Universidades
- Supermercado
- Médicos
- Parques
- Transporte

Mapa
Horario e Información de Contacto
| Lunes | 9:00 am–6:00 pm |
| Martes | 9:00 am–6:00 pm |
| Miércoles | 9:00 am–6:00 pm |
| Jueves | 9:00 am–6:00 pm |
| Viernes | 9:00 am–6:00 pm |
| Sábado | Con Cita Previa |
| Domingo | Con Cita Previa |
Preguntas Frecuentes sobre 620 W. Belmont
¿Donde se encuentra 620 W. Belmont?
620 W. Belmont se encuentran en 620 W Belmont Ave cerca de la zona Lakeview en Chicago, IL
¿Cuál es el rango de alquiler vigente en 620 W. Belmont?
estudio en 620 W. Belmont a partir de $1,495. ¡Llámenos para obtener más información!
¿Qué horarios tiene la oficina de alquiler?
- El horario de oficina de 620 W. Belmont es
- Lunes 9:00 am–6:00 pm
- Martes 9:00 am–6:00 pm
- Miércoles 9:00 am–6:00 pm
- Jueves 9:00 am–6:00 pm
- Viernes 9:00 am–6:00 pm
- Sábado Con Cita Previa
- Domingo Con Cita Previa
¿Se permiten mascotas?
Llámenos hoy para conocer nuestra política de mascotas y saber si las aceptamos.
Calificación Según Estilo de Vida:
Conocer más sobre la búsqueda de estilos de vidaOpiniones y valoraciones de Inquilinos
Escuelas Cercanas
Nettelhorst Elementary School
Sitios de Interés
Tiempo y distancia desde 620 W. Belmont.
Arte, Museos y Monumentos
Grandes Superficies de Ventas
Walgreens
Menards
Aldi
Universidad
City College of Chicago, Harry S. Truman - Harry S. Truman Campus
Tiendas
Jewel-Osco
Trader Joe's
Whole Foods
Hospitales
Advocate Illinois Masonic Medical Center
Presence Saint Joseph Hospital - Chicago
Thorek Memorial Hospital
Lugares Populares
Parques y opciones de recreación
620 W. Belmont tiene 5 parques en un radio de 5.0 millas, incluyendo Oak Street Beach, Wendella Boats, Funhouse Maze, Millennium Park, y Garfield Park Conservatory.
Restaurantes
Centros Comerciales
620 W. Belmont tiene 5 centros comerciales en un radio de 0.3 millas.
Estaciones de Tránsito
Barrios cercanos
Rango de Precios de los Alquileres en la Zona
| Dormitorios | Precio Promedio | Más barato | Más caro |
|---|---|---|---|
| Apartamentos Estudio en Chicago | $1,915 | $595 | $5,848 |
| Apartamentos 1 Dormitorios en Chicago | $2,457 | $525 | $10,000+ |
| Apartamentos 2 Dormitorios en Chicago | $3,049 | $762 | $10,000+ |
| Apartamentos 3 Dormitorios en Chicago | $3,780 | $883 | $10,000+ |
| Apartamentos 4 Dormitorios en Chicago | $3,422 | $879 | $10,000+ |
| Apartamentos 5 Dormitorios en Chicago | $7,956 | $1,950 | $10,000+ |
| Apartamentos 6 Dormitorios en Chicago | $7,502 | $850 | $10,000+ |
Ver Apartamentos más destacados en Chicago
Por el Precio
- Apartamentos Barato en Chicago
- Apartamentos en Chicago menos de $600
- Apartamentos en Chicago menos de $700
- Apartamentos en Chicago menos de $800
- Apartamentos en Chicago menos de $900
- Apartamentos en Chicago menos de $1000
- Apartamentos en Chicago menos de $1200
- Apartamentos en Chicago menos de $1500
- Apartamentos en Chicago menos de $2000
- Apartamentos de Lujo en Chicago
Por tipo de comunidad
- Apartamentos en alquiler por el propietario en Chicago
- Apartamentos en Chicago con Oferta Especial
- Apartamentos en Chicago Más Valorados
- Apartamentos en Chicago Viviendas Corporativas
- Apartamentos en Chicago Amueblado
- Apartamentos en Chicago Reja de Entrada Automática
- Apartamentos en Chicago Loft
- Apartamentos en Chicago De Bajos Ingresos
- Apartamentos en Chicago Militar
- Nuevos Apartamentos en Chicago
- Apartamentos en Chicago Personas Mayores
- Apartamentos en Chicago Contratos de Corto Plazo
- Apartamentos en Chicago Estudiante
- Apartamentos en Chicago con Utilidades Incluidas
Por las Características
- Apartamentos en Chicago con Pisos de Madera
- Apartamentos en Chicago con Lavandería
- Apartamentos en Chicago con Estacionamiento Disponible
- Apartamentos en Chicago Se Permiten Mascotas
- Apartamentos en Chicago con Piscina(s)
- Apartamentos en Chicago con Lavadora y Secadora
- Apartamentos en Chicago con Estaciones de Carga EV

























