Photos


















- 1–3 Dormitorios
- $1,199-$1,834Precios de alquiler
- 815–1,380Pies cuadrados
Promociones
Enjoy Up To 2 Months Free On Select Units And $99 App & Admin Fees! ; Stipulations apply. Contact the leasing office for details!
Acerca Arch + Vine
Arch and Vine es una comunidad que ha establecido altos estándares de servicio al cliente. Ofrecemos apartamentos de una, dos y tres habitaciones con renovaciones de calidad a precios asequibles en lujosos terrenos tipo parque. Nuestro complejo está ubicado en el lado este de Athens, con fácil acceso a Loop 10 y Hwy 78. Estamos convenientemente ubicados cerca de restaurantes, tiendas, lugares de entretenimiento y solo a minutos del centro de Athens. ¡Arch + Vine Athens es el lugar perfecto para llamar hogar!
Arch + Vine se encuentra en el Barrio Northeast Athens y el código postal 30601 de Athens, GA. Esta comunidad está gestionada profesionalmente por Audubon
Características personalizadas
- Balcón/patio*
- Elegante protector contra salpicaduras de azulejos de metro*
- Encimeras de granito*
- Encimeras de granito*
- Despensas de cocina*
- Despensa en la cocina
- Vestidores grandes
- Luminarias y acabados modernos*
- Armarios de almacenaje exteriores*
- Balcón o patio privados*
- Soláriums amplios*
- Electrodomésticos de acero inoxidable*
- Electrodomésticos de acero inoxidable de bajo consumo energético*
- Salpicaderos de azulejos de metro*
- Terrazas acristaladas*
- conexiones para lavadora-secadora
- Conexión para lavadora/secadora
Información de contacto de la propiedad
Precios y Disponibilidad de Plano
Arch + Vine ofrece apartamentos de 1 a 3 Dormitorios desde $1,200 con 815–1,380 pies cuadrados. Aquí está el precio actual y la disponibilidad:
¡Nuevo! Mapa Interactivo de Propiedades
1 Dormitorio
Ver Planos No DisponiblesPlano: 1AX
Desde $1,200
1 Dormitorio, 1 Baño, 815 pies²Disponible Feb 27Galería del Modelo
Planos
Detalles de Diponibilidad
Precio Fecha Disponibilidad Unidad Pies² Depósito Ver Detalles $1,200 February 27, 2026 3134 815 $200 $1,200 April 2, 2026 5311 815 $200 Características y Comodidades de Modelo
Características
- Aire acondicionado
Cocina
- Lavavajillas
Espacio Vital
- Armario de ropa blanca
- Techos altos
Características Propias
- Accesorios y acabados modernos*
- Balcón o patio privado*
- Conexiones de lavadora y secadora
- Despensas de cocina *
- Electrodomésticos de acero inoxidable de bajo consumo energético*
- Elegante protector contra salpicaduras de azulejos de metro*
- Encimeras de granito *
- Terrazas acristaladas*
- Vestidores grandes
Tasas y precios del modelo
Rango de Precios Modelo
- $1,200 - $1,350
Depósito
- $200 deposit
Detalles y características de la Unidad 3134
Características
- Aire acondicionado
Cocina
- Lavavajillas
Espacio Vital
- Armario de ropa blanca
- Techos altos
Características Propias
- Accesorios y acabados modernos*
- Balcón o patio privado*
- Conexiones de lavadora y secadora
- Despensas de cocina *
- Electrodomésticos de acero inoxidable de bajo consumo energético*
- Elegante protector contra salpicaduras de azulejos de metro*
- Encimeras de granito *
- Terrazas acristaladas*
- Vestidores grandes
Tasas y precio de la unidad 3134
Precio por Unidad
- Desde $1,200
Depósito
- $200 deposit
Tasas y precios del modelo
Rango de Precios Modelo
- $1,200 - $1,350
Detalles y características de la Unidad 5311
Características
- Aire acondicionado
Cocina
- Lavavajillas
Espacio Vital
- Armario de ropa blanca
- Techos altos
Características Propias
- Accesorios y acabados modernos*
- Balcón o patio privado*
- Conexiones de lavadora y secadora
- Despensas de cocina *
- Electrodomésticos de acero inoxidable de bajo consumo energético*
- Elegante protector contra salpicaduras de azulejos de metro*
- Encimeras de granito *
- Terrazas acristaladas*
- Vestidores grandes
Tasas y precio de la unidad 5311
Precio por Unidad
- Desde $1,200
Depósito
- $200 deposit
Tasas y precios del modelo
Rango de Precios Modelo
- $1,200 - $1,350
Modelo de apartamento: 1AXDesde $1,2001 Dormitorio, 1 Baño, 815 sq ftDisponible February 27, 2026![]()
1AX - Plano 1 Unidad de apartamento: 3134Modelo de apartamento: 1AXDesde $1,2001 Dormitorio, 1 Baño, 815 sq ftDisponible February 27, 2026Unidad de apartamento: 5311Modelo de apartamento: 1AXDesde $1,2001 Dormitorio, 1 Baño, 815 sq ftDisponible April 2, 2026Plano: 1AR
1 Dormitorio, 1 Baño, 815 pies²Galería del Modelo
Planos
Detalles de Diponibilidad
Precio Fecha Disponibilidad Unidad Pies² $1,199 Llamar para disponibilidad 1AR 815 pies² Características y Comodidades de Modelo
Características
- Aire acondicionado
Cocina
- Lavavajillas
Espacio Vital
- Armario de ropa blanca
- Techos altos
Características Propias
- Accesorios y acabados modernos*
- Balcón o patio privado*
- Conexiones de lavadora y secadora
- Despensas de cocina *
- Electrodomésticos de acero inoxidable de bajo consumo energético*
- Elegante protector contra salpicaduras de azulejos de metro*
- Encimeras de granito *
- Terrazas acristaladas*
- Vestidores grandes
Tasas y precios del modelo
Precio del Modelo
- $1,199
Modelo de apartamento: 1AR$1,1991 Dormitorio, 1 Baño, 815 sq ftNo Disponible![]()
1AR - Plano 1 Plano: 1A
1 Dormitorio, 1 Baño, 815 pies²Galería del Modelo
Planos
Detalles de Diponibilidad
Precio Fecha Disponibilidad Unidad Pies² $1,294 Llamar para disponibilidad 1A 815 pies² Características y Comodidades de Modelo
Características
- Aire acondicionado
- Conexiones para lavadora/secadora
- Preinstalación de cables
- Sistema de seguridad
- Ventiladores de techo
Cocina
- Lavavajillas
Espacio Vital
- Armario de ropa blanca
- Techos altos
- Vestidores
Características Propias
- Accesorios y acabados modernos*
- Balcón o patio privado*
- Conexiones de lavadora y secadora
- Despensas de cocina *
- Electrodomésticos de acero inoxidable de bajo consumo energético*
- Elegante protector contra salpicaduras de azulejos de metro*
- Encimeras de granito*
- Terrazas acristaladas*
- Vestidores amplios
Tasas y precios del modelo
Precio del Modelo
- $1,294
Modelo de apartamento: 1A$1,2941 Dormitorio, 1 Baño, 815 sq ftNo Disponible![]()
1A - Plano 1 ![]()
1A - Plano 2 2 Dormitorios
Ver Planos No DisponiblesPlano: 2BX
Desde $1,525
2 Dormitorios, 2 Baños, 1195 pies²Disponible AhoraGalería del Modelo
Planos
Detalles de Diponibilidad
Precio Fecha Disponibilidad Unidad Pies² Depósito Ver Detalles $1,525 Disponible Ahora 4232 1195 $200 $1,525 Disponible Ahora 7233 1195 $200 $1,525 Disponible Ahora 8234 1195 $200 Características y Comodidades de Modelo
Características
- Aire acondicionado
Cocina
- Lavavajillas
Espacio Vital
- Armario de ropa blanca
- Techos altos
Características Propias
- Accesorios y acabados modernos*
- Balcón o patio privado*
- Conexiones de lavadora y secadora
- Despensas de cocina *
- Electrodomésticos de acero inoxidable de bajo consumo energético*
- Elegante protector contra salpicaduras de azulejos de metro*
- Encimeras de granito *
- Terrazas acristaladas*
- Vestidores grandes
Tasas y precios del modelo
Rango de Precios Modelo
- $1,525 - $1,675
Depósito
- $200 deposit
Detalles y características de la Unidad 4232
Características
- Aire acondicionado
Cocina
- Lavavajillas
Espacio Vital
- Armario de ropa blanca
- Techos altos
Características Propias
- Accesorios y acabados modernos*
- Balcón o patio privado*
- Conexiones de lavadora y secadora
- Despensas de cocina *
- Electrodomésticos de acero inoxidable de bajo consumo energético*
- Elegante protector contra salpicaduras de azulejos de metro*
- Encimeras de granito *
- Terrazas acristaladas*
- Vestidores grandes
Tasas y precio de la unidad 4232
Precio por Unidad
- Desde $1,525
Depósito
- $200 deposit
Tasas y precios del modelo
Rango de Precios Modelo
- $1,525 - $1,675
Detalles y características de la Unidad 7233
Características
- Aire acondicionado
Cocina
- Lavavajillas
Espacio Vital
- Armario de ropa blanca
- Techos altos
Características Propias
- Accesorios y acabados modernos*
- Balcón o patio privado*
- Conexiones de lavadora y secadora
- Despensas de cocina *
- Electrodomésticos de acero inoxidable de bajo consumo energético*
- Elegante protector contra salpicaduras de azulejos de metro*
- Encimeras de granito *
- Terrazas acristaladas*
- Vestidores grandes
Tasas y precio de la unidad 7233
Precio por Unidad
- Desde $1,525
Depósito
- $200 deposit
Tasas y precios del modelo
Rango de Precios Modelo
- $1,525 - $1,675
Detalles y características de la Unidad 8234
Características
- Aire acondicionado
Cocina
- Lavavajillas
Espacio Vital
- Armario de ropa blanca
- Techos altos
Características Propias
- Accesorios y acabados modernos*
- Balcón o patio privado*
- Conexiones de lavadora y secadora
- Despensas de cocina *
- Electrodomésticos de acero inoxidable de bajo consumo energético*
- Elegante protector contra salpicaduras de azulejos de metro*
- Encimeras de granito *
- Terrazas acristaladas*
- Vestidores grandes
Tasas y precio de la unidad 8234
Precio por Unidad
- Desde $1,525
Depósito
- $200 deposit
Tasas y precios del modelo
Rango de Precios Modelo
- $1,525 - $1,675
Modelo de apartamento: 2BXDesde $1,5252 Dormitorios, 2 Baños, 1195 sq ftDisponible Ahora![]()
2BX - Plano 1 Unidad de apartamento: 4232Modelo de apartamento: 2BXDesde $1,5252 Dormitorios, 2 Baños, 1195 sq ftDisponible AhoraUnidad de apartamento: 7233Modelo de apartamento: 2BXDesde $1,5252 Dormitorios, 2 Baños, 1195 sq ftDisponible AhoraUnidad de apartamento: 8234Modelo de apartamento: 2BXDesde $1,5252 Dormitorios, 2 Baños, 1195 sq ftDisponible AhoraPlano: 2AX
Desde $1,400
2 Dormitorios, 2 Baños, 1086 pies²Disponible Jan 3El más baratoEsta opción tiene los precios más bajos para este modeloGalería del Modelo
Planos
Detalles de Diponibilidad
Precio Fecha Disponibilidad Unidad Pies² Depósito Ver Detalles $1,400 January 3, 2026 1221 1086 $200 $1,400 January 3, 2026 8123 1086 $200 $1,400 January 8, 2026 7222 1086 $200 Características y Comodidades de Modelo
Características
- Aire acondicionado
Cocina
- Lavavajillas
Espacio Vital
- Armario de ropa blanca
- Techos altos
Características Propias
- Accesorios y acabados modernos*
- Balcón o patio privado*
- Conexiones de lavadora y secadora
- Despensas de cocina *
- Electrodomésticos de acero inoxidable de bajo consumo energético*
- Elegante protector contra salpicaduras de azulejos de metro*
- Encimeras de granito *
- Terrazas acristaladas*
- Vestidores grandes
Tasas y precios del modelo
Rango de Precios Modelo
- $1,400 - $1,550
Depósito
- $200 deposit
Detalles y características de la Unidad 1221
Características
- Aire acondicionado
Cocina
- Lavavajillas
Espacio Vital
- Armario de ropa blanca
- Techos altos
Características Propias
- Accesorios y acabados modernos*
- Balcón o patio privado*
- Conexiones de lavadora y secadora
- Despensas de cocina *
- Electrodomésticos de acero inoxidable de bajo consumo energético*
- Elegante protector contra salpicaduras de azulejos de metro*
- Encimeras de granito *
- Terrazas acristaladas*
- Vestidores grandes
Tasas y precio de la unidad 1221
Precio por Unidad
- Desde $1,400
Depósito
- $200 deposit
Tasas y precios del modelo
Rango de Precios Modelo
- $1,400 - $1,550
Detalles y características de la Unidad 8123
Características
- Aire acondicionado
Cocina
- Lavavajillas
Espacio Vital
- Armario de ropa blanca
- Techos altos
Características Propias
- Accesorios y acabados modernos*
- Balcón o patio privado*
- Conexiones de lavadora y secadora
- Despensas de cocina *
- Electrodomésticos de acero inoxidable de bajo consumo energético*
- Elegante protector contra salpicaduras de azulejos de metro*
- Encimeras de granito *
- Terrazas acristaladas*
- Vestidores grandes
Tasas y precio de la unidad 8123
Precio por Unidad
- Desde $1,400
Depósito
- $200 deposit
Tasas y precios del modelo
Rango de Precios Modelo
- $1,400 - $1,550
Detalles y características de la Unidad 7222
Características
- Aire acondicionado
Cocina
- Lavavajillas
Espacio Vital
- Armario de ropa blanca
- Techos altos
Características Propias
- Accesorios y acabados modernos*
- Balcón o patio privado*
- Conexiones de lavadora y secadora
- Despensas de cocina *
- Electrodomésticos de acero inoxidable de bajo consumo energético*
- Elegante protector contra salpicaduras de azulejos de metro*
- Encimeras de granito *
- Terrazas acristaladas*
- Vestidores grandes
Tasas y precio de la unidad 7222
Precio por Unidad
- Desde $1,400
Depósito
- $200 deposit
Tasas y precios del modelo
Rango de Precios Modelo
- $1,400 - $1,550
Modelo de apartamento: 2AXDesde $1,4002 Dormitorios, 2 Baños, 1086 sq ftDisponible January 3, 2026![]()
2AX - Plano 1 Unidad de apartamento: 1221Modelo de apartamento: 2AXDesde $1,4002 Dormitorios, 2 Baños, 1086 sq ftDisponible January 3, 2026Unidad de apartamento: 8123Modelo de apartamento: 2AXDesde $1,4002 Dormitorios, 2 Baños, 1086 sq ftDisponible January 3, 2026Unidad de apartamento: 7222Modelo de apartamento: 2AXDesde $1,4002 Dormitorios, 2 Baños, 1086 sq ftDisponible January 8, 2026Plano: 2BR
Desde $1,475
2 Dormitorios, 2 Baños, 1195 pies²Disponible Feb 5Galería del Modelo
Planos
Detalles de Diponibilidad
Precio Fecha Disponibilidad Unidad Pies² Depósito $1,475 February 5, 2026 5322 1195 $200 Detalles y características de la Unidad 5322
Características
- Aire acondicionado
Cocina
- Lavavajillas
Espacio Vital
- Armario de ropa blanca
- Techos altos
Características Propias
- Accesorios y acabados modernos*
- Balcón o patio privado*
- Conexiones de lavadora y secadora
- Despensas de cocina *
- Electrodomésticos de acero inoxidable de bajo consumo energético*
- Elegante protector contra salpicaduras de azulejos de metro*
- Encimeras de granito *
- Terrazas acristaladas*
- Vestidores grandes
Tasas y precio de la unidad 5322
Precio por Unidad
- Desde $1,475
Depósito
- $200 deposit
Tasas y precios del modelo
Rango de Precios Modelo
- $1,475 - $1,625
Modelo de apartamento: 2BRDesde $1,4752 Dormitorios, 2 Baños, 1195 sq ftDisponible February 5, 2026![]()
2BR - Plano 1 Unidad de apartamento: 5322Modelo de apartamento: 2BRDesde $1,4752 Dormitorios, 2 Baños, 1195 sq ftDisponible February 5, 2026Plano: 2A
2 Dormitorios, 2 Baños, 1086 pies²Galería del Modelo
Planos
Detalles de Diponibilidad
Precio Fecha Disponibilidad Unidad Pies² $1,464 Llamar para disponibilidad 2A 1086 pies² Características y Comodidades de Modelo
Características
- Aire acondicionado
Cocina
- Lavavajillas
Espacio Vital
- Armario de ropa blanca
- Techos altos
Características Propias
- Accesorios y acabados modernos*
- Balcón o patio privado*
- Conexiones de lavadora y secadora
- Despensas de cocina *
- Electrodomésticos de acero inoxidable de bajo consumo energético*
- Elegante protector contra salpicaduras de azulejos de metro*
- Encimeras de granito*
- Terrazas acristaladas*
- Vestidores amplios
Tasas y precios del modelo
Precio del Modelo
- $1,464
Modelo de apartamento: 2A$1,4642 Dormitorios, 2 Baños, 1086 sq ftNo Disponible![]()
2A - Plano 1 Plano: 2AR
2 Dormitorios, 2 Baños, 1086 pies²Galería del Modelo
Planos
Detalles de Diponibilidad
Precio Fecha Disponibilidad Unidad Pies² $1,519 Llamar para disponibilidad 2AR 1086 pies² Características y Comodidades de Modelo
Características
- Aire acondicionado
Cocina
- Lavavajillas
Espacio Vital
- Armario de ropa blanca
- Techos altos
Características Propias
- Accesorios y acabados modernos*
- Balcón o patio privado*
- Conexiones de lavadora y secadora
- Despensas de cocina *
- Electrodomésticos de acero inoxidable de bajo consumo energético*
- Elegante protector contra salpicaduras de azulejos de metro*
- Encimeras de granito *
- Terrazas acristaladas*
- Vestidores grandes
Tasas y precios del modelo
Precio del Modelo
- $1,519
Modelo de apartamento: 2AR$1,5192 Dormitorios, 2 Baños, 1086 sq ftNo Disponible![]()
2AR - Plano 1 Plano: 2B
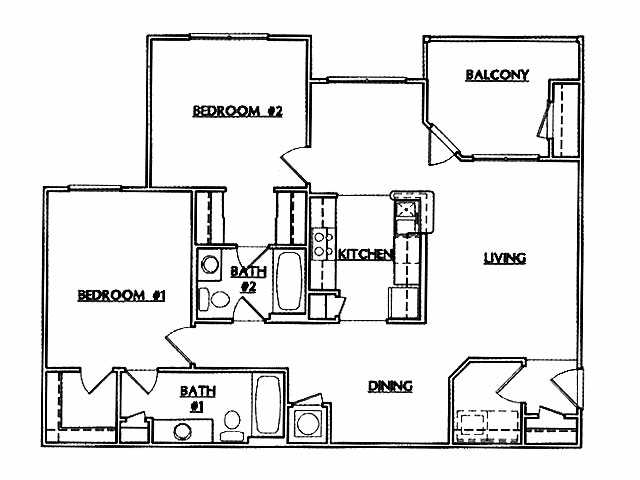
2 Dormitorios, 2 Baños, 1195 pies²Galería del Modelo
Planos
Fotos
Detalles de Diponibilidad
Precio Fecha Disponibilidad Unidad Pies² Desde $1,349 Llamar para disponibilidad 2B 1195 pies² Características y Comodidades de Modelo
Características
- Aire acondicionado
- Conexiones para lavadora/secadora
- Preinstalación de cables
- Sistema de seguridad
- Ventiladores de techo
Cocina
- Lavavajillas
Espacio Vital
- Armario de ropa blanca
- Techos altos
- Vestidores
Características Propias
- Accesorios y acabados modernos*
- Balcón o patio privado*
- Conexiones de lavadora y secadora
- Despensas de cocina *
- Electrodomésticos de acero inoxidable de bajo consumo energético*
- Elegante protector contra salpicaduras de azulejos de metro*
- Encimeras de granito*
- Terrazas acristaladas*
- Vestidores amplios
Tasas y precios del modelo
Rango de Precios Modelo
- $1,349 - $1,449
Modelo de apartamento: 2BDesde $1,3492 Dormitorios, 2 Baños, 1195 sq ftNo DisponiblePlanosFotos![]()
2B - Imagen 1 ![]()
2B - Imagen 2 ![]()
2B - Imagen 3 ![]()
2B - Imagen 4 ![]()
2B - Imagen 5 ![]()
2B - Imagen 6 ![]()
2B - Imagen 7 ![]()
2B - Imagen 8 ![]()
2B - Imagen 9 ![]()
2B - Imagen 10 ![]()
2B - Plano 11 ![]()
2B - Plano 12 ![]()
2B - Plano 13 3 Dormitorios
Plano: 3A
3 Dormitorios, 2 Baños, 1380 pies²Galería del Modelo
Planos
Detalles de Diponibilidad
Precio Fecha Disponibilidad Unidad Pies² $1,664 Llamar para disponibilidad 3A 1380 pies² Características y Comodidades de Modelo
Características
- Aire acondicionado
- Conexiones para lavadora/secadora
- Preinstalación de cables
- Sistema de seguridad
- Ventiladores de techo
Cocina
- Lavavajillas
Espacio Vital
- Armario de ropa blanca
- Techos altos
- Vestidores
Características Propias
- Accesorios y acabados modernos*
- Balcón o patio privado*
- Conexiones de lavadora y secadora
- Despensas de cocina *
- Electrodomésticos de acero inoxidable de bajo consumo energético*
- Elegante protector contra salpicaduras de azulejos de metro*
- Encimeras de granito*
- Terrazas acristaladas*
- Vestidores amplios
Tasas y precios del modelo
Precio del Modelo
- $1,664
Modelo de apartamento: 3A$1,6643 Dormitorios, 2 Baños, 1380 sq ftNo Disponible![]()
3A - Plano 1 ![]()
3A - Plano 2 Plano: 3AX
3 Dormitorios, 2 Baños, 1380 pies²Galería del Modelo
Planos
Detalles de Diponibilidad
Precio Fecha Disponibilidad Unidad Pies² $1,834 Llamar para disponibilidad 3AX 1380 pies² Características y Comodidades de Modelo
Características
- Aire acondicionado
Cocina
- Lavavajillas
Espacio Vital
- Armario de ropa blanca
- Techos altos
Características Propias
- Accesorios y acabados modernos*
- Balcón o patio privado*
- Conexiones de lavadora y secadora
- Despensas de cocina *
- Electrodomésticos de acero inoxidable de bajo consumo energético*
- Elegante protector contra salpicaduras de azulejos de metro*
- Encimeras de granito *
- Terrazas acristaladas*
- Vestidores grandes
Tasas y precios del modelo
Precio del Modelo
- $1,834
Modelo de apartamento: 3AX$1,8343 Dormitorios, 2 Baños, 1380 sq ftNo Disponible![]()
3AX - Plano 1
Programar una Visita
3D Tours
Información de la Comunidad
- Unidades
- Plantas
- Construido en
- Ver el sitio web de la propiedad
Está a punto de salir de ApartmentHomeLiving.com…
Términos de Arrendamiento
- Têrminos del Alquiler
Fees and Policies
Las tarifas que figuran a continuación se basan en datos facilitados por la comunidad y pueden excluir tasas y servicios adicionales. Usa la calculadora para añadirlos a la renta base.
Tasas Requeridas
Básicos de una sola vez
- A pagar en el momento de la mudanza
- Administrative FeeiCharged per unit$300
- Pagadero en el momento de la solicitud
- Application Fee Per ApplicantiCharged per applicant$50
Other Fees
Tasas por mascotas
- One-Time Pet FeeiCharged per Pet$300
- Monthly Pet FeeiCharged per Pet$20
- One-Time Pet FeeiCharged per Pet$300
- Monthly Pet FeeiCharged per Pet$20
- 2 Pet Limit
- 65 Lb Weight Limit
- 2 Pet Limit
- 65 Lb Weight Limit
Cat
Dog
Dogs
One time pet fee $300 for the first pet, $300 for the second pet. Monthly pet rent $20 per pet.
Cats
One time pet fee $300 for the first pet, $300 for the second pet. Monthly pet rent $20 per pet
Exención de responsabilidad sobre las tasas de propiedad: Based on community-supplied data and independent market research. Subject to change without notice. May exclude fees for mandatory or optional services and usage-based utilities.
Características y Facilidades
Servicios
- Mantenimiento En El Lugar
- Property Manager En El Lugar
- Recolección De Basura: Puerta A Puerta
- Servicio De Lavandería
- Área De Juegos Para Mascotas
Características de la Comunidad
- Sin Ascensor
- Centro De Negocios
Características al Aire Libre
- Parrilla
- Acceso Controlado
- Patio
Recreación
- Gimnasio
- Sala De Juegos
Características Interior
- Balcón
- Sistema De Seguridad
- Sistema De Rociadores
- Ventiladores De Techo
- Bañera/Ducha
- Calefacción
- Preinstalación De Cables
- Conexiones Para Lavadora/Secadora
- Lavadora/Secadora
- Aire Acondicionado
- Wifi
Características de la Cocina
- Despensa
- Fogón
- Nevera
- Lavavajillas
- Congelador
- Zona De Eliminación De Desechos
- Electrodomésticos De Acero Inoxidable
- Máquina De Hielo
- Encimeras De Granito
Características de la Sala de Estar
- Vestidores
- Solárium
- Comedor
- Ventanas De Doble Panel
- Suelos De Vinilo
- Alfombra
- Dormitorios Grandes

Mapa
- Compras
- Universidades
- Supermercado
- Médicos

Mapa
Horario e Información de Contacto
| Lunes | 9:00 am–5:30 pm |
| Martes | 9:00 am–5:30 pm |
| Miércoles | 9:00 am–5:30 pm |
| Jueves | 9:00 am–5:30 pm |
| Viernes | 9:00 am–5:30 pm |
| Sábado | Cerrado |
| Domingo | Cerrado |
¿Qué son las clasificaciones Walk Score®, Transit Score® y Bike Score®?
- Walk Score® mide la viabilidad peatonal de cualquier dirección.
- Transit Score® mide el acceso a transporte público.
- Bike Score® mide la infraestructura de rutas para bicicletas de cualquier dirección.
Preguntas Frecuentes sobre Arch + Vine
¿Donde se encuentra Arch + Vine?
Arch + Vine se encuentran en 105 Oak Hill Dr cerca de la zona Northeast Athens en Athens, GA
¿Cuál es el rango de alquiler vigente en Arch + Vine?
El rango de alquiler de Apartamentos 1 dormitorios a 3 dormitorios en Arch + Vine van desde $1,200 a $1,675
¿Qué horarios tiene la oficina de alquiler?
- El horario de oficina de Arch + Vine es
- Lunes 9:00 am–5:30 pm
- Martes 9:00 am–5:30 pm
- Miércoles 9:00 am–5:30 pm
- Jueves 9:00 am–5:30 pm
- Viernes 9:00 am–5:30 pm
- Sábado Cerrado
- Domingo Cerrado
¿Se permiten mascotas?
Llámenos hoy para conocer nuestra política de mascotas y saber si las aceptamos.
¿Hay alguna promoción de renta?
La promoción que hay actualmente para la renta en Arch + Vine es: Enjoy Up To 2 Months Free On Select Units And $99 App & Admin Fees! ; Stipulations apply. Contact the leasing office for details!
Calificación Según Estilo de Vida:
Conocer más sobre la búsqueda de estilos de vidaOpiniones y valoraciones de Inquilinos
Beautiful property!
October 22, 2024Took a great tour with Tammy! Will be moving in soon.Reseña de Apartments.com
Water bugs everywhere
September 19, 2022If you move here make sure you get some big out cause it’s Roach and water bug island! YuckProperty Manager Responded
October 3, 2022Thank you so much for review and I sincerely apologize for the concerns that you have stressed. We provide exterminating service every Wednesday and if you can contact me, I will add you to our log for service next Wednesday. Again, my sincere apology.
Reseña de Apartments.com
Wrong Availability & Prices
May 11, 2022I tried filling out an application for a specific unit but was told that the prices listed for applications ($124 for 2 people) were way off online and that it instead was going to be $400 for a 2 person application. I was also told that all the currently listed available apartments would not be available for at least 3 months because they were undergoing renovations. If that is the case then they should not list them as available.Reseña de Apartments.com
Ridiculous fees
December 8, 2021Every few months I get a new fee added to my rent and it's getting ridiculous. Trash valet service that you can't opt out of despite no service on the weekends... An "amenity fee" for the new gate and shiny new clubhouse nobody asked for... This place looks nice from the outside, but it's held together by duct tape. Things are constantly breaking, but it takes months to get anyone out to "fix" it.Reseña de Apartments.com
Terrible
August 9, 2021If I could give multiple negative stars I would. Scheduled a tour drove over an hour to see the apartments and they told me nothing is available despite their own website that shows multiple units are available. The people at the desk were beyond rude and looked at me like I was the crazy one for having an appointment scheduled through their own website. I’m glad nothing is available. Apartments are in a terrible area and beware of the property when they treat future residents this way.Reseña de Apartments.com
If I can give it a negative number I would
May 7, 2021I’ve lived here for now seven months we still don’t have a clubhouse they have been working on it and I keep pushing the opening date back and back and back but yet they charge you for Having a clubhouse The apartments are not move-in ready when I moved in there was a ton of stuff that need to be fixed and I take their sweet time doing itReseña de Apartments.com
Prices
May 11, 2020They have taken the prices up but it’s not worth it.Reseña de Apartments.com
Escuelas Cercanas
Coile Middle School
Cedar Shoals High School
Howard B. Stroud Elementary School
Sitios de Interés
Tiempo y distancia desde Arch + Vine.
Grandes Superficies de Ventas
Autozone
Walgreens
Kroger
Universidad
Tiendas
Earth Fare
Kroger
Aldi
Hospitales
Piedmont Athens Regional Medical Center
St. Mary's Hospital
Bases Militares
Navy Supply Corps School
Centros Comerciales
Arch + Vine tiene 5 centros comerciales en un radio de 2.6 millas.
Barrios cercanos
Rango de Precios de los Alquileres en la Zona
| Dormitorios | Precio Promedio | Más barato | Más caro |
|---|---|---|---|
| Apartamentos Estudio en Athens | $1,404 | $838 | $1,835 |
| Apartamentos 1 Dormitorios en Athens | $1,517 | $650 | $4,019 |
| Apartamentos 2 Dormitorios en Athens | $1,587 | $525 | $4,220 |
| Apartamentos 3 Dormitorios en Athens | $1,874 | $799 | $8,484 |
| Apartamentos 4 Dormitorios en Athens | $1,283 | $525 | $3,945 |
| Apartamentos 5 Dormitorios en Athens | $2,067 | $1,100 | $3,400 |
Ver Apartamentos más destacados en Athens
Por el Precio
- Apartamentos Barato en Athens
- Apartamentos en Athens menos de $600
- Apartamentos en Athens menos de $700
- Apartamentos en Athens menos de $800
- Apartamentos en Athens menos de $900
- Apartamentos en Athens menos de $1000
- Apartamentos en Athens menos de $1200
- Apartamentos en Athens menos de $1500
- Apartamentos en Athens menos de $2000
- Apartamentos de Lujo en Athens
Por tipo de comunidad
- Apartamentos en alquiler por el propietario en Athens
- Apartamentos en Athens con Oferta Especial
- Apartamentos en Athens Más Valorados
- Apartamentos en Athens Viviendas Corporativas
- Apartamentos en Athens Amueblado
- Apartamentos en Athens Reja de Entrada Automática
- Apartamentos en Athens Loft
- Apartamentos en Athens De Bajos Ingresos
- Apartamentos en Athens Militar
- Nuevos Apartamentos en Athens
- Apartamentos en Athens Personas Mayores
- Apartamentos en Athens Contratos de Corto Plazo
- Apartamentos en Athens Estudiante
- Apartamentos en Athens con Utilidades Incluidas
















