Photos














- 1 Dormitorio Dormitorios
- $1,425-$1,465Precios de alquiler
- 741–795Pies cuadrados
Promociones
RECIEVE A WAIVED ADMIN FEE AND $500 SECURITY DEPOSIT IF YOU APPLY WITHIN 24 HOURS OF YOUR TOUR! *Restrictions Apply~~Contact us to schedule TODAY!
Acerca Edge on North
¡Bienvenido a Edge on North! Un complejo de apartamentos estilo boutique en el vecindario de moda de East Side en Milwaukee. Edge on North ofrece amplios apartamentos de una y dos habitaciones, que van desde 741 hasta 1,157 pies cuadrados. Cada apartamento está equipado con elegantes acabados de interior, como encimeras de cuarzo, iluminación colgante, pisos de tablones de madera noble y ventanas del piso al techo. Disfruta de comodidades en el hogar como lavadora y secadora, electrodomésticos de cocina de acero inoxidable y balcones grandes. Edge on North está ubicado a pocas cuadras de Whole Foods Market, Crossroads Collective (un salón de comidas de Milwaukee) y una gran cantidad de tiendas, cafeterías, bares y restaurantes. Edge on North está ubicado a una poca distancia a pie de la playa Bradford de Milwaukee y Ascension Columbia St. Mary's Hospital. ¡Ponte en contacto con nuestro equipo de arrendamiento hoy para programar tu recorrido personal! Edge on North ofrece recorridos de arrendamiento de martes a sábados, solo con cita previa.
Edge on North se encuentra en el Barrio Northpoint y el código postal 53211 de Milwaukee, WI. Esta comunidad está gestionada profesionalmente por Joseph Property Development
Características personalizadas
- Techos de 10′
- Techos de 10'
- Todo incluido, lavadora y secadora en la unidad.
- Control de acceso al edificio con llavero
- Persianas personalizadas
- Puertas y herrajes personalizados
- East Side, en el vecindario
- Refrigerador de puerta francesa
- Suelo de tablones duros
- Estacionamiento con calefacción disponible
- secador de la lavadora del En-hogar
- Lavadora y secadora integradas
- Gran balcón
- Ninguno
- Pisos de tablones en espacios habitables
- Mostradores de cuarzo
- Electrodomésticos SS
Información de contacto de la propiedad

Precios y Disponibilidad de Plano
Edge on North ofrece apartamentos de 1 Dormitorio desde $1,425 con 741–795 pies cuadrados. Aquí está el precio actual y la disponibilidad:
¡Nuevo! Mapa Interactivo de Propiedades
1 Dormitorio
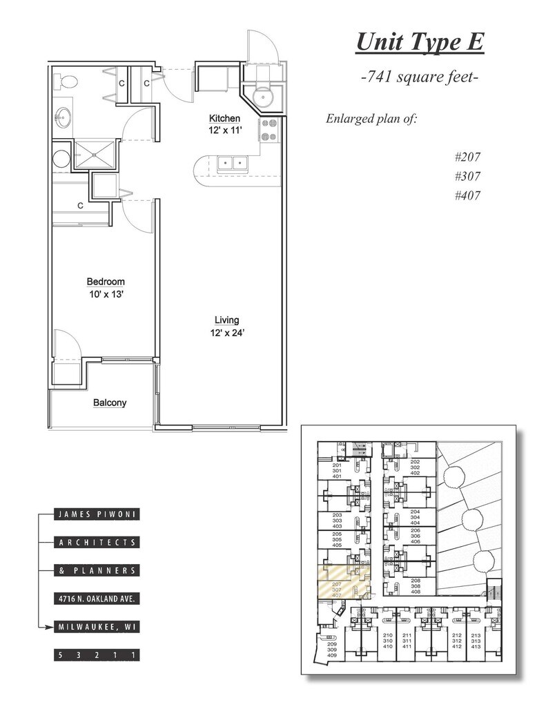
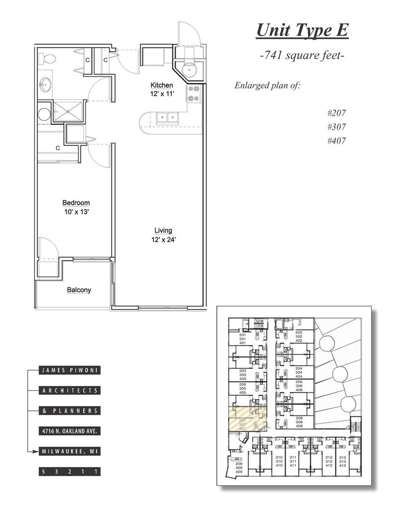
E Floor plan
$1,465
1 Dormitorio, 1 Baño, 741 pies²Disponible AhoraGalería del Modelo
Planos
Detalles de Diponibilidad
Precio Fecha Disponibilidad Unidad Pies² Depósito Fotos $1,465 Disponible Ahora 307 741 $1,500 Gallería de la Unidad 307
Fotos
Detalles y características de la Unidad 307
Cocina
- Encimeras de cuarzo
Espacio Vital
- Ventanas de suelo a techo
Características Propias
- Electrodomésticos SS
- Estacionamiento climatizado disponible
- Gran balcón
- Lavadora y secadora en la unidad
- Ninguno
- Persianas personalizadas
- Pisos de tablones en espacios habitables
- Puertas y herrajes personalizados
- Refrigerador de puerta francesa
- techos de 10'
- Todo incluido, lavadora y secadora en la unidad.
Tasas y precio de la unidad 307
Precio por Unidad
- $1,465
Depósito
- $1,500 deposit
Tasas y precios del modelo
Precio
- $1,465
Modelo de apartamento: E Floor plan$1,4651 Dormitorio, 1 Baño, 741 sq ftDisponible Ahora![]()
E Floor plan - Plano 1 Unidad de apartamento: 307Modelo de apartamento: E Floor plan$1,4651 Dormitorio, 1 Baño, 741 sq ftDisponible Ahora![]()
Unidad: 307 - Imagen 1 ![]()
Unidad: 307 - Imagen 2 ![]()
Unidad: 307 - Imagen 3 ![]()
Unidad: 307 - Imagen 4 ![]()
Unidad: 307 - Imagen 5 ![]()
Unidad: 307 - Imagen 6 ![]()
Unidad: 307 - Imagen 7 ![]()
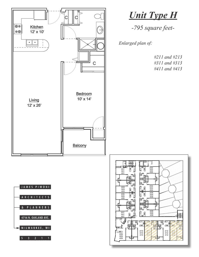
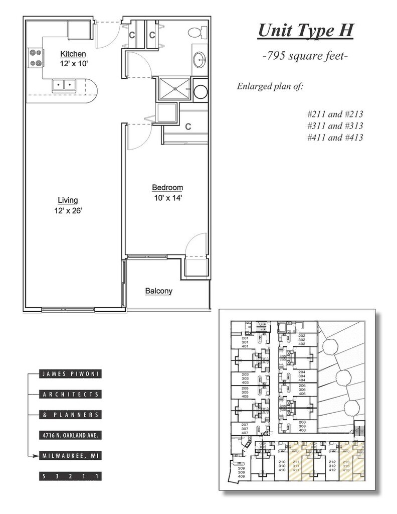
Unidad: 307 - Imagen 8 H Floor plan
$1,425
1 Dormitorio, 1 Baño, 795 pies²Disponible Jan 10Galería del Modelo
Planos
Detalles de Diponibilidad
Precio Fecha Disponibilidad Unidad Pies² Depósito Fotos $1,425 January 10, 2026 211 795 $1,500 Gallería de la Unidad 211
Fotos
Detalles y características de la Unidad 211
Cocina
- Encimeras de cuarzo
Espacio Vital
- Ventanas de suelo a techo
Características Propias
- Electrodomésticos de acero inoxidable
- Estacionamiento climatizado disponible
- Gran balcón
- Lavadora y secadora en la unidad
- NINGUNO
- Persianas personalizadas
- Pisos de tablones en espacios habitables
- Puertas y herrajes personalizados
- Refrigerador de puerta francesa
- Techos de 10'
- Todo incluido, lavadora y secadora en la unidad.
Tasas y precio de la unidad 211
Precio por Unidad
- $1,425
Depósito
- $1,500 deposit
Tasas y precios del modelo
Precio
- $1,425
Modelo de apartamento: H Floor plan$1,4251 Dormitorio, 1 Baño, 795 sq ftDisponible January 10, 2026![]()
H Floor plan - Plano 1 Unidad de apartamento: 211Modelo de apartamento: H Floor plan$1,4251 Dormitorio, 1 Baño, 795 sq ftDisponible January 10, 2026![]()
Unidad: 211 - Imagen 1 ![]()
Unidad: 211 - Imagen 2 ![]()
Unidad: 211 - Imagen 3 ![]()
Unidad: 211 - Imagen 4 ![]()
Unidad: 211 - Imagen 5 ![]()
Unidad: 211 - Imagen 6 ![]()
Unidad: 211 - Imagen 7 ![]()
Unidad: 211 - Imagen 8
Programar una Visita
3D Tours
Información de la Comunidad
- Unidades
- Plantas
- Construido en
- Ver el sitio web de la propiedad
Está a punto de salir de ApartmentHomeLiving.com…
Términos de Arrendamiento
- Têrminos del Alquiler
Fees and Policies
Las tarifas que figuran a continuación se basan en datos facilitados por la comunidad y pueden excluir tasas y servicios adicionales. Usa la calculadora para añadirlos a la renta base.
Tasas Requeridas
Básicos de una sola vez
- Pagadero en el momento de la solicitud
- Application Fee Per ApplicantiCharged per applicant$45
- A pagar en el momento de la mudanza
- Administrative FeeiCharged per unit$275
Pet Policy and Fees
Dogs
- Fees Not Specified
Cats
- Fees Not Specified
Exención de responsabilidad sobre las tasas de propiedad: Based on community-supplied data and independent market research. Subject to change without notice. May exclude fees for mandatory or optional services and usage-based utilities.
Características y Facilidades
Características de la Comunidad
- Ascensor
Características al Aire Libre
- Acceso Controlado
Características Interior
- Aire Acondicionado
Características de la Cocina
- Electrodomésticos De Acero Inoxidable
Características de la Sala de Estar
- Ventanas De Suelo A Techo

Mapa
- Compras
- Universidades
- Supermercado
- Médicos
- Parques

Mapa
Horario e Información de Contacto
| Lunes | Cerrado |
| Martes | Con Cita Previa |
| Miércoles | Con Cita Previa |
| Jueves | Con Cita Previa |
| Viernes | Con Cita Previa |
| Sábado | Con Cita Previa |
| Domingo | Cerrado |
¿Qué son las clasificaciones Walk Score®, Transit Score® y Bike Score®?
- Walk Score® mide la viabilidad peatonal de cualquier dirección.
- Transit Score® mide el acceso a transporte público.
- Bike Score® mide la infraestructura de rutas para bicicletas de cualquier dirección.
Preguntas Frecuentes sobre Edge on North
¿Donde se encuentra Edge on North?
Edge on North se encuentran en 2310 N Oakland Ave cerca de la zona Northpoint en Milwaukee, WI
¿Cuál es el rango de alquiler vigente en Edge on North?
1 dormitorio en Edge on North a partir de $1,425. ¡Llámenos para obtener más información!
¿Qué horarios tiene la oficina de alquiler?
- El horario de oficina de Edge on North es
- Lunes Cerrado
- Martes Con Cita Previa
- Miércoles Con Cita Previa
- Jueves Con Cita Previa
- Viernes Con Cita Previa
- Sábado Con Cita Previa
- Domingo Cerrado
¿Se permiten mascotas?
Llámenos hoy para conocer nuestra política de mascotas y saber si las aceptamos.
¿Hay alguna promoción de renta?
La promoción que hay actualmente para la renta en Edge on North es: RECIEVE A WAIVED ADMIN FEE AND $500 SECURITY DEPOSIT IF YOU APPLY WITHIN 24 HOURS OF YOUR TOUR! *Restrictions Apply~~Contact us to schedule TODAY!
Calificación Según Estilo de Vida:
Conocer más sobre la búsqueda de estilos de vidaOpiniones y valoraciones de Inquilinos
Escuelas Cercanas
Maryland Avenue Montessori School
Lincoln Center of the Arts
Riverside University High School
Hartford Avenue Elementary
Roosevelt Middle School of the Arts
Sitios de Interés
Tiempo y distancia desde Edge on North.
Arte, Museos y Monumentos
Grandes Superficies de Ventas
Walgreens
Universidad
Milwaukee Area Technical College - Downtown Milwaukee Campus
Tiendas
Whole Foods
Aldi
Sendik's Food Market
Hospitales
Ascension Columbia St. Mary's Hospital Milwaukee
Orthopaedic Hospital Of Wisconsin
Wheaton Franciscan St Joseph
Bases Militares
Wisconsin Air National Guard
US Air Force Reserve
Parques y opciones de recreación
Edge on North tiene 5 parques en un radio de 11.1 millas, incluyendo Lake Park, Mitchell Park Conservatory, Havenwoods State Forest, Brown Deer Park, y Boerner Botanical Gardens.
Centros Comerciales
Edge on North tiene 5 centros comerciales en un radio de 1.3 millas.
Barrios cercanos
Rango de Precios de los Alquileres en la Zona
| Dormitorios | Precio Promedio | Más barato | Más caro |
|---|---|---|---|
| Apartamentos Estudio en Milwaukee | $1,321 | $655 | $3,924 |
| Apartamentos 1 Dormitorios en Milwaukee | $1,634 | $465 | $5,835 |
| Apartamentos 2 Dormitorios en Milwaukee | $2,099 | $559 | $7,512 |
| Apartamentos 3 Dormitorios en Milwaukee | $2,708 | $570 | $10,000+ |
| Apartamentos 4 Dormitorios en Milwaukee | $2,573 | $870 | $7,500 |
| Apartamentos 5 Dormitorios en Milwaukee | $6,133 | $2,900 | $10,000+ |
Ver Apartamentos más destacados en Milwaukee
Por el Precio
- Apartamentos Barato en Milwaukee
- Apartamentos en Milwaukee menos de $500
- Apartamentos en Milwaukee menos de $700
- Apartamentos en Milwaukee menos de $800
- Apartamentos en Milwaukee menos de $900
- Apartamentos en Milwaukee menos de $1000
- Apartamentos en Milwaukee menos de $1200
- Apartamentos en Milwaukee menos de $1500
- Apartamentos en Milwaukee menos de $2000
- Apartamentos de Lujo en Milwaukee
Por tipo de comunidad
- Apartamentos en alquiler por el propietario en Milwaukee
- Apartamentos en Milwaukee con Oferta Especial
- Apartamentos en Milwaukee Más Valorados
- Apartamentos en Milwaukee Viviendas Corporativas
- Apartamentos en Milwaukee Amueblado
- Apartamentos en Milwaukee Reja de Entrada Automática
- Apartamentos en Milwaukee Loft
- Apartamentos en Milwaukee De Bajos Ingresos
- Apartamentos en Milwaukee Militar
- Nuevos Apartamentos en Milwaukee
- Apartamentos en Milwaukee Personas Mayores
- Apartamentos en Milwaukee Contratos de Corto Plazo
- Apartamentos en Milwaukee Estudiante
- Apartamentos en Milwaukee con Utilidades Incluidas
Por las Características
- Apartamentos en Milwaukee con Pisos de Madera
- Apartamentos en Milwaukee con Lavandería
- Apartamentos en Milwaukee con Estacionamiento Disponible
- Apartamentos en Milwaukee Se Permiten Mascotas
- Apartamentos en Milwaukee con Piscina(s)
- Apartamentos en Milwaukee con Lavadora y Secadora
- Apartamentos en Milwaukee con Estaciones de Carga EV
















