Photos


















Contacto
Fairway Ridge Apartments and Townhomes

- Estudio–3 Dormitorios
- $1,030-$1,775Precios de alquiler
- 518–1,062Pies cuadrados
Acerca Fairway Ridge Apartments and Townhomes
Fairway Ridge está ubicado en Baltimore, Maryland, con vista al campo de golf Forest Park. Este complejo de apartamentos y casas adosadas se construyó para satisfacer las crecientes necesidades de cualquier persona o familiar. Con personal en el lugar y servicio de mantenimiento de emergencia las 24 horas, puedes vivir bien en Fairway Ridge.
Fairway Ridge Apartments and Townhomes se encuentra en el Barrio Purnell y el código postal 21207 de Baltimore, MD. Esta comunidad está gestionada profesionalmente por Atlantic Realty Management, Inc.
Características personalizadas
- Secador de la lavadora en unidades
- Lavamanos con tocador doble, baño principal
- Puertas con mirillas
- Flexionar.
- Electrodomésticos de tamaño completo
- Pisos de madera disponibles en casas adosadas
- Lavandería
- Ubicado junto al campo de golf Forest Park
- NPS de garantías de alquiler
- Estacionamiento fuera de la vía pública
- Oficina en el local de la administración
- Vestidores de gran tamaño
- Parque infantil (5 años o más)
- Parque infantil (5 años o menos)
- Alfombras de lujo de pared a pared
- Entrada privada
- Eventos de agradecimiento a los residentes
- Revestimiento de ventanas
Información de contacto de la propiedad

Precios y Disponibilidad de Plano
Fairway Ridge Apartments and Townhomes ofrece apartamentos de Estudio a 3 Dormitorios desde $1,030 con 518–1,062 pies cuadrados. Aquí está el precio actual y la disponibilidad:
¡Nuevo! Mapa Interactivo de Propiedades
Estudio
Ver Planos No DisponiblesThe Broadview
Desde $1,030
Estudio, 1 Baño, 518 pies²Disponible AhoraGalería del Modelo
Planos
Detalles de Diponibilidad
Precio Fecha Disponibilidad Unidad Pies² Ver Detalles $1,030 Disponible Ahora 2547AG 518 $1,090 February 19, 2026 5000A 518 Características y Comodidades de Modelo
Espacio al Aire Libre
- Patio
Características Propias
- Cortina para ventanas
- Electrodomésticos de gran tamaño
- Entrada privada
- Puertas con mirillas
Tasas y precios del modelo
Rango de Precios Modelo
- $1,030 - $1,090Más Cargos
Depósito
- $750 deposit
Detalles y características de la Unidad 2547AG
Cocina
- Lavavajillas
Características Propias
- Cortina para ventanas
- Electrodomésticos de gran tamaño
- Entrada privada
- Estilo clásico
- Puertas con mirillas
Tasas y precio de la unidad 2547AG
Precio por Unidad
- $1,030Más Cargos
Depósito
- $750 deposit
Tasas y precios del modelo
Rango de Precios Modelo
- $1,030 - $1,090Más Cargos
Detalles y características de la Unidad 5000A
Espacio al Aire Libre
- Patio
Características Propias
- Cortina para ventanas
- Electrodomésticos de gran tamaño
- Entrada privada
- Puertas con mirillas
- Renovación media
Tasas y precio de la unidad 5000A
Precio por Unidad
- $1,090Más Cargos
Depósito
- $750 deposit
Tasas y precios del modelo
Rango de Precios Modelo
- $1,030 - $1,090Más Cargos
Modelo de apartamento: The BroadviewDesde $1,030Estudio, 1 Baño, 518 sq ftDisponible Ahora![]()
The Broadview - Plano 1 Unidad de apartamento: 2547AGModelo de apartamento: The Broadview$1,030Estudio, 1 Baño, 518 sq ftDisponible AhoraUnidad de apartamento: 5000AModelo de apartamento: The Broadview$1,090Estudio, 1 Baño, 518 sq ftDisponible February 19, 2026The Broadview Renovated
Estudio, 1 Baño, 518 pies²Galería del Modelo
Planos
Detalles de Diponibilidad
Fecha Disponibilidad Unidad Pies² Depósito Llamar para disponibilidad The Broadview Renovated 518 pies² $750 Características y Comodidades de Modelo
Características Propias
- Electrodomésticos de gran tamaño
Tasas y precios del modelo
Precio del Modelo
- Llame para PreciosMás Cargos
Depósito
- $750 deposit
Modelo de apartamento: The Broadview RenovatedLlame para PreciosEstudio, 1 Baño, 518 sq ftNo Disponible![]()
The Broadview Renovated - Plano 1 ![]()
The Broadview Renovated - Plano 2 ![]()
The Broadview Renovated - Plano 3 2 Dormitorios
The Greenview
$1,385
2 Dormitorios, 2 Baños, 1026 pies²Disponible AhoraEl más baratoEsta opción tiene los precios más bajos para este modeloGalería del Modelo
Planos
Detalles de Diponibilidad
Precio Fecha Disponibilidad Unidad Pies² Ver Detalles $1,385 Disponible Ahora 2523AG 1026 $1,385 Disponible Ahora 2663AG 1026 $1,385 Disponible Ahora 2624AG 1026 Características y Comodidades de Modelo
Espacio al Aire Libre
- Patio
Características Propias
- Cortina para ventanas
- Electrodomésticos de gran tamaño
- Entrada privada
- Lavamanos con tocador doble, baño principal
- Puertas con mirillas
Tasas y precios del modelo
Precio del Modelo
- $1,385Más Cargos
Depósito
- $750 deposit
Detalles y características de la Unidad 2523AG
Cocina
- Lavavajillas
Características Propias
- Cortina para ventanas
- Electrodomésticos de gran tamaño
- Entrada privada
- Lavamanos con tocador doble, baño principal
- Puertas con mirillas
Tasas y precio de la unidad 2523AG
Precio por Unidad
- $1,385Más Cargos
Depósito
- $750 deposit
Tasas y precios del modelo
Precio
- $1,385Más Cargos
Detalles y características de la Unidad 2663AG
Cocina
- Lavavajillas
Características Propias
- Cortina para ventanas
- Electrodomésticos de gran tamaño
- Entrada privada
- Estilo antiguo
- Lavamanos con tocador doble, baño principal
- Puertas con mirillas
Tasas y precio de la unidad 2663AG
Precio por Unidad
- $1,385Más Cargos
Depósito
- $750 deposit
Tasas y precios del modelo
Precio
- $1,385Más Cargos
Detalles y características de la Unidad 2624AG
Cocina
- Lavavajillas
Características Propias
- Cortina para ventanas
- Electrodomésticos de gran tamaño
- Entrada privada
- Estilo vintage
- Lavamanos con tocador doble, baño principal
- Puertas con mirillas
Tasas y precio de la unidad 2624AG
Precio por Unidad
- $1,385Más Cargos
Depósito
- $750 deposit
Tasas y precios del modelo
Precio
- $1,385Más Cargos
Modelo de apartamento: The GreenviewDesde $1,3852 Dormitorios, 2 Baños, 1026 sq ftDisponible Ahora![]()
The Greenview - Plano 1 Unidad de apartamento: 2523AGModelo de apartamento: The Greenview$1,3852 Dormitorios, 2 Baños, 1026 sq ftDisponible AhoraUnidad de apartamento: 2663AGModelo de apartamento: The Greenview$1,3852 Dormitorios, 2 Baños, 1026 sq ftDisponible AhoraUnidad de apartamento: 2624AGModelo de apartamento: The Greenview$1,3852 Dormitorios, 2 Baños, 1026 sq ftDisponible AhoraThe Greenview Renovated
Desde $1,535
2 Dormitorios, 2 Baños, 1026 pies²Disponible AhoraGalería del Modelo
Planos
Detalles de Diponibilidad
Precio Fecha Disponibilidad Unidad Pies² Ver Detalles $1,535 Disponible Ahora 2724AG 1026 $1,535 Disponible Ahora 5002A 1026 $1,535 Disponible Ahora 2521AG 1026 Características y Comodidades de Modelo
Características Propias
- Electrodomésticos de gran tamaño
- Lavamanos con tocador doble, baño principal
Tasas y precios del modelo
Rango de Precios Modelo
- $1,409 - $1,535Más Cargos
Precios de Unidades Disponibles
- $1,535Más Cargos
Depósito
- $750 deposit
Detalles y características de la Unidad 2724AG
Cocina
- Lavavajillas
Características Propias
- Electrodomésticos de gran tamaño
- Hogar renovado
- Lavamanos con tocador doble, baño principal
Tasas y precio de la unidad 2724AG
Precio por Unidad
- $1,535Más Cargos
Depósito
- $750 deposit
Tasas y precios del modelo
Rango de Precios Modelo
- $1,409 - $1,535Más Cargos
Detalles y características de la Unidad 5002A
Cocina
- Lavavajillas
Características Propias
- Electrodomésticos de gran tamaño
- Estilo antiguo
- Hogar renovado
- Lavamanos con tocador doble, baño principal
Tasas y precio de la unidad 5002A
Precio por Unidad
- $1,535Más Cargos
Depósito
- $750 deposit
Tasas y precios del modelo
Rango de Precios Modelo
- $1,409 - $1,535Más Cargos
Detalles y características de la Unidad 2521AG
Cocina
- Lavavajillas
Características Propias
- Casa renovada
- Electrodomésticos de gran tamaño
- Lavamanos con tocador doble, baño principal
Tasas y precio de la unidad 2521AG
Precio por Unidad
- $1,535Más Cargos
Depósito
- $750 deposit
Tasas y precios del modelo
Rango de Precios Modelo
- $1,409 - $1,535Más Cargos
Modelo de apartamento: The Greenview RenovatedDesde $1,4092 Dormitorios, 2 Baños, 1026 sq ftDisponible Ahora![]()
The Greenview Renovated - Plano 1 ![]()
The Greenview Renovated - Plano 2 ![]()
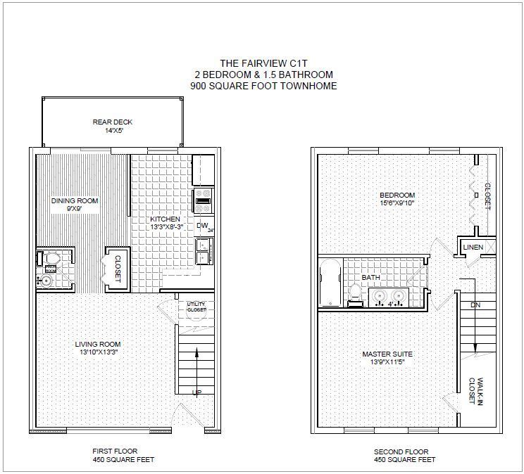
The Greenview Renovated - Plano 3 Unidad de apartamento: 2724AGModelo de apartamento: The Greenview Renovated$1,5352 Dormitorios, 2 Baños, 1026 sq ftDisponible AhoraUnidad de apartamento: 5002AModelo de apartamento: The Greenview Renovated$1,5352 Dormitorios, 2 Baños, 1026 sq ftDisponible AhoraUnidad de apartamento: 2521AGModelo de apartamento: The Greenview Renovated$1,5352 Dormitorios, 2 Baños, 1026 sq ftDisponible AhoraThe Fairview
Desde $1,410
2 Dormitorios, 1.5 Baños, 1026 pies²Disponible AhoraGalería del Modelo
Planos
Detalles de Diponibilidad
Precio Fecha Disponibilidad Unidad Pies² Ver Detalles $1,410 Disponible Ahora 2513G 1026 $1,410 Disponible Ahora 2662G 1026 $1,450 Disponible Ahora 2714G 1026 Características y Comodidades de Modelo
Características Propias
- Cortina para ventanas
- Electrodomésticos de gran tamaño
- Lavamanos con tocador doble, baño principal
Tasas y precios del modelo
Rango de Precios Modelo
- $1,410 - $1,450Más Cargos
Depósito
- $750 deposit
Detalles y características de la Unidad 2513G
Cocina
- Lavavajillas
Características Propias
- Cortina para ventanas
- Electrodomésticos de gran tamaño
- Estilo antiguo
- Lavamanos con tocador doble, baño principal
Tasas y precio de la unidad 2513G
Precio por Unidad
- $1,410Más Cargos
Depósito
- $750 deposit
Tasas y precios del modelo
Rango de Precios Modelo
- $1,410 - $1,450Más Cargos
Detalles y características de la Unidad 2662G
Cocina
- Lavavajillas
Características Propias
- Cortina para ventanas
- Electrodomésticos de gran tamaño
- Estilo antiguo
- Lavamanos con tocador doble, baño principal
Tasas y precio de la unidad 2662G
Precio por Unidad
- $1,410Más Cargos
Depósito
- $750 deposit
Tasas y precios del modelo
Rango de Precios Modelo
- $1,410 - $1,450Más Cargos
Detalles y características de la Unidad 2714G
Cocina
- Lavavajillas
Características Propias
- Cortina para ventanas
- Electrodomésticos de gran tamaño
- Estilo clásico
- Lavamanos con tocador doble, baño principal
Tasas y precio de la unidad 2714G
Precio por Unidad
- $1,450Más Cargos
Depósito
- $750 deposit
Tasas y precios del modelo
Rango de Precios Modelo
- $1,410 - $1,450Más Cargos
Modelo de apartamento: The FairviewDesde $1,4102 Dormitorios, 1.5 Baños, 1026 sq ftDisponible Ahora![]()
The Fairview - Plano 1 Unidad de apartamento: 2513GModelo de apartamento: The Fairview$1,4102 Dormitorios, 1.5 Baños, 1026 sq ftDisponible AhoraUnidad de apartamento: 2662GModelo de apartamento: The Fairview$1,4102 Dormitorios, 1.5 Baños, 1026 sq ftDisponible AhoraUnidad de apartamento: 2714GModelo de apartamento: The Fairview$1,4502 Dormitorios, 1.5 Baños, 1026 sq ftDisponible AhoraThe Fairview Renovated
$1,750
2 Dormitorios, 1.5 Baños, 1026 pies²Disponible AhoraGalería del Modelo
Planos
Detalles de Diponibilidad
Precio Fecha Disponibilidad Unidad Pies² Ver Detalles $1,750 Disponible Ahora 2643G 1026 $1,750 Disponible Ahora 2803G 1026 $1,750 Disponible Ahora 2835G 1026 Características y Comodidades de Modelo
Características Propias
- Electrodomésticos de gran tamaño
- Lavamanos con tocador doble, baño principal
Tasas y precios del modelo
Precio del Modelo
- $1,750Más Cargos
Depósito
- $750 deposit
Detalles y características de la Unidad 2643G
Cocina
- Lavavajillas
Características Propias
- Electrodomésticos de gran tamaño
- Hogar renovado
- Lavamanos con tocador doble, baño principal
Tasas y precio de la unidad 2643G
Precio por Unidad
- $1,750Más Cargos
Depósito
- $750 deposit
Tasas y precios del modelo
Precio
- $1,750Más Cargos
Detalles y características de la Unidad 2803G
Cocina
- Lavavajillas
Características Propias
- Electrodomésticos de gran tamaño
- Hogar renovado
- Lavamanos con tocador doble, baño principal
Tasas y precio de la unidad 2803G
Precio por Unidad
- $1,750Más Cargos
Depósito
- $750 deposit
Tasas y precios del modelo
Precio
- $1,750Más Cargos
Detalles y características de la Unidad 2835G
Cocina
- Lavavajillas
Características Propias
- Casa renovada
- Electrodomésticos de gran tamaño
- Lavamanos con tocador doble, baño principal
Tasas y precio de la unidad 2835G
Precio por Unidad
- $1,750Más Cargos
Depósito
- $750 deposit
Tasas y precios del modelo
Precio
- $1,750Más Cargos
Modelo de apartamento: The Fairview RenovatedDesde $1,7502 Dormitorios, 1.5 Baños, 1026 sq ftDisponible Ahora![]()
The Fairview Renovated - Plano 1 ![]()
The Fairview Renovated - Plano 2 ![]()
The Fairview Renovated - Plano 3 Unidad de apartamento: 2643GModelo de apartamento: The Fairview Renovated$1,7502 Dormitorios, 1.5 Baños, 1026 sq ftDisponible AhoraUnidad de apartamento: 2803GModelo de apartamento: The Fairview Renovated$1,7502 Dormitorios, 1.5 Baños, 1026 sq ftDisponible AhoraUnidad de apartamento: 2835GModelo de apartamento: The Fairview Renovated$1,7502 Dormitorios, 1.5 Baños, 1026 sq ftDisponible Ahora3 Dormitorios
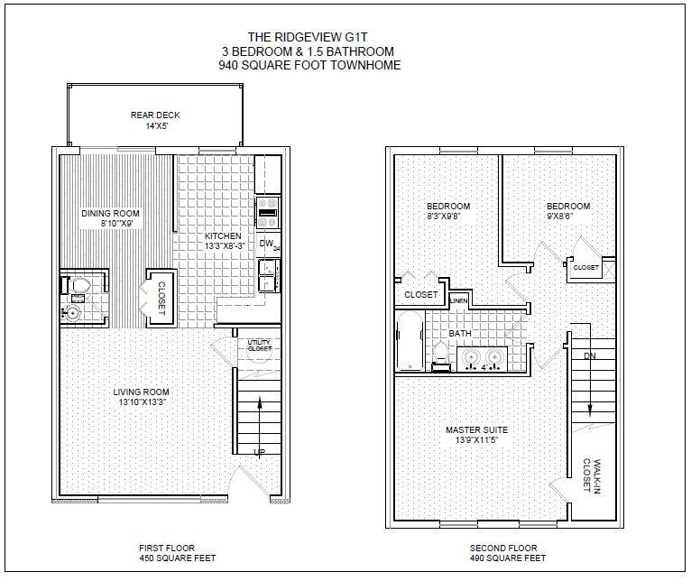
Ver Planos No DisponiblesThe Ridgeview
$1,775
3 Dormitorios, 1.5 Baños, 1062 pies²Disponible Feb 1Galería del Modelo
Planos
Detalles de Diponibilidad
Precio Fecha Disponibilidad Unidad Pies² Ver Detalles $1,775 February 1, 2026 2527G 1062 $1,775 February 1, 2026 2704G 1062 $1,775 February 1, 2026 2849G 1062 Características y Comodidades de Modelo
Características Propias
- Cortina para ventanas
- Electrodomésticos de gran tamaño
- Entrada privada
- Lavamanos con tocador doble, baño principal
- Puertas con mirillas
Tasas y precios del modelo
Precio del Modelo
- $1,775Más Cargos
Depósito
- $750 deposit
Detalles y características de la Unidad 2527G
Cocina
- Lavavajillas
Características Propias
- Cortina para ventanas
- Electrodomésticos de gran tamaño
- Entrada privada
- Estilo antiguo
- Lavamanos con tocador doble, baño principal
- Puertas con mirillas
Tasas y precio de la unidad 2527G
Precio por Unidad
- $1,775Más Cargos
Depósito
- $750 deposit
Tasas y precios del modelo
Precio
- $1,775Más Cargos
Detalles y características de la Unidad 2704G
Cocina
- Lavavajillas
Características Propias
- Cortina para ventanas
- Electrodomésticos de gran tamaño
- Entrada privada
- Estilo antiguo
- Lavamanos con tocador doble, baño principal
- Puertas con mirillas
Tasas y precio de la unidad 2704G
Precio por Unidad
- $1,775Más Cargos
Depósito
- $750 deposit
Tasas y precios del modelo
Precio
- $1,775Más Cargos
Detalles y características de la Unidad 2849G
Cocina
- Lavavajillas
Características Propias
- Cortina para ventanas
- Electrodomésticos de gran tamaño
- Entrada privada
- Estilo antiguo
- Lavamanos con tocador doble, baño principal
- Puertas con mirillas
Tasas y precio de la unidad 2849G
Precio por Unidad
- $1,775Más Cargos
Depósito
- $750 deposit
Tasas y precios del modelo
Precio
- $1,775Más Cargos
Modelo de apartamento: The RidgeviewDesde $1,7753 Dormitorios, 1.5 Baños, 1062 sq ftDisponible February 1, 2026![]()
The Ridgeview - Plano 1 Unidad de apartamento: 2527GModelo de apartamento: The Ridgeview$1,7753 Dormitorios, 1.5 Baños, 1062 sq ftDisponible February 1, 2026Unidad de apartamento: 2704GModelo de apartamento: The Ridgeview$1,7753 Dormitorios, 1.5 Baños, 1062 sq ftDisponible February 1, 2026Unidad de apartamento: 2849GModelo de apartamento: The Ridgeview$1,7753 Dormitorios, 1.5 Baños, 1062 sq ftDisponible February 1, 2026The Ridgeview Renovated
3 Dormitorios, 1.5 Baños, 1062 pies²Galería del Modelo
Planos
Detalles de Diponibilidad
Fecha Disponibilidad Unidad Pies² Depósito Llamar para disponibilidad The Ridgeview Renovated 1062 pies² $750 Características y Comodidades de Modelo
Características Propias
- Electrodomésticos de gran tamaño
- Lavamanos con tocador doble, baño principal
Tasas y precios del modelo
Precio del Modelo
- Llame para PreciosMás Cargos
Depósito
- $750 deposit
Modelo de apartamento: The Ridgeview RenovatedLlame para Precios3 Dormitorios, 1.5 Baños, 1062 sq ftNo Disponible![]()
The Ridgeview Renovated - Plano 1 ![]()
The Ridgeview Renovated - Plano 2 ![]()
The Ridgeview Renovated - Plano 3
Programar una Visita
3D Tours
Información de la Comunidad
- Unidades
- Plantas
- Construido en
- Ver el sitio web de la propiedad
Está a punto de salir de ApartmentHomeLiving.com…
Términos de Arrendamiento
- Têrminos del Alquiler
Fees and Policies
Las tarifas que se indican a continuación son proporcionadas por la comunidad y pueden excluir servicios públicos o complementos. Todos los pagos se realizan directamente a la propiedad y no son reembolsables, salvo que se especifique lo contrario. Usa la Calculadora de Costos para determinar los gastos según tus necesidades.
Tasas Requeridas
Básicos de una sola vez
- Pagadero en el momento de la solicitud
- Application Fee Per ApplicantiCharged per applicant$45
Other Fees
Tasas por mascotas
- One-Time Pet FeeiCharged Per Pet$250
- Monthly Pet FeeiCharged Per Pet$35
- One-Time Pet FeeiCharged Per Pet$250
- Monthly Pet FeeiCharged Per Pet$35
Cat
Management must approve all pets. In addition, there will be a one time non-refundable pet fee of $250.00 and $35.00 pet rent, per month, per pet. A maximum of 2 pets are allowed in each home. Breed Restrictions Apply.
Dog
Management must approve all pets. In addition, there will be a one time non-refundable pet fee of $250.00 and $35.00 pet rent, per month, per pet. A maximum of 2 pets are allowed in each home. Breed Restrictions Apply.
2 pet count limit
Exención de responsabilidad sobre las tasas de propiedad: Based on community-supplied data and independent market research. Subject to change without notice. May exclude fees for mandatory or optional services and usage-based utilities.
Características y Facilidades
Servicios
- Mantenimiento En El Lugar
- Property Manager En El Lugar
- Transporte Público
Características de la Comunidad
- Sin Ascensor
Características al Aire Libre
- Parrilla
Recreación
- Parque Infantil
Características Interior
- Acceso A Internet De Alta Velocidad
- Libre De Humo
Características de la Sala de Estar
- Alfombra
- Oficina
- Suelos De Madera Maciza

Mapa
- Compras
- Universidades
- Supermercado
- Médicos
- Parques
- Transporte

Mapa
Horario e Información de Contacto
| Lunes | 8:30 am–5:00 pm |
| Martes | 8:30 am–5:00 pm |
| Miércoles | 11:00 am–5:00 pm |
| Jueves | 8:30 am–5:00 pm |
| Viernes | 8:30 am–5:00 pm |
| Sábado | 10:00 am–3:00 pm |
| Domingo | Cerrado |
¿Qué son las clasificaciones Walk Score®, Transit Score® y Bike Score®?
- Walk Score® mide la viabilidad peatonal de cualquier dirección.
- Transit Score® mide el acceso a transporte público.
- Bike Score® mide la infraestructura de rutas para bicicletas de cualquier dirección.
Preguntas Frecuentes sobre Fairway Ridge Apartments and Townhomes
¿Donde se encuentra Fairway Ridge Apartments and Townhomes?
Fairway Ridge Apartments and Townhomes se encuentran en 4998 W Forest Park Ave cerca de la zona Purnell en Baltimore, MD
¿Cuál es el rango de alquiler vigente en Fairway Ridge Apartments and Townhomes?
El rango de alquiler de Apartamentos estudio a 3 dormitorios en Fairway Ridge Apartments and Townhomes van desde $1,030 a $1,775
¿Qué horarios tiene la oficina de alquiler?
- El horario de oficina de Fairway Ridge Apartments and Townhomes es
- Lunes 8:30 am–5:00 pm
- Martes 8:30 am–5:00 pm
- Miércoles 11:00 am–5:00 pm
- Jueves 8:30 am–5:00 pm
- Viernes 8:30 am–5:00 pm
- Sábado 10:00 am–3:00 pm
- Domingo Cerrado
¿Se permiten mascotas?
Llámenos hoy para conocer nuestra política de mascotas y saber si las aceptamos.
Calificación Según Estilo de Vida:
Conocer más sobre la búsqueda de estilos de vidaOpiniones y valoraciones de Inquilinos
Disgusting place
June 5, 2025Renovations are beautiful and that’s it. Mice will take over your home, leaks, floods, property never follows up. Idk how many times I’ve been on the exterminator list. It’s ridiculous. Weed smoke everywhere they mark you repair orders complete when nothing is done. It’s ridiculous. I’ve caught literally 17 mice in my newly renovated home and seen more.Property Manager Responded
June 17, 2025We appreciate you bringing this experience to our attention. If you are willing, please contact us at (410) 448-0099 so we can work towards a resolution. We look forward to hearing from you.
Reseña de Apartments.com
I would just be cautious
December 19, 2023Firstly, I want to say that be aware that this is not a place that’s meant to stay in for long periods of time. They start off so nice, sweet and that part is somewhat the same. However, the care for your needs are not treated the same way. I would suggest being here for at least 2, no more than 3 years. Anything longer than that, they will no longer care about what you need to get done and just want to stay on top of getting the rent money. Refrigerators are small, as the replacement of the ...original one that was bigger. so keep in mind, you will market shop a lot. Ceiling non painted and even when they do repairs they never make it look like the original way. They do not paint. I’ve sent emails back to back, even about renewing and they have no answers. Couldn’t give me any info for there so called “glitch” in the system on why I had not gotten an updated lease. How all year we never went over a new lease. I would be cautious. I moved here and it was fine . The only thing I didn’t like was being on the hill. Anything further is literally them not paying attention to anything. Trust me, just don’t stay long .Property Manager Responded
December 26, 2023Hello, it's upsetting to hear that you did not receive the top-notch service we strive to provide. We would like to work towards a resolution, so if you are willing, please reach out to us at (410) 448-0099 or email me at mjohnson@liveatlantic.com to discuss this further.
Leer MásReseña de Apartments.com
Viewed
May 25, 2022Very nice and clean inside out property kept up office staff nice and professionalProperty Manager Responded
July 24, 2023Hi there, thank you so much for your positive comments about Fairway Ridge Apartments & Townhomes! If you ever need anything else from us, please feel free to give us a call or stop by. Have an awesome day!
Reseña de Apartments.com
2 Bedroom Townhome Experience
March 25, 2022This afternoon I attended the open house at Fairway; Devonia walked me through the complex and was very professional and pleasant. Throughout the tour Devonia was responsive to my inquiries and provided me with refreshments.The townhome that I viewed was newly renovated, very spacious and kempt. The neighborhood at Fairway appeared quiet and I enjoyed my stay; I recommend this complex to persons looking for an affordable starter home.Property Manager Responded
July 24, 2023Hi there, we are very happy to have provided you with such a positive experience!
Reseña de Apartments.com
DO NOT LIVE HERE
November 14, 2018I moved in here Feb. 2017! the maintenance is horrible. First we noticed the mice then we noticed the mold. Also my two young sons bedroom had a crack going from one side of the room to another side due to water leaking through the roof. I called 5 times in a course of 3 weeks when finally one night the WHOLE CEILING caved in. Thank God I wasnt allowing my kids to sleep in their room because they would have died. Huge chunks of ceiling landed on their beds we can literally look up and see the ...stars. I didnt even get in contact with leasing office until the next day! When they literally didnt do anything but simply apologized acting as if my kids safety didnt matter at all. Also I found out through one of the maintenance men that the leasing office screens my calls and they NEVER answer when I call. So please save your money and time and just dont do it to yourself. It has been a nightmare cant wait to leave.Property Manager Responded
November 16, 2018"We truly are sorry that your experience at our community did not match our efforts to provide an exceptional living environment. The wellbeing of our residents is of course a top priority of our team, but unfortunately some maintenance incidents, such as the one you describe, require more time to resolve than others. We would like the opportunity to discuss your concerns in person, so please visit the leasing office at your earliest convenience. Thank you."
Leer MásReseña de Apartments.com
Nightmare! Please stay away!
June 14, 2018I honestly wish there was an option of 0 stars- Please do not move to this establishment! They homes are infested with all types of bugs, maintenance is nice however, they are unable to provide the adequate services due to lack of equipment and qualification. I moved to this place in November of 2018, Lord knows i can not wait until my lease is up. I will be leaving this place immediately! When i initially moved in, I could not stay at the townhouse because I had no heat for 2 months. I had to ...continuously call the emergency line for them to keep lighting the pilot however, soon as the heat would turn off once it got to the set temperature, it would not turn back on. Needless to say, i had to stay elsewhere until it was fixed. I even purchased a small space heater on days I had no choice but to stay there. Then the oven stopped working, I called the rental office 6 times at min requesting help. They sent someone out 2 of the 6 time and said it was fixed- as always it was not. I had to throw away my food multiple times because the oven would just randomly cut off while i was baking. I did not have an operable oven for about 1 month. Currently the over works when it wants, I have to reset it the F3 or F5 error shows and eventually it starts to work. (maintenance advised i need a new oven however, they will not go through this because the oven is attached to the wall, not the stove) I currently have a hole in the ceiling of my hallway (again, called at min 6 times) requesting that someone come to repair it, the results of a constant water leak- definitely can be hazardous since the light and electrical wiring is in the ceiling. Have they came to fix it? Absolutely not, i have bucket that catches the water that comes in. Ridiculous i know! The hole is getting larger and larger. Next the Air! It does not work at all- maintenance again came to fix however, still does not work. Was advised by the rental office that is how all the homes, should get a AC Unit. Nightmare!!!Property Manager Responded
July 24, 2023We appreciate all reviews, and appreciate you giving us the chance to improve by providing us with this feedback.
Leer MásReseña de Apartments.com
Horrible Maintenance Service
December 13, 2017I’ve been a tenant at Fairway Ridge since September 2017...I was given a document to complete to list any and all repairs to the townhome that I was moving into. First thing that should’ve caused a red flag was that they didn’t allow a walk through prior to moving in. So I completed the document and turned it into the rental office...it took them over two weeks to even address anything on the list...in fact I had to call several time to the rental office before maintenance ever came. Once ...maintenance came I wasnt provided any documentation showing what was completed or repaired. And it’s now December 2017 and I’m still waiting for repairs to be addressed and not to mention they have a pest issue that they haven’t addressed either...I don’t recommend anyone to move here!Property Manager Responded
December 18, 2017We're very sorry that your experience while living in our community hasn't been as positive as we would have hoped. You can definitely give us a call or come into the office during business hours to check on the status of any of your requests. It is common that apartment communities are sometimes unable to show future residents the actual home they will be living in, because these are usually occupied at that time. We hope we will be able to assist you when you reach out so we can leave you with a better impression. Thank you.
Leer MásReseña de Apartments.com
Escuelas Cercanas
Forest Park High
Dickey Hill Elementary/Middle
K.A.S.A. (Knowledge And Success Academy)
Bluford Drew Jemison Stem Academy West
Sitios de Interés
Tiempo y distancia desde Fairway Ridge Apartments and Townhomes.
Arte, Museos y Monumentos
Grandes Superficies de Ventas
Autozone
Aldi
Macy's
Universidad
Tiendas
Aldi
Save-A-Lot
Food City
Hospitales
University Of Maryland Rehabilitation & Orthopaedic Institute
Levindale Hebrew Geriatric Center And Hospital
Sinai Hospital Of Baltimore
Parques y opciones de recreación
Fairway Ridge Apartments and Townhomes tiene 3 parques en un radio de 5.6 millas, incluyendo Howard Peter Rawlings Conservatory and Botanical Gardens, Maryland Zoo in Baltimore, y Federal Hill Park.
Restaurantes
Centros Comerciales
Fairway Ridge Apartments and Townhomes tiene 5 centros comerciales en un radio de 1.8 millas.
Estaciones de Tránsito
Barrios cercanos
Rango de Precios de los Alquileres en la Zona
| Dormitorios | Precio Promedio | Más barato | Más caro |
|---|---|---|---|
| Apartamentos Estudio en Baltimore | $1,465 | $550 | $6,000 |
| Apartamentos 1 Dormitorios en Baltimore | $1,652 | $533 | $6,750 |
| Apartamentos 2 Dormitorios en Baltimore | $1,862 | $899 | $6,921 |
| Apartamentos 3 Dormitorios en Baltimore | $2,286 | $1,020 | $6,660 |
| Apartamentos 4 Dormitorios en Baltimore | $2,500 | $595 | $4,250 |
| Apartamentos 5 Dormitorios en Baltimore | $1,780 | $1,780 | $1,780 |
| Apartamentos 6 Dormitorios en Baltimore | $4,250 | $4,250 | $4,250 |
Ver Apartamentos más destacados en Baltimore
Por el Precio
- Apartamentos Barato en Baltimore
- Apartamentos en Baltimore menos de $600
- Apartamentos en Baltimore menos de $700
- Apartamentos en Baltimore menos de $800
- Apartamentos en Baltimore menos de $900
- Apartamentos en Baltimore menos de $1000
- Apartamentos en Baltimore menos de $1200
- Apartamentos en Baltimore menos de $1500
- Apartamentos en Baltimore menos de $2000
- Apartamentos de Lujo en Baltimore
Por tipo de comunidad
- Apartamentos en alquiler por el propietario en Baltimore
- Apartamentos en Baltimore con Oferta Especial
- Apartamentos en Baltimore Más Valorados
- Apartamentos en Baltimore Viviendas Corporativas
- Apartamentos en Baltimore Amueblado
- Apartamentos en Baltimore Reja de Entrada Automática
- Apartamentos en Baltimore Loft
- Apartamentos en Baltimore De Bajos Ingresos
- Apartamentos en Baltimore Militar
- Nuevos Apartamentos en Baltimore
- Apartamentos en Baltimore Personas Mayores
- Apartamentos en Baltimore Contratos de Corto Plazo
- Apartamentos en Baltimore Estudiante
- Apartamentos en Baltimore con Utilidades Incluidas
Por las Características
- Apartamentos en Baltimore con Pisos de Madera
- Apartamentos en Baltimore con Lavandería
- Apartamentos en Baltimore con Estacionamiento Disponible
- Apartamentos en Baltimore Se Permiten Mascotas
- Apartamentos en Baltimore con Piscina(s)
- Apartamentos en Baltimore con Lavadora y Secadora
- Apartamentos en Baltimore con Estaciones de Carga EV










2 pet count limit