Photos












- 2–3 Dormitorios
- $1,225-$1,705Precios de alquiler
- 1,008–1,204Pies cuadrados
Acerca Hampton Gardens
Soy el PROPIETARIO, y no un agente de alquiler. Disponible del de septiembre Primer. Este apartamento está ubicado el Primer y 2nd piso, en un hermoso estilo victoriano 2-Family casa en la tranquila área de Oak Square. Tengo en cuenta que sea el Mejor cuadra en Brighton, tranquilo, calle bordeada de árboles. - Cuatro (4) habitaciones. Dos (2) habitaciones en el primer piso y dos (2) habitaciones en el segundo piso Si tú es un grupo de 3, uno de los inquilinos actuales gustaría estancia - grande, hermosa terraza tiene vista a gran patio apartado. - Moderna cocina con todas las comodidades. - estilo victoriano Sala de estar y comedor con espectáculo chimenea. - Pisos de madera noble recientemente renovadas. - porche delantero cerrado. - 1 baño. - Lavadora y secadora en el apartamento. - Garaje - Fácil en o estacionamiento fuera de la calle y no se requiere calcomanías. - A solo unos minutos a pie a varias líneas de autobuses que incluyen Express Bus al centro de la ciudad. Estos son los 57 a Kenmore metros; la 64 hacia University y al Kendall Square en Cambridge; la 501 servicio de autobús hasta el centro de Boston; y las 503 autobús express a Copley Sq en Back Bay. A solo $3.200 mensuales! Los servicios públicos no están incluidos. La calefacción está a gas. Además, hay todas las nuevas ventanas con aislamiento. Necesito Primer y último mes antes de la mudanza. SIN CARGO. He sido propietario de esta casa por más de 30 años y los de dos problemas en el pasado que han evitado grupos de alquiler de esta casa: (1) Solo un baño; (2) no en T. Antes de responder a este anuncio, por favor, asegúrate de Oklahoma con estos problemas. Además, por favor decirme sobre tu grupo y lo que es importante para ti en el lugar que vivir. No deseo pierda tiempo en todo el mundo.
Hampton Gardens se encuentra en el Barrio Lindsay Park y el código postal 53225 de Milwaukee, WI.
Información de contacto de la propiedad
Precios y Disponibilidad de Plano
Hampton Gardens ofrece apartamentos de 2 a 3 Dormitorios desde $1,225 con 1,008–1,204 pies cuadrados. Aquí está el precio actual y la disponibilidad:
¡Nuevo! Mapa Interactivo de Propiedades
2 Dormitorios
Garden Terrace
$1,225
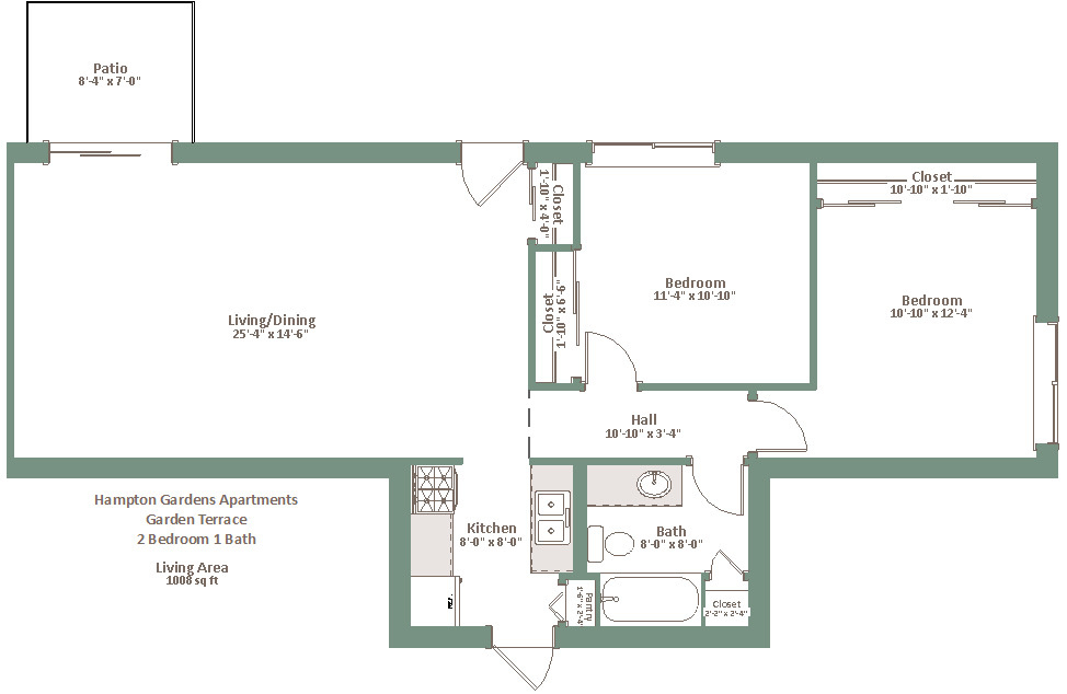
2 Dormitorios, 1 Baño, 1008 pies²Disponible AhoraGalería del Modelo
Fotos
Detalles de Diponibilidad
Precio Fecha Disponibilidad Unidad Pies² Depósito $1,225 Disponible Ahora Bldg 8519 #1 1008 $500 Características y Comodidades de Modelo
Características
- Balcón
- Espacio de almacenamiento
- Libre de Humo
- Ventanas
Cocina
- Nevera
Tasas y precio de la unidad Bldg 8519 #1
Precio por Unidad
- $1,225
Depósito
- $500 deposit
Tasas y precios del modelo
Precio
- $1,225
Modelo de apartamento: Garden Terrace$1,2252 Dormitorios, 1 Baño, 1008 sq ftDisponible Ahora![]()
Garden Terrace - Imagen 1 Unidad de apartamento: Bldg 8519 #1Modelo de apartamento: Garden Terrace$1,2252 Dormitorios, 1 Baño, 1008 sq ftDisponible Ahora3 Dormitorios
Hampton
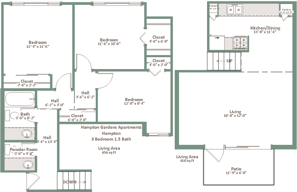
3 Dormitorios, 1.5 Baños, 1065 pies²Galería del Modelo
Fotos
Detalles de Diponibilidad
Precio Fecha Disponibilidad Unidad Pies² $1,655 Llamar para disponibilidad Hampton 1065 pies² Características y Comodidades de Modelo
Características
- Balcón
- Espacio de almacenamiento
- Libre de Humo
- Ventanas
Cocina
- Nevera
Tasas y precios del modelo
Precio del Modelo
- $1,655
Modelo de apartamento: Hampton$1,6553 Dormitorios, 1.5 Baños, 1065 sq ftNo Disponible![]()
Hampton - Imagen 1 Parkway Loft
3 Dormitorios, 1.5 Baños, 1204 pies²Galería del Modelo
Fotos
Detalles de Diponibilidad
Precio Fecha Disponibilidad Unidad Pies² $1,705 Llamar para disponibilidad Parkway Loft 1204 pies² Características y Comodidades de Modelo
Características
- Balcón
- Espacio de almacenamiento
- Libre de Humo
- Ventanas
Cocina
- Nevera
Tasas y precios del modelo
Precio del Modelo
- $1,705
Modelo de apartamento: Parkway Loft$1,7053 Dormitorios, 1.5 Baños, 1204 sq ftNo Disponible![]()
Parkway Loft - Imagen 1
Programar una Visita
3D Tours
Información de la Comunidad
- Unidades
- Plantas
- Construido en
- Ver el sitio web de la propiedad
Está a punto de salir de ApartmentHomeLiving.com…
Fees and Policies
Parking Info and Fees
- Surface LotiParking Available
Exención de responsabilidad sobre las tasas de propiedad: Based on community-supplied data and independent market research. Subject to change without notice. May exclude fees for mandatory or optional services and usage-based utilities.
Características y Facilidades
Servicios
- Reciclaje
- Servicios En Línea
- Acceso Las 24 Horas
- Instalaciones De Lavandería
Características Interior
- Balcón
- Ventanas
- Espacio De Almacenamiento
- Libre De Humo
Características de la Cocina
- Nevera
Características al Aire Libre
- Patio

Mapa
- Compras
- Universidades
- Supermercado
- Médicos
- Parques

Mapa
¿Qué son las clasificaciones Walk Score®, Transit Score® y Bike Score®?
- Walk Score® mide la viabilidad peatonal de cualquier dirección.
- Transit Score® mide el acceso a transporte público.
- Bike Score® mide la infraestructura de rutas para bicicletas de cualquier dirección.
Preguntas Frecuentes sobre Hampton Gardens
¿Donde se encuentra Hampton Gardens?
Hampton Gardens se encuentran en 8517 W Grantosa Dr cerca de la zona Lindsay Park en Milwaukee, WI
¿Cuál es el rango de alquiler vigente en Hampton Gardens?
2 dormitorio en Hampton Gardens a partir de $1,225. ¡Llámenos para obtener más información!
¿Se permiten mascotas?
Llámenos hoy para conocer nuestra política de mascotas y saber si las aceptamos.
Opiniones y valoraciones de Inquilinos
Great Place!
May 6, 2019This place is great! I hosted my annual mardi gras party at my place. We had so much fun. We lit fireworks accidentally in the house, but everybody got a laugh out of it. I also am a bit mad because a worker said I couldn't have my cat in the apartment. She claimed it was a lion! Outrageous!! This place is very great though I enjoy it here.Reseña de Apartments.com
Escuelas Cercanas
Morse Mid
Emerson School
Grantosa Drive School
Rufus King International High School
Marshall High
Sitios de Interés
Tiempo y distancia desde Hampton Gardens.
Arte, Museos y Monumentos
Grandes Superficies de Ventas
Walgreens
Walmart
Meijer
Universidad
Tiendas
Sentry Foods
Meijer
Sendik's Food Market
Hospitales
Parques y opciones de recreación
Hampton Gardens tiene 4 parques en un radio de 7.8 millas, incluyendo Havenwoods State Forest, Brown Deer Park, Mitchell Park Conservatory, y Lake Park.
Centros Comerciales
Hampton Gardens tiene 5 centros comerciales en un radio de 1.3 millas.
Barrios cercanos
Rango de Precios de los Alquileres en la Zona
| Dormitorios | Precio Promedio | Más barato | Más caro |
|---|---|---|---|
| Apartamentos Estudio en Milwaukee | $1,332 | $655 | $3,783 |
| Apartamentos 1 Dormitorios en Milwaukee | $1,633 | $474 | $5,355 |
| Apartamentos 2 Dormitorios en Milwaukee | $2,102 | $556 | $7,512 |
| Apartamentos 3 Dormitorios en Milwaukee | $2,781 | $750 | $10,000+ |
| Apartamentos 4 Dormitorios en Milwaukee | $2,670 | $870 | $7,500 |
| Apartamentos 5 Dormitorios en Milwaukee | $6,133 | $2,900 | $10,000+ |
Ver Apartamentos más destacados en Milwaukee
Por el Precio
- Apartamentos Barato en Milwaukee
- Apartamentos en Milwaukee menos de $500
- Apartamentos en Milwaukee menos de $600
- Apartamentos en Milwaukee menos de $700
- Apartamentos en Milwaukee menos de $800
- Apartamentos en Milwaukee menos de $900
- Apartamentos en Milwaukee menos de $1000
- Apartamentos en Milwaukee menos de $1200
- Apartamentos en Milwaukee menos de $1500
- Apartamentos en Milwaukee menos de $2000
- Apartamentos de Lujo en Milwaukee
Por tipo de comunidad
- Apartamentos en alquiler por el propietario en Milwaukee
- Apartamentos en Milwaukee con Oferta Especial
- Apartamentos en Milwaukee Más Valorados
- Apartamentos en Milwaukee Viviendas Corporativas
- Apartamentos en Milwaukee Amueblado
- Apartamentos en Milwaukee Reja de Entrada Automática
- Apartamentos en Milwaukee Loft
- Apartamentos en Milwaukee De Bajos Ingresos
- Apartamentos en Milwaukee Militar
- Nuevos Apartamentos en Milwaukee
- Apartamentos en Milwaukee Personas Mayores
- Apartamentos en Milwaukee Contratos de Corto Plazo
- Apartamentos en Milwaukee Estudiante
- Apartamentos en Milwaukee con Utilidades Incluidas
Por las Características
- Apartamentos en Milwaukee con Pisos de Madera
- Apartamentos en Milwaukee con Lavandería
- Apartamentos en Milwaukee con Estacionamiento Disponible
- Apartamentos en Milwaukee Se Permiten Mascotas
- Apartamentos en Milwaukee con Piscina(s)
- Apartamentos en Milwaukee con Lavadora y Secadora
- Apartamentos en Milwaukee con Estaciones de Carga EV



