Photos


















- 1–3 Dormitorios
- $899-$1,400Precios de alquiler
- 642–1,168Pies cuadrados
Promociones
Rent Special!~~Up to a full months rent free
Acerca Lake Marina Apartments
SOLEADOS APARTAMENTO EN ESQUINA! Bienvenido a la mejor experiencia residencial. Este lujoso apartamento ofrece ventanas del piso al techo con pisos de madera en toda la propiedad. La elegante cocina cuenta con encimeras de cuarzo, electrodomésticos GE de acero inoxidable, y un elegante placa para salpicaduras de vidrio. Disfruta de la lavandería en el apartamento, además de dos baños modernos. World comodidades de primera clase incluyen el salón de eventos sociales en la azotea con vistas panorámicas de la ciudad que cuenta con una piscina climatizada, cabañas y salas de cine. Haz ejercicio en el amplio gimnasio con estudio de yoga y de spinning, o deja que tu inner-chef disfruta de las parrillas en el patio. Este complejo que admite mascotas cuenta con tus garras cubierto con un spa para mascotas autoservicio, y parque para perros al aire libre. A minutos de la nueva Hub en Causeway, compuesto de un supermercado 65.000sqft, salas de cine ArcLight y restaurantes. Convenientemente ubicado cerca del distrito financiero, Boston Common y MGH con conserjería las 24 horas. Estacionamiento en garaje disponible.
Lake Marina Apartments se encuentra en el Barrio East Warren y el código postal 46229 de Indianapolis, IN. Esta comunidad está gestionada profesionalmente por Van Rooy Properties
Características personalizadas
- Lago de 18 Acres
- Secador de la lavadora en unidades
- Tejido de alfombra
- Aire acondicionado centralizado
- Vigilancia
- Lavavajillas
- Triturador de basura
- Espacio de almacenaje adicional*
- pesca
- Pasamanos
- Techos altos*
- Vista del lago
- vestidores amplios
- Renovado nuevamente
- Servicio de lavadero
- Refrigerador
- Planos de planta espaciosos
- Planos de planta tipo loft únicos
- Escuelas en el municipio de Warren
- Revestimientos para ventanas
Información de contacto de la propiedad
Precios y Disponibilidad de Plano
Lake Marina Apartments ofrece apartamentos de 1 a 3 Dormitorios desde $899 con 642–1,168 pies cuadrados. Aquí está el precio actual y la disponibilidad:
¡Nuevo! Mapa Interactivo de Propiedades
1 Dormitorio
The Runabout
$899
1 Dormitorio, 1 Baño, 642 pies²Disponible AhoraGalería del Modelo
Planos
Detalles de Diponibilidad
Precio Fecha Disponibilidad Unidad Pies² $899 Disponible Ahora The Runabout 642 pies² Características y Comodidades de Modelo
Características
- Aire acondicionado
- Ventiladores de techo
Cocina
- Lavavajillas
- Zona de eliminación de desechos
Espacio Vital
- Cubiertas de ventanas
- Vestidores
Tasas y precios del modelo
Precio del Modelo
- $899
Modelo de apartamento: The Runabout$8991 Dormitorio, 1 Baño, 642 sq ftDisponible Ahora![]()
The Runabout - Plano 1 ![]()
The Runabout - Plano 2 The Cabin Cruiser
$950
1 Dormitorio, 1 Baño, 761 pies²Disponible AhoraGalería del Modelo
Planos
Detalles de Diponibilidad
Precio Fecha Disponibilidad Unidad Pies² $950 Disponible Ahora The Cabin Cruiser 761 pies² Características y Comodidades de Modelo
Características
- Aire acondicionado
- Ventiladores de techo
Cocina
- Lavavajillas
- Zona de eliminación de desechos
Espacio Vital
- Cubiertas de ventanas
- Vestidores
Tasas y precios del modelo
Precio del Modelo
- $950
Modelo de apartamento: The Cabin Cruiser$9501 Dormitorio, 1 Baño, 761 sq ftDisponible Ahora![]()
The Cabin Cruiser - Plano 1 ![]()
The Cabin Cruiser - Plano 2 2 Dormitorios
The Catamaran
$1,200
2 Dormitorios, 2 Baños, 913 pies²Disponible AhoraGalería del Modelo
Planos
Detalles de Diponibilidad
Precio Fecha Disponibilidad Unidad Pies² $1,200 Disponible Ahora The Catamaran 913 pies² Características y Comodidades de Modelo
Características
- Aire acondicionado
- Ventiladores de techo
Cocina
- Lavavajillas
- Zona de eliminación de desechos
Espacio Vital
- Cubiertas de ventanas
- Vestidores
Tasas y precios del modelo
Precio del Modelo
- $1,200
Modelo de apartamento: The Catamaran$1,2002 Dormitorios, 2 Baños, 913 sq ftDisponible Ahora![]()
The Catamaran - Plano 1 ![]()
The Catamaran - Plano 2 The Cuddy
$1,225
2 Dormitorios, 1.5 Baños, 996 pies²Disponible AhoraGalería del Modelo
Planos
Detalles de Diponibilidad
Precio Fecha Disponibilidad Unidad Pies² $1,225 Disponible Ahora The Cuddy 996 pies² Características y Comodidades de Modelo
Características
- Aire acondicionado
- Ventiladores de techo
Cocina
- Lavavajillas
- Zona de eliminación de desechos
Espacio Vital
- Cubiertas de ventanas
- Vestidores
Tasas y precios del modelo
Precio del Modelo
- $1,225
Modelo de apartamento: The Cuddy$1,2252 Dormitorios, 1.5 Baños, 996 sq ftDisponible Ahora![]()
The Cuddy - Plano 1 ![]()
The Cuddy - Plano 2 3 Dormitorios
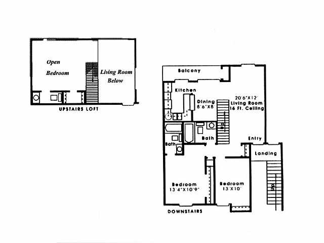
The Yacht
$1,400
3 Dormitorios, 2.5 Baños, 1168 pies²Disponible AhoraGalería del Modelo
Planos
Detalles de Diponibilidad
Precio Fecha Disponibilidad Unidad Pies² $1,400 Disponible Ahora The Yacht 1168 pies² Características y Comodidades de Modelo
Características
- Aire acondicionado
- Ventiladores de techo
Cocina
- Lavavajillas
- Zona de eliminación de desechos
Espacio Vital
- Cubiertas de ventanas
- Vestidores
Tasas y precios del modelo
Precio del Modelo
- $1,400
Modelo de apartamento: The Yacht$1,4003 Dormitorios, 2.5 Baños, 1168 sq ftDisponible Ahora![]()
The Yacht - Plano 1 ![]()
The Yacht - Plano 2
Programar una Visita
Matterport 3D Tours
Información de la Comunidad
- Renovado en
- Unidades
- Plantas
- Construido en
- Ver el sitio web de la propiedad
Está a punto de salir de ApartmentHomeLiving.com…
Términos de Arrendamiento
- Têrminos del Alquiler
Fees and Policies
Las tarifas que figuran a continuación se basan en datos facilitados por la comunidad y pueden excluir tasas y servicios adicionales. Usa la calculadora para añadirlos a la renta base.
Tasas Requeridas
Básicos de una sola vez
- A pagar en el momento de la mudanza
- Administrative Fee$150
- Pagadero en el momento de la solicitud
- Application Fee Per Applicant$35
Pet Policy and Fees
Cats
- 2 Pet Limit
- $35 Monthly Pet Rent
- $350 Fee
- 65 Lb Weight Limit
Dogs
- 2 Pet Limit
- $35 Monthly Pet Rent
- $350 Fee
- 65 Lb Weight Limit
Parking Info and Fees
- Other
Exención de responsabilidad sobre las tasas de propiedad: Based on community-supplied data and independent market research. Subject to change without notice. May exclude fees for mandatory or optional services and usage-based utilities.
Características y Facilidades
Servicios
- Mantenimiento En El Lugar
- Property Manager En El Lugar
- Transporte Público
- Instalaciones De Lavandería
Características de la Comunidad
- Sin Ascensor
Características al Aire Libre
- Patio
- Patio
Recreación
- Cancha De Baloncesto
- Parque Infantil
- Piscina
Características Interior
- Balcón
- Espacio De Almacenamiento
- Calefacción
- Ventiladores De Techo
- Bañera/Ducha
- Barandillas
- Lavadora/Secadora
- Aire Acondicionado
- Accesible En Sillas De Ruedas
Características de la Cocina
- Fogón
- Nevera
- Lavavajillas
- Zona De Eliminación De Desechos
- Cocina
Características de la Sala de Estar
- Vestidores
- Techos Altos
- Comedor
- Cubiertas De Ventanas
- Suelos De Vinilo
- Alfombra
- Diseño De Loft

Mapa
- Compras
- Universidades
- Supermercado
- Médicos
- Parques

Mapa
Horario e Información de Contacto
| Lunes | 8:00 am–6:00 pm |
| Martes | 8:00 am–6:00 pm |
| Miércoles | 8:00 am–6:00 pm |
| Jueves | 8:00 am–6:00 pm |
| Viernes | 8:00 am–6:00 pm |
| Sábado | 9:00 am–6:00 pm |
| Domingo | Cerrado |
Desplazarse
Walk Score®
34 / 100
Requiere carro
La mayoría de los trámites diarios requieren un carro.
Bike Score®
42 / 100
Se puede montar en bicicleta
Mínima infraestructura para bicicletas.
Transit Score®
25 / 100
Transporte público básico
Algunas opciones de transporte público cercano.
¿Qué son las clasificaciones Walk Score®, Transit Score® y Bike Score®?
- Walk Score® mide la viabilidad peatonal de cualquier dirección.
- Transit Score® mide el acceso a transporte público.
- Bike Score® mide la infraestructura de rutas para bicicletas de cualquier dirección.
Preguntas Frecuentes sobre Lake Marina Apartments
¿Donde se encuentra Lake Marina Apartments?
Lake Marina Apartments se encuentran en 9515 Shoreland Ln cerca de la zona East Warren en Indianapolis, IN
¿Cuál es el rango de alquiler vigente en Lake Marina Apartments?
El rango de alquiler de Apartamentos 1 dormitorios a 3 dormitorios en Lake Marina Apartments van desde $899 a $1,400
¿Qué horarios tiene la oficina de alquiler?
- El horario de oficina de Lake Marina Apartments es
- Lunes 8:00 am–6:00 pm
- Martes 8:00 am–6:00 pm
- Miércoles 8:00 am–6:00 pm
- Jueves 8:00 am–6:00 pm
- Viernes 8:00 am–6:00 pm
- Sábado 9:00 am–6:00 pm
- Domingo Cerrado
¿Se permiten mascotas?
Llámenos hoy para conocer nuestra política de mascotas y saber si las aceptamos.
¿Hay alguna promoción de renta?
La promoción que hay actualmente para la renta en Lake Marina Apartments es: Rent Special!~~Up to a full months rent free
Calificación Según Estilo de Vida:
Conocer más sobre la búsqueda de estilos de vidaOpiniones y valoraciones de Inquilinos
Don’t rent here
November 17, 2022Mice and roach infested. I lived here for 3 years and management changed, not improving much. The violence in area is getting worst. It’s just not worth staying here anymore.Reseña de Apartments.com
Escuelas Cercanas
Warren Central High School
Creston Middle School
Lakeside Elementary School
Sitios de Interés
Tiempo y distancia desde Lake Marina Apartments.
Arte, Museos y Monumentos
Grandes Superficies de Ventas
Lowe's
Aldi
Walgreens
Universidad
Ivy Tech Community College - Downtown Indianapolis Campus
Tiendas
Aldi
Kroger
Save-A-Lot
Hospitales
Bases Militares
Naval Avionics Center
Parques y opciones de recreación
Lake Marina Apartments tiene 5 parques en un radio de 9.6 millas, incluyendo Climb Time Indy, Benjamin Harrison House, SpaceQuest Planetarium, Garfirled Conservatory, y White River State Park.
Restaurantes
Centros Comerciales
Lake Marina Apartments tiene 5 centros comerciales en un radio de 1.3 millas.
Barrios cercanos
Rango de Precios de los Alquileres en la Zona
| Dormitorios | Precio Promedio | Más barato | Más caro |
|---|---|---|---|
| Apartamentos Estudio en Indianapolis | $1,173 | $581 | $5,271 |
| Apartamentos 1 Dormitorios en Indianapolis | $1,377 | $581 | $4,143 |
| Apartamentos 2 Dormitorios en Indianapolis | $1,661 | $316 | $5,706 |
| Apartamentos 3 Dormitorios en Indianapolis | $2,023 | $999 | $8,523 |
| Apartamentos 4 Dormitorios en Indianapolis | $1,845 | $600 | $7,318 |
| Apartamentos 5 Dormitorios en Indianapolis | $11,172 | $1,000 | $10,000+ |
Ver Apartamentos más destacados en Indianapolis
Por el Precio
- Apartamentos Barato en Indianapolis
- Apartamentos en Indianapolis menos de $500
- Apartamentos en Indianapolis menos de $600
- Apartamentos en Indianapolis menos de $800
- Apartamentos en Indianapolis menos de $900
- Apartamentos en Indianapolis menos de $1000
- Apartamentos en Indianapolis menos de $1200
- Apartamentos en Indianapolis menos de $1500
- Apartamentos en Indianapolis menos de $2000
- Apartamentos de Lujo en Indianapolis
Por tipo de comunidad
- Apartamentos en alquiler por el propietario en Indianapolis
- Apartamentos en Indianapolis con Oferta Especial
- Apartamentos en Indianapolis Más Valorados
- Apartamentos en Indianapolis Viviendas Corporativas
- Apartamentos en Indianapolis Amueblado
- Apartamentos en Indianapolis Reja de Entrada Automática
- Apartamentos en Indianapolis Loft
- Apartamentos en Indianapolis De Bajos Ingresos
- Apartamentos en Indianapolis Militar
- Nuevos Apartamentos en Indianapolis
- Apartamentos en Indianapolis Personas Mayores
- Apartamentos en Indianapolis Contratos de Corto Plazo
- Apartamentos en Indianapolis Estudiante
- Apartamentos en Indianapolis con Utilidades Incluidas
Por las Características
- Apartamentos en Indianapolis con Pisos de Madera
- Apartamentos en Indianapolis con Lavandería
- Apartamentos en Indianapolis con Estacionamiento Disponible
- Apartamentos en Indianapolis Se Permiten Mascotas
- Apartamentos en Indianapolis con Piscina(s)
- Apartamentos en Indianapolis con Lavadora y Secadora
- Apartamentos en Indianapolis con Estaciones de Carga EV




