Photos














- Restricciones de Ingresos
- 2–4 Dormitorios
- $1,002-$1,350Precios de alquiler
- 886–1,352Pies cuadrados
Acerca Lexington Hills Apartments
¡La vida de lujo que te puedes permitir! En Lexington Hills Apartments, ofrecemos apartamentos de 2, 3 y 4 habitaciones. Estamos convenientemente ubicados cerca de escuelas, tiendas, restaurantes y las principales autopistas. Nuestros amplios apartamentos tienen todas las comodidades que podrías desear: estacionamiento cubierto, calefacción y aire acondicionado centralizados, patio/balcón, almacenaje exterior, microondas, lavaplatos, minipersianas, área de juegos para niños, cancha de básquetbol, piscina, conexión Wi-Fi gratuito, sala comunitaria y administración en el lugar. ¡Ven a disfrutar de las hermosas vistas de Cheyenne en Lexington Hills y conviértelo en tu hogar! Se acepta el plan de viviendas subsidiadas. Horarios de contacto: De lunes a viernes de 9 a. m a 4 p. m. Se requiere cita para la tarde y los fines de semana (RLNE134630)
Lexington Hills Apartments se encuentra en el código postal 82007 de Cheyenne, WY. Esta comunidad está gestionada profesionalmente por Seldin Company
Información de contacto de la propiedad

Precios y Disponibilidad de Plano
Lexington Hills Apartments ofrece apartamentos de 2 a 4 Dormitorios desde $1,002 con 886–1,352 pies cuadrados. Aquí está el precio actual y la disponibilidad:
¡Nuevo! Mapa Interactivo de Propiedades
2 Dormitorios
Two Bedroom
$1,002
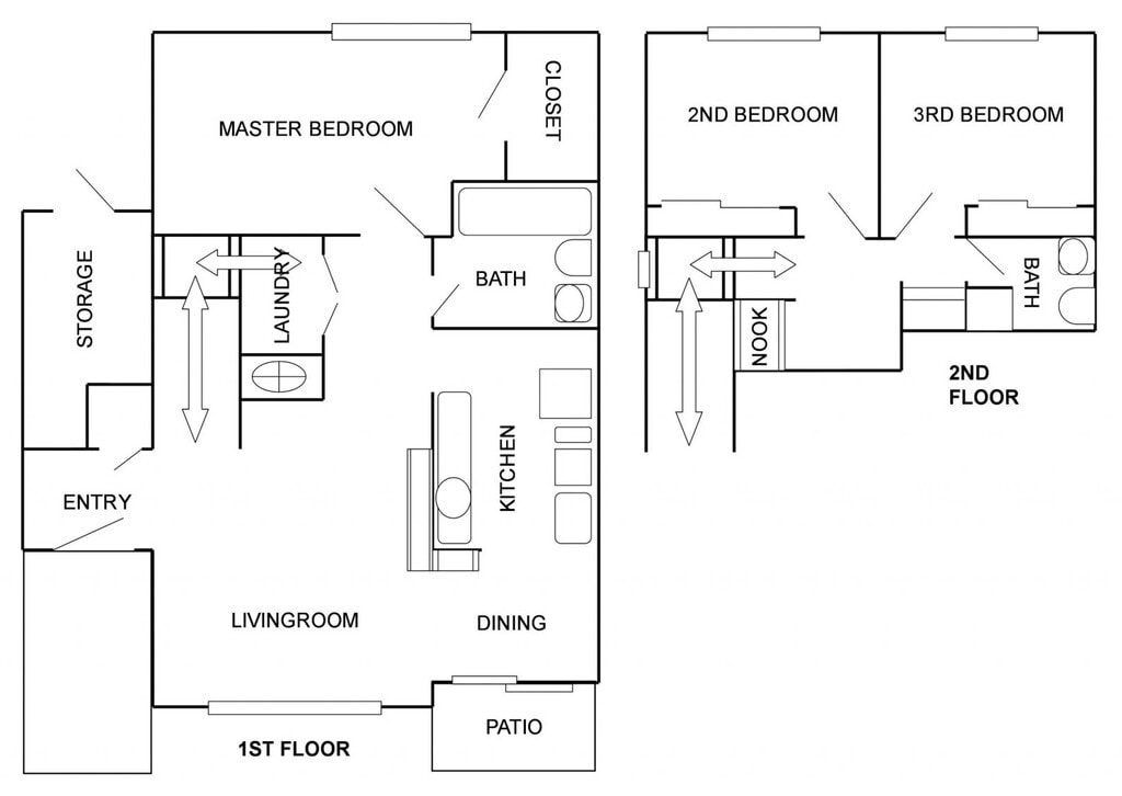
2 Dormitorios, 1 Baño, 886 pies²Disponible AhoraGalería del Modelo
Planos
Detalles de Diponibilidad
Precio Fecha Disponibilidad Unidad Pies² $1,002 Disponible Ahora Two Bedroom 886 Detalles y características de la Unidad Two Bedroom
Características
- Acceso a Internet de alta velocidad
- Aire acondicionado
- Conexiones para lavadora/secadora
- Libre de humo
- Ventiladores de techo
Cocina
- Lavavajillas
- Zona de eliminación de desechos
Espacio Vital
- Alfombra
- Comedor
- Suelos de vinilo
Características Propias
- Estacionamiento cubierto y lavandería en el lugar
Tasas y precio de la unidad Two Bedroom
Precio por Unidad
- $1,002
Ver detalles y estimación de rentaTasas y precios del modelo
Precio
- $1,002
Modelo de apartamento: Two Bedroom$1,0022 Dormitorios, 1 Baño, 886 sq ftDisponible Ahora![]()
Two Bedroom - Plano 1 Unidad de apartamento: Two BedroomModelo de apartamento: Two Bedroom$1,0022 Dormitorios, 1 Baño, 886 sq ftDisponible Ahora3 Dormitorios
Three Bedroom Townhome
$1,165
3 Dormitorios, 2 Baños, 1164 pies²Disponible AhoraGalería del Modelo
Planos
Detalles de Diponibilidad
Precio Fecha Disponibilidad Unidad Pies² $1,165 Disponible Ahora Three Bedroom Flat 1164 Características y Comodidades de Modelo
Características
- Accesible en sillas de ruedas
- Aire acondicionado
- Balcón
- Calefacción
- Conexiones para lavadora/secadora
- Lavadora/secadora
- Libre de Humo
- Preinstalación de cables
- Wifi
Cocina
- Cocina
- Lavavajillas
- Microondas
Tasas y precio de la unidad Three Bedroom Flat
Precio por Unidad
- $1,165
Ver detalles y estimación de rentaTasas y precios del modelo
Precio
- $1,165
Modelo de apartamento: Three Bedroom Townhome$1,1653 Dormitorios, 2 Baños, 1164 sq ftDisponible Ahora![]()
Three Bedroom Townhome - Plano 1 Unidad de apartamento: Three Bedroom FlatModelo de apartamento: Three Bedroom Townhome$1,1653 Dormitorios, 2 Baños, 1164 sq ftDisponible Ahora4 Dormitorios
$1,350
Four Bedroom Townhome
4 Dormitorios, 2 Baños, 1352 pies²Disponible AhoraDetalles de Diponibilidad
Precio Fecha Disponibilidad Unidad Pies² $1,350 Disponible Ahora Four Bedroom Townhome 1352 Detalles y características de la Unidad Four Bedroom Townhome
Características
- Libre de humo
Tasas y precio de la unidad Four Bedroom Townhome
Precio por Unidad
- $1,350
Ver detalles y estimación de rentaUnidad de apartamento: Four Bedroom TownhomeModelo de apartamento: Four Bedroom Townhome$1,3504 Dormitorios, 2 Baños, 1352 sq ftDisponible Ahora
Programar una Visita
Información de la Comunidad
- Unidades
- Plantas
- Construido en
- Ver el sitio web de la propiedad
Fees and Policies
Las tarifas que se indican a continuación son proporcionadas por la comunidad y pueden excluir servicios públicos o complementos. Todos los pagos se realizan directamente a la propiedad y no son reembolsables, salvo que se especifique lo contrario. Usa la Calculadora de Costos para determinar los gastos según tus necesidades.
Other Fees
Tasas por mascotas
- No Aceptan Mascotas
Exención de responsabilidad sobre las tasas de propiedad: Based on community-supplied data and independent market research. Subject to change without notice. May exclude fees for mandatory or optional services and usage-based utilities.
Características y Facilidades
Características Propias
- Estacionamiento cubierto y lavandería en el lugar
Servicios
- Property Manager En El Lugar
- Recolección De Basura: Puerta A Puerta
- Instalaciones De Lavandería
Características de la Comunidad
- Centro De Negocios
- Casa Club
Características al Aire Libre
- Parrilla
- Zona De Pícnic
- Patio
Recreación
- Gimnasio
- Cancha De Baloncesto
- Parque Infantil
- Piscina
Características Interior
- Balcón
- Calefacción
- Preinstalación De Cables
- Conexiones Para Lavadora/Secadora
- Lavadora/Secadora
- Aire Acondicionado
- Wifi
- Accesible En Sillas De Ruedas
- Libre De Humo
Características de la Cocina
- Lavavajillas
- Microondas
- Cocina
Características de la Sala de Estar
- Alfombra
Política de Mascotas
- No Aceptan Mascotas

Mapa
- Compras
- Supermercado
- Médicos

Mapa
Horario e Información de Contacto
| Lunes | 8:00 am–4:00 pm |
| Martes | 8:00 am–4:00 pm |
| Miércoles | 8:00 am–4:00 pm |
| Jueves | 8:00 am–4:00 pm |
| Viernes | 8:00 am–4:00 pm |
| Sábado | Cerrado |
| Domingo | Cerrado |
¿Qué son las clasificaciones Walk Score®, Transit Score® y Bike Score®?
- Walk Score® mide la viabilidad peatonal de cualquier dirección.
- Transit Score® mide el acceso a transporte público.
- Bike Score® mide la infraestructura de rutas para bicicletas de cualquier dirección.
Preguntas Frecuentes sobre Lexington Hills Apartments
¿Donde se encuentra Lexington Hills Apartments?
Lexington Hills Apartments se encuentran en 514 Desmet Dr, Cheyenne, WY
¿Cuál es el rango de alquiler vigente en Lexington Hills Apartments?
El rango de alquiler de Apartamentos 2 dormitorios a 4 dormitorios en Lexington Hills Apartments van desde $1,002 a $1,350
¿Qué horarios tiene la oficina de alquiler?
- El horario de oficina de Lexington Hills Apartments es
- Lunes 8:00 am–4:00 pm
- Martes 8:00 am–4:00 pm
- Miércoles 8:00 am–4:00 pm
- Jueves 8:00 am–4:00 pm
- Viernes 8:00 am–4:00 pm
- Sábado Cerrado
- Domingo Cerrado
¿Se permiten mascotas?
Llámenos hoy para conocer nuestra política de mascotas y saber si las aceptamos.
Calificación Según Estilo de Vida:
Conocer más sobre la búsqueda de estilos de vidaOpiniones y valoraciones de Inquilinos
they don’t answer
July 17, 2024I have emailed and called multiple times for an inquiry. They also dont have a voicemail box so it just hangs up on me.Property Manager Responded
July 24, 2024Thank you for your feedback. We’d like to learn more about your concern. Please reach out to us at reviews@seldin.com so we can assist you further. - Jenae, Seldin Company
Reseña de Apartments.com
Escuelas Cercanas
Goins Elementary
South High School
Johnson Junior High School
Sitios de Interés
Tiempo y distancia desde Lexington Hills Apartments.
Grandes Superficies de Ventas
Safeway
Autozone
Walgreens
Tiendas
Safeway
Albertsons
Hospitales
Bases Militares
Cheyenne Airport Air Guard Station
Warren Air Force Base
Centros Comerciales
Lexington Hills Apartments tiene 5 centros comerciales en un radio de 3.5 millas.
Rango de Precios de los Alquileres en la Zona
| Dormitorios | Precio Promedio | Más barato | Más caro |
|---|---|---|---|
| Apartamentos Estudio en Cheyenne | $1,174 | $969 | $1,249 |
| Apartamentos 1 Dormitorios en Cheyenne | $1,469 | $630 | $1,750 |
| Apartamentos 2 Dormitorios en Cheyenne | $1,643 | $734 | $2,195 |
| Apartamentos 3 Dormitorios en Cheyenne | $1,585 | $844 | $2,800 |
| Apartamentos 4 Dormitorios en Cheyenne | $1,590 | $1,162 | $2,300 |
Ver Apartamentos más destacados en Cheyenne
Por el Precio
- Apartamentos Barato en Cheyenne
- Apartamentos en Cheyenne menos de $800
- Apartamentos en Cheyenne menos de $900
- Apartamentos en Cheyenne menos de $1000
- Apartamentos en Cheyenne menos de $1200
- Apartamentos en Cheyenne menos de $1500
- Apartamentos en Cheyenne menos de $2000
- Apartamentos de Lujo en Cheyenne
Por tipo de comunidad
- Apartamentos en alquiler por el propietario en Cheyenne
- Apartamentos en Cheyenne con Oferta Especial
- Apartamentos en Cheyenne Más Valorados
- Apartamentos en Cheyenne Viviendas Corporativas
- Apartamentos en Cheyenne Amueblado
- Apartamentos en Cheyenne Reja de Entrada Automática
- Apartamentos en Cheyenne De Bajos Ingresos
- Apartamentos en Cheyenne Militar
- Nuevos Apartamentos en Cheyenne
- Apartamentos en Cheyenne Personas Mayores
- Apartamentos en Cheyenne Contratos de Corto Plazo
- Apartamentos en Cheyenne con Utilidades Incluidas
