Photos
















- Restricciones de Ingresos
- Estudio–3 Dormitorios
- $1,100-$2,386Precios de alquiler
- 490–1,200Pies cuadrados
Acerca Nichols Court
Thank you for your interest in Nichols Court! We’re excited to let you know that we currently have 1, 2, and 3 bedroom apartments available in our beautiful community. Come see for yourself the fantastic amenities we offer: a playground for the little ones, inviting community spaces, and a workout room equipped with a treadmill, rowing machine, and cycle bike. But wait—there’s more! Enjoy relaxing on our rooftop patio with stunning views. The best part? You only pay for electricity! Plus, we’re running a special move-in offer that you won’t want to miss. Our leasing office is open Monday through Saturday from 10 AM to 4 PM, and we’d love to show you around. Ready to find your perfect apartment? Give us a call to schedule a tour or just stop by and check us out! Looking forward to welcoming you home, The Nichols Court Team
Nichols Court se encuentra en el Barrio Brighton y el código postal 98118 de Seattle, WA. Esta comunidad está gestionada profesionalmente por Low Income Housing Institute
Información de contacto de la propiedad

Precios y Disponibilidad de Plano
Nichols Court ofrece apartamentos de Estudio a 3 Dormitorios y 490–1,200 pies cuadrados. Aquí está el precio actual y la disponibilidad:
¡Nuevo! Mapa Interactivo de Propiedades
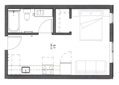
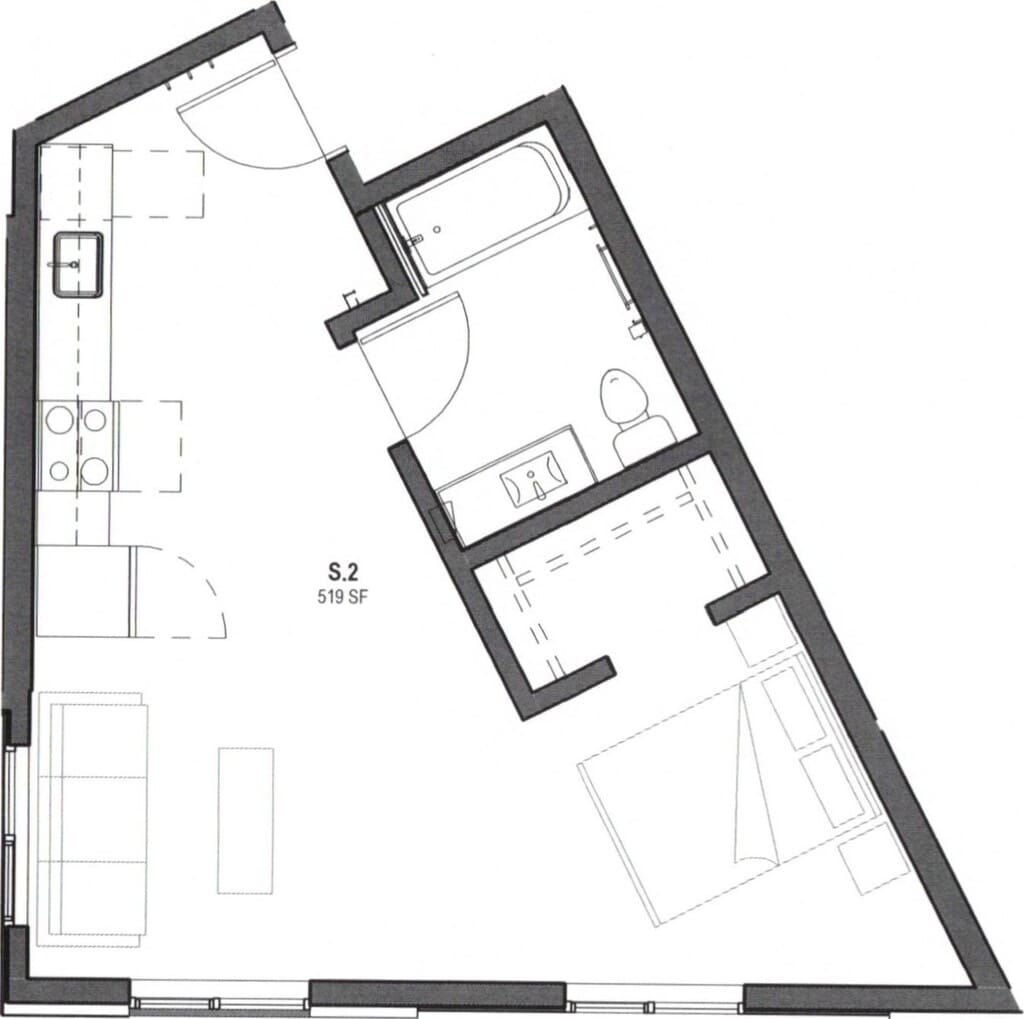
Estudio
Studio
Estudio, 1 Baño, 490-515 pies²Detalles de Diponibilidad
Precio Fecha Disponibilidad Unidad Pies² Desde $1,100 Llamar para disponibilidad Studio 490-515 pies² Características y Comodidades de Modelo
Características
- Accesible en sillas de ruedas (habitaciones)
- Calefacción
- Libre de humo
Cocina
- Lavavajillas
- Zona de eliminación de desechos
Espacio Vital
- Comedor
- Dormitorios grandes
- Suelos de vinilo
- Ventanas de doble panel
- Vestidores
- Vistas
Características Propias
- Gimnasio y parque infantil seguro
Tasas y precios del modelo
Rango de Precios Modelo
- $1,100 - $1,150
1 Dormitorio
1 Bedroom
1 Dormitorio, 1 Baño, 500-650 pies²Detalles de Diponibilidad
Precio Fecha Disponibilidad Unidad Pies² $1,375 Llamar para disponibilidad 1 Bedroom 500-650 pies² Características y Comodidades de Modelo
Características
- Accesible en sillas de ruedas
- Calefacción
- Climatización controlada por el inquilino
- Detector de humo
- Espacio de almacenamiento
- Intercomunicador
- Libre de Humo
- Preinstalación de cables
Cocina
- Cocina
- Congelador
- Fogón
- Horno
- Lavavajillas
- Microondas
- Nevera
- Zona de eliminación de desechos
Tasas y precios del modelo
Precio del Modelo
- $1,375
2 Dormitorios
2 Bedroom
2 Dormitorios, 1 Baño, 520-715 pies²Detalles de Diponibilidad
Precio Fecha Disponibilidad Unidad Pies² $1,800 Llamar para disponibilidad 2 Bedroom 520-715 pies² Características y Comodidades de Modelo
Características
- Accesible en sillas de ruedas
- Calefacción
- Climatización controlada por el inquilino
- Detector de humo
- Espacio de almacenamiento
- Intercomunicador
- Libre de Humo
- Preinstalación de cables
Cocina
- Cocina
- Congelador
- Fogón
- Horno
- Lavavajillas
- Microondas
- Nevera
- Zona de eliminación de desechos
Tasas y precios del modelo
Precio del Modelo
- $1,800
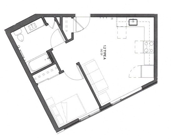
3 Dormitorios
3 Bedroom
3 Dormitorios, 2 Baños, 900-1200 pies²Detalles de Diponibilidad
Precio Fecha Disponibilidad Unidad Pies² $2,386 Llamar para disponibilidad 3 Bedroom 900-1200 pies² Características y Comodidades de Modelo
Características
- Accesible en sillas de ruedas
- Calefacción
- Climatización controlada por el inquilino
- Detector de humo
- Espacio de almacenamiento
- Intercomunicador
- Libre de Humo
- Preinstalación de cables
Cocina
- Cocina
- Congelador
- Fogón
- Horno
- Lavavajillas
- Microondas
- Nevera
- Zona de eliminación de desechos
Tasas y precios del modelo
Precio del Modelo
- $2,386
Programar una Visita
Matterport 3D Tours
Información de la Comunidad
- Unidades
- Plantas
- Construido en
- Ver el sitio web de la propiedad
Está a punto de salir de ApartmentHomeLiving.com…
Restricciones de ingresos en Nichols Court
Las restricciones de ingresos se aplican a algunos o todos los residentes. Póngase en contacto con la comunidad para obtener más información.
| # Personas | 50% Límite de Ingresos | 60% Límite de Ingresos |
|---|---|---|
| 1 | $55,000 | $66,000 |
| 2 | $62,850 | $75,420 |
| 3 | $70,700 | $84,840 |
| 4 | $78,550 | $94,260 |
| 5 | $84,850 | $101,820 |
| 6 | $91,150 | $109,380 |
Para calificar, los ingresos deben ser igual o inferior a los que figuran en el cuadro, según el número de personas que viven en la vivienda.
Términos de Arrendamiento
- Têrminos del Alquiler
Fees and Policies
Las tarifas que figuran a continuación se basan en datos facilitados por la comunidad y pueden excluir tasas y servicios adicionales. Usa la calculadora para añadirlos a la renta base.
Tasas Requeridas
Básicos de una sola vez
- A pagar en el momento de la mudanza
- Background Check$59
Exención de responsabilidad sobre las tasas de propiedad: Based on community-supplied data and independent market research. Subject to change without notice. May exclude fees for mandatory or optional services and usage-based utilities.
Características y Facilidades
Características Propias
- Verificación de antecedentes
- Gimnasio y parque infantil seguro
Servicios
- Transporte Público
- Entrada Con Llavero Electrónico
- Property Manager En El Lugar
- Servicio De Paquetería
- Mantenimiento En El Lugar
- Instalaciones De Lavandería
Características de la Comunidad
- Sala Multiusos
- Salas De Conferencias
- Tolva De Residuos
- Ascensor
Características al Aire Libre
- Solárium
- Terraza En El Techo
- Acceso Controlado
- Patio
Recreación
- Gimnasio
- Centro De Medios/Cine
- Parque Infantil
Características Interior
- Detector De Humo
- Climatización Controlada Por El Inquilino
- Espacio De Almacenamiento
- Intercomunicador
- Calefacción
- Preinstalación De Cables
- Accesible En Sillas De Ruedas
- Libre De Humo
Características de la Cocina
- Nevera
- Fogón
- Horno
- Cocina
- Congelador
- Zona De Eliminación De Desechos
- Microondas
- Lavavajillas
Características de la Sala de Estar
- Vestidores
- Oficina
- Ventanas De Doble Panel
- Vistas
- Dormitorios Grandes
- Comedor
- Suelos De Vinilo

Mapa
- Compras
- Universidades
- Supermercado
- Médicos
- Transporte

Mapa
Horario e Información de Contacto
| Lunes | 10:00 am–5:00 pm |
| Martes | 10:00 am–5:00 pm |
| Miércoles | 10:00 am–5:00 pm |
| Jueves | 10:00 am–5:00 pm |
| Viernes | 10:00 am–5:00 pm |
| Sábado | 10:00 am–5:00 pm |
| Domingo | 10:00 am–5:00 pm |
¿Qué son las clasificaciones Walk Score®, Transit Score® y Bike Score®?
- Walk Score® mide la viabilidad peatonal de cualquier dirección.
- Transit Score® mide el acceso a transporte público.
- Bike Score® mide la infraestructura de rutas para bicicletas de cualquier dirección.
Preguntas Frecuentes sobre Nichols Court
¿Donde se encuentra Nichols Court?
Nichols Court se encuentran en 7544 Martin Luther King Jr Way S cerca de la zona Brighton en Seattle, WA
¿Cuál es el rango de alquiler vigente en Nichols Court?
Llámenos hoy para conocer las opciones de precio de estudio a 3 dormitorios en Nichols Court
¿Qué horarios tiene la oficina de alquiler?
- El horario de oficina de Nichols Court es
- Lunes 10:00 am–5:00 pm
- Martes 10:00 am–5:00 pm
- Miércoles 10:00 am–5:00 pm
- Jueves 10:00 am–5:00 pm
- Viernes 10:00 am–5:00 pm
- Sábado 10:00 am–5:00 pm
- Domingo 10:00 am–5:00 pm
¿Se permiten mascotas?
Llámenos hoy para conocer nuestra política de mascotas y saber si las aceptamos.
Calificación Según Estilo de Vida:
Conocer más sobre la búsqueda de estilos de vidaOpiniones y valoraciones de Inquilinos
Escuelas Cercanas
Dunlap Elementary School
Rainier Beach High School
Aki Kurose Middle School
The New School At South Shore
Sitios de Interés
Tiempo y distancia desde Nichols Court.
Grandes Superficies de Ventas
Walgreens
Costco
Safeway
Universidad
Tiendas
Safeway
Albertsons
Thriftway
Hospitales
Cascade Behavioral Hospital
Navos
Swedish Medical Center - Cherry Hill
Bases Militares
Fort Lawton Military Reserve
Centros Comerciales
Nichols Court tiene 5 centros comerciales en un radio de 1.1 millas.
Estaciones de Tránsito
ST Light Rail & Rainier Beach Station (NB)-LINK to Sea-Tac
ST Light Rail & Othello Station (SB)-LINK to Sea-Tac
Rainier Beach-Central Link
Barrios cercanos
Rango de Precios de los Alquileres en la Zona
| Dormitorios | Precio Promedio | Más barato | Más caro |
|---|---|---|---|
| Apartamentos Estudio en Seattle | $1,633 | $450 | $4,500 |
| Apartamentos 1 Dormitorios en Seattle | $2,241 | $600 | $10,000+ |
| Apartamentos 2 Dormitorios en Seattle | $3,129 | $1,039 | $10,000+ |
| Apartamentos 3 Dormitorios en Seattle | $4,319 | $1,099 | $10,000+ |
| Apartamentos 4 Dormitorios en Seattle | $2,306 | $1,099 | $10,000+ |
| Apartamentos 5 Dormitorios en Seattle | $2,052 | $950 | $10,000+ |
| Apartamentos 6 Dormitorios en Seattle | $1,530 | $1,365 | $1,701 |
Ver Apartamentos más destacados en Seattle
Por el Precio
- Apartamentos Barato en Seattle
- Apartamentos en Seattle menos de $500
- Apartamentos en Seattle menos de $600
- Apartamentos en Seattle menos de $700
- Apartamentos en Seattle menos de $800
- Apartamentos en Seattle menos de $900
- Apartamentos en Seattle menos de $1000
- Apartamentos en Seattle menos de $1200
- Apartamentos en Seattle menos de $1500
- Apartamentos en Seattle menos de $2000
- Apartamentos de Lujo en Seattle
Por tipo de comunidad
- Apartamentos en alquiler por el propietario en Seattle
- Apartamentos en Seattle con Oferta Especial
- Apartamentos en Seattle Más Valorados
- Apartamentos en Seattle Viviendas Corporativas
- Apartamentos en Seattle Amueblado
- Apartamentos en Seattle Reja de Entrada Automática
- Apartamentos en Seattle Loft
- Apartamentos en Seattle De Bajos Ingresos
- Nuevos Apartamentos en Seattle
- Apartamentos en Seattle Personas Mayores
- Apartamentos en Seattle Contratos de Corto Plazo
- Apartamentos en Seattle Estudiante
- Apartamentos en Seattle con Utilidades Incluidas
Por las Características
- Apartamentos en Seattle con Pisos de Madera
- Apartamentos en Seattle con Lavandería
- Apartamentos en Seattle con Estacionamiento Disponible
- Apartamentos en Seattle Se Permiten Mascotas
- Apartamentos en Seattle con Piscina(s)
- Apartamentos en Seattle con Lavadora y Secadora
- Apartamentos en Seattle con Estaciones de Carga EV
