Photos










- Adultos Activos
- 1–2 Dormitorios
- $740-$895 Precios de alquiler
- 584–864 Pies cuadrados
Acerca Regency House (55 & Older)
Regency House es una comunidad tranquila reservada para residentes mayores de 55 años. Estos apartamentos están rodeados de hermosos jardines y césped e incluyen una sala comunitaria, un patio sombreado y eventos sociales mensuales. Regency House se encuentra a poca distancia a pie del Centro para personas mayores y de las tiendas de comestibles, y nuestro personal dedica especial cuidado a hacer de este un lugar maravilloso para vivir.
Regency House (55 & Older) se encuentra en el código postal 54220 de Manitowoc, WI. Esta comunidad está gestionada profesionalmente por Park Regency Management LLC
Información de contacto de la propiedad

Precios y Disponibilidad de Plano
Regency House (55 & Older) ofrece apartamentos de 1 a 2 Dormitorios y 584–864 pies cuadrados. Aquí está el precio actual y la disponibilidad:
¡Nuevo! Mapa Interactivo de Propiedades
1 Dormitorio
1 Bedroom, 1 Bath
1 Dormitorio, 1 Baño, 584 pies²Galería del Modelo
Planos
Detalles de Diponibilidad
Precio Fecha Disponibilidad Unidad Pies² $740 Llamar para disponibilidad 1 Bedroom, 1 Bath 584 pies² Características y Comodidades de Modelo
Características
- Acceso a Internet de alta velocidad
- Aire acondicionado
- Bañera/Ducha
- Calefacción
- Intercomunicador
- Libre de humo
- Preinstalación de cables
Cocina
- Fogón
- Nevera
Espacio Vital
- Alfombra
- Armario de ropa blanca
- Cubiertas de ventanas
- Suelos de vinilo
Tasas y precios del modelo
Precio del Modelo
- $740
Modelo de apartamento: 1 Bedroom, 1 Bath$7401 Dormitorio, 1 Baño, 584 sq ftNo Disponible![]()
1 Bedroom, 1 Bath - Plano 2 Dormitorios
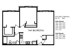
2 Bedroom, 1 Bath
2 Dormitorios, 1 Baño, 864 pies²Galería del Modelo
Planos
Detalles de Diponibilidad
Precio Fecha Disponibilidad Unidad Pies² $840 Llamar para disponibilidad 2 Bedroom, 1 Bath 864 pies² Características y Comodidades de Modelo
Características
- Acceso a Internet de alta velocidad
- Aire acondicionado
- Almacén/trastero
- Bañera/Ducha
- Calefacción
- Intercomunicador
- Libre de humo
- Preinstalación de cables
Cocina
- Fogón
- Nevera
Espacio Vital
- Alfombra
- Armario de ropa blanca
- Cubiertas de ventanas
- Suelos de vinilo
- Vestidores
Tasas y precios del modelo
Precio del Modelo
- $840
Modelo de apartamento: 2 Bedroom, 1 Bath$8402 Dormitorios, 1 Baño, 864 sq ftNo Disponible![]()
2 Bedroom, 1 Bath - Plano 2 Bedroom, 2 Bath
2 Dormitorios, 2 Baños, 864 pies²Galería del Modelo
Planos
Detalles de Diponibilidad
Precio Fecha Disponibilidad Unidad Pies² $895 Llamar para disponibilidad 2 Bedroom, 2 Bath 864 pies² Características y Comodidades de Modelo
Características
- Acceso a Internet de alta velocidad
- Aire acondicionado
- Bañera/Ducha
- Calefacción
- Intercomunicador
- Preinstalación de cables
Cocina
- Fogón
- Nevera
Espacio Vital
- Alfombra
- Armario de ropa blanca
- Cubiertas de ventanas
- Suelos de vinilo
Tasas y precios del modelo
Precio del Modelo
- $895
Modelo de apartamento: 2 Bedroom, 2 Bath$8952 Dormitorios, 2 Baños, 864 sq ftNo Disponible![]()
2 Bedroom, 2 Bath - Plano
Programar una Visita
Información de la Comunidad
- Unidades
- Plantas
- Construido en
- Ver el sitio web de la propiedad
Términos de Arrendamiento
- Têrminos del Alquiler
Fees and Policies
Las tarifas que se indican a continuación son proporcionadas por la comunidad y pueden excluir servicios públicos o complementos. Todos los pagos se realizan directamente a la propiedad y no son reembolsables, salvo que se especifique lo contrario.
Other Fees and Policies
Tasas por mascotas
Pet Policies are Negotiable
- Cat
- Pet DepositiCharged Per Pet.$200.00
- Pet FeeiCharged Per Pet.$25.00/mes
- Pet DepositiCharged Per Pet.$200.00
- Pet FeeiCharged Per Pet.$25.00/mes
Management Discretion
Tasas de estacionamiento
- Garage
- Parking FeeiCharged Per Vehicle.$50.00/mes
Tasas de almacenamiento
- Storage Unit
- Storage FeeiCharged Per Unit.$15.00/mes
Exención de responsabilidad sobre las tasas de propiedad: Based on community-supplied data and independent market research. Subject to change without notice. May exclude fees for mandatory or optional services and usage-based utilities.
Características y Facilidades
Servicios
- Mantenimiento En El Lugar
- Instalaciones De Lavandería
Características de la Comunidad
- Sala Multiusos
- Ascensor
Características al Aire Libre
- Acceso Controlado
- Césped
- Patio
Características Interior
- Espacio De Almacenamiento
- Acceso A Internet De Alta Velocidad
- Calefacción
- Bañera/Ducha
- Intercomunicador
- Barandillas
- Preinstalación De Cables
- Aire Acondicionado
- Libre De Humo
Características de la Cocina
- Zona De Eliminación De Desechos
- Fogón
- Nevera
Características de la Sala de Estar
- Vestidores
- Suelos De Vinilo
- Alfombra
- Armario De Ropa Blanca
- Cubiertas De Ventanas
Características únicas
- Garaje

Mapa
- Compras
- Supermercado
- Médicos

Mapa
Horario e Información de Contacto
| Lunes | 9:00 am–4:00 pm |
| Martes | 9:00 am–4:00 pm |
| Miércoles | 9:00 am–4:00 pm |
| Jueves | 9:00 am–4:00 pm |
| Viernes | 9:00 am–4:00 pm |
| Sábado | Cerrado |
| Domingo | Cerrado |
Preguntas Frecuentes sobre Regency House (55 & Older)
¿Donde se encuentra Regency House (55 & Older)?
Regency House (55 & Older) se encuentran en 929 S 31st St, Manitowoc, WI
¿Cuál es el rango de alquiler vigente en Regency House (55 & Older)?
Llámenos hoy para conocer las opciones de precio de 1 dormitorios a 2 dormitorios en Regency House (55 & Older)
¿Qué horarios tiene la oficina de alquiler?
- El horario de oficina de Regency House (55 & Older) es
- Lunes 9:00 am–4:00 pm
- Martes 9:00 am–4:00 pm
- Miércoles 9:00 am–4:00 pm
- Jueves 9:00 am–4:00 pm
- Viernes 9:00 am–4:00 pm
- Sábado Cerrado
- Domingo Cerrado
¿Se permiten mascotas?
Llámenos hoy para conocer nuestra política de mascotas y saber si las aceptamos.
Calificación Según Estilo de Vida:
Conocer más sobre la búsqueda de estilos de vidaOpiniones y valoraciones de Inquilinos
Very nice and safe place to live
September 9, 2025Neighbors are friendly and there is a sense of community here. There is a great sense of security with the locked building and off-street parking in a wonderful neighborhood. People look out for each other. Great location within walking distance of grocery, specialty stores, dining options & parks.Reseña de Apartments.com
Sitios de Interés
Tiempo y distancia desde Regency House (55 & Older).
Grandes Superficies de Ventas
Walgreens
Lowe's
Kohl's
Tiendas
Piggly Wiggly
Hospitales
Holy Family Memorial
Aurora Medical Center Manitowoc County
Centros Comerciales
Regency House (55 & Older) tiene 5 centros comerciales en un radio de 1.0 millas.
Barrios cercanos
Rango de Precios de los Alquileres en la Zona
| Dormitorios | Precio Promedio | Más barato | Más caro |
|---|---|---|---|
| Apartamentos Estudio en Manitowoc | $976 | $911 | $1,100 |
| Apartamentos 1 Dormitorios en Manitowoc | $959 | $710 | $1,666 |
| Apartamentos 2 Dormitorios en Manitowoc | $1,247 | $819 | $2,700 |
| Apartamentos 3 Dormitorios en Manitowoc | $1,367 | $900 | $2,595 |
| Apartamentos 4 Dormitorios en Manitowoc | $1,400 | $1,400 | $1,400 |
Ver Apartamentos más destacados en Manitowoc
Por el Precio
Por tipo de comunidad
- Apartamentos en alquiler por el propietario en Manitowoc
- Apartamentos en Manitowoc Más Valorados
- Apartamentos en Manitowoc Viviendas Corporativas
- Apartamentos en Manitowoc Amueblado
- Apartamentos en Manitowoc Reja de Entrada Automática
- Apartamentos en Manitowoc De Bajos Ingresos
- Nuevos Apartamentos en Manitowoc
- Apartamentos en Manitowoc Personas Mayores
- Apartamentos en Manitowoc Contratos de Corto Plazo
- Apartamentos en Manitowoc con Utilidades Incluidas
