Photos


















Solicitar notificación
The Grove Somerset
Somerset, NJ 08873

- Estudio–3 Dormitorios
- 496–1,458Pies cuadrados
Acerca The Grove Somerset
Elige entre nuestros apartamentos tipo estudio, de 1, 2 y 3 habitaciones en Somerset, New Jersey, y tenlo todo: una distribución amplia, habitaciones luminosas y cómodas características y comodidades. Ya sea que estés buscando una disposición amplia o simplemente un lugar cómodo para ti mismo, lo tenemos todo. en una ubicación ideal. Comodidades del vecindario, las principales empresas, y escuelas están a solo minutos de distancia. La vida en The Grove Somerset superará todas tus expectativas. Visita tu nuevo hogar, que admite mascotas, cerca de Rutgers Preparación hoy mismo.
The Grove Somerset se encuentra en el código postal 08873 de Somerset, NJ.
Características personalizadas
- Acceso conveniente a la autopista I-287, I-95 & New Brunswick
- Pague el alquiler por su cuenta con FL
- Alternativas de depósito disponibles a través de Obligo
- ELEvators
- Disponibilidad de puntos de recarga para vehículos eléctricos
- GARAJES DISPONIBLES.
- Asado a la parilla de áreas de picnic
- Equipo de gestión in situ y mantenimiento las 24 horas
- Comunidad que admite mascotas con parque para perros
- Área de juegos infantiles & Sala de juegos
- Casa club para residentes y centro de negocios
- Portal para residentes con pago y servicio de alquiler en línea
- Ubicado en 41 acres de paisaje frondoso y arbolado
- A poca distancia a pie de Delaware Raritan Canal & Trails
- Espectacular Piscina con estilo de centro turístico con terraza
- Estado de The Art Gimnasio HarborFit
Información de contacto de la propiedad
Precios y Disponibilidad de Plano
¡Nuevo! Mapa Interactivo de Propiedades
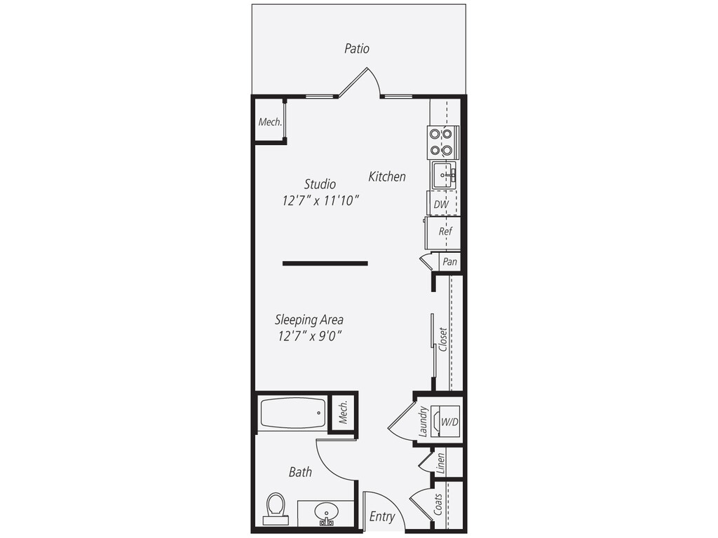
Estudio
Ver Planos No DisponiblesAberdeen
Estudio, 1 Baño, 496 pies²Disponible AhoraGalería del Modelo
Planos
Detalles de Diponibilidad
Fecha Disponibilidad Unidad Pies² Disponible Ahora 3167 496 Detalles y características de la Unidad 3167
Características
- Acceso a internet de alta velocidad
- Libre de humo
Características Propias
- ¡Vista al patio
- Edificio Midrise
- Lavadora y secadora apilables incluidas
- Mejora de categoría Platinum
- Pisos de excelente calidad
Modelo de apartamento: AberdeenEstudio, 1 Baño, 496 sq ftDisponible AhoraLos planos son representaciones artísticas. Todas las dimensiones son aproximadas. El producto y las especificaciones reales pueden variar en tamaño o detalle. No todas las características están disponibles en cada vivienda en alquiler. Por favor, consulta con un representante para obtener más detalles.
![]()
Aberdeen - Plano 1 Unidad de apartamento: 3167Modelo de apartamento: AberdeenEstudio, 1 Baño, 496 sq ftDisponible AhoraAlderleaf
Estudio, 1 Baño, 638 pies²Galería del Modelo
Planos
Detalles de Diponibilidad
Fecha Disponibilidad Unidad Pies² No Disponible Alderleaf 638 pies² Características y Comodidades de Modelo
Características
- Acceso a Internet de alta velocidad
Modelo de apartamento: AlderleafEstudio, 1 Baño, 638 sq ftNo DisponibleLos planos son representaciones artísticas. Todas las dimensiones son aproximadas. El producto y las especificaciones reales pueden variar en tamaño o detalle. No todas las características están disponibles en cada vivienda en alquiler. Por favor, consulta con un representante para obtener más detalles.
![]()
Alderleaf - Plano 1 1 Dormitorio
Ver Planos No DisponiblesAspen
1 Dormitorio, 1 Baño, 736-745 pies²Disponible AhoraEl más baratoEsta opción tiene los precios más bajos para este modeloGalería del Modelo
Planos
Detalles de Diponibilidad
Fecha Disponibilidad Unidad Pies² Ver Detalles Disponible Ahora 1171 745 March 17, 2026 1203 736 March 17, 2026 2171 745 Detalles y características de la Unidad 1171
Características Propias
- ¡Vista al patio
- Cocina con isla
- Edificio Midrise
- Lavadora y secadora apilables incluidas
- Mejora de categoría Platinum
- Patio extenso
- Pisos de excelente calidad
- Vestidor
Detalles y características de la Unidad 1203
Características Propias
- Isla de cocina
- Lavadora y secadora apilables incluidas
- Terraza/Patio
- Vestidor
Detalles y características de la Unidad 2171
Características Propias
- ¡Vista al patio
- Cocina con isla
- Edificio de media altura
- Lavadora y secadora apilables incluidas
- Terrazas/patio
- Vestidor
Modelo de apartamento: Aspen1 Dormitorio, 1 Baño, 736-745 sq ftDisponible AhoraLos planos son representaciones artísticas. Todas las dimensiones son aproximadas. El producto y las especificaciones reales pueden variar en tamaño o detalle. No todas las características están disponibles en cada vivienda en alquiler. Por favor, consulta con un representante para obtener más detalles.
![]()
Aspen - Plano 1 Unidad de apartamento: 1171Modelo de apartamento: Aspen1 Dormitorio, 1 Baño, 745 sq ftDisponible AhoraUnidad de apartamento: 1203Modelo de apartamento: Aspen1 Dormitorio, 1 Baño, 736 sq ftDisponible March 17, 2026Unidad de apartamento: 2171Modelo de apartamento: Aspen1 Dormitorio, 1 Baño, 745 sq ftDisponible March 17, 2026Allegheny
1 Dormitorio, 1 Baño, 690-697 pies²Disponible AhoraGalería del Modelo
Planos
Detalles de Diponibilidad
Fecha Disponibilidad Unidad Pies² Ver Detalles Disponible Ahora 1164 690 Disponible Ahora 2143 697 Disponible Ahora 3148 690 Detalles y características de la Unidad 1164
Características Propias
- Cocina con isla
- Edificio de media altura
- Lavadora y secadora apilables incluidas
- Mejora de categoría Platinum
- Pisos de excelente calidad
- Terrazas/patio
- Vestidor
Detalles y características de la Unidad 2143
Características Propias
- ¡Vista al patio
- Cocina con isla
- Edificio Midrise
- Lavadora y secadora apilables incluidas
- Terrazas/patio
- Vestidor
Detalles y características de la Unidad 3148
Características Propias
- Cocina con isla
- Edificio de media altura
- Lavadora y secadora apilables incluidas
- Mejora de categoría Platinum
- Terrazas/patio
- Vestidor
Modelo de apartamento: Allegheny1 Dormitorio, 1 Baño, 690-697 sq ftDisponible AhoraLos planos son representaciones artísticas. Todas las dimensiones son aproximadas. El producto y las especificaciones reales pueden variar en tamaño o detalle. No todas las características están disponibles en cada vivienda en alquiler. Por favor, consulta con un representante para obtener más detalles.
![]()
Allegheny - Plano 1 Unidad de apartamento: 1164Modelo de apartamento: Allegheny1 Dormitorio, 1 Baño, 690 sq ftDisponible AhoraUnidad de apartamento: 2143Modelo de apartamento: Allegheny1 Dormitorio, 1 Baño, 697 sq ftDisponible AhoraUnidad de apartamento: 3148Modelo de apartamento: Allegheny1 Dormitorio, 1 Baño, 690 sq ftDisponible AhoraBasswood
1 Dormitorio, 1 Baño, 773 pies²Disponible AhoraGalería del Modelo
Planos
Detalles de Diponibilidad
Fecha Disponibilidad Unidad Pies² Ver Detalles Disponible Ahora 2104 773 Disponible Ahora 3186 773 Características y Comodidades de Modelo
Características
- Acceso a Internet de alta velocidad
Detalles y características de la Unidad 2104
Características
- Acceso a Internet de alta velocidad
Características Propias
- Cocina con isla
- Edificio Midrise
- Lavadora y secadora apilables incluidas
- Terrazas/patio
- Vestidor
Detalles y características de la Unidad 3186
Características
- Acceso a Internet de alta velocidad
Características Propias
- Cocina con isla
- Edificio de media altura
- Lavadora y secadora apilables incluidas
- Terrazas/patio
- Vestidor
Modelo de apartamento: Basswood1 Dormitorio, 1 Baño, 773 sq ftDisponible AhoraLos planos son representaciones artísticas. Todas las dimensiones son aproximadas. El producto y las especificaciones reales pueden variar en tamaño o detalle. No todas las características están disponibles en cada vivienda en alquiler. Por favor, consulta con un representante para obtener más detalles.
![]()
Basswood - Plano 1 Unidad de apartamento: 2104Modelo de apartamento: Basswood1 Dormitorio, 1 Baño, 773 sq ftDisponible AhoraUnidad de apartamento: 3186Modelo de apartamento: Basswood1 Dormitorio, 1 Baño, 773 sq ftDisponible AhoraBaneberry Den
1 Dormitorio, 1 Baño, 844 pies²Disponible Mar 24Galería del Modelo
Planos
Detalles de Diponibilidad
Fecha Disponibilidad Unidad Pies² March 24, 2026 2203 844 Detalles y características de la Unidad 2203
Características
- Acceso a Internet de alta velocidad
- Libre de humo
Características Propias
- Incluye guarida
- Isla de cocina
- Lavadora y secadora apilables incluidas
- Terraza/Patio
- Vestidor
Modelo de apartamento: Baneberry Den 1 Dormitorio, 1 Baño, 844 sq ftDisponible March 24, 2026Los planos son representaciones artísticas. Todas las dimensiones son aproximadas. El producto y las especificaciones reales pueden variar en tamaño o detalle. No todas las características están disponibles en cada vivienda en alquiler. Por favor, consulta con un representante para obtener más detalles.
![]()
Baneberry Den - Plano 1 Unidad de apartamento: 2203Modelo de apartamento: Baneberry Den 1 Dormitorio, 1 Baño, 844 sq ftDisponible March 24, 2026Chestnut Den
1 Dormitorio, 1 Baño, 944 pies²Disponible Apr 28Galería del Modelo
Planos
Detalles de Diponibilidad
Fecha Disponibilidad Unidad Pies² April 28, 2026 2147 944 Detalles y características de la Unidad 2147
Características
- Acceso a Internet de alta velocidad
Características Propias
- ¡Almacenaje adicional
- ¡Vista al patio
- Cocina con isla
- Edificio de media altura
- Incluye comedor
- Lavabo doble en 1 baño
- Lavadora y secadora incluidas
- Patio extenso
- Vestidor
Modelo de apartamento: Chestnut Den 1 Dormitorio, 1 Baño, 944 sq ftDisponible April 28, 2026Los planos son representaciones artísticas. Todas las dimensiones son aproximadas. El producto y las especificaciones reales pueden variar en tamaño o detalle. No todas las características están disponibles en cada vivienda en alquiler. Por favor, consulta con un representante para obtener más detalles.
![]()
Chestnut Den - Plano 1 Unidad de apartamento: 2147Modelo de apartamento: Chestnut Den 1 Dormitorio, 1 Baño, 944 sq ftDisponible April 28, 2026Allegheny
1 Dormitorio, 1 Baño, 697 pies²Detalles de Diponibilidad
Fecha Disponibilidad Unidad Pies² No Disponible Allegheny 697 pies² Plano: Elm
1 Dormitorio, 1 Baño, 731 pies²Galería del Modelo
Planos
Detalles de Diponibilidad
Fecha Disponibilidad Unidad Pies² No Disponible Elm 731 pies² Modelo de apartamento: Elm1 Dormitorio, 1 Baño, 731 sq ftNo DisponibleLos planos son representaciones artísticas. Todas las dimensiones son aproximadas. El producto y las especificaciones reales pueden variar en tamaño o detalle. No todas las características están disponibles en cada vivienda en alquiler. Por favor, consulta con un representante para obtener más detalles.
![]()
Elm - Plano 1 Plano: A2
1 Dormitorio, 1 Baño, 736 pies²Detalles de Diponibilidad
Fecha Disponibilidad Unidad Pies² No Disponible A2 736 pies² Beech
1 Dormitorio, 1 Baño, 802 pies²Galería del Modelo
Planos
Detalles de Diponibilidad
Fecha Disponibilidad Unidad Pies² No Disponible Beech 802 pies² Características y Comodidades de Modelo
Características
- Acceso a Internet de alta velocidad
- Libre de humo
Modelo de apartamento: Beech1 Dormitorio, 1 Baño, 802 sq ftNo DisponibleLos planos son representaciones artísticas. Todas las dimensiones son aproximadas. El producto y las especificaciones reales pueden variar en tamaño o detalle. No todas las características están disponibles en cada vivienda en alquiler. Por favor, consulta con un representante para obtener más detalles.
![]()
Beech - Plano 1 Allegheny Den
1 Dormitorio, 1 Baño, 814 pies²Galería del Modelo
Planos
Detalles de Diponibilidad
Fecha Disponibilidad Unidad Pies² No Disponible Allegheny Den 814 pies² Características y Comodidades de Modelo
Características
- Acceso a Internet de alta velocidad
- Libre de humo
Modelo de apartamento: Allegheny Den 1 Dormitorio, 1 Baño, 814 sq ftNo DisponibleLos planos son representaciones artísticas. Todas las dimensiones son aproximadas. El producto y las especificaciones reales pueden variar en tamaño o detalle. No todas las características están disponibles en cada vivienda en alquiler. Por favor, consulta con un representante para obtener más detalles.
![]()
Allegheny Den - Plano 1 Los planos son representaciones artísticas. Todas las dimensiones son aproximadas. El producto y las especificaciones reales pueden variar en tamaño o detalle. No todas las características están disponibles en cada vivienda en alquiler. Por favor, consulta con un representante para obtener más detalles.
![]()
Allegheny Den - Plano 2 Bittercress Den
1 Dormitorio, 1 Baño, 876 pies²Galería del Modelo
Planos
Detalles de Diponibilidad
Fecha Disponibilidad Unidad Pies² No Disponible Bittercress Den 876 pies² Características y Comodidades de Modelo
Características
- Acceso a Internet de alta velocidad
Modelo de apartamento: Bittercress Den 1 Dormitorio, 1 Baño, 876 sq ftNo DisponibleLos planos son representaciones artísticas. Todas las dimensiones son aproximadas. El producto y las especificaciones reales pueden variar en tamaño o detalle. No todas las características están disponibles en cada vivienda en alquiler. Por favor, consulta con un representante para obtener más detalles.
![]()
Bittercress Den - Plano 1 Beachgrass Den
1 Dormitorio, 1 Baño, 878 pies²Galería del Modelo
Planos
Detalles de Diponibilidad
Fecha Disponibilidad Unidad Pies² No Disponible Beachgrass Den 878 pies² Características y Comodidades de Modelo
Características
- Acceso a Internet de alta velocidad
Modelo de apartamento: Beachgrass Den 1 Dormitorio, 1 Baño, 878 sq ftNo DisponibleLos planos son representaciones artísticas. Todas las dimensiones son aproximadas. El producto y las especificaciones reales pueden variar en tamaño o detalle. No todas las características están disponibles en cada vivienda en alquiler. Por favor, consulta con un representante para obtener más detalles.
![]()
Beachgrass Den - Plano 1 Elderberry Den Loft
1 Dormitorio, 1 Baño, 964 pies²El más grandeEsta opción tiene las unidades más grandes para este modeloGalería del Modelo
Planos
Detalles de Diponibilidad
Fecha Disponibilidad Unidad Pies² No Disponible Elderberry Den Loft 964 pies² Características y Comodidades de Modelo
Características
- Acceso a Internet de alta velocidad
- Libre de humo
Modelo de apartamento: Elderberry Den Loft 1 Dormitorio, 1 Baño, 964 sq ftNo DisponibleLos planos son representaciones artísticas. Todas las dimensiones son aproximadas. El producto y las especificaciones reales pueden variar en tamaño o detalle. No todas las características están disponibles en cada vivienda en alquiler. Por favor, consulta con un representante para obtener más detalles.
![]()
Elderberry Den Loft - Plano 1 2 Dormitorios
Ver Planos No DisponiblesIndigo
2 Dormitorios, 2 Baños, 1172-1207 pies²Disponible AhoraEl más baratoEsta opción tiene los precios más bajos para este modeloGalería del Modelo
Planos
Detalles de Diponibilidad
Fecha Disponibilidad Unidad Pies² Ver Detalles Disponible Ahora 1102 1207 March 17, 2026 1202 1172 April 7, 2026 1188 1207 Detalles y características de la Unidad 1102
Características Propias
- Almacenamiento adicional
- Cabina de ducha en 1 baño
- Edificio de mediana altura
- Isla de cocina
- Lavadora y secadora incluidas
- Patio extendido
- Unidad final
- Ventana en la cocina
- Vestidor
- Vista del patio
Detalles y características de la Unidad 1202
Características Propias
- ¡Almacenaje adicional
- Cabina de ducha en 1 baño
- Cocina con isla
- Condominio esquinero
- Lavadora y secadora incluidas
- Patio extenso
- Ventana en la cocina
- Vestidor
Detalles y características de la Unidad 1188
Características Propias
- ¡Almacenaje adicional
- ¡Vista al patio
- Cabina de ducha en 1 baño
- Cocina con isla
- Condominio esquinero
- Edificio de media altura
- Lavadora y secadora incluidas
- Patio extenso
- Ventana en la cocina
- Vestidor
Modelo de apartamento: Indigo 2 Dormitorios, 2 Baños, 1172-1207 sq ftDisponible AhoraLos planos son representaciones artísticas. Todas las dimensiones son aproximadas. El producto y las especificaciones reales pueden variar en tamaño o detalle. No todas las características están disponibles en cada vivienda en alquiler. Por favor, consulta con un representante para obtener más detalles.
![]()
Indigo - Plano 1 Unidad de apartamento: 1102Modelo de apartamento: Indigo 2 Dormitorios, 2 Baños, 1207 sq ftDisponible AhoraUnidad de apartamento: 1202Modelo de apartamento: Indigo 2 Dormitorios, 2 Baños, 1172 sq ftDisponible March 17, 2026Unidad de apartamento: 1188Modelo de apartamento: Indigo 2 Dormitorios, 2 Baños, 1207 sq ftDisponible April 7, 2026Honeysuckle
2 Dormitorios, 2 Baños, 1186 pies²Disponible Mar 17Galería del Modelo
Planos
Detalles de Diponibilidad
Fecha Disponibilidad Unidad Pies² March 17, 2026 1173 1186 Detalles y características de la Unidad 1173
Características
- Acceso a Internet de alta velocidad
Características Propias
- ¡Vista al patio
- Cabina de ducha en 1 baño
- Cocina con isla
- Edificio de media altura
- Lavabo doble en 1 baño
- Lavadora y secadora incluidas
- Mejora de categoría Platinum
- Patio extenso
- Pisos de excelente calidad
- Pisos resistentes
- Vestidor
Modelo de apartamento: Honeysuckle 2 Dormitorios, 2 Baños, 1186 sq ftDisponible March 17, 2026Los planos son representaciones artísticas. Todas las dimensiones son aproximadas. El producto y las especificaciones reales pueden variar en tamaño o detalle. No todas las características están disponibles en cada vivienda en alquiler. Por favor, consulta con un representante para obtener más detalles.
![]()
Honeysuckle - Plano 1 Unidad de apartamento: 1173Modelo de apartamento: Honeysuckle 2 Dormitorios, 2 Baños, 1186 sq ftDisponible March 17, 2026Geranium Loft
2 Dormitorios, 2 Baños, 1036 pies²Disponible Mar 24Galería del Modelo
Planos
Detalles de Diponibilidad
Fecha Disponibilidad Unidad Pies² March 24, 2026 3404 1036 Detalles y características de la Unidad 3404
Características
- Acceso a Internet de alta velocidad
- Libre de humo
Características Propias
- Cocina con isla
- Ducha estancada en 1 baño
- Estilo loft
- Lavadora y secadora incluidas
- Mejora de categoría Platinum
- Terrazas/patio
- Vestidor
Modelo de apartamento: Geranium Loft2 Dormitorios, 2 Baños, 1036 sq ftDisponible March 24, 2026Los planos son representaciones artísticas. Todas las dimensiones son aproximadas. El producto y las especificaciones reales pueden variar en tamaño o detalle. No todas las características están disponibles en cada vivienda en alquiler. Por favor, consulta con un representante para obtener más detalles.
![]()
Geranium Loft - Plano 1 Unidad de apartamento: 3404Modelo de apartamento: Geranium Loft2 Dormitorios, 2 Baños, 1036 sq ftDisponible March 24, 2026Hawthorn
2 Dormitorios, 2 Baños, 1100 pies²Disponible May 19Galería del Modelo
Planos
Detalles de Diponibilidad
Fecha Disponibilidad Unidad Pies² May 19, 2026 3169 1100 Detalles y características de la Unidad 3169
Características
- Acceso a Internet de alta velocidad
Características Propias
- ¡Vista al patio
- Cabina de ducha en 1 baño
- Cocina con isla
- Edificio de media altura
- Lavabo doble en 1 baño
- Lavadora y secadora incluidas
- Mejora de categoría Platinum
- Terrazas/patio
- Vestidor
Modelo de apartamento: Hawthorn 2 Dormitorios, 2 Baños, 1100 sq ftDisponible May 19, 2026Los planos son representaciones artísticas. Todas las dimensiones son aproximadas. El producto y las especificaciones reales pueden variar en tamaño o detalle. No todas las características están disponibles en cada vivienda en alquiler. Por favor, consulta con un representante para obtener más detalles.
![]()
Hawthorn - Plano 1 Unidad de apartamento: 3169Modelo de apartamento: Hawthorn 2 Dormitorios, 2 Baños, 1100 sq ftDisponible May 19, 2026Pennyroyal TH
2 Dormitorios, 2.5 Baños, 1457 pies²Disponible Mar 16Galería del Modelo
Planos
Detalles de Diponibilidad
Fecha Disponibilidad Unidad Pies² Ver Detalles March 16, 2026 0006 1457 March 17, 2026 0015 1457 Características y Comodidades de Modelo
Características
- Acceso a internet de alta velocidad
Detalles y características de la Unidad 0006
Características
- Acceso a Internet de alta velocidad
Características Propias
- Cabina de ducha en 1 baño
- Cocina con isla
- Garaje adjunto
- Incluye comedor
- Lavadora y secadora incluidas
- Patio extenso
- Tocador
- Ventana en la cocina
- Vestidor
Detalles y características de la Unidad 0015
Características
- Acceso a Internet de alta velocidad
Características Propias
- Cocina con isla
- Ducha estancada en 1 baño
- Garaje adjunto
- Incluye comedor
- Lavadora y secadora incluidas
- Patio extenso
- Tocador
- Ventana en la cocina
- Vestidor
Modelo de apartamento: Pennyroyal TH 2 Dormitorios, 2.5 Baños, 1457 sq ftDisponible March 16, 2026Los planos son representaciones artísticas. Todas las dimensiones son aproximadas. El producto y las especificaciones reales pueden variar en tamaño o detalle. No todas las características están disponibles en cada vivienda en alquiler. Por favor, consulta con un representante para obtener más detalles.
![]()
Pennyroyal TH - Plano 1 Unidad de apartamento: 0006Modelo de apartamento: Pennyroyal TH 2 Dormitorios, 2.5 Baños, 1457 sq ftDisponible March 16, 2026Unidad de apartamento: 0015Modelo de apartamento: Pennyroyal TH 2 Dormitorios, 2.5 Baños, 1457 sq ftDisponible March 17, 2026Featherfoil
2 Dormitorios, 1 Baño, 917 pies²Galería del Modelo
Planos
Detalles de Diponibilidad
Fecha Disponibilidad Unidad Pies² No Disponible Featherfoil 917 pies² Características y Comodidades de Modelo
Características
- Acceso a Internet de alta velocidad
- Libre de humo
Modelo de apartamento: Featherfoil 2 Dormitorios, 1 Baño, 917 sq ftNo DisponibleLos planos son representaciones artísticas. Todas las dimensiones son aproximadas. El producto y las especificaciones reales pueden variar en tamaño o detalle. No todas las características están disponibles en cada vivienda en alquiler. Por favor, consulta con un representante para obtener más detalles.
![]()
Featherfoil - Plano 1 Hazelnut
2 Dormitorios, 2 Baños, 1160 pies²Galería del Modelo
Planos
Detalles de Diponibilidad
Fecha Disponibilidad Unidad Pies² No Disponible Hazelnut 1160 pies² Características y Comodidades de Modelo
Características
- Acceso a Internet de alta velocidad
Modelo de apartamento: Hazelnut2 Dormitorios, 2 Baños, 1160 sq ftNo DisponibleLos planos son representaciones artísticas. Todas las dimensiones son aproximadas. El producto y las especificaciones reales pueden variar en tamaño o detalle. No todas las características están disponibles en cada vivienda en alquiler. Por favor, consulta con un representante para obtener más detalles.
![]()
Hazelnut - Plano 1 Holly Den
2 Dormitorios, 2 Baños, 1166 pies²Galería del Modelo
Planos
Detalles de Diponibilidad
Fecha Disponibilidad Unidad Pies² No Disponible Holly Den 1166 pies² Características y Comodidades de Modelo
Características
- Acceso a Internet de alta velocidad
Modelo de apartamento: Holly Den 2 Dormitorios, 2 Baños, 1166 sq ftNo DisponibleLos planos son representaciones artísticas. Todas las dimensiones son aproximadas. El producto y las especificaciones reales pueden variar en tamaño o detalle. No todas las características están disponibles en cada vivienda en alquiler. Por favor, consulta con un representante para obtener más detalles.
![]()
Holly Den - Plano 1 Plano: B5
2 Dormitorios, 2 Baños, 1172 pies²Detalles de Diponibilidad
Fecha Disponibilidad Unidad Pies² No Disponible B5 1172 pies² Lotus Den
2 Dormitorios, 2 Baños, 1281 pies²Galería del Modelo
Planos
Detalles de Diponibilidad
Fecha Disponibilidad Unidad Pies² No Disponible Lotus Den 1281 pies² Características y Comodidades de Modelo
Características
- Acceso a Internet de alta velocidad
Modelo de apartamento: Lotus Den 2 Dormitorios, 2 Baños, 1281 sq ftNo DisponibleLos planos son representaciones artísticas. Todas las dimensiones son aproximadas. El producto y las especificaciones reales pueden variar en tamaño o detalle. No todas las características están disponibles en cada vivienda en alquiler. Por favor, consulta con un representante para obtener más detalles.
![]()
Lotus Den - Plano 1 Mistflower
2 Dormitorios, 2 Baños, 1329 pies²Galería del Modelo
Planos
Detalles de Diponibilidad
Fecha Disponibilidad Unidad Pies² No Disponible Mistflower 1329 pies² Características y Comodidades de Modelo
Características
- Acceso a Internet de alta velocidad
Modelo de apartamento: Mistflower2 Dormitorios, 2 Baños, 1329 sq ftNo DisponibleLos planos son representaciones artísticas. Todas las dimensiones son aproximadas. El producto y las especificaciones reales pueden variar en tamaño o detalle. No todas las características están disponibles en cada vivienda en alquiler. Por favor, consulta con un representante para obtener más detalles.
![]()
Mistflower - Plano 1 Maple Loft
2 Dormitorios, 2 Baños, 1352 pies²Galería del Modelo
Planos
Detalles de Diponibilidad
Fecha Disponibilidad Unidad Pies² No Disponible Maple Loft 1352 pies² Características y Comodidades de Modelo
Características
- Acceso a Internet de alta velocidad
Modelo de apartamento: Maple Loft 2 Dormitorios, 2 Baños, 1352 sq ftNo DisponibleLos planos son representaciones artísticas. Todas las dimensiones son aproximadas. El producto y las especificaciones reales pueden variar en tamaño o detalle. No todas las características están disponibles en cada vivienda en alquiler. Por favor, consulta con un representante para obtener más detalles.
![]()
Maple Loft - Plano 1 Plum TH
2 Dormitorios, 2 Baños, 1458 pies²El más grandeEsta opción tiene las unidades más grandes para este modeloGalería del Modelo
Planos
Detalles de Diponibilidad
Fecha Disponibilidad Unidad Pies² No Disponible Plum TH 1458 pies² Características y Comodidades de Modelo
Características
- Acceso a Internet de alta velocidad
- Libre de humo
Modelo de apartamento: Plum TH 2 Dormitorios, 2 Baños, 1458 sq ftNo DisponibleLos planos son representaciones artísticas. Todas las dimensiones son aproximadas. El producto y las especificaciones reales pueden variar en tamaño o detalle. No todas las características están disponibles en cada vivienda en alquiler. Por favor, consulta con un representante para obtener más detalles.
![]()
Plum TH - Plano 1 3 Dormitorios
Ver Planos No DisponiblesSpeedwell
3 Dormitorios, 2 Baños, 1248 pies²Disponible AhoraEl más baratoEsta opción tiene los precios más bajos para este modeloGalería del Modelo
Planos
Detalles de Diponibilidad
Fecha Disponibilidad Unidad Pies² Disponible Ahora 1101 1248 Detalles y características de la Unidad 1101
Características
- Acceso a Internet de alta velocidad
- Libre de humo
Características Propias
- ¡Vista al patio
- Cabina de ducha en 1 baño
- Cocina con isla
- Condominio esquinero
- Edificio de media altura
- Lavabo doble en 1 baño
- Lavadora y secadora incluidas
- Patio extenso
- Vestidor
Modelo de apartamento: Speedwell3 Dormitorios, 2 Baños, 1248 sq ftDisponible AhoraLos planos son representaciones artísticas. Todas las dimensiones son aproximadas. El producto y las especificaciones reales pueden variar en tamaño o detalle. No todas las características están disponibles en cada vivienda en alquiler. Por favor, consulta con un representante para obtener más detalles.
![]()
Speedwell - Plano 1 Unidad de apartamento: 1101Modelo de apartamento: Speedwell3 Dormitorios, 2 Baños, 1248 sq ftDisponible AhoraWillow
3 Dormitorios, 2 Baños, 1413 pies²Disponible AhoraGalería del Modelo
Planos
Detalles de Diponibilidad
Fecha Disponibilidad Unidad Pies² Disponible Ahora 4162 1413 Detalles y características de la Unidad 4162
Características
- Acceso a Internet de alta velocidad
- Libre de humo
Características Propias
- ¡Almacenaje adicional
- Cabina de ducha en 1 baño
- Cocina con isla
- Edificio de media altura
- Lavabo doble en 1 baño
- Lavadora y secadora incluidas
- Mejora de categoría Platinum
- Podium Último piso
- Terrazas/patio
- Vestidor
Modelo de apartamento: Willow3 Dormitorios, 2 Baños, 1413 sq ftDisponible AhoraLos planos son representaciones artísticas. Todas las dimensiones son aproximadas. El producto y las especificaciones reales pueden variar en tamaño o detalle. No todas las características están disponibles en cada vivienda en alquiler. Por favor, consulta con un representante para obtener más detalles.
![]()
Willow - Plano 1 Unidad de apartamento: 4162Modelo de apartamento: Willow3 Dormitorios, 2 Baños, 1413 sq ftDisponible AhoraViolet
3 Dormitorios, 2 Baños, 1219 pies²Galería del Modelo
Planos
Detalles de Diponibilidad
Fecha Disponibilidad Unidad Pies² No Disponible Violet 1219 pies² Características y Comodidades de Modelo
Características
- Acceso a Internet de alta velocidad
- Libre de humo
Modelo de apartamento: Violet3 Dormitorios, 2 Baños, 1219 sq ftNo DisponibleLos planos son representaciones artísticas. Todas las dimensiones son aproximadas. El producto y las especificaciones reales pueden variar en tamaño o detalle. No todas las características están disponibles en cada vivienda en alquiler. Por favor, consulta con un representante para obtener más detalles.
![]()
Violet - Plano 1 Walnut Loft
3 Dormitorios, 2 Baños, 1371 pies²Galería del Modelo
Planos
Detalles de Diponibilidad
Fecha Disponibilidad Unidad Pies² No Disponible Walnut Loft 1371 pies² Características y Comodidades de Modelo
Características
- Acceso a Internet de alta velocidad
- Libre de humo
Modelo de apartamento: Walnut Loft 3 Dormitorios, 2 Baños, 1371 sq ftNo DisponibleLos planos son representaciones artísticas. Todas las dimensiones son aproximadas. El producto y las especificaciones reales pueden variar en tamaño o detalle. No todas las características están disponibles en cada vivienda en alquiler. Por favor, consulta con un representante para obtener más detalles.
![]()
Walnut Loft - Plano 1 Waterleaf
3 Dormitorios, 2 Baños, 1399 pies²Galería del Modelo
Planos
Detalles de Diponibilidad
Fecha Disponibilidad Unidad Pies² No Disponible Waterleaf 1399 pies² Características y Comodidades de Modelo
Características
- Acceso a Internet de alta velocidad
Modelo de apartamento: Waterleaf3 Dormitorios, 2 Baños, 1399 sq ftNo DisponibleLos planos son representaciones artísticas. Todas las dimensiones son aproximadas. El producto y las especificaciones reales pueden variar en tamaño o detalle. No todas las características están disponibles en cada vivienda en alquiler. Por favor, consulta con un representante para obtener más detalles.
![]()
Waterleaf - Plano 1 Yellowcress TH
3 Dormitorios, 2 Baños, 1458 pies²El más grandeEsta opción tiene las unidades más grandes para este modeloGalería del Modelo
Planos
Detalles de Diponibilidad
Fecha Disponibilidad Unidad Pies² No Disponible Yellowcress TH 1458 pies² Características y Comodidades de Modelo
Características
- Acceso a Internet de alta velocidad
- Libre de humo
Modelo de apartamento: Yellowcress TH 3 Dormitorios, 2 Baños, 1458 sq ftNo DisponibleLos planos son representaciones artísticas. Todas las dimensiones son aproximadas. El producto y las especificaciones reales pueden variar en tamaño o detalle. No todas las características están disponibles en cada vivienda en alquiler. Por favor, consulta con un representante para obtener más detalles.
![]()
Yellowcress TH - Plano 1
Información de la Comunidad
- Unidades
- Plantas
- Construido en
Términos de Arrendamiento
- Têrminos del Alquiler
Fees and Policies
Las tarifas que se indican a continuación son proporcionadas por la comunidad y pueden excluir servicios públicos o complementos. Todos los pagos se realizan directamente a la propiedad y no son reembolsables, salvo que se especifique lo contrario.
Tasas Requeridas
Básicos de una sola vez
- Pagadero en el momento de la solicitud
- Application Fee Per ApplicantiCharged Per Applicant.$100
- Security Deposit - RefundableiCharged Per Unit.$1500
- A pagar en el momento de la mudanza
- Administrative FeeiCharged Per Unit.$75
- Amenity FeeiCharged Per Unit.$600
- Deposit Alternatives AvailableiCharged per unit.Varies
Servicios Públicos
- Utility - Billing Administrative FeeiCharged Per Unit.$4.2/mes
- Utility - Water/SeweriCharged Per Unit.Usage-Based/mes
- Trash RemovaliCharged per unit.$18/mes
- OtheriCharged per unit.$0/mes
Other Fees
Complementos personales
- Renter's InsuranceiCharged Per Unit.$21.16/mes
Tasas situacionales
- Late FeeiCharged on the 6th Charged Per Occurrence.$250/por ocurrencia
- Non-Sufficient FundsiCharged per unit.$50/por ocurrencia
Tasas por mascotas
- Monthly Pet FeeiMax of 2. Charged Per Pet.$80/mes
- Pet FeeiMax of 2. Charged Per Pet.$600
- Monthly Pet FeeiMax of 2. Charged Per Pet.$80/mes
- Pet FeeiMax of 2. Charged Per Pet.$600
Cat
A pet profile (with PetScreening.com) and agreement for each pet required.Maximum of two pets per apartment home.No breed restrictions or weight limits.Applicable fees or deposits must be paid in full prior to the addition of a pet to your home.Animals not typically found in households including but not limited to monkeys, large birds, farm animals, squirrels, and large snakes and large lizards are prohibited. Aquariums over 15 gallons are also prohibited.
Dog
A pet profile (with PetScreening.com) and agreement for each pet required.Maximum of two pets per apartment home.No breed restrictions or weight limits.Applicable fees or deposits must be paid in full prior to the addition of a pet to your home.Animals not typically found in households including but not limited to monkeys, large birds, farm animals, squirrels, and large snakes and large lizards are prohibited. Aquariums over 15 gallons are also prohibited.
Max of 2.
Tasas de estacionamiento
- Parking FeeiCharged Per Vehicle.$10-$175/mes
Garage
Tasas de almacenamiento
- Storage FeeiCharged Per Rentable Item.$35-$175/mes
Storage Unit
Exención de responsabilidad sobre las tasas de propiedad: Based on community-supplied data and independent market research. Subject to change without notice. May exclude fees for mandatory or optional services and usage-based utilities.
Características y Facilidades
Mapa
- Compras
- Universidades
- Supermercado
- Médicos
- Transporte
- Propiedades Cercanas

Mapa
Horario e Información de Contacto
| Lunes | 9:00 am–6:00 pm |
| Martes | 9:00 am–6:00 pm |
| Miércoles | 9:00 am–6:00 pm |
| Jueves | 9:00 am–6:00 pm |
| Viernes | 9:00 am–5:00 pm |
| Sábado | 10:00 am–5:00 pm |
| Domingo | 12:00 pm–5:00 pm |
¿Qué son las clasificaciones Walk Score®, Transit Score® y Bike Score®?
- Walk Score® mide la viabilidad peatonal de cualquier dirección.
- Transit Score® mide el acceso a transporte público.
- Bike Score® mide la infraestructura de rutas para bicicletas de cualquier dirección.
¿Cómo accedo a los Servicios Sociales en Nueva Jersey?
El servicio en todo el estado es gratuito, confidencial, multilingüe y siempre abierto. Tres maneras fáciles de comunicarse con Servicios Sociales en NJ: Marque 2-1-1; envíe un mensaje de texto con su código postal al 898-211; o chatear en https://www.nj211.org
Opiniones y valoraciones de Inquilinos
So far, so good
June 19, 2024Location is great. Shaniece (leasing specialist) is very kind and helpful as are the other front office and maintenance staff.Property Manager Responded
July 2, 2024Hello, we strive for 100% satisfaction, and it is great to see you had such a positive experience at The Grove Somerset with Shaniece! Thank you, and have a fantastic day!
Reseña de Apartments.com
Avoid at all costs
January 16, 2024This place made my wife and I homeless - do not rent from here. We signed a lease to move in and 1 week before move in they told us we could not move in and offered no other accommodations. We had no where to move to despite needing to move out at the date we agreed to. 0/10 experience, move anywhere but hereProperty Manager Responded
January 23, 2024Hi, we regret to hear that you had this experience with us because of the delay with your chosen apartment home. We make every effort to provide other options in the event an apartment home is delayed due to unforeseen circumstances. Our staff provided temporary options and we understand it was not a preferred alternative. In light of this singular event, we provided you with a full refund. We sincerely apologize for any inconvenience this has caused you and we truly wish you the best.
Reseña de Apartments.com
Terrible place to live
August 4, 2023Terrible place to live. Read other sites reviews and you’ll see reports of squatters in empty apartments, infestations and broken appliances. Things are constantly broken. Way to expensive for what you will pay, do yourself a favor and go somewhere elseProperty Manager Responded
August 14, 2023Hello Anonymous, your review is important to us. While we are unaware of squatters, infestations we do have a wonderful maintenance team that consistently takes care of the community and a dedicated group of various vendors who respond to our requests for maintenance needs. Please reach out to us at (732) 226-8651 when you can so we can address this situation directly. Thank you and have a great day.
Reseña de Apartments.com
Read the true story of this place!!!
September 11, 2021Nightmare…Avoid it if you can!!! Here is my latest story. I moved in on 8/15 and the two toilets stopped working within 1 week. The serviceman came in and left within 30secs without fixing the problem at all and promised to follow up. It’s been over 2 weeks without any update from the guy. I complained to the leasing office. I believe they followed up but really trust me the leading office speak nicely but never get things done, which is super super wasting people’s time. Ridiculously they ...charged me a fee for an inspection, which in theory is to check everything works before I move in. Remember the fact that I just moved in. Now I already have to travel to the gym and do my poops. Also I can see cockroaches often in the hallway because the building smells like crap. The carpet is super terribly maintained and super aged. Again the leasing office speak nicely and never get things done. I have to be worried about my packages getting lost if they cannot fit into Amazon Hubs. They leave my big packages on the floor at the mercy of other residents. People leave their abandoned furniture on the public floor for months without any attention from the leasing office.Property Manager Responded
September 13, 2021We would like to apologize for your recent experience and sorry to hear you were less than satisfied. We pride ourselves on our service and the high-quality standards we maintain and would like to make things right. Please reach out to us to discuss what occurred. Thank You Angel Quinones 732-226-8651
Property Manager Responded
April 3, 2022We apologize that your experience with our community has been anything less than exceptional. Our team is committed to providing stellar service to all who walk through our doors and we are sorry to learn that we fell short of your expectations. We urge you to give us a call or stop by our office at your convenience so that we may speak with you further on how we can improve your time here. Thank you, Angel Quinones -Multi- Site Property Manager
Leer MásReseña de Apartments.com
Beautiful Place to Live!
May 12, 2021The Grove Somerset apartments are beautiful and the management team is great. They helped me find the perfect apartment with a nice view and made sure it was ready on time. I recently moved in and I love it! The building and fitness center is nice and clean. There are other great amenities which includes a clubhouse and pool! And did I mention pet friendly?! I definitely recommend!Property Manager Responded
November 2, 2021Hello, Thank you for sharing and letting us know you LOVE where you live:-) We appreciate your kind words. With care, The Grove
Reseña de Apartments.com
Horrible Management
February 11, 2021Pests, bait and switch, safety issues. Don’t rent here.Property Manager Responded
September 13, 2021We would like to apologize for your recent experience and sorry to hear you were less than satisfied. We pride ourselves on our service and the high-quality standards we maintain and would like to make things right. Please reach out to us to discuss what occurred. Thank You Angel Quinones 732-226-8651
Reseña de Apartments.com
Horrible
February 1, 2021From incompetent lazy management old and new to lazy maintenance and horrible tenants above us, this place is horrible. No wonder why so many people left in one year and continue to move out. It’s not worth your money to live in a place where tenants can be rude and cause damage to your apt and no one including maintenance does anything. There is so many water damage to this apt it’s disgusting, management was informed of rude disrespectful tenants above and did absolutely nothing but they so ...called want their money. Absolutely not, not worth living here . Please read this when I say these people do not care about you or your home. This place is no longer a home for me and I warn anyone to please second guess paying these prices to live in hell. This place is horrible. Only good thing is location but the tenants are rude, management doesn’t care and maintenance is lazy. Don’t live here !Property Manager Responded
September 13, 2021We would like to apologize for your recent experience and sorry to hear you were less than satisfied. We pride ourselves on our service and the high-quality standards we maintain and would like to make things right. Please reach out to us to discuss what occurred. Thank You Angel Quinones 732-226-8651
Leer MásReseña de Apartments.com
Bad
October 19, 2016Horrible horrible horrible. I am still fighting to get my deposit money back. Luckily I took a full video of the condition of the apartment because I was told they would try to keep money for nothing so do yourself a favor and do the same because they will 110% try to keep as much money from you as possible. Save yourself the trouble and live somewhere else there are really nice new places that just got built a few miles away. Trust me it isn't worth the headache living here. Also the front ...office people will be nice, until your leaving and then turn into literally the rudest and lowest class people I have ever had to deal with. You've been warned.Leer MásReseña de Apartments.com
The Avalon Communities
September 19, 2015I have currently been living here for almost 2 years. After a horrible divorce, my daughter and I decided to move out of the home she grew up in to the Avalon. We have never been happier, this place is always well kept, there is a great security system for every building, the bedrooms are perfect size and we have a large enough kitchen to have guest over during the holidays, as we did at our home. Whats even more amazing, is that there are BBQ areas around the development so during the summer ...time this is a great way to bond with neighbors and have family & friends over.Leer MásReseña de Apartments.com
High Rent, Low Reward
August 22, 2015We were one of the first tenants to move into this brand new complex that was built a couple of years ago. The rent is really high and it went up over the years. The fees also add up really quickly, from outside parking, garage fees, to amenities... PROS: - The ceilings are thick and we never had noise complaints from neighbors below us. - The walls are rather thick too: while you can hear happenings in the - hallway, you can't hear your neighbors' parties. - The community is clean, ...well-maintained and comfortable. - The gym is well equipped: many cardio options, yoga area, good weights and machines - Great clubhouse with a kitchen, pool table, big screen TVs, etc. - Maintenance staff is really good (you get 24-hour complimentary maintenance) CONS: Shabby workmanship: - Our walls have cracks in them, the maintenance team calls it "settling", since it's a newly built complex. It looks bad and dangerous in case of an earthquake. - Our kitchen bar's countertop is detaching off its base, which proves the surfaces haven't been leveled properly. - Our kitchen's fake-hardwood floor is all misaligned. - Our 2 door posts detached and broke after using a pull up bar on them.(we're normal-weight people). Turns out they were attached by 2 flimsy nails. - When we moved in, the apartment wasn't even painted. I hope this happened because we were the 1st tenants. - Don't expect stainless steel appliances or granite countertops, they used cheap materials and furnishings. - In summary: THESE APARTMENTS WERE BUILT TO LOOK, NOT TO LAST. SERVICE: - The turnover of the management team is so high, expect to see a new person in the office every week (no exaggeration). This causes inconsistency in their service. - There's also a high turnover for tenants, we've seen dozens of people come and go. Why is everyone leaving? I think tenants are leaving because they notice they're not getting enough for their money. PETS: A lot of people are complaining about the pet fee. It doesn't matter if you have a big dog, or a gold-fish, there is a $500 non-refundable fee, plus $50 a month per pet. If you're not taking your pet to the community's small dog park, I don't understand what you're paying the fee for, since there's nothing else for pets here. SAFETY: - The area is rather safe, but there have been reports of carjacks recently. I see police cars patrolling the area daily now.Leer MásReseña de Apartments.com
Avelon Somerset
August 2, 2015Our complex is a high end pet friendly community. Great responsive staff. Large and bright apartments Nicely kept grounds and a salt water pool.Reseña de Apartments.com
Escuelas Cercanas
Franklin Twp High School
Sitios de Interés
Tiempo y distancia desde The Grove Somerset.
Grandes Superficies de Ventas
Walgreens
Autozone
Aldi
Universidad
Tiendas
Stop & Shop
Aldi
Lidl
Hospitales
University Behavioral Health Care
Saint Peter's University Hospital
Children's Specialized Hospital
Bases Militares
Ash Brook Reservation
Tamdques Reservation
Centros Comerciales
The Grove Somerset tiene 5 centros comerciales en un radio de 1.0 millas.
Estaciones de Tránsito
Barrios cercanos
Rango de Precios de los Alquileres en la Zona
| Dormitorios | Precio Promedio | Más barato | Más caro |
|---|---|---|---|
| Apartamentos Estudio en Somerset | $2,132 | $1,500 | $2,744 |
| Apartamentos 1 Dormitorios en Somerset | $2,284 | $1,145 | $3,834 |
| Apartamentos 2 Dormitorios en Somerset | $2,901 | $940 | $4,924 |
| Apartamentos 3 Dormitorios en Somerset | $3,930 | $1,325 | $7,956 |
Apartamentos Cercanos
Búsqueda oficial de apartamentos
¿Sabía qué?
El precio medio de Apartamento en Somerset con 3 Dormitorios es $3,930.


























Max of 2.