Photos

















- 1–3 Dormitorios
- $2,150-$4,705Precios de alquiler
- 1,141–2,424Pies cuadrados
Acerca The Towns On Elm
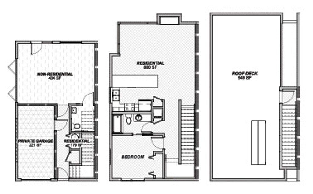
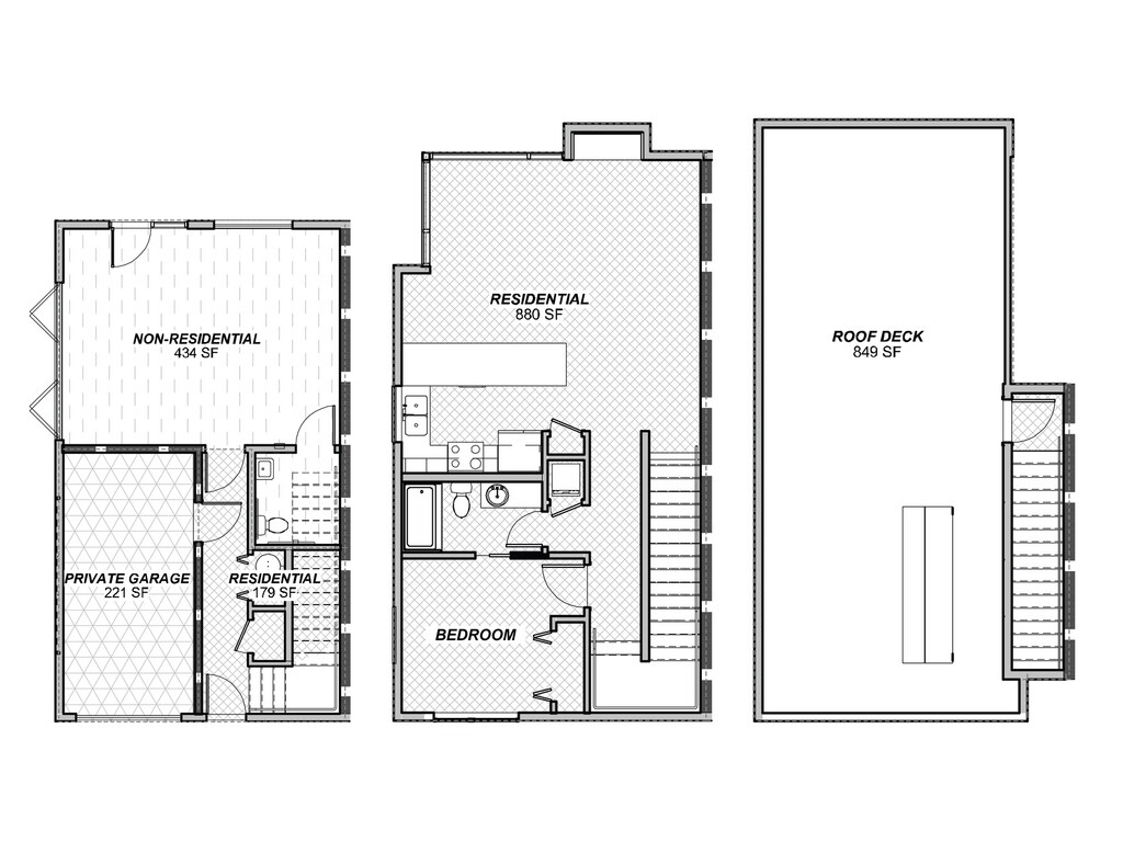
The Towns On Elm is a purpose-built live/work townhome community designed for entrepreneurs who want more than a traditional apartment—and more flexibility than a separate office lease. Located in the heart of Downtown Kennewick, this 22-unit community blends modern residential living with street-facing commercial space, allowing residents to live and operate businesses without sacrificing privacy or comfort. Each townhome is designed vertically, with a mix of residential-only units and others with attached storefront space below and refined living spaces above. Select townhomes feature expansive rooftop decks. No shared hallways. No elevators. Just private entries, oversized layouts, attached garages, floor-to-ceiling windows, and modern finishes that feel luxurious. Surrounded by growing local momentum—including new restaurants, breweries, and waterfront development—The Towns On Elm offers a rare opportunity to live, work, and build your presence as Downtown Kennewick comes to life.
The Towns On Elm se encuentra en el código postal 99336 de Kennewick, WA. Esta comunidad está gestionada profesionalmente por Paragon Group
Características personalizadas
- Local comercial adjunto
- Garaje atado
- Caminabilidad en el centro
- Windows del suelo al techo
- Lavandería en la unidad
- Vida en una casa adosada de gran tamaño
- Se admiten mascotas.
- Entrada privada
- WALK-IN ARMARIO
- Agua/alcantarillado/residuos
Información de contacto de la propiedad

Precios y Disponibilidad de Plano
The Towns On Elm ofrece apartamentos de 1 a 3 Dormitorios desde $2,150 con 1,141–2,424 pies cuadrados. Aquí está el precio actual y la disponibilidad:
¡Nuevo! Mapa Interactivo de Propiedades
1 Dormitorio
Live/Work - 1 Bed x 1.5 Bath
$3,050
1 Dormitorio, 1.5 Baños, 1510 pies²Disponible prontoGalería del Modelo
Planos
Fotos
Detalles de Diponibilidad
Precio Fecha Disponibilidad Unidad Pies² Depósito $3,050 Disponible Pronto A110 1510 $2,000 Detalles y características de la Unidad A110
Cocina
- Fogón
- Lavavajillas
- Microondas
- Nevera
Espacio Vital
- Vistas
Características Propias
- Agua/Alcantarillado/Basura
- Caminabilidad en el centro
- Entrada privada
- Garaje adjunto
- Lavandería en la unidad
- Se admiten mascotas
- Ventanas de piso a techo
- Vestidor
- Vida en una casa adosada de gran tamaño
Tasas y precio de la unidad A110
Precio por Unidad
- $3,050
Ver detalles y estimación de rentaDepósito
- $2,000 deposit
Tasas y precios del modelo
Precio
- $3,050
Modelo de apartamento: Live/Work - 1 Bed x 1.5 Bath$3,0501 Dormitorio, 1.5 Baños, 1510 sq ftDisponible prontoPlanosFotos![]()
Live/Work - 1 Bed x 1.5 Bath - Imagen 1 ![]()
Live/Work - 1 Bed x 1.5 Bath - Imagen 2 ![]()
Live/Work - 1 Bed x 1.5 Bath - Imagen 3 ![]()
Live/Work - 1 Bed x 1.5 Bath - Imagen 4 ![]()
Live/Work - 1 Bed x 1.5 Bath - Imagen 5 ![]()
Live/Work - 1 Bed x 1.5 Bath - Imagen 6 ![]()
Live/Work - 1 Bed x 1.5 Bath - Imagen 7 ![]()
Live/Work - 1 Bed x 1.5 Bath - Imagen 8 ![]()
Live/Work - 1 Bed x 1.5 Bath - Imagen 9 ![]()
Live/Work - 1 Bed x 1.5 Bath - Imagen 10 ![]()
Live/Work - 1 Bed x 1.5 Bath - Plano 11 ![]()
Live/Work - 1 Bed x 1.5 Bath - Plano 12 Unidad de apartamento: A110Modelo de apartamento: Live/Work - 1 Bed x 1.5 Bath$3,0501 Dormitorio, 1.5 Baños, 1510 sq ftDisponible Pronto2 Dormitorios
Residential - 2 Bed x 2 bath x 1,141 SF
$2,150
2 Dormitorios, 2 Baños, 1141 pies²Disponible Mar 15Galería del Modelo
Planos
Fotos
Detalles de Diponibilidad
Precio Fecha Disponibilidad Unidad Pies² Depósito $2,150 March 15, 2026 C110 1141 $2,000 Detalles y características de la Unidad C110
Características
- Aire acondicionado
- Almacén/trastero
- Bañera/Ducha
- Barandillas
- Calefacción
- Lavadora/Secadora
- Libre de humo
Cocina
- Electrodomésticos de acero inoxidable
- Encimeras de cuarzo
- Fogón
- Horno
- Lavavajillas
- Microondas
- Nevera
- Zona de eliminación de desechos
Espacio Vital
- Comedor
- Suelos de vinilo
- Techos altos
- Ventanas de suelo a techo
Características Propias
- Agua/Alcantarillado/Basura
- Caminabilidad en el centro
- Entrada privada
- Garaje adjunto
- Lavandería en la unidad
- Se admiten mascotas
- Ventanas de piso a techo
- Vida en una casa adosada de gran tamaño
Tasas y precio de la unidad C110
Precio por Unidad
- $2,150
Ver detalles y estimación de rentaDepósito
- $2,000 deposit
Tasas y precios del modelo
Precio
- $2,150
Modelo de apartamento: Residential - 2 Bed x 2 bath x 1,141 SF$2,1502 Dormitorios, 2 Baños, 1141 sq ftDisponible March 15, 2026PlanosFotos![]()
Residential - 2 Bed x 2 bath x 1,141 SF - Imagen 1 ![]()
Residential - 2 Bed x 2 bath x 1,141 SF - Imagen 2 ![]()
Residential - 2 Bed x 2 bath x 1,141 SF - Imagen 3 ![]()
Residential - 2 Bed x 2 bath x 1,141 SF - Imagen 4 ![]()
Residential - 2 Bed x 2 bath x 1,141 SF - Imagen 5 ![]()
Residential - 2 Bed x 2 bath x 1,141 SF - Imagen 6 ![]()
Residential - 2 Bed x 2 bath x 1,141 SF - Imagen 7 ![]()
Residential - 2 Bed x 2 bath x 1,141 SF - Imagen 8 ![]()
Residential - 2 Bed x 2 bath x 1,141 SF - Imagen 9 ![]()
Residential - 2 Bed x 2 bath x 1,141 SF - Imagen 10 ![]()
Residential - 2 Bed x 2 bath x 1,141 SF - Plano 11 Unidad de apartamento: C110Modelo de apartamento: Residential - 2 Bed x 2 bath x 1,141 SF$2,1502 Dormitorios, 2 Baños, 1141 sq ftDisponible March 15, 2026Residential - 2 Bed x 2 bath x 1,176 SF
$2,250
2 Dormitorios, 2 Baños, 1176 pies²Disponible Mar 15Galería del Modelo
Planos
Fotos
Detalles de Diponibilidad
Precio Fecha Disponibilidad Unidad Pies² Depósito $2,250 March 15, 2026 D110 1176 $2,000 Detalles y características de la Unidad D110
Características
- Aire acondicionado
- Bañera/Ducha
- Barandillas
- Calefacción
- Lavadora/Secadora
- Libre de humo
Cocina
- Electrodomésticos de acero inoxidable
- Encimeras de cuarzo
- Fogón
- Horno
- Lavavajillas
- Microondas
- Nevera
- Zona de eliminación de desechos
Espacio Vital
- Comedor
- Suelos de vinilo
- Techos altos
- Ventanas de suelo a techo
Características Propias
- Agua/Alcantarillado/Basura
- Caminabilidad en el centro
- Entrada privada
- Garaje adjunto
- Lavandería en la unidad
- Se admiten mascotas
- Ventanas de piso a techo
- Vida en una casa adosada de gran tamaño
Tasas y precio de la unidad D110
Precio por Unidad
- $2,250
Ver detalles y estimación de rentaDepósito
- $2,000 deposit
Tasas y precios del modelo
Precio
- $2,250
Modelo de apartamento: Residential - 2 Bed x 2 bath x 1,176 SF$2,2502 Dormitorios, 2 Baños, 1176 sq ftDisponible March 15, 2026PlanosFotos![]()
Residential - 2 Bed x 2 bath x 1,176 SF - Imagen 1 ![]()
Residential - 2 Bed x 2 bath x 1,176 SF - Imagen 2 ![]()
Residential - 2 Bed x 2 bath x 1,176 SF - Imagen 3 ![]()
Residential - 2 Bed x 2 bath x 1,176 SF - Imagen 4 ![]()
Residential - 2 Bed x 2 bath x 1,176 SF - Imagen 5 ![]()
Residential - 2 Bed x 2 bath x 1,176 SF - Imagen 6 ![]()
Residential - 2 Bed x 2 bath x 1,176 SF - Imagen 7 ![]()
Residential - 2 Bed x 2 bath x 1,176 SF - Imagen 8 ![]()
Residential - 2 Bed x 2 bath x 1,176 SF - Imagen 9 ![]()
Residential - 2 Bed x 2 bath x 1,176 SF - Imagen 10 ![]()
Residential - 2 Bed x 2 bath x 1,176 SF - Plano 11 Unidad de apartamento: D110Modelo de apartamento: Residential - 2 Bed x 2 bath x 1,176 SF$2,2502 Dormitorios, 2 Baños, 1176 sq ftDisponible March 15, 20263 Dormitorios
Live/Work - 3 Bed x 3.5 Bath
$4,705
3 Dormitorios, 3.5 Baños, 2424 pies²Disponible AhoraGalería del Modelo
Planos
Fotos
Detalles de Diponibilidad
Precio Fecha Disponibilidad Unidad Pies² Depósito $4,705 Disponible Ahora B110 2424 $2,000 Detalles y características de la Unidad B110
Características
- Aire acondicionado
- Almacén/trastero
- Bañera/Ducha
- Barandillas
- Calefacción
- Lavadora/Secadora
- Libre de humo
- Tocadores dobles
- Ventiladores de techo
Cocina
- Despensa
- Electrodomésticos de acero inoxidable
- Encimeras de cuarzo
- Fogón
- Horno
- Lavavajillas
- Microondas
- Nevera
- Zona de eliminación de desechos
Espacio Vital
- Comedor
- Mueble bar con fregadero
- Suelos de vinilo
- Techos altos
- Ventanas de suelo a techo
- Vestidores
- Vistas
Espacio al Aire Libre
- Cubierta
Características Propias
- Agua/Alcantarillado/Basura
- Caminabilidad en el centro
- Entrada privada
- Garaje adjunto
- Lavandería en la unidad
- Local comercial adjunto
- Se admiten mascotas
- Ventanas de piso a techo
- Vestidor
- Vida en una casa adosada de gran tamaño
Tasas y precio de la unidad B110
Precio por Unidad
- $4,705
Ver detalles y estimación de rentaDepósito
- $2,000 deposit
Tasas y precios del modelo
Precio
- $4,705
Modelo de apartamento: Live/Work - 3 Bed x 3.5 Bath$4,7053 Dormitorios, 3.5 Baños, 2424 sq ftDisponible AhoraPlanosFotos![]()
Live/Work - 3 Bed x 3.5 Bath - Imagen 1 ![]()
Live/Work - 3 Bed x 3.5 Bath - Imagen 2 ![]()
Live/Work - 3 Bed x 3.5 Bath - Imagen 3 ![]()
Live/Work - 3 Bed x 3.5 Bath - Imagen 4 ![]()
Live/Work - 3 Bed x 3.5 Bath - Imagen 5 ![]()
Live/Work - 3 Bed x 3.5 Bath - Imagen 6 ![]()
Live/Work - 3 Bed x 3.5 Bath - Imagen 7 ![]()
Live/Work - 3 Bed x 3.5 Bath - Imagen 8 ![]()
Live/Work - 3 Bed x 3.5 Bath - Imagen 9 ![]()
Live/Work - 3 Bed x 3.5 Bath - Imagen 10 ![]()
Live/Work - 3 Bed x 3.5 Bath - Plano 11 Unidad de apartamento: B110Modelo de apartamento: Live/Work - 3 Bed x 3.5 Bath$4,7053 Dormitorios, 3.5 Baños, 2424 sq ftDisponible Ahora
Programar una Visita
Información de la Comunidad
- Unidades
- Plantas
- Construido en
- Ver el sitio web de la propiedad
Términos de Arrendamiento
- Têrminos del Alquiler
Fees and Policies
Las tarifas que se indican a continuación son proporcionadas por la comunidad y pueden excluir servicios públicos o complementos. Todos los pagos se realizan directamente a la propiedad y no son reembolsables, salvo que se especifique lo contrario. Usa la Calculadora de Costos para determinar los gastos según tus necesidades.
Tasas Requeridas
Básicos de una sola vez
- Pagadero en el momento de la solicitud
- Application Fee Per ApplicantiCharged per unit.$135
Pet Policy and Fees
Cats
AllowedDogs
AllowedOthers
Parking Info and Fees
- Garage Parkingi1 garage space. 1 additional parking space available.
- 1 Max
Exención de responsabilidad sobre las tasas de propiedad: Based on community-supplied data and independent market research. Subject to change without notice. May exclude fees for mandatory or optional services and usage-based utilities.
Características y Facilidades
Características Propias
- Local comercial adjunto
- Garaje atado
- Caminabilidad en el centro
- Windows del suelo al techo
- Lavandería en la unidad
- Vida en una casa adosada de gran tamaño
- Se admiten mascotas.
- Entrada privada
- WALK-IN ARMARIO
- Agua/alcantarillado/residuos
Servicios
- Vigilancia Por Vídeo
- Instalaciones De Lavandería
Características al Aire Libre
- Frente Al Mar
- Terraza En El Techo
- Patio
- Cubierta
Características Interior
- Barandillas
- Acceso A Internet De Alta Velocidad
- Tocadores Dobles
- Sistema De Rociadores
- Lavadora/Secadora
- Wifi
- Libre De Humo
Características de la Cocina
- Encimeras De Cuarzo
- Electrodomésticos De Acero Inoxidable
- Cocina
- Lavavajillas
- Microondas
- Cocina Con Isla
- Fogón
- Nevera
- Zona De Eliminación De Desechos
- Congelador
Características de la Sala de Estar
- Vestidores
- Techos Altos
- Ventanas De Suelo A Techo
- Vistas
- Sala Familiar
- Oficina
- Suelos De Vinilo

Mapa
- Compras
- Universidades
- Supermercado
- Médicos

Mapa
Horario e Información de Contacto
| Lunes | 8:00 am–5:00 pm |
| Martes | 8:00 am–5:00 pm |
| Miércoles | 8:00 am–5:00 pm |
| Jueves | 8:00 am–5:00 pm |
| Viernes | 8:00 am–11:00 am |
| Sábado | Cerrado |
| Domingo | Cerrado |
Preguntas Frecuentes sobre The Towns On Elm
¿Donde se encuentra The Towns On Elm?
The Towns On Elm se encuentran en 212 N Elm St, Kennewick, WA
¿Cuál es el rango de alquiler vigente en The Towns On Elm?
El rango de alquiler de Apartamentos 1 dormitorios a 3 dormitorios en The Towns On Elm van desde $2,150 a $4,705
¿Qué horarios tiene la oficina de alquiler?
- El horario de oficina de The Towns On Elm es
- Lunes 8:00 am–5:00 pm
- Martes 8:00 am–5:00 pm
- Miércoles 8:00 am–5:00 pm
- Jueves 8:00 am–5:00 pm
- Viernes 8:00 am–11:00 am
- Sábado Cerrado
- Domingo Cerrado
¿Se permiten mascotas?
Llámenos hoy para conocer nuestra política de mascotas y saber si las aceptamos.
Opiniones y valoraciones de Inquilinos
Escuelas Cercanas
Kennewick High School
Amistad Elementary School
Park Middle School
Sitios de Interés
Tiempo y distancia desde The Towns On Elm.
Grandes Superficies de Ventas
Autozone
Walgreens
Petco
Universidad
Tiendas
Cash & Carry
Fred Meyer
Winco Foods
Hospitales
Trios Health
Lourdes Medical Center
Kadlec Regional Medical Center
Centros Comerciales
The Towns On Elm tiene 5 centros comerciales en un radio de 2.2 millas.
Barrios cercanos
Rango de Precios de los Alquileres en la Zona
| Dormitorios | Precio Promedio | Más barato | Más caro |
|---|---|---|---|
| Apartamentos Estudio en Kennewick | $1,089 | $866 | $1,955 |
| Apartamentos 1 Dormitorios en Kennewick | $1,519 | $895 | $3,050 |
| Apartamentos 2 Dormitorios en Kennewick | $1,824 | $1,100 | $3,660 |
| Apartamentos 3 Dormitorios en Kennewick | $2,031 | $1,277 | $5,082 |
| Apartamentos 4 Dormitorios en Kennewick | $4,302 | $2,000 | $7,545 |
Ver Apartamentos más destacados en Kennewick
Por el Precio
Por tipo de comunidad
- Apartamentos en alquiler por el propietario en Kennewick
- Apartamentos en Kennewick con Oferta Especial
- Apartamentos en Kennewick Más Valorados
- Apartamentos en Kennewick Viviendas Corporativas
- Apartamentos en Kennewick Amueblado
- Apartamentos en Kennewick Reja de Entrada Automática
- Apartamentos en Kennewick Loft
- Apartamentos en Kennewick De Bajos Ingresos
- Nuevos Apartamentos en Kennewick
- Apartamentos en Kennewick Personas Mayores
- Apartamentos en Kennewick Contratos de Corto Plazo
- Apartamentos en Kennewick con Utilidades Incluidas






























