Photos


















- Estudio–1 Dormitorios
- $1,582-$2,950Precios de alquiler
- 535–703Pies cuadrados
Acerca Wally Apartment
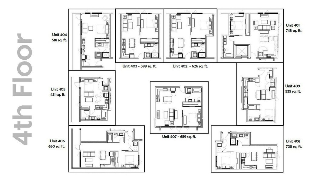
Vive en Wallingford's más adorable vecino - Wally! Estos apartamentos urbanos ofrecen ventanas de gran tamaño que ofrecen excelente luz natural, un amplio armario, y un baño grande con una lavadora/secadora en el apartamento. Alquilar en Wally también le ofrece acceso a la terraza de la azotea con una vista inigualable del centro de la ciudad de Seattle, acceso a una barbacoa, y de estar independientes. Llama o envía un correo electrónico hoy para programar tu cita de recorrido Wally! Se admiten mascotas (se aplican algunas restricciones de raza. Múdate ahora! recorrido 3D enlaces: 402: (202 que se muestran en el recorrido en 3D, 402 está pisos de madera) https://my.matterport.com/show/?m=QnKkkrBtgRA&brand=0 409 (209 que se muestra, 409 es flooring) de madera: https://my.matterport.com/show/?m=ETbK6g72iVt 306 (206 que se muestra, 306 es pisos de madera) https://my.matterport.com/show/?m=6bYLNeM5WiX 204: (304 que se muestran en el recorrido en video, 204 es de pisos de hormigón) https://dropbox.com/sh/y2pk6xruluyfwqt/AAAB0phTKZIeS5jqXIR_9Mlsa?dl=0 207: (407 que se muestran en el recorrido 3D) https://my.matterport.com/show/?m=xxqERzPSUA9 201: (401 que se muestran en el recorrido en 3D, 201 tiene pisos de hormigón) https://my.matterport.com/show/?m=sNtno6jaLxA
Wally Apartment se encuentra en el Barrio Fremont y el código postal 98103 de Seattle, WA. Esta comunidad está gestionada profesionalmente por Pacific Crest Real Estate, LLC
Características personalizadas
- 91 Walkscore
- Parrillas
- Parrillas para barbacoa
- Suelos de hormigón
- Estacionamiento cubierto.
- Vista del centro
- Garaje de estacionamiento
- Plantas diáfanas
- Se admiten mascotas.
- Terraza en la azotea
- Rooptop Deck with BBQ and amazing Seattle views
- Seating Area
- Stove Top Oven
Información de contacto de la propiedad

Precios y Disponibilidad de Plano
Wally Apartment ofrece apartamentos de Estudio a 1 Dormitorio desde $1,582 con 535–703 pies cuadrados. Aquí está el precio actual y la disponibilidad:
¡Nuevo! Mapa Interactivo de Propiedades
Estudio
Studio
$1,582
Estudio, 1 Baño, 535 pies²Disponible AhoraGalería del Modelo
Planos
Detalles de Diponibilidad
Precio Fecha Disponibilidad Unidad Pies² Depósito Fotos $1,582 Disponible Ahora 209 535 $900 Gallería de la Unidad 209
Fotos
Detalles y características de la Unidad 209
Cocina
- Lavavajillas
- Microondas
- Nevera
Características Propias
- Servicios Únicos
Tasas y precio de la unidad 209
Precio por Unidad
- $1,582
Depósito
- $900 deposit
Tasas y precios del modelo
Precio
- $1,582
Modelo de apartamento: Studio$1,582Estudio, 1 Baño, 535 sq ftDisponible AhoraStudio - Plano 1 Unidad de apartamento: 209Modelo de apartamento: Studio$1,582Estudio, 1 Baño, 535 sq ftDisponible AhoraUnidad: 209 - Imagen 1 Unidad: 209 - Imagen 2 Unidad: 209 - Imagen 3 Unidad: 209 - Imagen 4 Unidad: 209 - Imagen 5 Unidad: 209 - Imagen 6 Unidad: 209 - Imagen 7 Unidad: 209 - Imagen 8 Unidad: 209 - Imagen 9 Unidad: 209 - Imagen 10 1 Dormitorio
Plano: 1x1
Desde $2,725
1 Dormitorio, 1 Baño, 659-703 pies²Disponible AhoraGalería del Modelo
Planos
Fotos
Detalles de Diponibilidad
Precio Fecha Disponibilidad Unidad Pies² Depósito Ver Detalles $2,725 Disponible Ahora 407 659 $900 $2,950 October 10, 2025 308 703 $900 Características y Comodidades de Modelo
Cocina
- Lavavajillas
- Microondas
- Nevera
Características Propias
- Servicios Únicos
Tasas y precios del modelo
Rango de Precios Modelo
- $2,725 - $2,950
Depósito
- $900 deposit
Detalles y características de la Unidad 407
Cocina
- Lavavajillas
- Microondas
- Nevera
Características Propias
- Servicios Únicos
Tasas y precio de la unidad 407
Precio por Unidad
- $2,725
Depósito
- $900 deposit
Tasas y precios del modelo
Rango de Precios Modelo
- $2,725 - $2,950
Detalles y características de la Unidad 308
Cocina
- Lavavajillas
- Microondas
- Nevera
Características Propias
- Servicios Únicos
Tasas y precio de la unidad 308
Precio por Unidad
- $2,950
Depósito
- $900 deposit
Tasas y precios del modelo
Rango de Precios Modelo
- $2,725 - $2,950
Modelo de apartamento: 1x1Desde $2,7251 Dormitorio, 1 Baño, 659-703 sq ftDisponible AhoraPlanosFotos1x1 - Imagen 1 1x1 - Imagen 2 1x1 - Imagen 3 1x1 - Imagen 4 1x1 - Imagen 5 1x1 - Imagen 6 1x1 - Imagen 7 1x1 - Imagen 8 1x1 - Imagen 9 1x1 - Imagen 10 1x1 - Plano 11 1x1 - Plano 12 1x1 - Plano 13 1x1 - Plano 14 1x1 - Plano 15 1x1 - Plano 16 Unidad de apartamento: 407Modelo de apartamento: 1x1$2,7251 Dormitorio, 1 Baño, 659 sq ftDisponible AhoraUnidad de apartamento: 308Modelo de apartamento: 1x1$2,9501 Dormitorio, 1 Baño, 703 sq ftDisponible October 10, 2025
Programar una Visita
Información de la Comunidad
- Unidades
- Plantas
- Construido en
Está a punto de salir de ApartmentHomeLiving.com…
Términos de Arrendamiento
- Têrminos del Alquiler
Fees and Policies
Las tarifas que figuran a continuación se basan en datos facilitados por la comunidad y pueden excluir tasas y servicios adicionales.
Other Fees
Complementos personales
- Application Fee Per Applicant$42
Pet Policy and Fees
Fish
- Fees Not Specified
Cats
- 1 Pet Limit
- $50 Monthly Pet Rent
$300 deposit is refundable
Birds
- Fees Not Specified
Reptiles
- Fees Not Specified
Dogs
- 1 Pet Limit
- $50 Monthly Pet Rent
$300 deposit is refundable
Parking Info and Fees
- Garage Parking
- 1 Max, Assigned Parking
- $200/Mo
- Covered
- 1 Max, Assigned Parking
- $150/Mo
Características y Facilidades
Servicios
- Acceso Las 24 Horas
- Entrada Con Llavero Electrónico
Características de la Comunidad
- Ascensor
Características al Aire Libre
- Parrilla
- Acceso Controlado
- Cubierta
Características Interior
- Sistema De Seguridad
- Bañera/Ducha
- Intercomunicador
- Preinstalación De Cables
- Libre De Humo
Características de la Cocina
- Zona De Eliminación De Desechos
- Electrodomésticos De Acero Inoxidable
Características de la Sala de Estar
- Vistas
- Ventana Mirador
- Ventanas De Suelo A Techo
- Sala De Estar
- Suelos De Madera Maciza
Características únicas
- Garaje

Mapa
- Compras
- Universidades
- Supermercado
- Médicos
- Transporte

Mapa
Horario e Información de Contacto
Lunes | Con Cita Previa |
Martes | Cerrado |
Miércoles | Cerrado |
Jueves | Con Cita Previa |
Viernes | Con Cita Previa |
Sábado | Con Cita Previa |
Domingo | Con Cita Previa |
Desplazarse
Walk Score®
82 / 100
Muy peatonal
La mayoría de los trámites diarios se pueden hacer a pie.
Bike Score®
85 / 100
Muy apropiado para bicicletas
La bicicleta es conveniente para la mayoría de los viajes.
Transit Score®
61 / 100
Transporte público bueno
Varias opciones de transporte público cercano.
¿Qué son las clasificaciones Walk Score®, Transit Score® y Bike Score®?
- Walk Score® mide la viabilidad peatonal de cualquier dirección.
- Transit Score® mide el acceso a transporte público.
- Bike Score® mide la infraestructura de rutas para bicicletas de cualquier dirección.
Preguntas Frecuentes sobre Wally Apartment
¿Donde se encuentra Wally Apartment ?
Wally Apartment se encuentran en 4111 Stone Way N cerca de la zona Fremont en Seattle, WA
¿Cuál es el rango de alquiler vigente en Wally Apartment ?
El rango de alquiler de Apartamentos estudio a 1 dormitorios en Wally Apartment van desde $1,582 a $2,950
¿Qué horarios tiene la oficina de alquiler?
- El horario de oficina de Wally Apartment es
- Lunes Con Cita Previa
- Martes Cerrado
- Miércoles Cerrado
- Jueves Con Cita Previa
- Viernes Con Cita Previa
- Sábado Con Cita Previa
- Domingo Con Cita Previa
¿Se permiten mascotas?
Llámenos hoy para conocer nuestra política de mascotas y saber si las aceptamos.
Calificación Según Estilo de Vida:
Conocer más sobre la búsqueda de estilos de vidaOpiniones y valoraciones de Inquilinos
Escuelas Cercanas
Hamilton International Middle School
B F Day Elementary School
Sitios de Interés
Tiempo y distancia desde Wally Apartment .
Grandes Superficies de Ventas
Walgreens
Safeway
Homegoods
Universidad
Tiendas
Fred Meyer
Trader Joes
Safeway
Hospitales
Bases Militares
Fort Lawton Military Reserve
Naval Supply Center
Centros Comerciales
Wally Apartment tiene 5 centros comerciales en un radio de 1.4 millas.
Estaciones de Tránsito
Fairview Ave N & Ward St-South Lake Union Streetcar
Fairview & Campus Drive-South Lake Union Streetcar
Fairview Ave N & Aloha St-South Lake Union Streetcar
Barrios cercanos
Rango de Precios de los Alquileres en la Zona
Dormitorios | Precio Promedio | Más barato | Más caro |
---|---|---|---|
Apartamentos Estudio en Seattle | $1,643 | $590 | $4,780 |
Apartamentos 1 Dormitorios en Seattle | $2,291 | $634 | $9,215 |
Apartamentos 2 Dormitorios en Seattle | $3,181 | $995 | $10,000+ |
Apartamentos 3 Dormitorios en Seattle | $4,852 | $1,099 | $10,000+ |
Apartamentos 4 Dormitorios en Seattle | $2,623 | $1,099 | $9,820 |
Apartamentos 5 Dormitorios en Seattle | $4,017 | $950 | $10,000+ |
Apartamentos 6 Dormitorios en Seattle | $1,328 | $799 | $9,403 |
Ver Apartamentos más destacados en Seattle
- Ver Apartamentos Alquiler en Seattle
- Ver Casas en Alquiler en Seattle
- Ver Condos en Alquiler en Seattle
- Ver Townhomes en Alquiler en Seattle
- Apartamentos Barato en Seattle
Por el Precio
- Apartamentos Barato en Seattle
- Apartamentos en Seattle menos de $600
- Apartamentos en Seattle menos de $700
- Apartamentos en Seattle menos de $800
- Apartamentos en Seattle menos de $900
- Apartamentos en Seattle menos de $1000
- Apartamentos en Seattle menos de $1200
- Apartamentos en Seattle menos de $1500
- Apartamentos en Seattle menos de $2000
- Apartamentos de Lujo en Seattle
Por tipo de comunidad
- Apartamentos en alquiler por el propietario en Seattle
- Apartamentos en Seattle con Oferta Especial
- Apartamentos en Seattle Más Valorados
- Apartamentos en Seattle Viviendas Corporativas
- Apartamentos en Seattle Amueblado
- Apartamentos en Seattle Reja de Entrada Automática
- Apartamentos en Seattle Loft
- Apartamentos en Seattle De Bajos Ingresos
- Nuevos Apartamentos en Seattle
- Apartamentos en Seattle Personas Mayores
- Apartamentos en Seattle Contratos de Corto Plazo
- Apartamentos en Seattle Estudiante
- Apartamentos en Seattle con Utilidades Incluidas
Por las Características
- Apartamentos en Seattle con Pisos de Madera
- Apartamentos en Seattle con Lavandería
- Apartamentos en Seattle con Estacionamiento Disponible
- Apartamentos en Seattle Se Permiten Mascotas
- Apartamentos en Seattle con Piscina(s)
- Apartamentos en Seattle con Lavadora y Secadora
- Apartamentos en Seattle con Estaciones de Carga EV