Photos












- Studio–3 Bedrooms
- $974-$3,995Pricing
- 630–3,047Square Feet
About Peanut Factory
Set in the heart of downtown San Antonio, Texas, and on Alazan Creek, The Peanut Factory Lofts puts you right where you want to be. These modern residences are surrounded by the areas finest shopping, dining and entertainment options including historic Market Square, Rivercenter Mall, Lone Star Arts District, Brackenridge Park and convenient access to the downtown UTSA campus. If you are a student come check out the many reasons why you should choose Peanut Factory Lofts. With flats, lofts, studios, townhomes and silo-style layouts, The Peanut Factory Lofts is the perfect mesh between historic and modern style. These contemporary apartment homes have been wonderfully designed and include the latest styles and features. Our community amenities include trash service, 24/7 gym and a resort style pool. View our availability to see why we are the best in the downtown area.
Peanut Factory is located in the Vista Verde South Neighborhood and 78207 Zip code of San Antonio, TX. This community is professionally managed by Sapphire Management
Property Contact Info
Floorplan Pricing and Availability
Peanut Factory offers Studio to 3 Bedroom apartments starting from $974 and having 630–3,047 sq ft. Here is the current pricing and availability:
New! Interactive Property Map
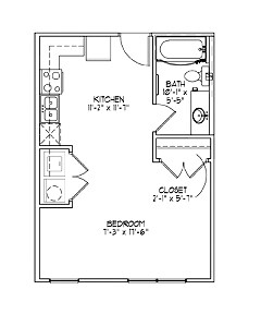
Studio
Show Unavailable FloorplansFloorplan A4
From $974
Studio, 1 Bath, 630 sq ftAvailable NowAvailability Details
Price Availability Date Unit Sq Ft $974 Available Now 4215 630 Unit 4215 Amenities and Features
Features
- Air Conditioning
- High Speed Internet Access
Unit 4215 Rent and Fees
Unit Price
- $974
Deposit
- $150 deposit
Model Rent and Fees
Model Price Range
- $974 - $1,270
Apartment Unit: 4215Apartment Model: A4$974Studio, 1 Bath, 630 sq ftAvailable NowStudio
Studio, 1 Bath, 664-789 sq ftAvailability Details
Price Availability Date Unit Sq Ft From $1,110 Call for Availability Studio 664-789 sq ft Model Amenities and Features
Features
- Air Conditioning
- Cable Ready
- Ceiling Fans
- Heating
- Storage Space
- Washer/Dryer
- Washer/Dryer Hookup
- Wheelchair Accessible (Rooms)
Kitchen
- Dishwasher
- Disposal
- Granite Countertops
- Kitchen
- Microwave
- Refrigerator
- Stainless Steel Appliances
Model Rent and Fees
Model Price Range
- $1,110 - $1,320
1 Bedroom
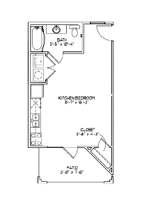
Show Unavailable FloorplansFloorplan A3
From $974
1 Bed, 1 Bath, 630-773 sq ftAvailable NowCheapest 1 BedroomThis is the cheapest 1 Bedroom at this PropertyAvailability Details
Price Availability Date Unit Sq Ft View Details $974 Available Now 4108 630 $1,020 Available Now 4109 630 $974 Available Now 4111 630 Model Amenities and Features
Features
- Air Conditioning
- High Speed Internet Access
Model Rent and Fees
Model Price Range
- $974 - $1,200
Current Available Pricing
- $974 - $1,020
Deposit
- $700 deposit
Unit 4108 Amenities and Features
Features
- Air Conditioning
- High Speed Internet Access
Unit 4108 Rent and Fees
Unit Price
- $974
Deposit
- $700 deposit
Model Rent and Fees
Model Price Range
- $974 - $1,200
Unit 4109 Amenities and Features
Features
- Air Conditioning
- High Speed Internet Access
Unit 4109 Rent and Fees
Unit Price
- $1,020
Deposit
- $700 deposit
Model Rent and Fees
Model Price Range
- $974 - $1,200
Unit 4111 Amenities and Features
Features
- Air Conditioning
- High Speed Internet Access
Unit 4111 Rent and Fees
Unit Price
- $974
Deposit
- $700 deposit
Model Rent and Fees
Model Price Range
- $974 - $1,200
Apartment Unit: 4108Apartment Model: A3$9741 Bedroom, 1 Bath, 630 sq ftAvailable NowApartment Unit: 4109Apartment Model: A3$1,0201 Bedroom, 1 Bath, 630 sq ftAvailable NowApartment Unit: 4111Apartment Model: A3$9741 Bedroom, 1 Bath, 630 sq ftAvailable NowFloorplan S4
From $1,050
1 Bed, 1 Bath, 664 sq ftAvailable NowAvailability Details
Price Availability Date Unit Sq Ft View Details $1,050 Available Now 4213 664 $1,050 Available Now 4313 664 Model Amenities and Features
Features
- Air Conditioning
- High Speed Internet Access
Model Rent and Fees
Model Price Range
- $1,050 - $1,175
Current Available Pricing
- $1,050
Deposit
- $700 deposit
Unit 4213 Amenities and Features
Features
- Air Conditioning
- High Speed Internet Access
Unit 4213 Rent and Fees
Unit Price
- $1,050
Deposit
- $700 deposit
Model Rent and Fees
Model Price Range
- $1,050 - $1,175
Unit 4313 Amenities and Features
Features
- Air Conditioning
- High Speed Internet Access
Unit 4313 Rent and Fees
Unit Price
- $1,050
Deposit
- $700 deposit
Model Rent and Fees
Model Price Range
- $1,050 - $1,175
Apartment Unit: 4213Apartment Model: S4$1,0501 Bedroom, 1 Bath, 664 sq ftAvailable NowApartment Unit: 4313Apartment Model: S4$1,0501 Bedroom, 1 Bath, 664 sq ftAvailable NowFloorplan A10
From $1,125
1 Bed, 1 Bath, 773-862 sq ftAvailable NowAvailability Details
Price Availability Date Unit Sq Ft View Details $1,125 Available Now 4107 862 $1,125 Available Now 4117 773 $1,125 Available Now 4218 773 Model Amenities and Features
Features
- Air Conditioning
- High Speed Internet Access
Model Rent and Fees
Model Price Range
- $1,125 - $1,400
Current Available Pricing
- $1,125
Deposit
- $700 deposit
Unit 4107 Amenities and Features
Features
- Air Conditioning
- High Speed Internet Access
Unit 4107 Rent and Fees
Unit Price
- $1,125
Deposit
- $700 deposit
Model Rent and Fees
Model Price Range
- $1,125 - $1,400
Unit 4117 Amenities and Features
Features
- Air Conditioning
- High Speed Internet Access
Unit 4117 Rent and Fees
Unit Price
- $1,125
Deposit
- $700 deposit
Model Rent and Fees
Model Price Range
- $1,125 - $1,400
Unit 4218 Amenities and Features
Features
- Air Conditioning
- High Speed Internet Access
Unit 4218 Rent and Fees
Unit Price
- $1,125
Deposit
- $700 deposit
Model Rent and Fees
Model Price Range
- $1,125 - $1,400
Apartment Unit: 4107Apartment Model: A10$1,1251 Bedroom, 1 Bath, 862 sq ftAvailable NowApartment Unit: 4117Apartment Model: A10$1,1251 Bedroom, 1 Bath, 773 sq ftAvailable NowApartment Unit: 4218Apartment Model: A10$1,1251 Bedroom, 1 Bath, 773 sq ftAvailable NowFloorplan A8
From $1,125
1 Bed, 1 Bath, 773-862 sq ftAvailable NowAvailability Details
Price Availability Date Unit Sq Ft View Details $1,150 Available Now 4211 862 $1,125 Available Now 4311 773 Model Amenities and Features
Features
- Air Conditioning
- High Speed Internet Access
Model Rent and Fees
Model Price Range
- $1,125 - $1,150
Deposit
- $700 deposit
Unit 4211 Amenities and Features
Features
- Air Conditioning
- High Speed Internet Access
Unit 4211 Rent and Fees
Unit Price
- $1,150
Deposit
- $700 deposit
Model Rent and Fees
Model Price Range
- $1,125 - $1,150
Unit 4311 Amenities and Features
Features
- Air Conditioning
- High Speed Internet Access
Unit 4311 Rent and Fees
Unit Price
- $1,125
Deposit
- $700 deposit
Model Rent and Fees
Model Price Range
- $1,125 - $1,150
Apartment Unit: 4211Apartment Model: A8$1,1501 Bedroom, 1 Bath, 862 sq ftAvailable NowApartment Unit: 4311Apartment Model: A8$1,1251 Bedroom, 1 Bath, 773 sq ftAvailable NowFloorplan A11
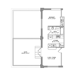
From $1,150
1 Bed, 1 Bath, 862-1046 sq ftAvailable NowAvailability Details
Price Availability Date Unit Sq Ft View Details $1,150 Available Now 4203 862 $1,195 Available Now 4303 1046 Model Amenities and Features
Features
- Air Conditioning
- High Speed Internet Access
Model Rent and Fees
Model Price Range
- $1,150 - $1,435
Current Available Pricing
- $1,150 - $1,195
Deposit
- $150 deposit
Unit 4203 Amenities and Features
Features
- Air Conditioning
- High Speed Internet Access
Unit 4203 Rent and Fees
Unit Price
- $1,150
Deposit
- $150 deposit
Model Rent and Fees
Model Price Range
- $1,150 - $1,435
Unit 4303 Amenities and Features
Features
- Air Conditioning
- High Speed Internet Access
Unit 4303 Rent and Fees
Unit Price
- $1,195
Deposit
- $150 deposit
Model Rent and Fees
Model Price Range
- $1,150 - $1,435
Apartment Unit: 4203Apartment Model: A11$1,1501 Bedroom, 1 Bath, 862 sq ftAvailable NowApartment Unit: 4303Apartment Model: A11$1,1951 Bedroom, 1 Bath, 1046 sq ftAvailable Now1 Bedroom
1 Bed, 1 Bath, 630-1046 sq ftAvailability Details
Price Availability Date Unit Sq Ft From $1,150 Call for Availability 1 Bedroom 630-1046 sq ft Model Amenities and Features
Features
- Air Conditioning
- Cable Ready
- Ceiling Fans
- Heating
- Storage Space
- Washer/Dryer
- Washer/Dryer Hookup
- Wheelchair Accessible (Rooms)
Kitchen
- Dishwasher
- Disposal
- Granite Countertops
- Kitchen
- Microwave
- Refrigerator
- Stainless Steel Appliances
Model Rent and Fees
Model Price Range
- $1,150 - $1,435
$1,175
More 1 bedroom units
1 Bed, 1 Bath, 670 sq ftAvailable NowAvailability Details
Price Availability Date Unit Sq Ft $1,175 Available Now 3203 670 Unit 3203 Rent and Fees
Unit Price
- $1,175
Apartment Unit: 3203Apartment Model: A6$1,1751 Bedroom, 1 Bath, 670 sq ftAvailable Now$974
More 1 bedroom units
1 Bed, 1 Bath, 664 sq ftAvailable NowAvailability Details
Price Availability Date Unit Sq Ft $974 Available Now 4315 664 Unit 4315 Rent and Fees
Unit Price
- $974
Apartment Unit: 4315Apartment Model: S3$9741 Bedroom, 1 Bath, 664 sq ftAvailable Now2 Bedrooms
Show Unavailable FloorplansB4 - Townhome - 2 Story Studio
From $1,680
2 Beds, 2 Baths, 1280 sq ftAvailable NowCheapest 2 BedroomThis is the cheapest 2 Bedroom at this PropertyModel Gallery
Photos
Availability Details
Price Availability Date Unit Sq Ft View Details $1,680 Available Now 1004 1280 $1,680 Available Now 1005 1280 $1,680 Available Now 1006 1280 Model Amenities and Features
Features
- Air Conditioning
- High Speed Internet Access
Model Rent and Fees
Model Price Range
- $1,680 - $1,800
Current Available Pricing
- $1,680
Deposit
- $700 deposit
Unit 1004 Amenities and Features
Features
- Air Conditioning
- High Speed Internet Access
Unit 1004 Rent and Fees
Unit Price
- $1,680
Deposit
- $700 deposit
Model Rent and Fees
Model Price Range
- $1,680 - $1,800
Unit 1005 Amenities and Features
Features
- Air Conditioning
- High Speed Internet Access
Unit 1005 Rent and Fees
Unit Price
- $1,680
Deposit
- $700 deposit
Model Rent and Fees
Model Price Range
- $1,680 - $1,800
Unit 1006 Amenities and Features
Features
- Air Conditioning
- High Speed Internet Access
Unit 1006 Rent and Fees
Unit Price
- $1,680
Deposit
- $700 deposit
Model Rent and Fees
Model Price Range
- $1,680 - $1,800
Apartment Model: B4 - Townhome - 2 Story StudioFrom $1,6802 Bedroom, 2 Bath, 1280 sq ftAvailable Now![]()
B4 - Townhome - 2 Story Studio - Image 1 ![]()
B4 - Townhome - 2 Story Studio - Image 2 ![]()
B4 - Townhome - 2 Story Studio - Image 3 ![]()
B4 - Townhome - 2 Story Studio - Image 4 ![]()
B4 - Townhome - 2 Story Studio - Image 5 ![]()
B4 - Townhome - 2 Story Studio - Image 6 ![]()
B4 - Townhome - 2 Story Studio - Image 7 Apartment Unit: 1004Apartment Model: B4 - Townhome - 2 Story Studio$1,6802 Bedroom, 2 Bath, 1280 sq ftAvailable NowApartment Unit: 1005Apartment Model: B4 - Townhome - 2 Story Studio$1,6802 Bedroom, 2 Bath, 1280 sq ftAvailable NowApartment Unit: 1006Apartment Model: B4 - Townhome - 2 Story Studio$1,6802 Bedroom, 2 Bath, 1280 sq ftAvailable NowB5 - Townhome - 3 Story with Studio
From $1,725
2 Beds, 2.5 Baths, 1728 sq ftAvailable NowAvailability Details
Price Availability Date Unit Sq Ft View Details $1,725 Available Now 2005 1728 $1,900 Available Now 2006 1728 $1,900 Available Now 2008 1728 Model Amenities and Features
Features
- Air Conditioning
- High Speed Internet Access
Model Rent and Fees
Model Price Range
- $1,725 - $2,000
Current Available Pricing
- $1,725 - $1,900
Deposit
- $700 deposit
Unit 2005 Amenities and Features
Features
- Air Conditioning
- High Speed Internet Access
Unit 2005 Rent and Fees
Unit Price
- $1,725
Deposit
- $700 deposit
Model Rent and Fees
Model Price Range
- $1,725 - $2,000
Unit 2006 Amenities and Features
Features
- Air Conditioning
- High Speed Internet Access
Unit 2006 Rent and Fees
Unit Price
- $1,900
Deposit
- $700 deposit
Model Rent and Fees
Model Price Range
- $1,725 - $2,000
Unit 2008 Amenities and Features
Features
- Air Conditioning
- High Speed Internet Access
Unit 2008 Rent and Fees
Unit Price
- $1,900
Deposit
- $700 deposit
Model Rent and Fees
Model Price Range
- $1,725 - $2,000
Apartment Unit: 2005Apartment Model: B5 - Townhome - 3 Story with Studio$1,7252 Bedroom, 2.5 Bath, 1728 sq ftAvailable NowApartment Unit: 2006Apartment Model: B5 - Townhome - 3 Story with Studio$1,9002 Bedroom, 2.5 Bath, 1728 sq ftAvailable NowApartment Unit: 2008Apartment Model: B5 - Townhome - 3 Story with Studio$1,9002 Bedroom, 2.5 Bath, 1728 sq ftAvailable Now2 Bedroom
2 Beds, 2 Baths, 931-1728 sq ftAvailability Details
Price Availability Date Unit Sq Ft From $1,510 Call for Availability 2 Bedroom 931-1728 sq ft Model Amenities and Features
Features
- Air Conditioning
- Cable Ready
- Ceiling Fans
- Heating
- Storage Space
- Washer/Dryer
- Washer/Dryer Hookup
- Wheelchair Accessible (Rooms)
Kitchen
- Dishwasher
- Disposal
- Granite Countertops
- Kitchen
- Microwave
- Refrigerator
- Stainless Steel Appliances
Model Rent and Fees
Model Price Range
- $1,510 - $2,210
$1,300
More 2 bedroom units
2 Beds, 2 Baths, 931 sq ftAvailable NowAvailability Details
Price Availability Date Unit Sq Ft $1,300 Available Now 4309 931 Unit 4309 Rent and Fees
Unit Price
- $1,300
Apartment Unit: 4309Apartment Model: B1$1,3002 Bedroom, 2 Bath, 931 sq ftAvailable Now$1,250
More 2 bedroom units
2 Beds, 2 Baths, 1000 sq ftAvailable NowAvailability Details
Price Availability Date Unit Sq Ft $1,250 Available Now 4102 1000 Unit 4102 Rent and Fees
Unit Price
- $1,250
Apartment Unit: 4102Apartment Model: B3$1,2502 Bedroom, 2 Bath, 1000 sq ftAvailable Now3 Bedrooms
Show Unavailable FloorplansPenthouse
From $2,060
3 Beds, 3 Baths, 1737-3047 sq ftAvailable NowAvailability Details
Price Availability Date Unit Sq Ft View Details $2,060 Available Now 4301 1737 $3,995 Available Now 4322 3047 Model Amenities and Features
Features
- Air Conditioning
- High Speed Internet Access
Model Rent and Fees
Model Price Range
- $2,060 - $3,995
Deposit
- $350 deposit
Unit 4301 Amenities and Features
Features
- Air Conditioning
- High Speed Internet Access
Unit 4301 Rent and Fees
Unit Price
- $2,060
Deposit
- $350 deposit
Model Rent and Fees
Model Price Range
- $2,060 - $3,995
Unit 4322 Amenities and Features
Features
- Air Conditioning
- High Speed Internet Access
Unit 4322 Rent and Fees
Unit Price
- $3,995
Deposit
- $350 deposit
Model Rent and Fees
Model Price Range
- $2,060 - $3,995
Apartment Unit: 4301Apartment Model: Penthouse$2,0603 Bedroom, 3 Bath, 1737 sq ftAvailable NowApartment Unit: 4322Apartment Model: Penthouse$3,9953 Bedroom, 3 Bath, 3047 sq ftAvailable Now3 Bedroom
3 Beds, 3 Baths, 1737 sq ftAvailability Details
Price Availability Date Unit Sq Ft $2,310 Call for Availability 3 Bedroom 1737 sq ft Model Amenities and Features
Features
- Air Conditioning
- Cable Ready
- Ceiling Fans
- Heating
- Storage Space
- Washer/Dryer
- Washer/Dryer Hookup
- Wheelchair Accessible (Rooms)
Kitchen
- Dishwasher
- Disposal
- Granite Countertops
- Kitchen
- Microwave
- Refrigerator
- Stainless Steel Appliances
Model Rent and Fees
Model Price
- $2,310
Schedule a Tour
3D Tours
Property Information
- 102 Units
- 5 Stories
- Built in 1912
- View Property Website
You are leaving ApartmentHomeLiving.com…
Lease Terms
- 12 mo
- Short Term Lease Options
Fees and Policies
The fees below are based on community-supplied data and may exclude additional fees and utilities. Use the calculator to add these fees to the base rent.
Required Fees
One-Time Move-In Fees
- Due at Application
- Application Fee Per ApplicantiCharged per applicant$50
- Due at Move-In
- Administrative FeeiCharged per unit$0
Pet Policy and Fees
Dogs
- Fees Not Specified
Cats
- Fees Not Specified
- $50/Mo
Storage
Property Fee Disclaimer: Based on community-supplied data and independent market research. Subject to change without notice. May exclude fees for mandatory or optional services and usage-based utilities.
Features and Amenities
Unique Amenities
- BBQ/Picnic Area
- Carport
On-Site Services
- Maintenance On Site
- Package Service
- Property Manager On Site
- Pet Play Area
- Maid Service
- Laundry Facilities
Community Features
- Vintage Building
- Elevator
Outdoor Features
- Picnic Area
- Gated
Recreation and Fitness
- Fitness Center
- Pool
Interior Features
- Storage Space
- Ceiling Fans
- Heating
- Cable Ready
- Washer/Dryer Hookup
- Washer/Dryer
- Air Conditioning
- Wheelchair Accessible (Rooms)
Kitchen Amenities
- Stainless Steel Appliances
- Kitchen
- Refrigerator
- Disposal
- Dishwasher
- Microwave
- Granite Countertops
Living Area Features
- Walk In Closets
- Window Coverings
- Hardwood Floors

Map
- Shopping
- Colleges
- Grocery
- Medical
- Parks

Map
Hours and Contact Info
| Monday | 9:00 am–6:00 pm |
| Tuesday | 9:00 am–6:00 pm |
| Wednesday | 9:00 am–6:00 pm |
| Thursday | 9:00 am–6:00 pm |
| Friday | 9:00 am–6:00 pm |
| Saturday | 10:00 am–5:00 pm |
| Sunday | 1:00 am–5:00 pm |
What Are Walk Score®, Transit Score®, and Bike Score® Ratings?
- Walk Score® measures the walkability of any address.
- Transit Score® measures access to public transit.
- Bike Score® measures the bikeability of any address.
Frequently Asked Questions about Peanut Factory
Where is Peanut Factory located?
Peanut Factory is located at 939 S Frio St near the Vista Verde South area of San Antonio, TX
What is the current rent range at Peanut Factory?
Studio to 3 Bedroom Apartments at Peanut Factory currently range from $974 to $3,995
When is the leasing office open?
- The office Hours for Peanut Factory are
- Monday 9:00 am–6:00 pm
- Tuesday 9:00 am–6:00 pm
- Wednesday 9:00 am–6:00 pm
- Thursday 9:00 am–6:00 pm
- Friday 9:00 am–6:00 pm
- Saturday 10:00 am–5:00 pm
- Sunday 1:00 am–5:00 pm
Are pets allowed?
Call us today to find out our pet policy and if we allow pets
Lifestyle Ratings
Learn more about Lifestyle SearchRenters Reviews and Ratings
Be cautious!!
September 4, 2024I’ve submitted 4 work order for the a c and it’s still 78 degrees in the unit. About 2 weeks ago it was 88 degrees inside and it was 100 degrees outside. Not just this time around but the past three summers it has been hot in this unit. It’s ridiculous!! I don’t hear any urgency in the leasing office. I call but goes to an automated system. They also close at 5pm not 6 like the sign reads. Don’t move in here!!!Review from Apartments.com
Worst place do call yourself a home
January 10, 2023ALERT: Plz think twice before moving here, horrible management, poor service, the property looks dirty, and they don’t care about there tenants.Review from Apartments.com
Great place to live!
November 9, 2022I have lived here a year and I love it. Works orders have been resolved same day or next. The pool was down for a bit but so was all the communities around the area. Understandable. due to covid effects on every business. This is a great place and so close to school.Review from Apartments.com
Absolutely terrible
July 17, 2022Hey, do you like green pools, A/C that breaks and doesn’t get fixed for a month during the hottest summer on record, trash everywhere, ants, an apathetic and often confrontational staff, no emergency maintenance systems, a constant exposure to methheads, burglars, and incoherent homeless dudes with no plan to invest in security measures? Then you’ll love The Peanut Factory Lofts. They have all those things to offer and more. Like a workout room where all the equipment is broken and unusable, ...paper thin walls so you can hear every small thing your neighbor does, and non-working washers and dryers. Did we mention all the cracks in the floors and decaying foundation?Read MoreReview from Apartments.com
UNDER HORRIBLE NEW MANAGEMENT AND OWNERSHIP
January 25, 2017Note - As of 2017 Peanut Factory Lofts has sold to Windmill Investments and is no longer managed by Greystar. A new company (BH Management) has taken over and they are absolutely horrible. Staff is cold and unhelpful. I never heard any complaints about Troy and his team from Greystar. You can tell the new staff is just concerned with filling up all the empty units and not taking care of tenants. Windmill Investments, the company that hired out BH Management says this: "As a private real estate ...firm we specialize in under-performing, bank-owned and distressed single and multi-family opportunities in the growth region of the U.S." - Pretty much sums up why a company like BH Management is now running this place. Bottom of the barrel, just here to get an under-performing property leased out so it can get sold again... This place was built on a budget and it shows at every turn. The hvac units chosen for all historical units are so small (and all historic units have no insulation due to brick or concrete interior/exterior shared walls) that they run 24/7 in summer and never keep up or hit the set temperature. Most days in summer the lofts barely stay below 78. Our a/c bill is around 300 a month in summer for less than 800 sq ft. Greystar had been compensating many of us on our rent because of this. This winter our heat wouldn't even keep up. $250 a month in energy in winter!!! To be fair the new construction "flats" and townhomes could be just fine since they were built using insulated walls etc. After moving in we realized why there are so many cops in this area. Our car was broken into a few months back, the area behind the complex is frequented by drug dealers, etc. To make matters worse, the front gate breaks constantly and is partially open. It will get fixed for a while, then break again. Parking is always at capacity, sometimes on weekends we have had to park outside the back gate. You pay a monthly fee for pest control but there is never anyone spraying. The workout room is NEVER cleaned, they even took the water machine out when management switched. One treadmill of two has been broken for forever and will only let you walk on it, not run. It's relatively clean here. You don't see garbage piling up anywhere or anything. There is valet trash service (mandatory $25 bucks) plus a $7 a month "trash" fee (?!). The pool is clean in season, or at least Greystar kept it that way. It's decently quiet, we hear our neighbors a lot but it's not unbearable.Read MoreReview from Apartments.com
Nearby Schools
Brackenridge High School
Lanier High School
J T Brackenridge Elementary School
Tafolla Middle
About GreatSchools Data on ApartmentHomeLiving.com.
Points of Interest
Time and distance from Peanut Factory.
Arts Museums and Landmarks
Big Box and Retail
Walgreen's
Walgreens
Walmart
Colleges and Universities
Groceries
Heb
Hospitals
Children's Hospital Of San Antonio
Baptist Medical Center
Southwest General Hospital
Hotspots
Military Bases
East Kelly Air Force Base
Kelly Air Force Base
Fort Sam Houston
Parks and Recreation
Peanut Factory has 3 parks within 2.3 miles, including San Antonio Riverwalk, The Alamo, and Woodlawn Lake Park.
Restaurants and Dining
Shopping Centers
Peanut Factory has 5 shopping centers within 1.1 miles.
Nearby Neighborhoods
Rental Price Ranges in the Area
| Bedroom | Average Rent | Cheapest Rent | Highest Rent |
|---|---|---|---|
| San Antonio Studio Apartments | $1,071 | $450 | $2,456 |
| San Antonio 1 Bedroom Apartments | $1,202 | $480 | $4,375 |
| San Antonio 2 Bedroom Apartments | $1,543 | $295 | $10,000+ |
| San Antonio 3 Bedroom Apartments | $1,974 | $337 | $10,000+ |
| San Antonio 4 Bedroom Apartments | $1,985 | $650 | $4,671 |
| San Antonio 5 Bedroom Apartments | $3,517 | $829 | $10,000+ |
Browse Top Apartments in San Antonio
By Price
- Cheap San Antonio Apartments
- San Antonio Apartments Under $500
- San Antonio Apartments Under $600
- San Antonio Apartments Under $700
- San Antonio Apartments Under $800
- San Antonio Apartments Under $900
- San Antonio Apartments Under $1000
- San Antonio Apartments Under $1200
- San Antonio Apartments Under $1500
- San Antonio Apartments Under $2000
- San Antonio Luxury Apartments
By Community Type
- San Antonio Apartments for Rent by Owner
- San Antonio Apartments with Rent Specials
- San Antonio Top Rated Apartments
- San Antonio Corporate Apartments
- San Antonio Furnished Apartments
- San Antonio Gated Apartments
- San Antonio Loft Apartments
- San Antonio Low Income Apartments
- San Antonio Military Apartments
- New San Antonio Apartments
- San Antonio Senior Apartments
- San Antonio Short-term Apartments
- San Antonio Student Apartments
- San Antonio Apartments with Utilities Included







