Photos












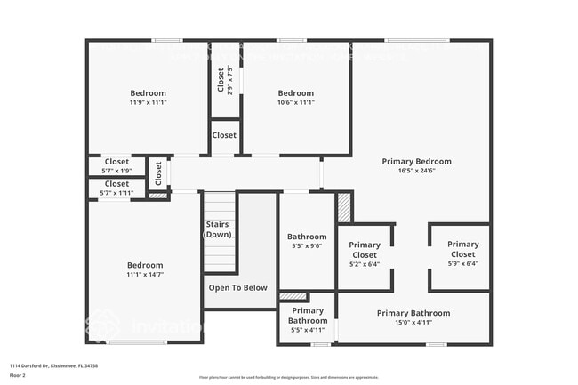
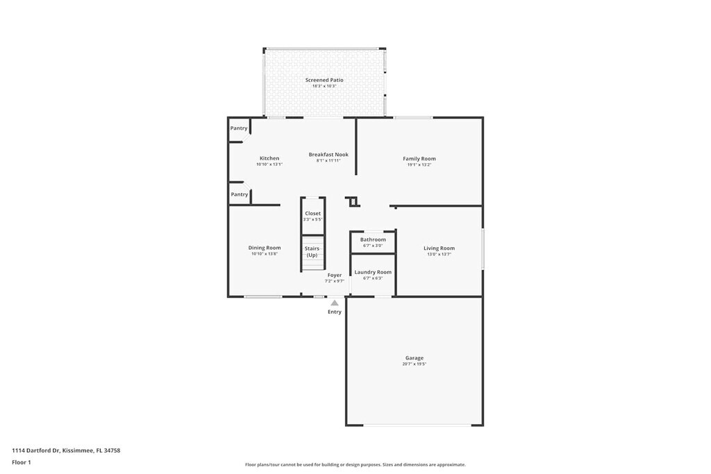
- 4BR, 2.5BAHome
- $1,910Plus Fees
- 2,215Square Feet
- Available SoonAvailability
Rent and Fees
Unit Price
- $1,910Plus Fees
About 1114 Dartford Dr
Lease this home and get more from Invitation Homes professional property management. This home comes fully loaded with quality amenities, must-have services, high-end tech and ProCare® professional maintenance. Your estimated total monthly payment is $1969.90. That covers your base rent, $1910.00 + our required services designed to make your life easier: Air Filter Delivery Fee ($9.95), Smart Home with video doorbell ($40), and Utility Billing Service Fee ($9.95). Base rent varies based on selected lease term. Taking time for yourself will be even easier in a house fitted to your needs. Inject your personality into this beautiful house and you will feel right at home. When you walk into this beautiful house, you will find spacious bedrooms, a finished garage, stylish tile, and luxury vinyl plank flooring. Enjoy preparing meals in a finished kitchen. Stainless steel appliances, granite countertops, kitchen island, and beautiful cabinetry give you a worry-free cooking space worthy of you. The backyard brings the whole house together. And when you need a breath of fresh air, step out into a backyard complete with a screened-in sunroom. Neighborhood amenities include a tot lot, park, dog park, and walking trails. Apply online today! At Invitation Homes, we offer pet-friendly, yard-having homes for lease with Smart Home technology in awesome neighborhoods across the country. Live in a great house without the headache and long-term commitment of owning. Discover your dream home with Invitation Homes. Our Lease Easy bundle – which includes Smart Home, Air Filter Delivery, and Utilities Management – is a key part of your worry-free leasing lifestyle. These services are required by your lease at an additional monthly cost. Monthly fees for pets and pools may also apply. Home Features and Amenities: Air Conditioning, Garage, Granite Countertops, Kitchen Island, Long Lease Terms, Luxury Vinyl Plank, Pet Friendly, Smart Home, Stainless Steel Appliances, Tile, W/D Hookups, and professionally managed by Invitation Homes. Neighborhood Features and Amenities: Dog Park, Park, Tot Lot, Walking Trails Invitation Homes is an equal housing lessor under the FHA. Applicable local, state and federal laws may apply. Additional terms and conditions apply. This listing is not an offer to rent. You must submit additional information including an application to rent and an application fee. All leasing information is believed to be accurate, but changes may have occurred since photographs were taken and square footage is estimated. See InvitationHomes website for more information. Beware of scams: Employees of Invitation Homes will never ask you for your username and password. Invitation Homes does not advertise on Craigslist, Social Serve, etc. We own our homes; there are no private owners. All funds to lease with Invitation Homes are paid directly through our website, never through wire transfer or payment app like Zelle, Pay Pal, or Cash App. For more info, please submit an inquiry for this home. Applications are subject to our qualification requirements. Additional terms and conditions apply. CONSENT TO CALLS & TEXT MESSAGING: By entering your contact information, you expressly consent to receive emails, calls, and text messages from Invitation Homes including by autodialer, prerecorded or artificial voice and including marketing communications. Msg & Data rates may apply. You also agree to our Terms of Use and our Privacy Policy.
1114 Dartford Dr is located in the Lake Toho Neighborhood and 34758 Zip code of Kissimmee, FL.
Property Contact Info
Fees and Policies
The fees listed below are community-provided and may exclude utilities or add-ons. All payments are made directly to the property and are non-refundable unless otherwise specified.
Required Fees
Utilities & Essentials
- Utility Billing Service FeeiCharged per unit$9.95/mo
- Air Filter Delivery FeeiCharged per unit$9.95/mo
- Smart Home with video doorbelliCharged per unit$40/mo
Property Fee Disclaimer: Based on community-supplied data and independent market research. Subject to change without notice. May exclude fees for mandatory or optional services and usage-based utilities.
Features and Amenities
On-Site Services
- Garden Style
Unique Amenities
- Garage Available

Map
- Shopping
- Colleges
- Grocery
- Medical

Map
What Are Walk Score®, Transit Score®, and Bike Score® Ratings?
- Walk Score® measures the walkability of any address.
- Transit Score® measures access to public transit.
- Bike Score® measures the bikeability of any address.
Frequently Asked Questions about 1114 Dartford Dr
What type of rentals are available at 1114 Dartford Dr?
There is currently a 4 Bed 2 Bath Home for rent with 2,215 listed at 1114 Dartford Dr. It is Available Soon .
How much is the rent at 1114 Dartford Dr?
1114 Dartford Dr is currently listed at $1,910.
What area of town is 1114 Dartford Dr located in?
Located in the Lake Toho Neighborhood, 1114 Dartford Dr is in the 34758 Zip Code of Kissimmee, FL.
Lifestyle Ratings
Learn more about Lifestyle SearchNearby Schools
Deerwood Elementary School
Poinciana High School
Discovery Intermediate School
About GreatSchools Data on ApartmentHomeLiving.com.
Points of Interest
Time and distance from 1114 Dartford Dr.
Big Box and Retail
Publix
Walgreens
Lowe's
Colleges and Universities
Groceries
Publix
Hospitals
Poinciana Medical Center
Osceola Regional Medical Center
Adventhealth Heart Of Florida
Shopping Centers
1114 Dartford Dr has 5 shopping centers within 3.2 miles.
Nearby Neighborhoods
Nearby Apartments
Rental Price Ranges in the Area
| Bedroom | Average Rent | Cheapest Rent | Highest Rent |
|---|---|---|---|
| Kissimmee Studio Apartments | $1,425 | $859 | $2,018 |
| Kissimmee 1 Bedroom Apartments | $1,705 | $825 | $3,938 |
| Kissimmee 2 Bedroom Apartments | $2,028 | $1,160 | $4,590 |
| Kissimmee 3 Bedroom Apartments | $2,313 | $1,349 | $10,000+ |
| Kissimmee 4 Bedroom Apartments | $3,353 | $1,612 | $8,655 |
| Kissimmee 5 Bedroom Apartments | $5,142 | $1,999 | $9,674 |
Browse Top Apartments in Kissimmee
By Price
By Community Type
- Kissimmee Apartments for Rent by Owner
- Kissimmee Apartments with Rent Specials
- Kissimmee Top Rated Apartments
- Kissimmee Corporate Apartments
- Kissimmee Furnished Apartments
- Kissimmee Gated Apartments
- Kissimmee Loft Apartments
- Kissimmee Low Income Apartments
- New Kissimmee Apartments
- Kissimmee Senior Apartments
- Kissimmee Short-term Apartments
- Kissimmee Student Apartments
- Kissimmee Apartments with Utilities Included
