Photos


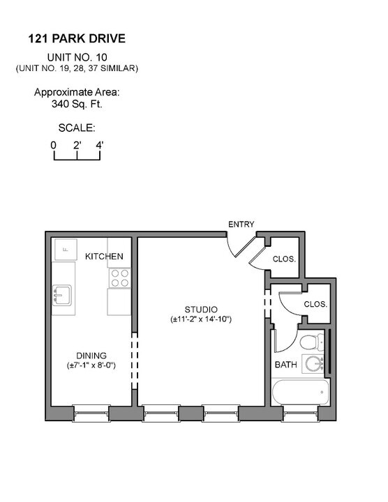
- Studio, 1BACondo
- $2,575Plus Fees12 Month Lease Term
- 340Square Feet
- 09-01-2026Availability
Features and Amenities
Features
- Cable Ready
Lease Information
Unit Price
- $2,575Plus Fees
About 121 Park Dr
First month rent (personal check,certified check or money order due upon moving in) Pets ok any building other than Clearway Apartments - breed and weight restrictions apply - Under 45 lbs) PET RENT is $50 per month. All cosigner applications must be received within 48 hours of applying. All leases are long term 12 month leases. Fee Disclosure: First Month Rent: $2,575 Security Deposit: $1,750 Disclaimer: The information in this listing may have been gathered from third-party sources including the owner and/or public records. Listings are subject to errors and omissions. Encore Realty disclaims any and all representations or warranties as to the accuracy of this information. Encore Realty is an Equal Housing Opportunity Agency. Photos may not always be of the actual apartment. At times, sample images are used to make a general representation. By clicking on our ad, you are requesting to hire Blue Stream Real Estate dba Encore Realty and its agents unless explicitly stated otherwise.
121 Park Dr is located in the Fenway Neighborhood and 02215 Zip code of Boston, MA.
Property Contact Info
Lease Terms
- 12
Fees and Policies
The fees listed below are community-provided and may exclude utilities or add-ons. All payments are made directly to the property and are non-refundable unless otherwise specified.
Other Fees
Pet Fees
- No Pets Allowed
Property Fee Disclaimer: Based on community-supplied data and independent market research. Subject to change without notice. May exclude fees for mandatory or optional services and usage-based utilities.
Features and Amenities
On-Site Services
- Laundry Facilities
Interior Features
- Cable Ready
Pet Policy
- No Pets Allowed

Map
- Shopping
- Colleges
- Schools
- Grocery
- Medical
- Parks
- Transportation

Map
What Are Walk Score®, Transit Score®, and Bike Score® Ratings?
- Walk Score® measures the walkability of any address.
- Transit Score® measures access to public transit.
- Bike Score® measures the bikeability of any address.
Frequently Asked Questions about 121 Park Dr
What type of rentals are available at 121 Park Dr?
There is currently a 0 Bed 1 Bath Condo for rent with 340 listed at 121 Park Dr. It is Available September 1, 2026.
How much is the rent at 121 Park Dr?
121 Park Dr is currently listed at $2,575.
What area of town is 121 Park Dr located in?
Located in the Fenway Neighborhood, 121 Park Dr is in the 02215 Zip Code of Boston, MA.
Lifestyle Ratings
Learn more about Lifestyle SearchPoints of Interest
Time and distance from 121 Park Dr.
Arts Museums and Landmarks
Big Box and Retail
Walgreens
Target
Petco
Colleges and Universities
Massachusetts College of Pharmacy and Health Sciences - Boston Campus
Groceries
Stop & Shop
Star Market
Trader Joe's
Hospitals
Military Bases
Boston Support Center
Hanscom Air Force Base
Parks and Recreation
121 Park Dr has 5 parks within 2.3 miles, including Fenway Park, The Boston Public Garden, Freedom Trail, The Freedom Trail, and Boston Common.
Restaurants and Dining
Shopping Centers
121 Park Dr has 5 shopping centers within 1.6 miles.
Transit Stations
Nearby Neighborhoods
Nearby Apartments
Rental Price Ranges in the Area
| Bedroom | Average Price | Cheapest Price | Highest Price |
|---|---|---|---|
| Boston Studio Apartments | $2,587 | $1,175 | $10,000+ |
| Boston 1 Bedroom Apartments | $2,960 | $845 | $10,000+ |
| Boston 2 Bedroom Apartments | $3,586 | $375 | $10,000+ |
| Boston 3 Bedroom Apartments | $4,234 | $890 | $10,000+ |
| Boston 4 Bedroom Apartments | $5,248 | $900 | $10,000+ |
| Boston 5 Bedroom Apartments | $6,536 | $975 | $10,000+ |
| Boston 6 Bedroom Apartments | $8,459 | $1,150 | $10,000+ |
Browse Top Apartments in Boston
By Price
By Community Type
- Boston Apartments for Rent by Owner
- Boston Apartments with Rent Specials
- Boston Top Rated Apartments
- Boston Corporate Apartments
- Boston Furnished Apartments
- Boston Gated Apartments
- Boston Loft Apartments
- Boston Low Income Apartments
- Boston Military Apartments
- New Boston Apartments
- Boston Senior Apartments
- Boston Short-term Apartments
- Boston Student Apartments
- Boston Apartments with Utilities Included
