Photos












- 3Dorm., 3BACasa
- $2,770Contrato de 12 Meses
- 1,776Pies cuadrados
- Disponible AhoraDisponibilidad
Información sobre el arrendamiento
Precio por Unidad
- $2,770
Acerca 1358 W 135th Dr
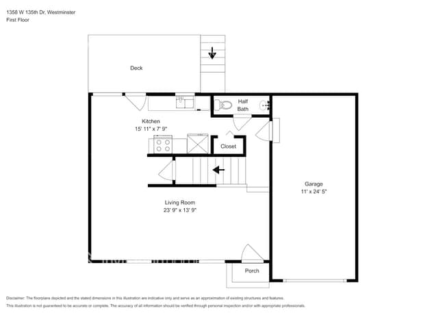
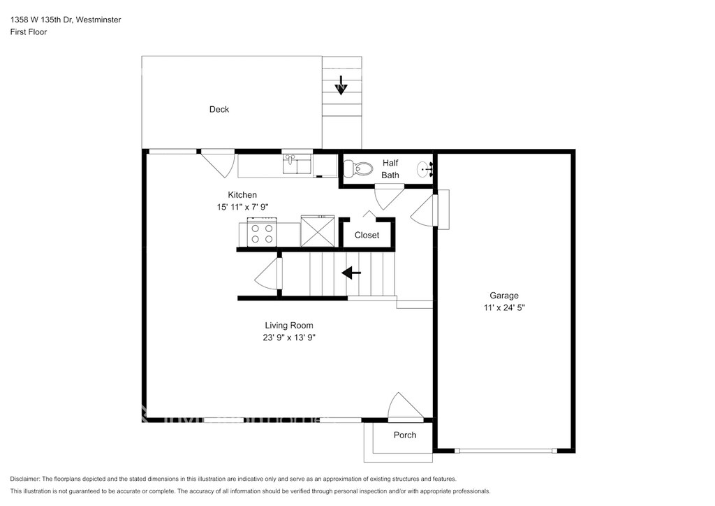
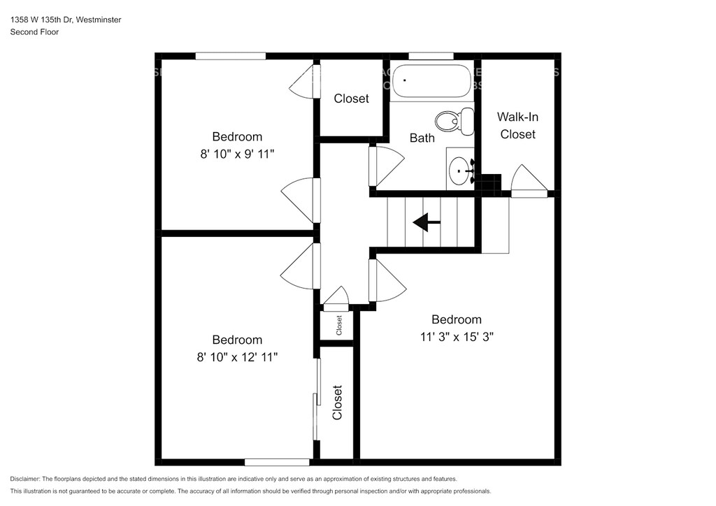
Bienvenido a 1358 W 135th Dr, Westminster, CO 80234. Imagínese en esta casa. Realice un recorrido virtual y vea el plano de la planta en la galería de fotos. Necesita una casa que pueda hacer suya. Aquí está. Adapte el espacio habitable para apoyar las cosas que valora. Aporta tu estilo único a este espacioso plano de planta preparado para adaptarse a tu estilo de vida. La calidad es la primera palabra que se le ocurre cuando camina por la encantadora entrada de esta casa y' pisa el impresionante piso de vinilo de lujo. Le encantará preparar comidas para amigos y familiares en esta cocina de primer nivel con gabinetes de primera calidad, elegantes encimeras de granito y electrodomésticos de acero inoxidable. Y cuando necesite un soplo de aire fresco, salga al patio trasero con una terraza. ¡Haz tu solicitud en línea hoy! Invitation Homes cumple con todas las leyes aplicables relacionadas con la fuente de ingresos, incluido el CRS 38-12-904(1)(c). Si descubrimos que está solicitando asistencia, su puntuación de crédito no se tendrá en cuenta en su elegibilidad. En Invitation Homes, ofrecemos casas que admiten mascotas y que tienen patio para alquilar con tecnología Smart Home en increíbles vecindarios de todo el país. Vive en una gran casa sin el dolor de cabeza y el compromiso a largo plazo de ser propietario. Descubra el hogar de sus sueños con Invitation Homes. Nuestro paquete Lease Easy, que incluye Smart Home, Air Filter Delivery y Utilities Management, es una parte clave de su estilo de vida de arrendamiento sin preocupaciones. El arrendamiento requiere estos servicios a un costo mensual adicional. También pueden aplicarse cargos mensuales por mascotas y piscinas. Características y servicios del hogar: Cubierta, corral cercado, garaje, encimeras de granito, plazos de alquiler prolongados, plancha de vinilo de lujo, que acepta mascotas, hogar inteligente, electrodomésticos de acero inoxidable, azulejos, vestidor, conexiones para W/D y administrados profesionalmente por Invitation Homes. Otro residente disfruta de esta Invitation Home, pero pronto estará disponible. Todavía puede solicitarlo: póngase en contacto con nosotros para obtener más información o solicite ahora. Invitation Homes es un arrendador de vivienda igualitaria según la FHA. Pueden aplicarse las leyes locales, estatales y federales aplicables. Se aplican términos y condiciones adicionales. Este anuncio no es una oferta de alquiler. Debe enviar información adicional, incluida una solicitud de alquiler y un cargo por solicitud. Se cree que toda la información de arrendamiento es precisa, pero es posible que se hayan producido cambios desde que se tomaron las fotografías y se estiman los metros cuadrados. Además, los precios y las fechas pueden cambiar sin previo aviso. Consulte el sitio web de InvitationHomes para obtener más información. Tenga cuidado con las estafas: Los empleados de Invitation Homes nunca le pedirán su nombre de usuario y contraseña. Invitation Homes no publicita en Craigslist, Social Serve, etc. Somos propietarios de nuestras casas; no hay propietarios privados. Todos los fondos para alquilar con Invitation Homes se pagan directamente a través de nuestro sitio web, nunca a través de giros electrónicos o aplicaciones de pago como Zelle, Pay Pal o Cash App. Para obtener más información, envíe una consulta para esta casa. Las solicitudes están sujetas a nuestros requisitos de calificación. Se aplican términos y condiciones adicionales. CONSENTIMIENTO PARA MENSAJES DE TEXTO: Al ingresar su número de teléfono móvil, usted acepta expresamente recibir mensajes de texto de Invitation Homes. Pueden aplicarse tarifas de mensajes y datos.
1358 W 135th Dr se encuentra en el Barrio East Westminster y el código postal 80234 de Westminster, CO.
Información de contacto de la propiedad
Términos de Arrendamiento
- Têrminos del Alquiler
Fees and Policies
Las tarifas que se indican a continuación son proporcionadas por la comunidad y pueden excluir servicios públicos o complementos. Todos los pagos se realizan directamente a la propiedad y no son reembolsables, salvo que se especifique lo contrario.
Tasas Requeridas
Servicios Públicos
- Utility Billing Service FeeiCharged per unit.$9.95/mes
- Air Filter Delivery FeeiCharged per unit.$9.95/mes
- Smart Home with video doorbelliCharged per unit.$40/mes
Pet Policy and Fees
Cats
AllowedDogs
AllowedParking Info and Fees
- Garage Parking
Exención de responsabilidad sobre las tasas de propiedad: Based on community-supplied data and independent market research. Subject to change without notice. May exclude fees for mandatory or optional services and usage-based utilities.
Características y Facilidades
Servicios
- Con Jardín
Características al Aire Libre
- Parcela Vallada
- Cubierta
- Patio
Características de la Sala de Estar
- Vestidores
Características únicas
- Garaje

Mapa
- Compras
- Universidades
- Supermercado
- Médicos
- Parques

Mapa
Preguntas Frecuentes sobre 1358 W 135th Dr
¿Qué tipo de alquileres hay disponibles en 1358 W 135th Dr?
Actualmente hay un Casa de 3 Dormitorios 3 Baños en alquiler con 1,776 en 1358 W 135th Dr. Está Disponible Ahora.
¿Cuánto cuesta el alquiler ent 1358 W 135th Dr?
1358 W 135th Dr se lista actualmente en $2,770.
¿En qué zona de la ciudad se encuentra 1358 W 135th Dr?
Está localizado en el barrio East Westminster, 1358 W 135th Dr en el código postal 80234 de Westminster, CO.
Acerca del informe portátil de verificación de antecedentes del inquilino
El postulante tiene derecho a proporcionar al administrador o dueño de la propiedad un "Informe portátil de verificación de antecedentes del inquilino (PTSR, por su sigla en inglés) de no más de 30 días de antigüedad, como se establece en el párrafo § 38-12-902(2.5) de los Estatutos Revisados de Colorado; y 2) si el Postulante proporciona al administrador o dueño de la propiedad un PTSR, el administrador o dueño de la propiedad tiene prohibido: a) cobrar al Postulante un honorario por postulación de alquiler; o b) cobrar al Postulante un honorario para que el administrador o dueño de la propiedad acceda o use el PTSR.
Escuelas Cercanas
Arapahoe Ridge Elementary School
Legacy High School
Silver Hills Middle School
Sitios de Interés
Tiempo y distancia desde 1358 W 135th Dr.
Grandes Superficies de Ventas
Lowe's
Autozone
Cabela's
Universidad
Tiendas
King Soopers
Hospitales
Parques y opciones de recreación
1358 W 135th Dr tiene 1 parque en un radio de 5.0 millas, incluyendo Butterfly Pavilion and Insect Center.
Centros Comerciales
1358 W 135th Dr tiene 5 centros comerciales en un radio de 0.5 millas.
Barrios cercanos
Apartamentos Cercanos
Rango de Precios de los Alquileres en la Zona
| Dormitorios | Precio Promedio | Más barato | Más caro |
|---|---|---|---|
| Apartamentos Estudio en Westminster | $1,610 | $985 | $2,434 |
| Apartamentos 1 Dormitorios en Westminster | $1,673 | $530 | $4,697 |
| Apartamentos 2 Dormitorios en Westminster | $2,090 | $600 | $6,379 |
| Apartamentos 3 Dormitorios en Westminster | $2,821 | $600 | $10,000+ |
| Apartamentos 4 Dormitorios en Westminster | $3,670 | $2,040 | $5,434 |
Ver Apartamentos más destacados en Westminster
Por el Precio
- Apartamentos Barato en Westminster
- Apartamentos en Westminster menos de $700
- Apartamentos en Westminster menos de $800
- Apartamentos en Westminster menos de $900
- Apartamentos en Westminster menos de $1000
- Apartamentos en Westminster menos de $1200
- Apartamentos en Westminster menos de $1500
- Apartamentos en Westminster menos de $2000
- Apartamentos de Lujo en Westminster
Por tipo de comunidad
- Apartamentos en alquiler por el propietario en Westminster
- Apartamentos en Westminster con Oferta Especial
- Apartamentos en Westminster Más Valorados
- Apartamentos en Westminster Viviendas Corporativas
- Apartamentos en Westminster Amueblado
- Apartamentos en Westminster Reja de Entrada Automática
- Apartamentos en Westminster Loft
- Apartamentos en Westminster De Bajos Ingresos
- Nuevos Apartamentos en Westminster
- Apartamentos en Westminster Personas Mayores
- Apartamentos en Westminster Contratos de Corto Plazo
- Apartamentos en Westminster Estudiante
- Apartamentos en Westminster con Utilidades Incluidas
