Photos












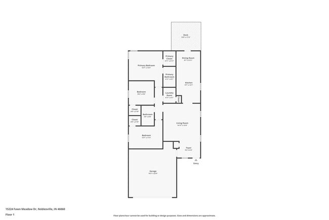
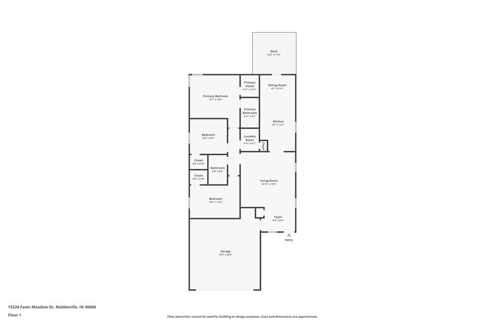
- 3Dorm., 2BACasa
- $1,710Precios de alquiler
- 1,240Pies cuadrados
- Disponible AhoraDisponibilidad
Características y Facilidades
Características
- Aire acondicionado
- Conexiones para lavadora/secadora
Tasas y precio
Precio por Unidad
- $1,710
Acerca 15224 Fawn Meadow Dr
¡Llena tu solicitud ahora mismo, y haz la mudanza antes del 30 de noviembre, 2021 y recibe un contrato de arrendamiento de 17 meses sin aumento de alquiler en el mes 12. ¿Desea hacer un recorrido por tu cuenta? Haz clic en el espectáculo de uno mismo en “” en este botón RentProgress home.com publicación o llama al (317) 434-3314 para registrarse para disfrutar de un recorrido autoguiado en un momento que funciona mejor para ti. Este apartamento cuenta con Progress Smart Home: progreso de la aplicación de manera inteligente Residential hogar, que te permite controlar el hogar de manera segura desde cualquiera de tus dispositivos. Más información en rentprogress.com/smarthome. Único hogar ubicado en el distrito de Hamilton Southeastern. Disfruta de la garaje adjunto para dos automóviles, ya sea para el clima de protección para tus vehículos o almacenaje adicional. Entrada de la casa es diseño abierto que brinda una variedad de opciones para acomodar tus muebles para satisfacer tus necesidades. La cocina cuenta con un diseño de estilo galera y un área abierta para disfrutar de tu cocina comedor de espacio para que pueda disfrutar del espacio. Habitaciones tienen una buena cantidad de espacio para utilizar y utilizar como una oficina o más habitaciones o lo que es mejor para ti. Además de este hermoso solárium en la parte trasera de la casa con barandillas para disfrutar de un agradable pícnic o fiesta con los amigos. Nota: Las comodidades pueden no ser exactas. Consulta a un curso Residential agente de arrendamiento para confirmar la propiedad se encargará de satisfacer tus necesidades individuales.
15224 Fawn Meadow Dr se encuentra en el Barrio Noblesville Durbin y el código postal 46060 de Noblesville, IN.
Información de contacto de la propiedad
Fees and Policies
Las tarifas que se indican a continuación son proporcionadas por la comunidad y pueden excluir servicios públicos o complementos. Todos los pagos se realizan directamente a la propiedad y no son reembolsables, salvo que se especifique lo contrario.
Tasas Requeridas
Servicios Públicos
- utilitiesAdminFeeiCharged per unit.$4.99/mes
- smartHomeFeeiCharged per unit.$19.99/mes
Pet Policy and Fees
Cats
AllowedDogs
AllowedParking Info and Fees
- Garage Parking
Exención de responsabilidad sobre las tasas de propiedad: Based on community-supplied data and independent market research. Subject to change without notice. May exclude fees for mandatory or optional services and usage-based utilities.
Características y Facilidades
Servicios
- Instalaciones De Lavandería
- Con Jardín
Recreación
- Piscina
Características Interior
- Conexiones Para Lavadora/Secadora
- Aire Acondicionado
Características de la Sala de Estar
- Suelos De Vinilo
Características al Aire Libre
- Porche
Características únicas
- Garaje

Mapa
- Compras
- Supermercado
- Médicos
- Parques

Mapa
Preguntas Frecuentes sobre 15224 Fawn Meadow Dr
¿Qué tipo de alquileres hay disponibles en 15224 Fawn Meadow Dr?
Actualmente hay un Casa de 3 Dormitorios 2 Baños en alquiler con 1,240 en 15224 Fawn Meadow Dr. Está Disponible Ahora.
¿Cuánto cuesta el alquiler ent 15224 Fawn Meadow Dr?
15224 Fawn Meadow Dr se lista actualmente en $1,710.
¿En qué zona de la ciudad se encuentra 15224 Fawn Meadow Dr?
Está localizado en el barrio Noblesville Durbin, 15224 Fawn Meadow Dr en el código postal 46060 de Noblesville, IN.
Escuelas Cercanas
Hamilton Southeastern High School
Fishers Junior High School
Sand Creek Intermediate School
Sitios de Interés
Tiempo y distancia desde 15224 Fawn Meadow Dr.
Grandes Superficies de Ventas
Cabela's
Jcpenney
Lowe's
Tiendas
Meijer
Kroger
Iga
Hospitales
St. Vincent Fishers Hospital
Riverview Health
Fairbanks Alcohol & Drug Addiction Treatment Center
Parques y opciones de recreación
15224 Fawn Meadow Dr tiene 1 parque en un radio de 8.1 millas, incluyendo Climb Time Indy.
Restaurantes
Centros Comerciales
15224 Fawn Meadow Dr tiene 5 centros comerciales en un radio de 2.6 millas.
Barrios cercanos
Apartamentos Cercanos
Rango de Precios de los Alquileres en la Zona
| Dormitorios | Precio Promedio | Más barato | Más caro |
|---|---|---|---|
| Apartamentos Estudio en Noblesville | $1,474 | $1,149 | $4,554 |
| Apartamentos 1 Dormitorios en Noblesville | $1,584 | $1,030 | $3,945 |
| Apartamentos 2 Dormitorios en Noblesville | $1,980 | $492 | $4,817 |
| Apartamentos 3 Dormitorios en Noblesville | $2,220 | $569 | $8,506 |
| Apartamentos 4 Dormitorios en Noblesville | $3,349 | $2,650 | $8,896 |
Ver Apartamentos más destacados en Noblesville
Por el Precio
Por tipo de comunidad
- Apartamentos en Noblesville con Oferta Especial
- Apartamentos en Noblesville Más Valorados
- Apartamentos en Noblesville Viviendas Corporativas
- Apartamentos en Noblesville Amueblado
- Apartamentos en Noblesville Reja de Entrada Automática
- Apartamentos en Noblesville Loft
- Apartamentos en Noblesville De Bajos Ingresos
- Nuevos Apartamentos en Noblesville
- Apartamentos en Noblesville Personas Mayores
- Apartamentos en Noblesville Contratos de Corto Plazo
- Apartamentos en Noblesville con Utilidades Incluidas
