Photos












- 3Dorm., 2BACasa
- $1,445Precio
- 1,320Pies cuadrados
- Disponible AhoraDisponibilidad
Tasas y precio
Precio por Unidad
- $1,445
Acerca 15626 Friend Ave
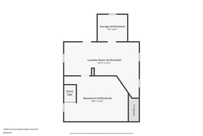
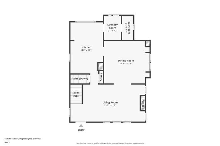
COMING SOON This home is coming soon. Please check to see the estimated availability date. Monthly Recurring Fees: $10.95 - Utility Management Maymont Homes is committed to clear and upfront pricing. In addition to the advertised rent, residents may have monthly fees, including a $10.95 utility management fee, a $25.00 wastewater fee for homes on septic systems, and an amenity fee for homes with smart home technology, valet trash, or other community amenities. This does not include utilities or optional fees, including but not limited to pet fees and renter’s insurance. Located at 15626 Friend Avenue in Maple Heights, OH, this 3-bedroom, 1.5-bath home offers 1,320 square feet of thoughtfully arranged living space across multiple levels. Positioned with convenient access to I-480 and I-271, this address places Downtown Cleveland, Cleveland Heights, and major employment corridors within approximately 15–20 minutes, while neighborhood conveniences remain close by. The main level opens to a spacious living and dining layout finished with neutral tones and fresh interior paint, creating a clean, welcoming backdrop. A brick hearth feature anchors the living area, adding architectural character without overpowering the space. The kitchen has been refreshed with new LVP flooring and includes ample cabinetry, generous counter space, and a new microwave, offering a practical setup that connects easily to the dining area. Upstairs, all three bedrooms are grouped together for a cohesive layout, providing flexibility for sleeping, work-from-home setups, or creative use of space. The full bathroom is conveniently located on this level, while a half bath on the main floor supports daily routines. The lower level expands the home’s footprint with an unfinished basement and laundry area, offering valuable bonus space for storage, hobbies, or future use. Outside, a long driveway leads to a detached garage, adding off-street parking and additional storage options. With its refreshed finishes, adaptable layout, and Maple Heights location close to regional destinations, this home offers comfort, function, and everyday convenience. Apply now! *Maymont Homes provides residents with convenient solutions, including simplified utility billing and flexible rent payment options. Contact us for more details. This information is deemed reliable, but not guaranteed. All measurements are approximate. Actual product and home specifications may vary in dimension or detail. Images are for representational purposes only. Some programs and services may not be available in all market areas. Prices and availability are subject to change without notice. Advertised rent prices do not include the required application fee, the partially refundable reservation fee (due upon application approval), or the mandatory monthly utility management fee (in select market areas.) Residents must maintain renters insurance as specified in their lease. If third-party renters insurance is not provided, residents will be automatically enrolled in our Master Insurance Policy for a fee. Select homes may be located in communities that require a monthly fee for community-specific amenities or services. For complete details, please contact a company leasing representative. Equal Housing Opportunity. Estimated availability date is subject to change based on construction timelines and move-out confirmation. Contact us to schedule a showing.
15626 Friend Ave se encuentra en el código postal 44137 de Maple Heights, OH.
Información de contacto de la propiedad
Fees and Policies
Las tarifas que figuran a continuación se basan en datos facilitados por la comunidad y pueden excluir tasas y servicios adicionales.
Other Fees
Complementos personales
- Application FeeiAmount per applicant (18+ years). Charged per unit$55
- Holding DepositiReserves your home for up to 14 days while you finalize your move. The $550 Reservation Binder applies $400 toward your first month’s rent. For Section 8 homes, the fee is $150 with no rent credit. Charged per unit$550
- Security DepositiCharged per unit$1445
- Utilities Setup FeeiCharged per unit$25
- Utilities Monthly FeeiCharged per unit$10.95
- Pet Screening FeeiCharged per unit$25
Tasas por mascotas
- Pet RentiCharged per Pet$35/mes
- Pet RentiCharged per Pet$35/mes
Dog
Cat
Exención de responsabilidad sobre las tasas de propiedad: Based on community-supplied data and independent market research. Subject to change without notice. May exclude fees for mandatory or optional services and usage-based utilities.
Características y Facilidades
Servicios
- Con Jardín

Mapa
- Compras
- Universidades
- Supermercado
- Médicos
- Parques
- Transporte

Mapa
¿Qué son las clasificaciones Walk Score®, Transit Score® y Bike Score®?
- Walk Score® mide la viabilidad peatonal de cualquier dirección.
- Transit Score® mide el acceso a transporte público.
- Bike Score® mide la infraestructura de rutas para bicicletas de cualquier dirección.
Preguntas Frecuentes sobre 15626 Friend Ave
¿Qué tipo de alquileres hay disponibles en 15626 Friend Ave?
Actualmente hay un Casa de 3 Dormitorios 2 Baños en alquiler con 1,320 en 15626 Friend Ave. Está Disponible Ahora.
¿Cuánto cuesta el alquiler ent 15626 Friend Ave?
15626 Friend Ave se lista actualmente en $1,445.
¿En qué zona de la ciudad se encuentra 15626 Friend Ave?
15626 Friend Ave está 44137 en el código postal en Maple Heights, OH.
Escuelas Cercanas
Maple Heights High School
Milkovich Middle School
Rockside/ J.F. Kennedy School
Barack Obama Elementary School
Sitios de Interés
Tiempo y distancia desde 15626 Friend Ave.
Arte, Museos y Monumentos
Grandes Superficies de Ventas
Walgreens
Walmart
Ames
Universidad
Tiendas
Aldi
Giant Eagle
Whole Foods
Hospitales
Marymount Hospital
South Pointe Hospital
Highland Springs
Parques y opciones de recreación
15626 Friend Ave tiene 4 parques en un radio de 8.8 millas, incluyendo Mill Stream Run Reservation, Rockefeller Park Greenhouse, Rockefeller Park Green House, y Cleveland Lakefront State Park.
Restaurantes
Centros Comerciales
15626 Friend Ave tiene 5 centros comerciales en un radio de 1.9 millas.
Estaciones de Tránsito
Barrios cercanos
Apartamentos Cercanos
Rango de Precios de los Alquileres en la Zona
| Dormitorios | Precio Promedio | Más barato | Más caro |
|---|---|---|---|
| Apartamentos Estudio en Maple Heights | $763 | $535 | $915 |
| Apartamentos 1 Dormitorios en Maple Heights | $869 | $665 | $1,295 |
| Apartamentos 2 Dormitorios en Maple Heights | $1,030 | $795 | $1,650 |
| Apartamentos 3 Dormitorios en Maple Heights | $1,530 | $875 | $3,577 |
| Apartamentos 4 Dormitorios en Maple Heights | $1,614 | $1,129 | $2,100 |
Ver Apartamentos más destacados en Maple Heights
Por el Precio
Por tipo de comunidad
- Apartamentos en Maple Heights con Oferta Especial
- Apartamentos en Maple Heights Más Valorados
- Apartamentos en Maple Heights Viviendas Corporativas
- Apartamentos en Maple Heights Amueblado
- Apartamentos en Maple Heights Reja de Entrada Automática
- Apartamentos en Maple Heights Personas Mayores
- Apartamentos en Maple Heights Contratos de Corto Plazo
- Apartamentos en Maple Heights Estudiante
- Apartamentos en Maple Heights con Utilidades Incluidas
