Photos












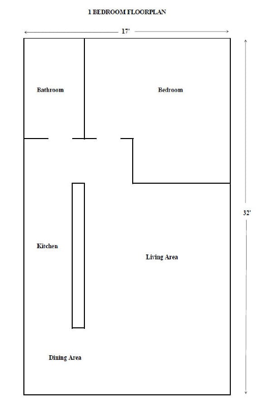
- 1Dorm., 1BA
- $1,600 Precios de alquiler
- 600 Pies cuadrados
- 05-01-2026 Disponibilidad
Características y Facilidades
Cocina
- Nevera
Tasas y precio
Precio por Unidad
- $1,600
Depósito
- $1,600 deposit
Acerca 1747 S Hanford St
Property Id: 230390 Available 05/01/2026. Call JeanVelDyke Properties at for appointment to view. Submit paper applications to JeanVelDyke Properties. Online applications are not accepted by Property Manager. Nice one bedroom ground floor corner unit with full bath. On Site Laundry. Street parking, very convenient to bus line. Centrally located. Within a few blocks to Beacon Hill light rail station, freeway, grocery shopping, banks, restaurants, Beacon Hill Library, Jefferson Community Center, Golf course. For example - a coffee shop, a Mexican restaurant and Pizza/Italian restaurant are across the street and within an easy 1 block walk. First month rent, deposit, good credit, good rental history, good employment required. Sorry no pets. Water/sewer/garbage is included in monthly rent. Tenant pays electricity. Pictures of similar unit. Close access to Downtown Seattle, I-5 and I-90. Sorry no pets. Save money and live better. Call JeanVelDyke Properties for showing at .
1747 S Hanford St se encuentra en el Barrio North Beacon Hill y el código postal 98144 de Seattle, WA.
Información de contacto de la propiedad
Fees and Policies
Las tarifas que se indican a continuación son proporcionadas por la comunidad y pueden excluir servicios públicos o complementos. Todos los pagos se realizan directamente a la propiedad y no son reembolsables, salvo que se especifique lo contrario.
Tasas Requeridas
Básicos de una sola vez
- A pagar en el momento de la mudanza
- Security Deposit - RefundableiCharged Per Unit.$1,600.00
Exención de responsabilidad sobre las tasas de propiedad: Based on community-supplied data and independent market research. Subject to change without notice. May exclude fees for mandatory or optional services and usage-based utilities.
Características y Facilidades
Características de la Cocina
- Nevera
Características de la Sala de Estar
- Suelos De Vinilo
- Suelos De Baldosas
- Suelos De Madera Maciza

Mapa
- Compras
- Universidades
- Escuelas
- Supermercado
- Médicos
- Transporte

Mapa
Preguntas Frecuentes sobre 1747 S Hanford St
¿Donde se encuentra 1747 S Hanford St?
1747 S Hanford St se encuentran en 1747 S Hanford St cerca de la zona North Beacon Hill en Seattle, WA
¿Cuál es el rango de alquiler vigente en 1747 S Hanford St?
1 dormitorio en 1747 S Hanford St por $1,600. ¡Llámenos hoy para obtener más información!
¿Se permiten mascotas?
Llámenos hoy para conocer nuestra política de mascotas y saber si las aceptamos.
Calificación Según Estilo de Vida:
Conocer más sobre la búsqueda de estilos de vidaSitios de Interés
Tiempo y distancia desde 1747 S Hanford St.
Grandes Superficies de Ventas
Costco
Walgreens
Safeway
Universidad
Tiendas
Whole Foods
Safeway
Thriftway
Hospitales
Harborview Medical Center
Swedish Medical Center - Cherry Hill
Swedish Medical Center
Bases Militares
Fort Lawton Military Reserve
Centros Comerciales
1747 S Hanford St tiene 5 centros comerciales en un radio de 1.0 millas.
Estaciones de Tránsito
ST Light Rail & Beacon Hill Station (SB)-LINK to Sea-Tac
Beacon Hill-Central Link
ST Light Rail & Beacon Hill Station (NB)-LINK to Sea-Tac
Barrios cercanos
Rango de Precios de los Alquileres en la Zona
| Dormitorios | Precio Promedio | Más barato | Más caro |
|---|---|---|---|
| Apartamentos Estudio en Seattle | $1,626 | $594 | $4,867 |
| Apartamentos 1 Dormitorios en Seattle | $2,254 | $634 | $8,976 |
| Apartamentos 2 Dormitorios en Seattle | $3,169 | $600 | $10,000+ |
| Apartamentos 3 Dormitorios en Seattle | $4,459 | $1,099 | $10,000+ |
| Apartamentos 4 Dormitorios en Seattle | $2,269 | $1,099 | $10,000+ |
| Apartamentos 5 Dormitorios en Seattle | $2,095 | $950 | $6,805 |
| Apartamentos 6 Dormitorios en Seattle | $6,920 | $1,420 | $10,000+ |
Ver Apartamentos más destacados en Seattle
Por el Precio
- Apartamentos Barato en Seattle
- Apartamentos en Seattle menos de $600
- Apartamentos en Seattle menos de $700
- Apartamentos en Seattle menos de $800
- Apartamentos en Seattle menos de $900
- Apartamentos en Seattle menos de $1000
- Apartamentos en Seattle menos de $1200
- Apartamentos en Seattle menos de $1500
- Apartamentos en Seattle menos de $2000
- Apartamentos de Lujo en Seattle
Por tipo de comunidad
- Apartamentos en alquiler por el propietario en Seattle
- Apartamentos en Seattle con Oferta Especial
- Apartamentos en Seattle Más Valorados
- Apartamentos en Seattle Viviendas Corporativas
- Apartamentos en Seattle Amueblado
- Apartamentos en Seattle Reja de Entrada Automática
- Apartamentos en Seattle Loft
- Apartamentos en Seattle De Bajos Ingresos
- Nuevos Apartamentos en Seattle
- Apartamentos en Seattle Personas Mayores
- Apartamentos en Seattle Contratos de Corto Plazo
- Apartamentos en Seattle Estudiante
- Apartamentos en Seattle con Utilidades Incluidas
Por las Características
- Apartamentos en Seattle con Pisos de Madera
- Apartamentos en Seattle con Lavandería
- Apartamentos en Seattle con Estacionamiento Disponible
- Apartamentos en Seattle Se Permiten Mascotas
- Apartamentos en Seattle con Piscina(s)
- Apartamentos en Seattle con Lavadora y Secadora
- Apartamentos en Seattle con Estaciones de Carga EV
