Photos












- 4Dorm., 2BACasa
- $2,345
- 2,234Pies cuadrados
- Disponible AhoraDisponibilidad
Características y Facilidades
Características
- Chimenea
Información sobre el arrendamiento
Precio por Unidad
- $2,345
Acerca 200 Seven Oaks Dr
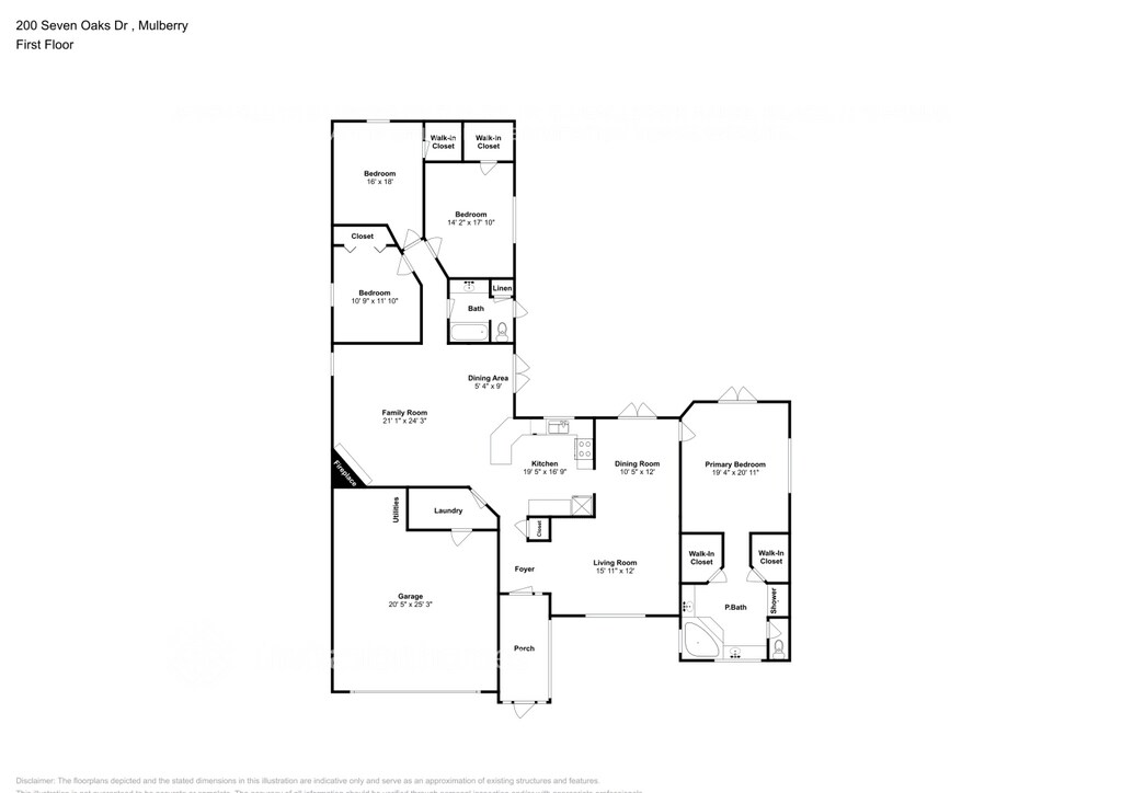
Lease this home and get more from Invitation Homes professional property management. This home comes fully loaded with quality amenities, must-have services, high-end tech and ProCare® professional maintenance. Your estimated total monthly payment is $2609.90. That covers your base rent, $2345.00 + our required services designed to make your life easier: Air Filter Delivery Fee ($9.95), Internet & Media ($85), Pool Maintenance Fee ($120), Smart Home with video doorbell ($40), and Utility Billing Service Fee ($9.95). Base rent varies based on selected lease term. You deserve a quality home that you can shape to fit your personality. And here it is. Invite your family and friends for quality time in a home that reflects your spirit. The living space's stylish finishes offer a blank canvas you can make your own. The cooking space is roomy and set up to accommodate a cook who knows their way around a kitchen. Cooking will be less of a chore thanks to these gleaming countertops, premium cabinets and stainless steel appliances. The backyard brings the whole house together. Keep the fun going in this fenced backyard that your furry friends will be more than happy to claim for themselves. Apply online today! At Invitation Homes, we offer pet-friendly, yard-having homes for lease with Smart Home technology in awesome neighborhoods across the country. Live in a great house without the headache and long-term commitment of owning. Discover your dream home with Invitation Homes. Our Lease Easy bundle – which includes Smart Home, Air Filter Delivery, and Utilities Management – is a key part of your worry-free leasing lifestyle. These services are required by your lease at an additional monthly cost. Monthly fees for pets and pools may also apply. Home Features and Amenities: Air Conditioning, Fenced Yard, Fireplace, Garage, Long Lease Terms, Luxury Vinyl Plank, Open Floorplan, Patio, Pet Friendly, Pool, Primary Bedroom on Main, Recessed Lighting, Single Story House, Smart Home, Stainless Steel Appliances, Tile, Walk in Closet, W/D Hookups, and professionally managed by Invitation Homes. This Invitation Home is being enjoyed by another resident, but it will be available soon. You can still apply – contact us for more details or apply now. Invitation Homes is an equal housing lessor under the FHA. Applicable local, state and federal laws may apply. Additional terms and conditions apply. This listing is not an offer to rent. You must submit additional information including an application to rent and an application fee. All leasing information is believed to be accurate, but changes may have occurred since photographs were taken and square footage is estimated. See InvitationHomes website for more information. Beware of scams: Employees of Invitation Homes will never ask you for your username and password. Invitation Homes does not advertise on Craigslist, Social Serve, etc. We own our homes; there are no private owners. All funds to lease with Invitation Homes are paid directly through our website, never through wire transfer or payment app like Zelle, Pay Pal, or Cash App. For more info, please submit an inquiry for this home. Applications are subject to our qualification requirements. Additional terms and conditions apply. CONSENT TO CALLS & TEXT MESSAGING: By entering your contact information, you expressly consent to receive emails, calls, and text messages from Invitation Homes including by autodialer, prerecorded or artificial voice and including marketing communications. Msg & Data rates may apply. You also agree to our Terms of Use and our Privacy Policy.
200 Seven Oaks Dr se encuentra en el Barrio Southwest Polk y el código postal 33860 de Mulberry, FL.
Información de contacto de la propiedad
Fees and Policies
Las tarifas que se indican a continuación son proporcionadas por la comunidad y pueden excluir servicios públicos o complementos. Todos los pagos se realizan directamente a la propiedad y no son reembolsables, salvo que se especifique lo contrario.
Tasas Requeridas
Servicios Públicos
- Utility Billing Service FeeiCharged per unit.$9.95/mes
- Air Filter Delivery FeeiCharged per unit.$9.95/mes
- Smart Home with video doorbelliCharged per unit.$40/mes
- Internet & MediaiCharged per unit.$85/mes
- Pool Maintenance FeeiCharged per unit.$120/mes
Pet Policy and Fees
Cats
AllowedDogs
AllowedParking Info and Fees
- Garage Parking
Exención de responsabilidad sobre las tasas de propiedad: Based on community-supplied data and independent market research. Subject to change without notice. May exclude fees for mandatory or optional services and usage-based utilities.
Características y Facilidades
Servicios
- Con Jardín
Características al Aire Libre
- Parcela Vallada
- Patio
Características Interior
- Chimenea
Características de la Sala de Estar
- Vestidores
Características únicas
- Garaje

Mapa
- Compras
- Universidades
- Supermercado
- Médicos
- Parques

Mapa
Preguntas Frecuentes sobre 200 Seven Oaks Dr
¿Qué tipo de alquileres hay disponibles en 200 Seven Oaks Dr?
Actualmente hay un Casa de 4 Dormitorios 2 Baños en alquiler con 2,234 en 200 Seven Oaks Dr. Está Disponible Ahora.
¿Cuánto cuesta el alquiler ent 200 Seven Oaks Dr?
200 Seven Oaks Dr se lista actualmente en $2,345.
¿En qué zona de la ciudad se encuentra 200 Seven Oaks Dr?
Está localizado en el barrio Southwest Polk, 200 Seven Oaks Dr en el código postal 33860 de Mulberry, FL.
Calificación Según Estilo de Vida:
Conocer más sobre la búsqueda de estilos de vidaEscuelas Cercanas
Mulberry Middle School
Sitios de Interés
Tiempo y distancia desde 200 Seven Oaks Dr.
Grandes Superficies de Ventas
Autozone
Walgreens
Aldi
Universidad
Tiendas
Aldi
Publix
Hospitales
Parques y opciones de recreación
200 Seven Oaks Dr tiene 5 parques en un radio de 9.2 millas, incluyendo Adair Park, Curtis Peterson Park, Gator Family Theme Park, Barnett Park, y Dobbins Park.
Centros Comerciales
200 Seven Oaks Dr tiene 5 centros comerciales en un radio de 1.8 millas.
Barrios cercanos
Apartamentos Cercanos
Rango de Precios de los Alquileres en la Zona
| Dormitorios | Precio Promedio | Más barato | Más caro |
|---|---|---|---|
| Apartamentos Estudio en Mulberry | $1,275 | $857 | $1,656 |
| Apartamentos 1 Dormitorios en Mulberry | $1,516 | $985 | $1,933 |
| Apartamentos 2 Dormitorios en Mulberry | $1,770 | $1,225 | $2,444 |
| Apartamentos 3 Dormitorios en Mulberry | $2,039 | $1,325 | $3,404 |
| Apartamentos 4 Dormitorios en Mulberry | $2,340 | $2,255 | $2,460 |
Ver Apartamentos más destacados en Mulberry
Por el Precio
Por tipo de comunidad
- Apartamentos en Mulberry con Oferta Especial
- Apartamentos en Mulberry Más Valorados
- Apartamentos en Mulberry Viviendas Corporativas
- Apartamentos en Mulberry Amueblado
- Apartamentos en Mulberry Reja de Entrada Automática
- Nuevos Apartamentos en Mulberry
- Apartamentos en Mulberry Personas Mayores
- Apartamentos en Mulberry Contratos de Corto Plazo
- Apartamentos en Mulberry con Utilidades Incluidas
