Photos












- 3Dorm., 2BACasa
- $1,995Más Cargos
- 1,545Pies cuadrados
- Disponible AhoraDisponibilidad
Características y Facilidades
Características
- Aire acondicionado
Cocina
- Nevera
Tasas y precio
Precio por Unidad
- $1,995Más Cargos
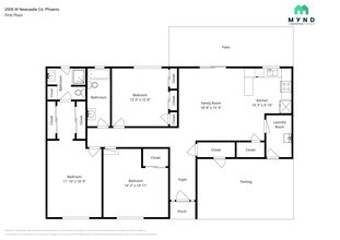
Acerca 2009 W Newcastle Cir
SPLIT THE PAYMENT! Reserve your new home by paying 50% of your security deposit now, with the remaining balance due before move-in. Welcome to this charming and spacious 3-bedroom, 2-bath home located at 2009 W Newcastle Cir in Phoenix. The well-designed floorplan centers around a large living room, providing ample space for relaxation and entertaining. The private areas include an oversized primary bedroom and two additional, generously sized bedrooms, one of which features a walk-in closet. Practical amenities abound, including a compact yet functional kitchen with stainless steel appliances, a separate laundry area, and abundant storage options. Enjoy the Arizona weather on the expansive patio or utilize the convenient attached carport. This home offers a fantastic blend of comfort, space, and convenience, a true must-see! _____ RENT WITH MYND -Fast Online Application (valid for 30 days) -Mobile App to Pay Rent and Track Services -Affordable Renter's Insurance Lease term: 12 or 18 months Section 8 accepted ONE-TIME FEES Non-refundable $59.00 Application Fee Per Adult One Time Move In Fee $199 REQUIRED MONTHLY CHARGES* $1995.00: Base Rent $39.95/month: Residents Benefits Package provides residents with on-demand basic pest control, as-needed HVAC air filter delivery, Identity Theft Protection, and access to an exciting rewards program *Estimated required monthly charges do not include the required costs of utilities or rental insurance, conditional fees including, but not limited to, pet fees, or optional fees. See our website for more information: CONDITIONAL FEES This is a pet-friendly property! 3 Pets Max; Pet Move-In Fee $199 per pet; Pet Rent per pet varies based on Paw Score. Breed restrictions apply. All pets must be registered at Please visit our website for details You can reach us directly at , or call , or text for more information. Mynd Property Management Equal Opportunity Housing License # CO689807000; CO689807001 www.mynd.co Mynd Property Management does not advertise on Craigslist or Facebook Marketplace. We will never ask you to wire money or pay with gift cards. Please report any fraudulent ads to your Leasing Associate. Federal Occupancy Guidelines: 2 per bedroom + 1 additional occupant; 2 per studio. Please contact us for move-in policy and available move-in date.
2009 W Newcastle Cir se encuentra en el Barrio North Phoenix y el código postal 85021 de Phoenix, AZ.
Información de contacto de la propiedad
Términos de Arrendamiento
- Têrminos del Alquiler
Fees and Policies
Exención de responsabilidad sobre las tasas de propiedad: Based on community-supplied data and independent market research. Subject to change without notice. May exclude fees for mandatory or optional services and usage-based utilities.
Características y Facilidades
Servicios
- Con Jardín
Características Interior
- Aire Acondicionado
Características de la Cocina
- Nevera

Mapa
- Compras
- Universidades
- Supermercado
- Médicos
- Transporte

Mapa
¿Qué son las clasificaciones Walk Score®, Transit Score® y Bike Score®?
- Walk Score® mide la viabilidad peatonal de cualquier dirección.
- Transit Score® mide el acceso a transporte público.
- Bike Score® mide la infraestructura de rutas para bicicletas de cualquier dirección.
Preguntas Frecuentes sobre 2009 W Newcastle Cir
¿Qué tipo de alquileres hay disponibles en 2009 W Newcastle Cir?
Actualmente hay un Casa de 3 Dormitorios 2 Baños en alquiler con 1,545 en 2009 W Newcastle Cir. Está Disponible Ahora.
¿Cuánto cuesta el alquiler ent 2009 W Newcastle Cir?
2009 W Newcastle Cir se lista actualmente en $1,995.
¿En qué zona de la ciudad se encuentra 2009 W Newcastle Cir?
Está localizado en el barrio North Phoenix, 2009 W Newcastle Cir en el código postal 85021 de Phoenix, AZ.
Calificación Según Estilo de Vida:
Conocer más sobre la búsqueda de estilos de vidaEscuelas Cercanas
Orangewood Elementary School
Washington High School
Sitios de Interés
Tiempo y distancia desde 2009 W Newcastle Cir.
Grandes Superficies de Ventas
Walgreens
Autozone
Walmart
Universidad
Tiendas
Safeway
Winco Foods
Sprouts Farmers Market
Hospitales
Bases Militares
Phoenix Sky Harbor Airport Air Guard Station
Restaurantes
Centros Comerciales
2009 W Newcastle Cir tiene 5 centros comerciales en un radio de 1.0 millas.
Estaciones de Tránsito
Tempe Transportation Center-METRO Light Rail
Barrios cercanos
Apartamentos Cercanos
Rango de Precios de los Alquileres en la Zona
| Dormitorios | Precio Promedio | Más barato | Más caro |
|---|---|---|---|
| Apartamentos Estudio en Phoenix | $1,322 | $599 | $4,470 |
| Apartamentos 1 Dormitorios en Phoenix | $1,535 | $671 | $10,000+ |
| Apartamentos 2 Dormitorios en Phoenix | $1,901 | $649 | $10,000+ |
| Apartamentos 3 Dormitorios en Phoenix | $2,451 | $675 | $10,000+ |
| Apartamentos 4 Dormitorios en Phoenix | $2,487 | $695 | $10,000+ |
| Apartamentos 5 Dormitorios en Phoenix | $5,751 | $999 | $10,000+ |
| Apartamentos 6 Dormitorios en Phoenix | $9,072 | $7,047 | $10,000+ |
Ver Apartamentos más destacados en Phoenix
Por el Precio
- Apartamentos Barato en Phoenix
- Apartamentos en Phoenix menos de $600
- Apartamentos en Phoenix menos de $700
- Apartamentos en Phoenix menos de $800
- Apartamentos en Phoenix menos de $900
- Apartamentos en Phoenix menos de $1000
- Apartamentos en Phoenix menos de $1200
- Apartamentos en Phoenix menos de $1500
- Apartamentos en Phoenix menos de $2000
- Apartamentos de Lujo en Phoenix
Por tipo de comunidad
- Apartamentos en alquiler por el propietario en Phoenix
- Apartamentos en Phoenix con Oferta Especial
- Apartamentos en Phoenix Más Valorados
- Apartamentos en Phoenix Viviendas Corporativas
- Apartamentos en Phoenix Amueblado
- Apartamentos en Phoenix Reja de Entrada Automática
- Apartamentos en Phoenix Loft
- Apartamentos en Phoenix De Bajos Ingresos
- Apartamentos en Phoenix Militar
- Nuevos Apartamentos en Phoenix
- Apartamentos en Phoenix Personas Mayores
- Apartamentos en Phoenix Contratos de Corto Plazo
- Apartamentos en Phoenix Estudiante
- Apartamentos en Phoenix con Utilidades Incluidas
Por las Características
- Apartamentos en Phoenix con Pisos de Madera
- Apartamentos en Phoenix con Lavandería
- Apartamentos en Phoenix con Estacionamiento Disponible
- Apartamentos en Phoenix Se Permiten Mascotas
- Apartamentos en Phoenix con Piscina(s)
- Apartamentos en Phoenix con Lavadora y Secadora
- Apartamentos en Phoenix con Estaciones de Carga EV
