Photos












- 4Dorm., 2BACasa
- $2,220Precio
- 2,056Pies cuadrados
- Disponible AhoraDisponibilidad
Características y Facilidades
Características
- Aire acondicionado
- Chimenea
- Tocadores dobles
Cocina
- Despensa
- Electrodomésticos de acero inoxidable
Tasas y precio
Precio por Unidad
- $2,220
Acerca 272 Village Green Ave
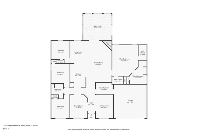
¿Desea hacer un recorrido por tu cuenta? Haz clic en el espectáculo de uno mismo en “” en este botón RentProgress home.com publicación o llama al (904) 900-2642 para registrarse para disfrutar de un recorrido autoguiado en un momento que funciona mejor para ti. Ubicado en Cunningham Creek en St. Johns County es este maravilloso 2.056 ft², cuatro habitaciones, dos baños, hogar con planos de planta de habitación dividida. Ocultos detrás de la entrada de ladrillos es una obra maestra. Comedores y sala de estar independiente agregan una gran cantidad de espacio para recibir a familiares y amigos. Contained en el amplio, de estilo galera, diseñado para cualquier chef, cocina comedor son soli-surface encimeras de granito, una gran cantidad de gabinetes y un paquete de electrodomésticos de acero inoxidable incluido un refrigerador de french-door con parte inferior de la caja congelador, cocina con la parte superior plana con horno autolimpiante, un microondas sobre la estufa, un lavaplatos. La cocina comedor tiene también una ventana convenientemente ubicadas, que ofrece una vista impactante de tu patio trasero y el lago. Una puerta corrediza de vidrio ubicado en la gran sala conduce al patio cubierto, lo que te permite disfrutar de la belleza de la madre naturaleza desde la comodidad de tu propia casa. El habitación principal cuenta con dos vestidores y un agradable baño principal. Bañera de jardín. Nota: Las comodidades pueden no ser exactas. Consulta a un curso Residential agente de arrendamiento para confirmar la propiedad se encargará de satisfacer tus necesidades individuales.
272 Village Green Ave se encuentra en el Barrio Greater St Augustine y el código postal 32259 de Jacksonville, FL.
Información de contacto de la propiedad
Términos de Arrendamiento
- Têrminos del Alquiler
Fees and Policies
Las tarifas que figuran a continuación se basan en datos facilitados por la comunidad y pueden excluir tasas y servicios adicionales.
Tasas Requeridas
Utilidades y servicios básicos
- utilitiesAdminFeeiCharged per unit$9.99/mes
- smartHomeFeeiCharged per unit$19.99/mes
Pet Policy and Fees
Dogs
- Fees Not Specified
Cats
- Fees Not Specified
Parking Info and Fees
- Garage Parking
Exención de responsabilidad sobre las tasas de propiedad: Based on community-supplied data and independent market research. Subject to change without notice. May exclude fees for mandatory or optional services and usage-based utilities.
Características y Facilidades
Servicios
- Instalaciones De Lavandería
- Con Jardín
Características Interior
- Chimenea
- Tocadores Dobles
- Aire Acondicionado
Características de la Cocina
- Despensa
- Electrodomésticos De Acero Inoxidable
Características de la Sala de Estar
- Suelos De Baldosas
- Cubiertas De Ventanas
- Suelos De Vinilo
Características al Aire Libre
- Patio
Características únicas
- Garaje

Mapa
- Compras
- Universidades
- Supermercado
- Médicos

Mapa
¿Qué son las clasificaciones Walk Score®, Transit Score® y Bike Score®?
- Walk Score® mide la viabilidad peatonal de cualquier dirección.
- Transit Score® mide el acceso a transporte público.
- Bike Score® mide la infraestructura de rutas para bicicletas de cualquier dirección.
Preguntas Frecuentes sobre 272 Village Green Ave
¿Qué tipo de alquileres hay disponibles en 272 Village Green Ave?
Actualmente hay un Casa de 4 Dormitorios 2 Baños en alquiler con 2,056 en 272 Village Green Ave. Está Disponible Ahora.
¿Cuánto cuesta el alquiler ent 272 Village Green Ave?
272 Village Green Ave se lista actualmente en $2,220.
¿En qué zona de la ciudad se encuentra 272 Village Green Ave?
Está localizado en el barrio Greater St Augustine, 272 Village Green Ave en el código postal 32259 de Jacksonville, FL.
Calificación Según Estilo de Vida:
Conocer más sobre la búsqueda de estilos de vidaEscuelas Cercanas
Switzerland Point Middle School
Bartram Trail High School
Cunningham Creek Elementary School
Sitios de Interés
Tiempo y distancia desde 272 Village Green Ave.
Grandes Superficies de Ventas
Publix
Walgreens
Aldi
Universidad
Tiendas
Publix
Aldi
Winn Dixie
Hospitales
Orange Park Medical Center
Naval Hospital Jacksonville
Bases Militares
Jacksonville Naval Air Station
Restaurantes
Centros Comerciales
272 Village Green Ave tiene 5 centros comerciales en un radio de 2.6 millas.
Barrios cercanos
Apartamentos Cercanos
Rango de Precios de los Alquileres en la Zona
| Dormitorios | Precio Promedio | Más barato | Más caro |
|---|---|---|---|
| Apartamentos Estudio en Jacksonville | $1,320 | $705 | $2,115 |
| Apartamentos 1 Dormitorios en Jacksonville | $1,439 | $500 | $2,860 |
| Apartamentos 2 Dormitorios en Jacksonville | $1,690 | $725 | $7,614 |
| Apartamentos 3 Dormitorios en Jacksonville | $1,954 | $1,000 | $8,936 |
| Apartamentos 4 Dormitorios en Jacksonville | $1,974 | $1,312 | $3,400 |
| Apartamentos 5 Dormitorios en Jacksonville | $2,619 | $2,399 | $2,772 |
Ver Apartamentos más destacados en Jacksonville
Por el Precio
- Apartamentos Barato en Jacksonville
- Apartamentos en Jacksonville menos de $600
- Apartamentos en Jacksonville menos de $700
- Apartamentos en Jacksonville menos de $800
- Apartamentos en Jacksonville menos de $900
- Apartamentos en Jacksonville menos de $1000
- Apartamentos en Jacksonville menos de $1200
- Apartamentos en Jacksonville menos de $1500
- Apartamentos en Jacksonville menos de $2000
- Apartamentos de Lujo en Jacksonville
Por tipo de comunidad
- Apartamentos en alquiler por el propietario en Jacksonville
- Apartamentos en Jacksonville con Oferta Especial
- Apartamentos en Jacksonville Más Valorados
- Apartamentos en Jacksonville Viviendas Corporativas
- Apartamentos en Jacksonville Amueblado
- Apartamentos en Jacksonville Reja de Entrada Automática
- Apartamentos en Jacksonville Loft
- Apartamentos en Jacksonville De Bajos Ingresos
- Apartamentos en Jacksonville Militar
- Nuevos Apartamentos en Jacksonville
- Apartamentos en Jacksonville Personas Mayores
- Apartamentos en Jacksonville Contratos de Corto Plazo
- Apartamentos en Jacksonville Estudiante
- Apartamentos en Jacksonville con Utilidades Incluidas
Por las Características
- Apartamentos en Jacksonville con Pisos de Madera
- Apartamentos en Jacksonville con Lavandería
- Apartamentos en Jacksonville con Estacionamiento Disponible
- Apartamentos en Jacksonville Se Permiten Mascotas
- Apartamentos en Jacksonville con Piscina(s)
- Apartamentos en Jacksonville con Lavadora y Secadora
- Apartamentos en Jacksonville con Estaciones de Carga EV
