Photos












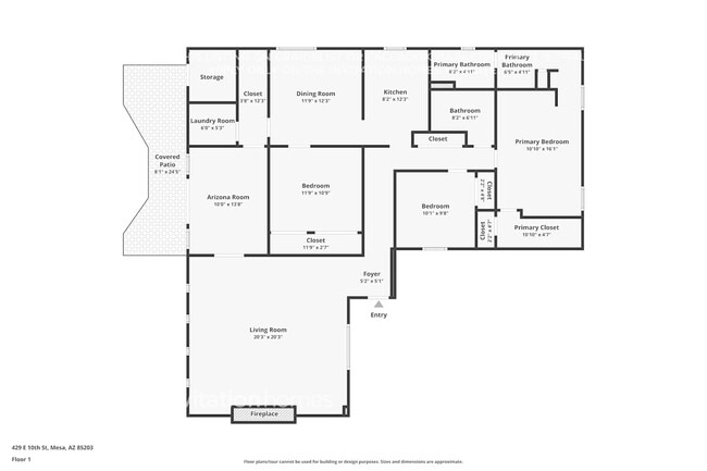
- 3Dorm., 2BACasa
- $2,145Más Cargos
- 1,700Pies cuadrados
- 01-28-2026Disponibilidad
Características y Facilidades
Características
- Chimenea
Tasas y precio
Precio por Unidad
- $2,145Más Cargos
Acerca 429 E 10th Dr
Lease this home and get more from Invitation Homes professional property management. This home comes fully loaded with quality amenities, must-have services, high-end tech and ProCare® professional maintenance. Your estimated total monthly payment is $2324.90. That covers your base rent, $2145.00 + our required services designed to make your life easier: Air Filter Delivery Fee ($9.95), Pool Maintenance Fee ($120), Smart Home with video doorbell ($40), and Utility Billing Service Fee ($9.95). Base rent varies based on selected lease term. Limited time offer: Receive $750 off your first full month’s base rent with a 24-month lease, or $500 off on leases shorter than 24 months, plus a $200 DoorDash gift card. This offer is valid on select homes with an approved application. Pricing and promotions are subject to change at any time at our sole discretion. For a detailed price breakdown, please refer to individual listings. Gift cards will be delivered via email within 30 days of move-in. Here's a home you can take pride in. Tailor the living space to support the things you value. This house will reflect you whether you’re a doting plant parent, a music lover, or a gamer with a work problem. Bring your unique flair to this living space that is designed with premium tile floors made ready to accommodate your lifestyle. Enjoy preparing meals in a finished kitchen. The granite countertops, stainless-steel appliances, and high-end cabinets give you a worry-free cooking space worthy of you. Enjoy this spacious backyard with exquisitely sculpted desert landscaping. Stretch out in the sun and soak up some vitamin D. When you've had enough of the heat, take a dip in the pool for some well-earned relaxation. Apply online today! At Invitation Homes, we offer pet-friendly, yard-having homes for lease with Smart Home technology in awesome neighborhoods across the country. Live in a great house without the headache and long-term commitment of owning. Discover your dream home with Invitation Homes. Our Lease Easy bundle – which includes Smart Home, Air Filter Delivery, and Utilities Management – is a key part of your worry-free leasing lifestyle. These services are required by your lease at an additional monthly cost. Monthly fees for pets and pools may also apply. Home Features and Amenities: Air Conditioning, Fenced Yard, Fireplace, Granite Countertops, Long Lease Terms, Patio, Pet Friendly, Pool, Recessed Lighting, Smart Home, Stainless Steel Appliances, Tile, W/D Hookups, and professionally managed by Invitation Homes. Invitation Homes is an equal housing lessor under the FHA. Applicable local, state and federal laws may apply. Additional terms and conditions apply. This listing is not an offer to rent. You must submit additional information including an application to rent and an application fee. All leasing information is believed to be accurate, but changes may have occurred since photographs were taken and square footage is estimated. Furthermore, prices and dates may change without notice. See InvitationHomes website for more information. Beware of scams: Employees of Invitation Homes will never ask you for your username and password. Invitation Homes does not advertise on Craigslist, Social Serve, etc. We own our homes; there are no private owners. All funds to lease with Invitation Homes are paid directly through our website, never through wire transfer or payment app like Zelle, Pay Pal, or Cash App. For more info, please submit an inquiry for this home. Applications are subject to our qualification requirements. Additional terms and conditions apply. CONSENT TO CALLS & TEXT MESSAGING: By entering your contact information, you expressly consent to receive emails, calls, and text messages from Invitation Homes including by autodialer, prerecorded or artificial voice and including marketing communications. Msg & Data rates may apply. You also agree to our Terms of Use and our Privacy Policy.
429 E 10th Dr se encuentra en el Barrio Central Mesa y el código postal 85204 de Mesa, AZ.
Información de contacto de la propiedad
Fees and Policies
Las tarifas que se indican a continuación son proporcionadas por la comunidad y pueden excluir servicios públicos o complementos. Todos los pagos se realizan directamente a la propiedad y no son reembolsables, salvo que se especifique lo contrario.
Tasas Requeridas
Utilidades y servicios básicos
- Utility Billing Service FeeiCharged per unit$9.95/mes
- Air Filter Delivery FeeiCharged per unit$9.95/mes
- Smart Home with video doorbelliCharged per unit$40/mes
- Pool Maintenance FeeiCharged per unit$120/mes
Exención de responsabilidad sobre las tasas de propiedad: Based on community-supplied data and independent market research. Subject to change without notice. May exclude fees for mandatory or optional services and usage-based utilities.
Características y Facilidades
Servicios
- Con Jardín
Características al Aire Libre
- Parcela Vallada
- Patio
Características Interior
- Chimenea

Mapa
- Compras
- Universidades
- Supermercado
- Médicos
- Transporte

Mapa
¿Qué son las clasificaciones Walk Score®, Transit Score® y Bike Score®?
- Walk Score® mide la viabilidad peatonal de cualquier dirección.
- Transit Score® mide el acceso a transporte público.
- Bike Score® mide la infraestructura de rutas para bicicletas de cualquier dirección.
Preguntas Frecuentes sobre 429 E 10th Dr
¿Qué tipo de alquileres hay disponibles en 429 E 10th Dr?
Actualmente hay un Casa de 3 Dormitorios 2 Baños en alquiler con 1,700 en 429 E 10th Dr. Está Disponible January 28, 2026.
¿Cuánto cuesta el alquiler ent 429 E 10th Dr?
429 E 10th Dr se lista actualmente en $2,145.
¿En qué zona de la ciudad se encuentra 429 E 10th Dr?
Está localizado en el barrio Central Mesa, 429 E 10th Dr en el código postal 85204 de Mesa, AZ.
Calificación Según Estilo de Vida:
Conocer más sobre la búsqueda de estilos de vidaEscuelas Cercanas
Mesa High School
Sitios de Interés
Tiempo y distancia desde 429 E 10th Dr.
Grandes Superficies de Ventas
Autozone
Walgreens
Michael's
Universidad
Tiendas
El Super
Winco Foods
Aldi
Hospitales
Banner Desert Medical Center
Oasis Behavioral Health Hospital
Arizona Spine And Joint Hospital
Restaurantes
Centros Comerciales
429 E 10th Dr tiene 5 centros comerciales en un radio de 0.6 millas.
Estaciones de Tránsito
Tempe Transportation Center-METRO Light Rail
Barrios cercanos
Apartamentos Cercanos
Rango de Precios de los Alquileres en la Zona
| Dormitorios | Precio Promedio | Más barato | Más caro |
|---|---|---|---|
| Apartamentos Estudio en Mesa | $1,283 | $750 | $3,086 |
| Apartamentos 1 Dormitorios en Mesa | $1,447 | $849 | $4,749 |
| Apartamentos 2 Dormitorios en Mesa | $1,696 | $895 | $5,109 |
| Apartamentos 3 Dormitorios en Mesa | $2,272 | $775 | $5,609 |
| Apartamentos 4 Dormitorios en Mesa | $1,985 | $695 | $6,403 |
Ver Apartamentos más destacados en Mesa
Por el Precio
Por tipo de comunidad
- Apartamentos en alquiler por el propietario en Mesa
- Apartamentos en Mesa con Oferta Especial
- Apartamentos en Mesa Más Valorados
- Apartamentos en Mesa Viviendas Corporativas
- Apartamentos en Mesa Amueblado
- Apartamentos en Mesa Reja de Entrada Automática
- Apartamentos en Mesa Loft
- Apartamentos en Mesa De Bajos Ingresos
- Nuevos Apartamentos en Mesa
- Apartamentos en Mesa Personas Mayores
- Apartamentos en Mesa Contratos de Corto Plazo
- Apartamentos en Mesa Estudiante
- Apartamentos en Mesa con Utilidades Incluidas
