Photos












- Estudio, 1BACasa
- $500Precios de alquiler
- 3,114Pies cuadrados
- Disponible AhoraDisponibilidad
Tasas y precio
Precio por Unidad
- $500
Acerca 4341 Park Heights Ave
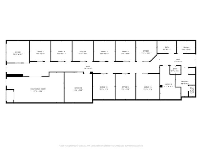
Rental Requirements: 3x the rental amount in NET INCOME Grow your business in your own private salon booth located at 4341 Park Heights Ave, Baltimore, MD. This professional salon offers a secure, clean, and welcoming environment perfect for stylists, barbers, braiders, lash techs, estheticians, and beauty entrepreneurs looking to elevate their business and serve clients in comfort. Each suite provides privacy and flexibility so you can personalize your workspace and create the experience you want for your clients. The salon includes convenient amenities such as an on-site washer and dryer, a client waiting area, and a private bathroom for both professionals and guests. Each booth comes with two washing stations inside the suite, making it fully functional for stylists and beauty professionals requiring water access. This convenient setup allows you to work efficiently without sharing or waiting for equipment. Located in a high-traffic, easily accessible area, the salon offers great exposure and a steady flow of potential new clients. With a variety of suite sizes and pricing options available, there's a space suitable for every stage of your business—from new independent stylists to established professionals ready for a larger workstation. Suite 1: 11×10 (110 sq ft) — $800/month Suite 2: 10×10 (100 sq ft) — $700/month Suite 3: 10×10 (100 sq ft) — $700/month Suite 4: 10×10 (100 sq ft) — $700/month Suite 5: 10×10 (100 sq ft) — $700/month Suite 6: 10×10 (100 sq ft) — $700/month Suite 7: 10×10 (100 sq ft) — $700/month Suite 8: 9×6 (54 sq ft) — $500/month Suite 9: 11×10 (110 sq ft) — $800/month Suite 10: 12×11 (132 sq ft) — $1100/month Suite 11: 12×10 (120 sq ft) — $900/month Suite 12: 12×11 (132 sq ft) — $1100/month Suite 13: 12×13 (156 sq ft) — $1300/month Commercial Suite: 24×13 (312 sq ft) — $1600/month
4341 Park Heights Ave se encuentra en el Barrio Greenspring y el código postal 21215 de Baltimore, MD.
Información de contacto de la propiedad
Fees and Policies
Las tarifas que se indican a continuación son proporcionadas por la comunidad y pueden excluir servicios públicos o complementos. Todos los pagos se realizan directamente a la propiedad y no son reembolsables, salvo que se especifique lo contrario.
Tasas Requeridas
Básicos de una sola vez
- A pagar en el momento de la mudanza
- Security Deposit - RefundableiCharged per unit$0
Exención de responsabilidad sobre las tasas de propiedad: Based on community-supplied data and independent market research. Subject to change without notice. May exclude fees for mandatory or optional services and usage-based utilities.
Características y Facilidades
Servicios
- Con Jardín

Mapa
- Compras
- Universidades
- Supermercado
- Médicos
- Parques
- Transporte

Mapa
¿Qué son las clasificaciones Walk Score®, Transit Score® y Bike Score®?
- Walk Score® mide la viabilidad peatonal de cualquier dirección.
- Transit Score® mide el acceso a transporte público.
- Bike Score® mide la infraestructura de rutas para bicicletas de cualquier dirección.
Preguntas Frecuentes sobre 4341 Park Heights Ave
¿Qué tipo de alquileres hay disponibles en 4341 Park Heights Ave?
Actualmente hay un Casa de Estudio 1 Baño en alquiler con 3,114 en 4341 Park Heights Ave. Está Disponible Ahora.
¿Cuánto cuesta el alquiler ent 4341 Park Heights Ave?
4341 Park Heights Ave se lista actualmente en $500.
¿En qué zona de la ciudad se encuentra 4341 Park Heights Ave?
Está localizado en el barrio Greenspring, 4341 Park Heights Ave en el código postal 21215 de Baltimore, MD.
Calificación Según Estilo de Vida:
Conocer más sobre la búsqueda de estilos de vidaEscuelas Cercanas
Park Heights Academy
Western High
Baltimore Polytechnic Institute
Sitios de Interés
Tiempo y distancia desde 4341 Park Heights Ave.
Arte, Museos y Monumentos
Grandes Superficies de Ventas
Aldi
Autozone
Walgreens
Universidad
Tiendas
Save-A-Lot
Aldi
Food City
Hospitales
Levindale Hebrew Geriatric Center And Hospital
Sinai Hospital Of Baltimore
Mount Washington Pediatric Hospital
Parques y opciones de recreación
4341 Park Heights Ave tiene 3 parques en un radio de 5.3 millas, incluyendo Howard Peter Rawlings Conservatory and Botanical Gardens, Maryland Zoo in Baltimore, y Federal Hill Park.
Restaurantes
Centros Comerciales
4341 Park Heights Ave tiene 5 centros comerciales en un radio de 1.6 millas.
Estaciones de Tránsito
Barrios cercanos
Apartamentos Cercanos
Rango de Precios de los Alquileres en la Zona
| Dormitorios | Precio Promedio | Más barato | Más caro |
|---|---|---|---|
| Apartamentos Estudio en Baltimore | $1,499 | $600 | $6,000 |
| Apartamentos 1 Dormitorios en Baltimore | $1,648 | $533 | $10,000+ |
| Apartamentos 2 Dormitorios en Baltimore | $1,865 | $900 | $8,918 |
| Apartamentos 3 Dormitorios en Baltimore | $2,266 | $884 | $6,644 |
| Apartamentos 4 Dormitorios en Baltimore | $2,510 | $700 | $4,375 |
| Apartamentos 5 Dormitorios en Baltimore | $1,790 | $1,790 | $1,790 |
| Apartamentos 6 Dormitorios en Baltimore | $4,250 | $4,250 | $4,250 |
Ver Apartamentos más destacados en Baltimore
Por el Precio
- Apartamentos Barato en Baltimore
- Apartamentos en Baltimore menos de $600
- Apartamentos en Baltimore menos de $700
- Apartamentos en Baltimore menos de $800
- Apartamentos en Baltimore menos de $900
- Apartamentos en Baltimore menos de $1000
- Apartamentos en Baltimore menos de $1200
- Apartamentos en Baltimore menos de $1500
- Apartamentos en Baltimore menos de $2000
- Apartamentos de Lujo en Baltimore
Por tipo de comunidad
- Apartamentos en alquiler por el propietario en Baltimore
- Apartamentos en Baltimore con Oferta Especial
- Apartamentos en Baltimore Más Valorados
- Apartamentos en Baltimore Viviendas Corporativas
- Apartamentos en Baltimore Amueblado
- Apartamentos en Baltimore Reja de Entrada Automática
- Apartamentos en Baltimore Loft
- Apartamentos en Baltimore De Bajos Ingresos
- Apartamentos en Baltimore Militar
- Nuevos Apartamentos en Baltimore
- Apartamentos en Baltimore Personas Mayores
- Apartamentos en Baltimore Contratos de Corto Plazo
- Apartamentos en Baltimore Estudiante
- Apartamentos en Baltimore con Utilidades Incluidas
Por las Características
- Apartamentos en Baltimore con Pisos de Madera
- Apartamentos en Baltimore con Lavandería
- Apartamentos en Baltimore con Estacionamiento Disponible
- Apartamentos en Baltimore Se Permiten Mascotas
- Apartamentos en Baltimore con Piscina(s)
- Apartamentos en Baltimore con Lavadora y Secadora
- Apartamentos en Baltimore con Estaciones de Carga EV
