Photos












- 3Dorm., 2.5BACasa
- $2,120Más Cargos
- 1,584Pies cuadrados
- Disponible AhoraDisponibilidad
Tasas y precio
Precio por Unidad
- $2,120Más Cargos
Acerca 5512 Beresford St
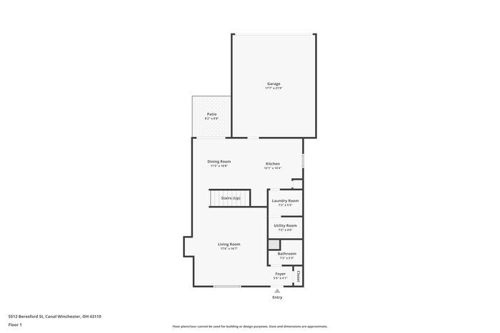
MOVE-IN READY This home is move-in ready. Schedule your tour now or start your application today. Monthly Recurring Fees: $25.00 - Smart Home $10.95 - Utility Management Located in Canal Winchester, just 25 minutes from downtown Columbus and minutes from the conveniences along Gender Rd, this 3-bedroom, 2.5-bath home offers a generous 1,584 square feet of inviting space. Its covered front porch sets a welcoming tone, drawing you inside to an interior enhanced by durable LVP flooring and neutral tones that complement a wide range of décor styles. A smart lock and smart thermostat add everyday ease from the moment you arrive. The first floor showcases an open layout where the living area flows naturally into the dining space and kitchen. Large windows allow the main level to fill with natural light, while the living area includes a designated niche above the built-in feature, ideal for display or entertainment setup. The kitchen provides ample counter space, stainless steel appliances, and abundant cabinetry, creating a highly usable layout for daily routines. Nearby, a convenient laundry room and half bath complete the first-floor amenities, with direct access to both the rear patio and the attached two-car garage. Upstairs, the layout continues to impress with a spacious main bedroom featuring vaulted ceilings and dual walk-in closets. The attached bath includes double sinks and a walk-in shower, offering comfort and privacy. Two additional bedrooms each include walk-in closets of their own and easy access to a full hallway bath, giving the second floor a well-organized and functional flow. Outdoors, the rear patio offers a practical extension of the home's living area, perfect for morning coffee or a simple outdoor setup. With proximity to Canal Winchester’s historic district, local parks, and quick routes into Columbus, the location brings both convenience and charm. Don’t miss the opportunity to make this home yours. Apply now! *Maymont Homes provides residents with convenient solutions, including simplified utility billing and flexible rent payment options. Contact us for more details. This information is deemed reliable, but not guaranteed. All measurements are approximate. Actual product and home specifications may vary in dimension or detail. Images are for representational purposes only. Some programs and services may not be available in all market areas. Prices and availability are subject to change without notice. Advertised rent prices do not include the required application fee, the partially refundable reservation fee (due upon application approval), or the mandatory monthly utility management fee (in select market areas.) Residents must maintain renters insurance as specified in their lease. If third-party renters insurance is not provided, residents will be automatically enrolled in our Master Insurance Policy for a fee. Select homes may be located in communities that require a monthly fee for community-specific amenities or services. For complete details, please contact a company leasing representative. Equal Housing Opportunity. This property is subject to homeowners' association (HOA) governance; restrictions and covenants may apply. Estimated availability date is subject to change based on construction timelines and move-out confirmation. This property allows self guided viewing without an appointment. Contact for details.
5512 Beresford St se encuentra en el Barrio Shannon Green y el código postal 43110 de Canal Winchester, OH.
Información de contacto de la propiedad
Términos de Arrendamiento
- Têrminos del Alquiler
Fees and Policies
Las tarifas que se indican a continuación son proporcionadas por la comunidad y pueden excluir servicios públicos o complementos. Todos los pagos se realizan directamente a la propiedad y no son reembolsables, salvo que se especifique lo contrario.
Other Fees
Tasas situacionales
- Non Refundable Pet DepositiTotal nonrefundable pet deposit ranges from 250 to 450 dollars depending on number of pets. 250 for the first pet plus 100 for each additional pet, up to a maximum of three pets. This fee ranges from 250.0 to 450.0. Charged Per Unit$250
Complementos personales
- Application FeeiAmount per applicant (18+ years). Charged per unit$55
- Holding DepositiReserves your home for up to 14 days while you finalize your move. The $550 Reservation Binder applies $400 toward your first month’s rent. For Section 8 homes, the fee is $150 with no rent credit. Charged per unit$550
- Security DepositiCharged per unit$2120
- Utilities Setup FeeiCharged per unit$25
- Utilities Monthly FeeiCharged per unit$10.95
- Smart Home FeeiCharged per unit$25
- Pet Screening FeeiCharged per unit$25
Tasas por mascotas
- Pet RentiCharged per Pet$35/mes
- Pet RentiCharged per Pet$35/mes
Dog
Cat
Exención de responsabilidad sobre las tasas de propiedad: Based on community-supplied data and independent market research. Subject to change without notice. May exclude fees for mandatory or optional services and usage-based utilities.
Características y Facilidades
Servicios
- Con Jardín

Mapa
- Compras
- Universidades
- Supermercado
- Médicos
- Parques

Mapa
¿Qué son las clasificaciones Walk Score®, Transit Score® y Bike Score®?
- Walk Score® mide la viabilidad peatonal de cualquier dirección.
- Transit Score® mide el acceso a transporte público.
- Bike Score® mide la infraestructura de rutas para bicicletas de cualquier dirección.
Preguntas Frecuentes sobre 5512 Beresford St
¿Qué tipo de alquileres hay disponibles en 5512 Beresford St?
Actualmente hay un Casa de 3 Dormitorios 2 Baños en alquiler con 1,584 en 5512 Beresford St. Está Disponible Ahora.
¿Cuánto cuesta el alquiler ent 5512 Beresford St?
5512 Beresford St se lista actualmente en $2,120.
¿En qué zona de la ciudad se encuentra 5512 Beresford St?
Está localizado en el barrio Shannon Green, 5512 Beresford St en el código postal 43110 de Canal Winchester, OH.
Escuelas Cercanas
Yorktown Middle School
Liberty Elementary School
Independence High School
Sitios de Interés
Tiempo y distancia desde 5512 Beresford St.
Arte, Museos y Monumentos
Grandes Superficies de Ventas
Lowe's
Walgreens
Aldi
Universidad
Tiendas
Aldi
Kroger
Hospitales
Diley Ridge Medical Center
Nationwide Children's Hospital
Grant Medical Center
Bases Militares
Parques y opciones de recreación
5512 Beresford St tiene 5 parques en un radio de 8.9 millas, incluyendo Franklin Park Conservatory, Scioto Mile, Topiary Park, The House of Nightmares, y Bicentennial/ Galbreath Park.
Restaurantes
Centros Comerciales
5512 Beresford St tiene 5 centros comerciales en un radio de 1.6 millas.
Barrios cercanos
Apartamentos Cercanos
Rango de Precios de los Alquileres en la Zona
| Dormitorios | Precio Promedio | Más barato | Más caro |
|---|---|---|---|
| Apartamentos 1 Dormitorios en Canal Winchester | $1,245 | $900 | $2,018 |
| Apartamentos 2 Dormitorios en Canal Winchester | $1,510 | $755 | $3,445 |
| Apartamentos 3 Dormitorios en Canal Winchester | $1,842 | $874 | $2,692 |
| Apartamentos 4 Dormitorios en Canal Winchester | $1,128 | $970 | $1,286 |
Ver Apartamentos más destacados en Canal Winchester
Por el Precio
Por tipo de comunidad
- Apartamentos en Canal Winchester con Oferta Especial
- Apartamentos en Canal Winchester Más Valorados
- Apartamentos en Canal Winchester Viviendas Corporativas
- Apartamentos en Canal Winchester Amueblado
- Apartamentos en Canal Winchester Reja de Entrada Automática
- Apartamentos en Canal Winchester Loft
- Apartamentos en Canal Winchester De Bajos Ingresos
- Nuevos Apartamentos en Canal Winchester
- Apartamentos en Canal Winchester Personas Mayores
- Apartamentos en Canal Winchester Contratos de Corto Plazo
- Apartamentos en Canal Winchester con Utilidades Incluidas
Por las Características
- Apartamentos en Canal Winchester con Pisos de Madera
- Apartamentos en Canal Winchester con Lavandería
- Apartamentos en Canal Winchester Se Permiten Mascotas
- Apartamentos en Canal Winchester con Piscina(s)
- Apartamentos en Canal Winchester con Lavadora y Secadora
- Apartamentos en Canal Winchester con Estaciones de Carga EV
