Photos












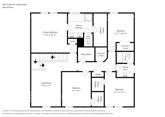
- 4Dorm., 2.5BACasa
- $2,075Precio
- 2,358Pies cuadrados
- Disponible ProntoDisponibilidad
Tasas y precio
Precio por Unidad
- $2,075
Acerca 7533 Chervil St
Lease this home and get more from Invitation Homes professional property management. This home comes fully loaded with quality amenities, must-have services, high-end tech and ProCare® professional maintenance. Your estimated total monthly payment is $2134.90. That covers your base rent, $2075.00 + our required services designed to make your life easier: Air Filter Delivery Fee ($9.95), Smart Home with video doorbell ($40), and Utility Billing Service Fee ($9.95). Base rent varies based on selected lease term. Apply for select homes by 1/28 to get your first full month of base rent free. For a detailed price breakdown, please refer to each listing. Limited time offer subject to change or cancellation and application approval. This home is part of Highland Chase, a thoughtfully planned community. Learn More about what Highland Chase has to offer. Highland Chase offers 3 to 5-bedroom rental homes in Jacksonville, FL, designed with modern comfort and convenience in mind. Each home provides ample living space and thoughtful features. The community boasts a refreshing pool and scenic green spaces, offering a peaceful retreat while still being close to local amenities and attractions. At Invitation Homes, we offer pet-friendly, yard-having homes for lease with Smart Home technology in awesome neighborhoods across the country. Live in a great house without the headache and long-term commitment of owning. Discover your dream home with Invitation Homes. Our Lease Easy bundle – which includes Smart Home, Air Filter Delivery, and Utilities Management – is a key part of your worry-free leasing lifestyle. These services are required by your lease at an additional monthly cost. Monthly fees for pets and pools may also apply. Home Features and Amenities: Air Conditioning, Covered Porch, Garage, Kitchen Island, Long Lease Terms, Luxury Vinyl Plank, Pet Friendly, Recessed Lighting, Smart Home, Stainless Steel Appliances, Tile, W/D Hookups, and professionally managed by Invitation Homes. Neighborhood Features and Amenities: Community Pool, Park, Playground This Invitation Home is currently being renovated, but it will be available soon. You can still apply – contact us for more details or apply now. Invitation Homes is an equal housing lessor under the FHA. Applicable local, state and federal laws may apply. Additional terms and conditions apply. This listing is not an offer to rent. You must submit additional information including an application to rent and an application fee. All leasing information is believed to be accurate, but changes may have occurred since photographs were taken and square footage is estimated. See InvitationHomes website for more information. Beware of scams: Employees of Invitation Homes will never ask you for your username and password. Invitation Homes does not advertise on Craigslist, Social Serve, etc. We own our homes; there are no private owners. All funds to lease with Invitation Homes are paid directly through our website, never through wire transfer or payment app like Zelle, Pay Pal, or Cash App. For more info, please submit an inquiry for this home. Applications are subject to our qualification requirements. Additional terms and conditions apply. CONSENT TO CALLS & TEXT MESSAGING: By entering your contact information, you expressly consent to receive emails, calls, and text messages from Invitation Homes including by autodialer, prerecorded or artificial voice and including marketing communications. Msg & Data rates may apply. You also agree to our Terms of Use and our Privacy Policy.
7533 Chervil St se encuentra en el Barrio Outer West Side y el código postal 32219 de Jacksonville, FL.
Información de contacto de la propiedad
Términos de Arrendamiento
- Têrminos del Alquiler
Fees and Policies
Las tarifas que figuran a continuación se basan en datos facilitados por la comunidad y pueden excluir tasas y servicios adicionales.
Tasas Requeridas
Utilidades y servicios básicos
- Utility Billing Service FeeiCharged per unit$9.95/mes
- Air Filter Delivery FeeiCharged per unit$9.95/mes
- Smart Home with video doorbelliCharged per unit$40/mes
Pet Policy and Fees
Cats
- Fees Not Specified
Dogs
- Fees Not Specified
Parking Info and Fees
- Garage Parking
Exención de responsabilidad sobre las tasas de propiedad: Based on community-supplied data and independent market research. Subject to change without notice. May exclude fees for mandatory or optional services and usage-based utilities.
Características y Facilidades
Servicios
- Con Jardín
Recreación
- Parque Infantil
Características al Aire Libre
- Porche
Características únicas
- Garaje

Mapa
- Compras
- Universidades
- Supermercado
- Médicos
- Parques
- Transporte

Mapa
¿Qué son las clasificaciones Walk Score®, Transit Score® y Bike Score®?
- Walk Score® mide la viabilidad peatonal de cualquier dirección.
- Transit Score® mide el acceso a transporte público.
- Bike Score® mide la infraestructura de rutas para bicicletas de cualquier dirección.
Preguntas Frecuentes sobre 7533 Chervil St
¿Qué tipo de alquileres hay disponibles en 7533 Chervil St?
Actualmente hay un Casa de 4 Dormitorios 2 Baños en alquiler con 2,358 en 7533 Chervil St. Está Disponible pronto .
¿Cuánto cuesta el alquiler ent 7533 Chervil St?
7533 Chervil St se lista actualmente en $2,075.
¿En qué zona de la ciudad se encuentra 7533 Chervil St?
Está localizado en el barrio Outer West Side, 7533 Chervil St en el código postal 32219 de Jacksonville, FL.
Calificación Según Estilo de Vida:
Conocer más sobre la búsqueda de estilos de vidaEscuelas Cercanas
Dinsmore Elementary School
Highlands Middle School
Jean Ribault High School
Sitios de Interés
Tiempo y distancia desde 7533 Chervil St.
Arte, Museos y Monumentos
Grandes Superficies de Ventas
Autozone
Walgreens
Walgreen's
Universidad
Tiendas
Winn Dixie
Hospitales
Ascension St. Vincent's Riverside
Uf Health Shands Hospital Jacksonville
Baptist Health Medical Center - Jacksonville
Parques y opciones de recreación
7533 Chervil St tiene 1 parque en un radio de 6.8 millas, incluyendo Bethesda Park.
Restaurantes
Centros Comerciales
7533 Chervil St tiene 5 centros comerciales en un radio de 6.5 millas.
Estaciones de Tránsito
Barrios cercanos
Apartamentos Cercanos
Rango de Precios de los Alquileres en la Zona
| Dormitorios | Precio Promedio | Más barato | Más caro |
|---|---|---|---|
| Apartamentos Estudio en Jacksonville | $1,326 | $715 | $2,115 |
| Apartamentos 1 Dormitorios en Jacksonville | $1,437 | $500 | $2,860 |
| Apartamentos 2 Dormitorios en Jacksonville | $1,692 | $725 | $7,585 |
| Apartamentos 3 Dormitorios en Jacksonville | $1,955 | $1,000 | $9,366 |
| Apartamentos 4 Dormitorios en Jacksonville | $1,982 | $1,312 | $2,679 |
| Apartamentos 5 Dormitorios en Jacksonville | $2,642 | $2,399 | $2,772 |
Ver Apartamentos más destacados en Jacksonville
Por el Precio
- Apartamentos Barato en Jacksonville
- Apartamentos en Jacksonville menos de $600
- Apartamentos en Jacksonville menos de $700
- Apartamentos en Jacksonville menos de $800
- Apartamentos en Jacksonville menos de $900
- Apartamentos en Jacksonville menos de $1000
- Apartamentos en Jacksonville menos de $1200
- Apartamentos en Jacksonville menos de $1500
- Apartamentos en Jacksonville menos de $2000
- Apartamentos de Lujo en Jacksonville
Por tipo de comunidad
- Apartamentos en alquiler por el propietario en Jacksonville
- Apartamentos en Jacksonville con Oferta Especial
- Apartamentos en Jacksonville Más Valorados
- Apartamentos en Jacksonville Viviendas Corporativas
- Apartamentos en Jacksonville Amueblado
- Apartamentos en Jacksonville Reja de Entrada Automática
- Apartamentos en Jacksonville Loft
- Apartamentos en Jacksonville De Bajos Ingresos
- Apartamentos en Jacksonville Militar
- Nuevos Apartamentos en Jacksonville
- Apartamentos en Jacksonville Personas Mayores
- Apartamentos en Jacksonville Contratos de Corto Plazo
- Apartamentos en Jacksonville Estudiante
- Apartamentos en Jacksonville con Utilidades Incluidas
Por las Características
- Apartamentos en Jacksonville con Pisos de Madera
- Apartamentos en Jacksonville con Lavandería
- Apartamentos en Jacksonville con Estacionamiento Disponible
- Apartamentos en Jacksonville Se Permiten Mascotas
- Apartamentos en Jacksonville con Piscina(s)
- Apartamentos en Jacksonville con Lavadora y Secadora
- Apartamentos en Jacksonville con Estaciones de Carga EV
