Photos












- 2Dorm., 1BACasa
- $2,900Precio
- 800Pies cuadrados
- Disponible AhoraDisponibilidad
Detalles y características de la Unidad
Características
- Aire acondicionado
- Bañera/ducha
- Calefacción
- Espacio de almacenamiento
- Lavadora/secadora
- Libre de Humo
- Sistema de seguridad
- Ventiladores de techo
Cocina
- Zona de eliminación de desechos
Tasas y precio de la unidad
Precio por Unidad
- $2,900
Depósito
- $2,900 deposit
Programar una Visita
Acerca 2824 8th Ave
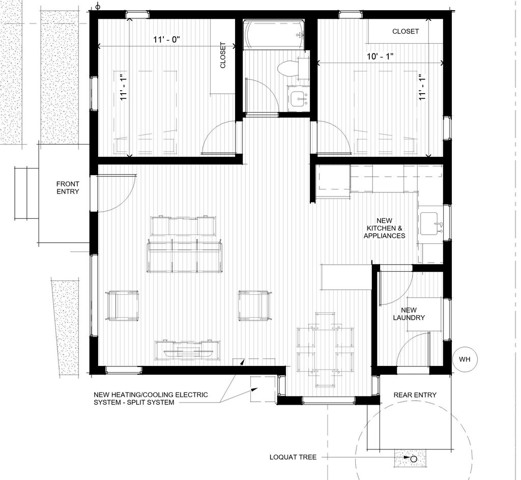
Este es un complejo recientemente renovado (2020) 800 ft², de 2 habitaciones/1 baño hogar disponibles para alquiler. La dirección es de 2824 8th Avenue, 90018. Estacionamiento para un auto y se proporcionan de lavandería, y está en un amplio lote con gran cantidad de espacio abierto. Estacionamiento en la calle es muy fácil de encontrar así. Aire acondicionado y calefacción centralizados son nuevos (2020), junto con un triturador de basura y electrodomésticos. Será sin amueblar. Todo el estacionamiento está cercada con una puerta de entrada para automóviles eléctricos. Este hogar es parte de un three-unidad separados propiedad en Jefferson Park. Los propietarios viven en el frente de la casa, el medio casa es una pequeña apartamentos tipo estudio, y de la parte trasera de la casa es para alquiler. Hay un perro que vive en la propiedad: al aire libre durante parte del día y muy amable. Mensaje para obtener más información o para programar un recorrido. Está listo para la mudanza en early-January. Estamos que buscan un contrato de arrendamiento de 12 meses (pero negociables) con un depósito de seguridad junto con el alquiler. Revisión de antecedentes/crédito obligatorio junto con un cuestionario si está interesado suficiente para de raza. ¡Gracias! Recorrido en video: https://youtu.be/BRQZZpcf7q4
2824 8th Ave se encuentra en el Barrio West Adams y el código postal 90018 de Los Angeles, CA.
Información de contacto de la propiedad
Términos de Arrendamiento
- Têrminos del Alquiler
Fees and Policies
Pet Policy and Fees
Dogs
- Fees Not Specified
Parking Info and Fees
- Surface Lot
Exención de responsabilidad sobre las tasas de propiedad: Based on community-supplied data and independent market research. Subject to change without notice. May exclude fees for mandatory or optional services and usage-based utilities.
Características y Facilidades
Servicios
- Con Jardín
Características al Aire Libre
- Parcela Vallada
- Acceso Controlado
Características Interior
- Espacio De Almacenamiento
- Sistema De Seguridad
- Calefacción
- Ventiladores De Techo
- Bañera/Ducha
- Lavadora/Secadora
- Aire Acondicionado
- Libre De Humo
Características de la Cocina
- Zona De Eliminación De Desechos

Mapa
- Compras
- Universidades
- Supermercado
- Médicos
- Parques
- Transporte

Mapa
¿Qué son las clasificaciones Walk Score®, Transit Score® y Bike Score®?
- Walk Score® mide la viabilidad peatonal de cualquier dirección.
- Transit Score® mide el acceso a transporte público.
- Bike Score® mide la infraestructura de rutas para bicicletas de cualquier dirección.
Preguntas Frecuentes sobre 2824 8th Ave
¿Qué tipo de alquileres hay disponibles en 2824 8th Ave?
Actualmente hay un Casa de 2 Dormitorios 1 Baño en alquiler con 800 en 2824 8th Ave. Está Disponible Ahora.
¿Cuánto cuesta el alquiler ent 2824 8th Ave?
2824 8th Ave se lista actualmente en $2,900.
¿En qué zona de la ciudad se encuentra 2824 8th Ave?
Está localizado en el barrio West Adams, 2824 8th Ave en el código postal 90018 de Los Angeles, CA.
Calificación Según Estilo de Vida:
Conocer más sobre la búsqueda de estilos de vidaEscuelas Cercanas
Susan Miller Dorsey Senior High
Sixth Avenue Elementary
Sitios de Interés
Tiempo y distancia desde 2824 8th Ave.
Arte, Museos y Monumentos
Grandes Superficies de Ventas
Walgreens
Autozone
Target
Universidad
Tiendas
Ralphs
Smart & Final
Assi Plaza
Hospitales
Olympia Medical Center
Docs Surgical Hospital
Kaiser Foundation Hospital - West La
Bases Militares
Los Angeles Air Force Base
National Guard Armory South Bay Cities
Parques y opciones de recreación
2824 8th Ave tiene 5 parques en un radio de 6.3 millas, incluyendo La Brea Tarpits, Exposition Rose Garden, Beverly Gardens Park, Barnsdall Art Park, y Bronson Canyon.
Restaurantes
Centros Comerciales
2824 8th Ave tiene 5 centros comerciales en un radio de 0.6 millas.
Estaciones de Tránsito
Barrios cercanos
Apartamentos Cercanos
Rango de Precios de los Alquileres en la Zona
| Dormitorios | Precio Promedio | Más barato | Más caro |
|---|---|---|---|
| Apartamentos Estudio en Los Angeles | $2,132 | $695 | $10,000+ |
| Apartamentos 1 Dormitorios en Los Angeles | $2,721 | $600 | $10,000+ |
| Apartamentos 2 Dormitorios en Los Angeles | $3,550 | $899 | $10,000+ |
| Apartamentos 3 Dormitorios en Los Angeles | $4,971 | $700 | $10,000+ |
| Apartamentos 4 Dormitorios en Los Angeles | $4,014 | $1,040 | $10,000+ |
| Apartamentos 5 Dormitorios en Los Angeles | $4,956 | $999 | $10,000+ |
| Apartamentos 6 Dormitorios en Los Angeles | $5,920 | $2,500 | $8,100 |
| Apartamentos 7 Dormitorios en Los Angeles | $1,217 | $1,085 | $1,356 |
Ver Apartamentos más destacados en Los Angeles
Por el Precio
- Apartamentos Barato en Los Angeles
- Apartamentos en Los Angeles menos de $700
- Apartamentos en Los Angeles menos de $800
- Apartamentos en Los Angeles menos de $900
- Apartamentos en Los Angeles menos de $1000
- Apartamentos en Los Angeles menos de $1200
- Apartamentos en Los Angeles menos de $1500
- Apartamentos en Los Angeles menos de $2000
- Apartamentos de Lujo en Los Angeles
Por tipo de comunidad
- Apartamentos en alquiler por el propietario en Los Angeles
- Apartamentos en Los Angeles con Oferta Especial
- Apartamentos en Los Angeles Más Valorados
- Apartamentos en Los Angeles Viviendas Corporativas
- Apartamentos en Los Angeles Amueblado
- Apartamentos en Los Angeles Reja de Entrada Automática
- Apartamentos en Los Angeles Loft
- Apartamentos en Los Angeles De Bajos Ingresos
- Apartamentos en Los Angeles Militar
- Nuevos Apartamentos en Los Angeles
- Apartamentos en Los Angeles Personas Mayores
- Apartamentos en Los Angeles Contratos de Corto Plazo
- Apartamentos en Los Angeles Estudiante
- Apartamentos en Los Angeles con Utilidades Incluidas
Por las Características
- Apartamentos en Los Angeles con Pisos de Madera
- Apartamentos en Los Angeles con Lavandería
- Apartamentos en Los Angeles con Estacionamiento Disponible
- Apartamentos en Los Angeles Se Permiten Mascotas
- Apartamentos en Los Angeles con Piscina(s)
- Apartamentos en Los Angeles con Lavadora y Secadora
- Apartamentos en Los Angeles con Estaciones de Carga EV
