Photos



























- 3BR, 3.5BATownhome
- $2,800Pricing
- 1,450Square Feet
- Available NowAvailability
Unit Rent and Fees
Unit Price
- $2,800
About 2206 Cambridge St
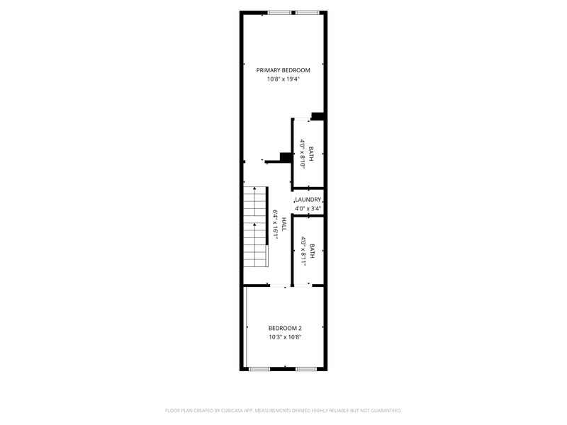
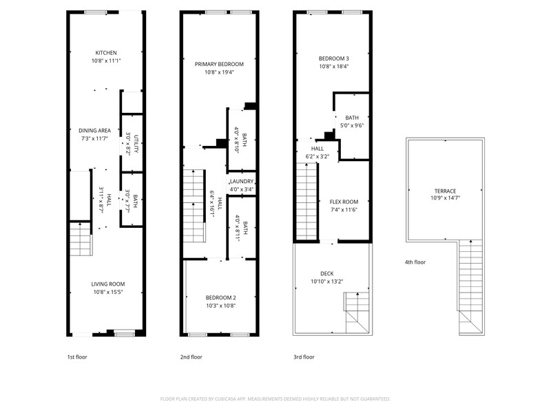
Rental Requirements: 3x the rental amount in NET INCOME Credit Score; 600 or higher. Welcome to 2206 Cambridge Street, a beautifully appointed 3-bedroom, 3.5-bathroom row home offering 1,342 square feet of comfortable living space in the heart of Baltimore City. This well-designed home features central A/C and an open, functional layout that's ideal for both everyday living and entertaining. Natural light fills the space, creating a warm and inviting atmosphere throughout. The modern kitchen is equipped with a full appliance package including a stove, refrigerator, microwave, and dishwasher, making meal prep a breeze. Each bedroom is generously sized, and the 3.5 bathrooms provide convenience and privacy for residents and guests alike. A washer and dryer are included in the home, adding to the ease of daily living. One of the standout features of this property is the spacious two-level deck, offering stunning city views and the perfect setting for relaxing, entertaining, or enjoying outdoor dining. Conveniently located near shops, dining, and major commuter routes, this home combines comfort, functionality, and city living at its best. This is a fantastic opportunity to rent a thoughtfully designed home in a desirable Baltimore location. PLEASE BEWARE OF LEASING FRAUD! IF SOMEONE OTHER THAN AN OFFICIAL SMD LEASING AGENT ATTEMPTS TO RENT YOU A HOME THAT IS PROFESSIONALLY MANAGED BY SMD, PLEASE REACH OUT TO ALL SHOWINGS ARE OPEN HOUSE All SMD Management residents are enrolled in the Resident Benefits Package (RBP) for an additional monthly fee which includes renters insurance, HVAC air filter delivery (for applicable properties), credit building to help boost your credit score with timely rent payments, $1M Identity Protection, move-in concierge service making utility connection and home service setup a breeze during your move-in, our best-in-class resident rewards program, and much more! More details upon application. For more information on this property and for a full list of all our available rentals please visit our website at
2206 Cambridge St is located in the Canton Square Neighborhood and 21231 Zip code of Baltimore, MD.
Property Contact Info
Fees and Policies
The fees listed below are community-provided and may exclude utilities or add-ons. All payments are made directly to the property and are non-refundable unless otherwise specified.
Required Fees
One-Time Basics
- Due at Move-In
- Security Deposit - RefundableiCharged Per Unit.$0
Property Fee Disclaimer: Based on community-supplied data and independent market research. Subject to change without notice. May exclude fees for mandatory or optional services and usage-based utilities.

Map
- Shopping
- Colleges
- Grocery
- Medical
- Parks
- Transportation

Map
Frequently Asked Questions about 2206 Cambridge St
What type of rental is available at 2206 Cambridge St?
There is currently a 3 Bed 3 Bath Townhome for rent with 1,450 sq ft listed at 2206 Cambridge St. It is Available Now.
How much is the rent at 2206 Cambridge St?
The rental at 2206 Cambridge St is currently listed at $2,800.
What area of town is 2206 Cambridge St located in?
Located in the Canton Square Neighborhood, 2206 Cambridge St is in the 21231 Zip Code of Baltimore, MD.
Nearby Schools
Paul Laurence Dunbar High
About GreatSchools Data on ApartmentHomeLiving.com.
Points of Interest
Time and distance from 2206 Cambridge St.
Arts Museums and Landmarks
Big Box and Retail
Safeway
Target
Walgreens
Colleges and Universities
Johns Hopkins Medicine - East Baltimore Medical Campus
University of Maryland-Baltimore - Baltimore Campus
Groceries
Safeway
Harris Teeter
Shoppers Food & Pharmacy
Hospitals
Parks and Recreation
Howard Peter Rawlings Conservatory and Botanical Gardens
2206 Cambridge St has 3 parks within 3.7 miles, including Federal Hill Park, Maryland Zoo in Baltimore, and Howard Peter Rawlings Conservatory and Botanical Gardens.
Restaurants and Dining
Shopping Centers
2206 Cambridge St has 5 shopping centers within 1.1 miles.
Transit Stations
Nearby Neighborhoods
Nearby Apartments
Rental Price Ranges in the Area
| Bedroom | Average Rent | Cheapest Rent | Highest Rent |
|---|---|---|---|
| Baltimore Studio Apartments | $1,536 | $600 | $6,000 |
| Baltimore 1 Bedroom Apartments | $1,704 | $500 | $5,546 |
| Baltimore 2 Bedroom Apartments | $1,936 | $900 | $10,000+ |
| Baltimore 3 Bedroom Apartments | $2,348 | $884 | $5,700 |
| Baltimore 4 Bedroom Apartments | $2,830 | $700 | $7,500 |
| Baltimore 5 Bedroom Apartments | $1,890 | $1,890 | $1,890 |
| Baltimore 6 Bedroom Apartments | $4,250 | $4,250 | $4,250 |
Browse Top Apartments in Baltimore
By Price
- Cheap Baltimore Apartments
- Baltimore Apartments Under $600
- Baltimore Apartments Under $700
- Baltimore Apartments Under $800
- Baltimore Apartments Under $900
- Baltimore Apartments Under $1000
- Baltimore Apartments Under $1200
- Baltimore Apartments Under $1500
- Baltimore Apartments Under $2000
- Baltimore Luxury Apartments
By Community Type
- Baltimore Apartments for Rent by Owner
- Baltimore Apartments with Rent Specials
- Baltimore Top Rated Apartments
- Baltimore Corporate Apartments
- Baltimore Furnished Apartments
- Baltimore Gated Apartments
- Baltimore Loft Apartments
- Baltimore Low Income Apartments
- Baltimore Military Apartments
- New Baltimore Apartments
- Baltimore Senior Apartments
- Baltimore Short-term Apartments
- Baltimore Student Apartments
- Baltimore Apartments with Utilities Included
