Photos


















- Residencia Estudiantil
- 1–5 Dormitorios
- $479-$2,076 Precios de alquiler
- 612–1,818 Pies cuadrados
Acerca The Social West Ames®
The Social West Ames está ubicado justo al oeste del campus de la Universidad del Estado de Iowa, lo que te brinda la oportunidad de caminar, andar en bicicleta o usar el CyRide hasta el campus con facilidad. El complejo también está cerca de numerosas y emocionantes atracciones cercanas, como West Towne Pub, Kingpin Pizza, Café Milo, North Grand Mall, cines Cinemark 12, y Perfect Games. Nuestros apartamentos y casas adosadas de una, dos, tres, cuatro y cinco habitaciones ofrecen amplios planos de planta con interiores modernos que incluyen electrodomésticos de acero inoxidable, pisos de madera, gabinetes y encimeras renovados y lavadoras/secadoras. Los residentes están invitados a relajarse en nuestra casa club renovada, descansar junto a nuestras dos espectaculares piscinas, ejercitar en nuestro gimnasio completamente equipado y aprender en nuestro estudio privado y salas de conferencias. Social West Ames es un complejo que admite mascotas, tanto gatos como perros son bien recibidos, con muy pocas restricciones de raza. ¡Llama hoy para programar un recorrido y ver por qué nuestros residentes adoran llamar hogar a nuestro complejo!
The Social West Ames® se encuentra en el Barrio West Ames y el código postal 50014 de Ames, IA. Esta comunidad está gestionada profesionalmente por Trinity Property Consultants
Información de contacto de la propiedad

Precios y Disponibilidad de Plano
The Social West Ames® ofrece apartamentos de 1 a 5 Dormitorios desde $479 con 612–1,818 pies cuadrados. Aquí está el precio actual y la disponibilidad:
¡Nuevo! Mapa Interactivo de Propiedades
1 Dormitorio
Avondale - Station
$999
1 Dormitorio, 1 Baño, 660 pies²Disponible AhoraEl más baratoEsta opción tiene los precios más bajos para este modeloGalería del Modelo
Planos
Detalles de Diponibilidad
Precio Fecha Disponibilidad Unidad Pies² Ver Detalles $999 Disponible Ahora Full Private 660 $999 August 21, 2026 Full Private 660 Características y Comodidades de Modelo
Características
- Accesible en sillas de ruedas (habitaciones)
- Aire acondicionado
- Conexiones para lavadora/secadora
- Ventiladores de techo
Cocina
- Lavavajillas
- Nevera
- Zona de eliminación de desechos
Espacio Vital
- Cubiertas de ventanas
- Techo abovedado
- Vestidores
Espacio al Aire Libre
- Patio
Servicios
- Amueblado
Tasas y precios del modelo
Precio del Modelo
- $999
Detalles y características de la Unidad Full Private
Características
- Accesible en sillas de ruedas (habitaciones)
- Aire acondicionado
- Conexiones para lavadora/secadora
- Ventiladores de techo
Cocina
- Lavavajillas
- Nevera
- Zona de eliminación de desechos
Espacio Vital
- Cubiertas de ventanas
- Techo abovedado
- Vestidores
Espacio al Aire Libre
- Patio
Servicios
- Amueblado
Tasas y precio de la unidad Full Private
Precio por Unidad
- $999
Ver detalles y estimación de rentaTasas y precios del modelo
Precio
- $999
Detalles y características de la Unidad Full Private
Características
- Accesible en sillas de ruedas (habitaciones)
- Aire acondicionado
- Conexiones para lavadora/secadora
- Ventiladores de techo
Cocina
- Lavavajillas
- Nevera
- Zona de eliminación de desechos
Espacio Vital
- Cubiertas de ventanas
- Techo abovedado
- Vestidores
Espacio al Aire Libre
- Patio
Servicios
- Amueblado
Tasas y precio de la unidad Full Private
Precio por Unidad
- $999
Ver detalles y estimación de rentaTasas y precios del modelo
Precio
- $999
Modelo de apartamento: Avondale - Station$9991 Dormitorio, 1 Baño, 660 sq ftDisponible Ahora![]()
Avondale - Station - Plano 1 ![]()
Avondale - Station - Plano 2 Unidad de apartamento: Full PrivateModelo de apartamento: Avondale - Station$9991 Dormitorio, 1 Baño, up to 660 sq ftDisponible AhoraUnidad de apartamento: Full PrivateModelo de apartamento: Avondale - Station$9991 Dormitorio, 1 Baño, up to 660 sq ftDisponible August 21, 2026Avondale Renovated - Station
$1,029
1 Dormitorio, 1 Baño, 660 pies²Disponible AhoraGalería del Modelo
Planos
Detalles de Diponibilidad
Precio Fecha Disponibilidad Unidad Pies² Ver Detalles $1,029 Disponible Ahora Full Private 660 $1,029 August 21, 2026 Full Private 660 Características y Comodidades de Modelo
Características
- Accesible en sillas de ruedas (habitaciones)
- Aire acondicionado
- Conexiones para lavadora/secadora
- Ventiladores de techo
Cocina
- Lavavajillas
- Nevera
- Zona de eliminación de desechos
Espacio Vital
- Cubiertas de ventanas
- Techo abovedado
- Vestidores
Espacio al Aire Libre
- Patio
Servicios
- Amueblado
Tasas y precios del modelo
Precio del Modelo
- $1,029
Detalles y características de la Unidad Full Private
Características Propias
- Amueblado
Características
- Accesible en sillas de ruedas (habitaciones)
- Aire acondicionado
- Conexiones para lavadora/secadora
- Ventiladores de techo
Cocina
- Lavavajillas
- Nevera
- Zona de eliminación de desechos
Espacio Vital
- Cubiertas de ventanas
- Techo abovedado
- Vestidores
Espacio al Aire Libre
- Patio
Tasas y precio de la unidad Full Private
Precio por Unidad
- $1,029
Ver detalles y estimación de rentaTasas y precios del modelo
Precio
- $1,029
Detalles y características de la Unidad Full Private
Características
- Accesible en sillas de ruedas (habitaciones)
- Aire acondicionado
- Conexiones para lavadora/secadora
- Ventiladores de techo
Cocina
- Lavavajillas
- Nevera
- Zona de eliminación de desechos
Espacio Vital
- Cubiertas de ventanas
- Techo abovedado
- Vestidores
Espacio al Aire Libre
- Patio
Servicios
- Amueblado
Tasas y precio de la unidad Full Private
Precio por Unidad
- $1,029
Ver detalles y estimación de rentaTasas y precios del modelo
Precio
- $1,029
Modelo de apartamento: Avondale Renovated - Station$1,0291 Dormitorio, 1 Baño, 660 sq ftDisponible Ahora![]()
Avondale Renovated - Station - Plano 1 ![]()
Avondale Renovated - Station - Plano 2 Unidad de apartamento: Full PrivateModelo de apartamento: Avondale Renovated - Station$1,0291 Dormitorio, 1 Baño, up to 660 sq ftDisponible AhoraUnidad de apartamento: Full PrivateModelo de apartamento: Avondale Renovated - Station$1,0291 Dormitorio, 1 Baño, up to 660 sq ftDisponible August 21, 2026Berkley - Station
$1,059
1 Dormitorio, 1 Baño, 612 pies²Disponible AhoraGalería del Modelo
Planos
Detalles de Diponibilidad
Precio Fecha Disponibilidad Unidad Pies² Ver Detalles $1,059 Disponible Ahora Full Private 612 $1,059 August 21, 2026 Full Private 612 Características y Comodidades de Modelo
Características
- Accesible en sillas de ruedas (habitaciones)
- Aire acondicionado
- Conexiones para lavadora/secadora
- Ventiladores de techo
Cocina
- Lavavajillas
- Nevera
- Zona de eliminación de desechos
Espacio Vital
- Cubiertas de ventanas
- Techo abovedado
- Vestidores
Espacio al Aire Libre
- Patio
Servicios
- Amueblado
Tasas y precios del modelo
Precio del Modelo
- $1,059
Detalles y características de la Unidad Full Private
Características
- Accesible en sillas de ruedas (habitaciones)
- Aire acondicionado
- Conexiones para lavadora/secadora
- Ventiladores de techo
Cocina
- Lavavajillas
- Nevera
- Zona de eliminación de desechos
Espacio Vital
- Cubiertas de ventanas
- Techo abovedado
- Vestidores
Espacio al Aire Libre
- Patio
Servicios
- Amueblado
Tasas y precio de la unidad Full Private
Precio por Unidad
- $1,059
Ver detalles y estimación de rentaTasas y precios del modelo
Precio
- $1,059
Detalles y características de la Unidad Full Private
Características
- Accesible en sillas de ruedas (habitaciones)
- Aire acondicionado
- Conexiones para lavadora/secadora
- Ventiladores de techo
Cocina
- Lavavajillas
- Nevera
- Zona de eliminación de desechos
Espacio Vital
- Cubiertas de ventanas
- Techo abovedado
- Vestidores
Espacio al Aire Libre
- Patio
Servicios
- Amueblado
Tasas y precio de la unidad Full Private
Precio por Unidad
- $1,059
Ver detalles y estimación de rentaTasas y precios del modelo
Precio
- $1,059
Modelo de apartamento: Berkley - Station$1,0591 Dormitorio, 1 Baño, 612 sq ftDisponible Ahora![]()
Berkley - Station - Plano 1 ![]()
Berkley - Station - Plano 2 Unidad de apartamento: Full PrivateModelo de apartamento: Berkley - Station$1,0591 Dormitorio, 1 Baño, 612 sq ftDisponible AhoraUnidad de apartamento: Full PrivateModelo de apartamento: Berkley - Station$1,0591 Dormitorio, 1 Baño, 612 sq ftDisponible August 21, 20262 Dormitorios
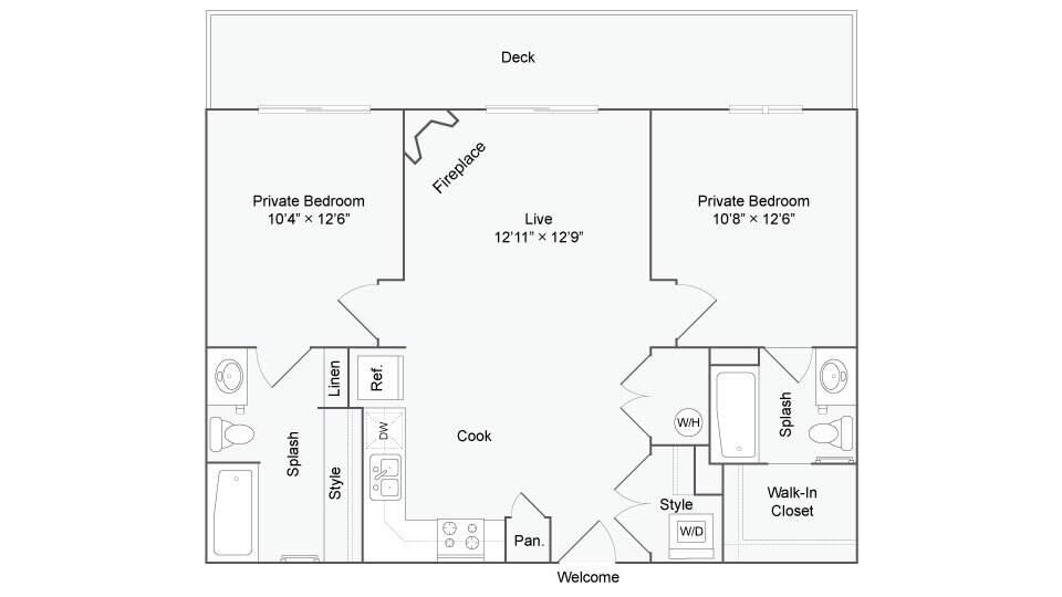
Davie - Station
Desde $589
2 Dormitorios, 1 Baño, 860 pies²Disponible AhoraEl más baratoEsta opción tiene los precios más bajos para este modeloGalería del Modelo
Planos
Detalles de Diponibilidad
Precio Fecha Disponibilidad Unidad Pies² Ver Detalles $589/persona Disponible Ahora Private Bedroom 860 $589/persona Disponible Ahora Private Bedroom 860 Características y Comodidades de Modelo
Características
- Accesible en sillas de ruedas (habitaciones)
- Aire acondicionado
- Conexiones para lavadora/secadora
- Ventiladores de techo
Cocina
- Lavavajillas
- Nevera
- Zona de eliminación de desechos
Espacio Vital
- Cubiertas de ventanas
- Techo abovedado
- Vestidores
Espacio al Aire Libre
- Patio
Servicios
- Amueblado
Tasas y precios del modelo
Rango de Precios Modelo
- $589 - $1,218
Precios de Unidades Disponibles
- $589
Detalles y características de la Unidad Private Bedroom
Características Propias
- Amueblado
Características
- Accesible en sillas de ruedas (habitaciones)
- Aire acondicionado
- Conexiones para lavadora/secadora
- Ventiladores de techo
Cocina
- Lavavajillas
- Nevera
- Zona de eliminación de desechos
Espacio Vital
- Cubiertas de ventanas
- Techo abovedado
- Vestidores
Espacio al Aire Libre
- Patio
Tasas y precio de la unidad Private Bedroom
Precio por Unidad
- $589
Ver detalles y estimación de rentaTasas y precios del modelo
Rango de Precios Modelo
- $589 - $1,218
Detalles y características de la Unidad Private Bedroom
Características Propias
- Amueblado
Características
- Accesible en sillas de ruedas (habitaciones)
- Aire acondicionado
- Conexiones para lavadora/secadora
- Ventiladores de techo
Cocina
- Lavavajillas
- Nevera
- Zona de eliminación de desechos
Espacio Vital
- Cubiertas de ventanas
- Techo abovedado
- Vestidores
Espacio al Aire Libre
- Patio
Tasas y precio de la unidad Private Bedroom
Precio por Unidad
- $589
Ver detalles y estimación de rentaTasas y precios del modelo
Rango de Precios Modelo
- $589 - $1,218
Modelo de apartamento: Davie - StationDesde $5892 Dormitorios, 1 Baño, 860 sq ftDisponible Ahora![]()
Davie - Station - Plano 1 ![]()
Davie - Station - Plano 2 Unidad de apartamento: Private BedroomModelo de apartamento: Davie - Station$5892 Dormitorios, 1 Baño, up to 860 sq ftDisponible AhoraUnidad de apartamento: Private BedroomModelo de apartamento: Davie - Station$5892 Dormitorios, 1 Baño, up to 860 sq ftDisponible AhoraDavie Plus - Station
Desde $609
2 Dormitorios, 1 Baño, 860 pies²Disponible AhoraGalería del Modelo
Planos
Detalles de Diponibilidad
Precio Fecha Disponibilidad Unidad Pies² Ver Detalles $1,238/persona Disponible Ahora Full 2 Bedroom 860 $609/persona Disponible Ahora Private Bedroom 860 $1,238/persona August 21, 2026 Full 2 Bedroom 860 Características y Comodidades de Modelo
Características
- Accesible en sillas de ruedas (habitaciones)
- Aire acondicionado
- Conexiones para lavadora/secadora
- Ventiladores de techo
Cocina
- Lavavajillas
- Nevera
- Zona de eliminación de desechos
Espacio Vital
- Cubiertas de ventanas
- Techo abovedado
- Vestidores
Espacio al Aire Libre
- Patio
Servicios
- Amueblado
Tasas y precios del modelo
Rango de Precios Modelo
- $609 - $1,238
Detalles y características de la Unidad Full 2 Bedroom
Características Propias
- Amueblado
Características
- Accesible en sillas de ruedas (habitaciones)
- Aire acondicionado
- Conexiones para lavadora/secadora
- Ventiladores de techo
Cocina
- Lavavajillas
- Nevera
- Zona de eliminación de desechos
Espacio Vital
- Cubiertas de ventanas
- Techo abovedado
- Vestidores
Espacio al Aire Libre
- Patio
Tasas y precio de la unidad Full 2 Bedroom
Precio por Unidad
- $1,238
Ver detalles y estimación de rentaTasas y precios del modelo
Rango de Precios Modelo
- $609 - $1,238
Detalles y características de la Unidad Private Bedroom
Características
- Accesible en sillas de ruedas (habitaciones)
- Aire acondicionado
- Conexiones para lavadora/secadora
- Ventiladores de techo
Cocina
- Lavavajillas
- Nevera
- Zona de eliminación de desechos
Espacio Vital
- Cubiertas de ventanas
- Techo abovedado
- Vestidores
Espacio al Aire Libre
- Patio
Servicios
- Amueblado
Tasas y precio de la unidad Private Bedroom
Precio por Unidad
- $609
Ver detalles y estimación de rentaTasas y precios del modelo
Rango de Precios Modelo
- $609 - $1,238
Detalles y características de la Unidad Full 2 Bedroom
Características Propias
- Amueblado
Características
- Accesible en sillas de ruedas (habitaciones)
- Aire acondicionado
- Conexiones para lavadora/secadora
- Ventiladores de techo
Cocina
- Lavavajillas
- Nevera
- Zona de eliminación de desechos
Espacio Vital
- Cubiertas de ventanas
- Techo abovedado
- Vestidores
Espacio al Aire Libre
- Patio
Tasas y precio de la unidad Full 2 Bedroom
Precio por Unidad
- $1,238
Ver detalles y estimación de rentaTasas y precios del modelo
Rango de Precios Modelo
- $609 - $1,238
Modelo de apartamento: Davie Plus - StationDesde $6092 Dormitorios, 1 Baño, 860 sq ftDisponible Ahora![]()
Davie Plus - Station - Plano 1 ![]()
Davie Plus - Station - Plano 2 Unidad de apartamento: Full 2 BedroomModelo de apartamento: Davie Plus - Station$1,2382 Dormitorios, 1 Baño, up to 860 sq ftDisponible AhoraUnidad de apartamento: Private BedroomModelo de apartamento: Davie Plus - Station$6092 Dormitorios, 1 Baño, up to 860 sq ftDisponible AhoraUnidad de apartamento: Full 2 BedroomModelo de apartamento: Davie Plus - Station$1,2382 Dormitorios, 1 Baño, up to 860 sq ftDisponible August 21, 2026Davie Renovated - Station
$629
2 Dormitorios, 1 Baño, 860 pies²Disponible AhoraGalería del Modelo
Planos
Detalles de Diponibilidad
Precio Fecha Disponibilidad Unidad Pies² Ver Detalles $629/persona Disponible Ahora Full 2 Bedroom 860 $629/persona August 21, 2026 Full 2 Bedroom 860 $629/persona August 21, 2026 Private Bedroom 860 Características y Comodidades de Modelo
Características
- Accesible en sillas de ruedas (habitaciones)
- Aire acondicionado
- Conexiones para lavadora/secadora
- Ventiladores de techo
Cocina
- Lavavajillas
- Nevera
- Zona de eliminación de desechos
Espacio Vital
- Cubiertas de ventanas
- Techo abovedado
- Vestidores
Espacio al Aire Libre
- Patio
Servicios
- Amueblado
Tasas y precios del modelo
Precio del Modelo
- $629
Detalles y características de la Unidad Full 2 Bedroom
Características
- Accesible en sillas de ruedas (habitaciones)
- Aire acondicionado
- Conexiones para lavadora/secadora
- Ventiladores de techo
Cocina
- Lavavajillas
- Nevera
- Zona de eliminación de desechos
Espacio Vital
- Cubiertas de ventanas
- Techo abovedado
- Vestidores
Espacio al Aire Libre
- Patio
Servicios
- Amueblado
Tasas y precio de la unidad Full 2 Bedroom
Precio por Unidad
- $629
Ver detalles y estimación de rentaTasas y precios del modelo
Precio
- $629
Detalles y características de la Unidad Full 2 Bedroom
Características Propias
- Amueblado
Características
- Accesible en sillas de ruedas (habitaciones)
- Aire acondicionado
- Conexiones para lavadora/secadora
- Ventiladores de techo
Cocina
- Lavavajillas
- Nevera
- Zona de eliminación de desechos
Espacio Vital
- Cubiertas de ventanas
- Techo abovedado
- Vestidores
Espacio al Aire Libre
- Patio
Tasas y precio de la unidad Full 2 Bedroom
Precio por Unidad
- $629
Ver detalles y estimación de rentaTasas y precios del modelo
Precio
- $629
Detalles y características de la Unidad Private Bedroom
Características Propias
- Amueblado
Características
- Accesible en sillas de ruedas (habitaciones)
- Aire acondicionado
- Conexiones para lavadora/secadora
- Ventiladores de techo
Cocina
- Lavavajillas
- Nevera
- Zona de eliminación de desechos
Espacio Vital
- Cubiertas de ventanas
- Techo abovedado
- Vestidores
Espacio al Aire Libre
- Patio
Tasas y precio de la unidad Private Bedroom
Precio por Unidad
- $629
Ver detalles y estimación de rentaTasas y precios del modelo
Precio
- $629
Modelo de apartamento: Davie Renovated - Station$6292 Dormitorios, 1 Baño, 860 sq ftDisponible Ahora![]()
Davie Renovated - Station - Plano 1 ![]()
Davie Renovated - Station - Plano 2 Unidad de apartamento: Full 2 BedroomModelo de apartamento: Davie Renovated - Station$6292 Dormitorios, 1 Baño, up to 860 sq ftDisponible AhoraUnidad de apartamento: Full 2 BedroomModelo de apartamento: Davie Renovated - Station$6292 Dormitorios, 1 Baño, up to 860 sq ftDisponible August 21, 2026Unidad de apartamento: Private BedroomModelo de apartamento: Davie Renovated - Station$6292 Dormitorios, 1 Baño, up to 860 sq ftDisponible August 21, 2026Beckett B Renovated - Station
Desde $629
2 Dormitorios, 2 Baños, 800 pies²Disponible AhoraGalería del Modelo
Planos
Detalles de Diponibilidad
Precio Fecha Disponibilidad Unidad Pies² Ver Detalles $629/persona Disponible Ahora Private Bedroom 800 $629/persona Disponible Ahora Private Bedroom 800 Características y Comodidades de Modelo
Características
- Accesible en sillas de ruedas (habitaciones)
- Aire acondicionado
- Conexiones para lavadora/secadora
- Ventiladores de techo
Cocina
- Lavavajillas
- Nevera
- Zona de eliminación de desechos
Espacio Vital
- Cubiertas de ventanas
- Techo abovedado
- Vestidores
Espacio al Aire Libre
- Patio
Servicios
- Amueblado
Tasas y precios del modelo
Rango de Precios Modelo
- $629 - $1,258
Precios de Unidades Disponibles
- $629
Detalles y características de la Unidad Private Bedroom
Características Propias
- Amueblado
Características
- Accesible en sillas de ruedas (habitaciones)
- Aire acondicionado
- Conexiones para lavadora/secadora
- Ventiladores de techo
Cocina
- Lavavajillas
- Nevera
- Zona de eliminación de desechos
Espacio Vital
- Cubiertas de ventanas
- Techo abovedado
- Vestidores
Espacio al Aire Libre
- Patio
Tasas y precio de la unidad Private Bedroom
Precio por Unidad
- $629
Ver detalles y estimación de rentaTasas y precios del modelo
Rango de Precios Modelo
- $629 - $1,258
Detalles y características de la Unidad Private Bedroom
Características Propias
- Amueblado
Características
- Accesible en sillas de ruedas (habitaciones)
- Aire acondicionado
- Conexiones para lavadora/secadora
- Ventiladores de techo
Cocina
- Lavavajillas
- Nevera
- Zona de eliminación de desechos
Espacio Vital
- Cubiertas de ventanas
- Techo abovedado
- Vestidores
Espacio al Aire Libre
- Patio
Tasas y precio de la unidad Private Bedroom
Precio por Unidad
- $629
Ver detalles y estimación de rentaTasas y precios del modelo
Rango de Precios Modelo
- $629 - $1,258
Modelo de apartamento: Beckett B Renovated - StationDesde $6292 Dormitorios, 2 Baños, 800 sq ftDisponible Ahora![]()
Beckett B Renovated - Station - Plano Unidad de apartamento: Private BedroomModelo de apartamento: Beckett B Renovated - Station$6292 Dormitorios, 2 Baños, up to 800 sq ftDisponible AhoraUnidad de apartamento: Private BedroomModelo de apartamento: Beckett B Renovated - Station$6292 Dormitorios, 2 Baños, up to 800 sq ftDisponible AhoraPaxton A - Station
$659
2 Dormitorios, 2 Baños, 887 pies²Disponible AhoraGalería del Modelo
Planos
Detalles de Diponibilidad
Precio Fecha Disponibilidad Unidad Pies² Ver Detalles $659/persona Disponible Ahora Private Bedroom 887 $659/persona August 21, 2026 Private Bedroom 887 Características y Comodidades de Modelo
Características
- Accesible en sillas de ruedas (habitaciones)
- Aire acondicionado
- Conexiones para lavadora/secadora
- Ventiladores de techo
Cocina
- Lavavajillas
- Nevera
- Zona de eliminación de desechos
Espacio Vital
- Cubiertas de ventanas
- Techo abovedado
- Vestidores
Espacio al Aire Libre
- Patio
Servicios
- Amueblado
Tasas y precios del modelo
Precio del Modelo
- $659
Detalles y características de la Unidad Private Bedroom
Características
- Accesible en sillas de ruedas (habitaciones)
- Aire acondicionado
- Conexiones para lavadora/secadora
- Ventiladores de techo
Cocina
- Lavavajillas
- Nevera
- Zona de eliminación de desechos
Espacio Vital
- Cubiertas de ventanas
- Techo abovedado
- Vestidores
Espacio al Aire Libre
- Patio
Servicios
- Amueblado
Tasas y precio de la unidad Private Bedroom
Precio por Unidad
- $659
Ver detalles y estimación de rentaTasas y precios del modelo
Precio
- $659
Detalles y características de la Unidad Private Bedroom
Características Propias
- Amueblado
Características
- Accesible en sillas de ruedas (habitaciones)
- Aire acondicionado
- Conexiones para lavadora/secadora
- Ventiladores de techo
Cocina
- Lavavajillas
- Nevera
- Zona de eliminación de desechos
Espacio Vital
- Cubiertas de ventanas
- Techo abovedado
- Vestidores
Espacio al Aire Libre
- Patio
Tasas y precio de la unidad Private Bedroom
Precio por Unidad
- $659
Ver detalles y estimación de rentaTasas y precios del modelo
Precio
- $659
Modelo de apartamento: Paxton A - Station$6592 Dormitorios, 2 Baños, 887 sq ftDisponible Ahora![]()
Paxton A - Station - Plano Unidad de apartamento: Private BedroomModelo de apartamento: Paxton A - Station$6592 Dormitorios, 2 Baños, up to 887 sq ftDisponible AhoraUnidad de apartamento: Private BedroomModelo de apartamento: Paxton A - Station$6592 Dormitorios, 2 Baños, up to 887 sq ftDisponible August 21, 2026Wynwood Plus - Station
$669
2 Dormitorios, 2 Baños, 980 pies²Disponible AhoraGalería del Modelo
Planos
Detalles de Diponibilidad
Precio Fecha Disponibilidad Unidad Pies² Ver Detalles $669/persona Disponible Ahora Private Bedroom 980 $669/persona August 21, 2026 Private Bedroom 980 Características y Comodidades de Modelo
Características
- Accesible en sillas de ruedas (habitaciones)
- Aire acondicionado
- Conexiones para lavadora/secadora
- Ventiladores de techo
Cocina
- Lavavajillas
- Nevera
- Zona de eliminación de desechos
Espacio Vital
- Cubiertas de ventanas
- Techo abovedado
- Vestidores
Espacio al Aire Libre
- Patio
Servicios
- Amueblado
Tasas y precios del modelo
Precio del Modelo
- $669
Detalles y características de la Unidad Private Bedroom
Características Propias
- Amueblado
Características
- Accesible en sillas de ruedas (habitaciones)
- Aire acondicionado
- Conexiones para lavadora/secadora
- Ventiladores de techo
Cocina
- Lavavajillas
- Nevera
- Zona de eliminación de desechos
Espacio Vital
- Cubiertas de ventanas
- Techo abovedado
- Vestidores
Espacio al Aire Libre
- Patio
Tasas y precio de la unidad Private Bedroom
Precio por Unidad
- $669
Ver detalles y estimación de rentaTasas y precios del modelo
Precio
- $669
Detalles y características de la Unidad Private Bedroom
Características Propias
- Amueblado
Características
- Accesible en sillas de ruedas (habitaciones)
- Aire acondicionado
- Conexiones para lavadora/secadora
- Ventiladores de techo
Cocina
- Lavavajillas
- Nevera
- Zona de eliminación de desechos
Espacio Vital
- Cubiertas de ventanas
- Techo abovedado
- Vestidores
Espacio al Aire Libre
- Patio
Tasas y precio de la unidad Private Bedroom
Precio por Unidad
- $669
Ver detalles y estimación de rentaTasas y precios del modelo
Precio
- $669
Modelo de apartamento: Wynwood Plus - Station$6692 Dormitorios, 2 Baños, 980 sq ftDisponible Ahora![]()
Wynwood Plus - Station - Plano Unidad de apartamento: Private BedroomModelo de apartamento: Wynwood Plus - Station$6692 Dormitorios, 2 Baños, up to 980 sq ftDisponible AhoraUnidad de apartamento: Private BedroomModelo de apartamento: Wynwood Plus - Station$6692 Dormitorios, 2 Baños, up to 980 sq ftDisponible August 21, 2026Paxton C - Station
$669
2 Dormitorios, 2 Baños, 1016 pies²Disponible AhoraEl más grandeEsta opción tiene las unidades más grandes para este modeloGalería del Modelo
Planos
Detalles de Diponibilidad
Precio Fecha Disponibilidad Unidad Pies² Ver Detalles $669/persona Disponible Ahora Private Bedroom 1016 $669/persona August 21, 2026 Private Bedroom 1016 Características y Comodidades de Modelo
Características
- Accesible en sillas de ruedas (habitaciones)
- Aire acondicionado
- Conexiones para lavadora/secadora
- Ventiladores de techo
Cocina
- Lavavajillas
- Nevera
- Zona de eliminación de desechos
Espacio Vital
- Cubiertas de ventanas
- Techo abovedado
- Vestidores
Espacio al Aire Libre
- Patio
Servicios
- Amueblado
Tasas y precios del modelo
Precio del Modelo
- $669
Detalles y características de la Unidad Private Bedroom
Características
- Accesible en sillas de ruedas (habitaciones)
- Aire acondicionado
- Conexiones para lavadora/secadora
- Ventiladores de techo
Cocina
- Lavavajillas
- Nevera
- Zona de eliminación de desechos
Espacio Vital
- Cubiertas de ventanas
- Techo abovedado
- Vestidores
Espacio al Aire Libre
- Patio
Servicios
- Amueblado
Tasas y precio de la unidad Private Bedroom
Precio por Unidad
- $669
Ver detalles y estimación de rentaTasas y precios del modelo
Precio
- $669
Detalles y características de la Unidad Private Bedroom
Características Propias
- Amueblado
Características
- Accesible en sillas de ruedas (habitaciones)
- Aire acondicionado
- Conexiones para lavadora/secadora
- Ventiladores de techo
Cocina
- Lavavajillas
- Nevera
- Zona de eliminación de desechos
Espacio Vital
- Cubiertas de ventanas
- Techo abovedado
- Vestidores
Espacio al Aire Libre
- Patio
Tasas y precio de la unidad Private Bedroom
Precio por Unidad
- $669
Ver detalles y estimación de rentaTasas y precios del modelo
Precio
- $669
Modelo de apartamento: Paxton C - Station$6692 Dormitorios, 2 Baños, 1016 sq ftDisponible Ahora![]()
Paxton C - Station - Plano 1 ![]()
Paxton C - Station - Plano 2 Unidad de apartamento: Private BedroomModelo de apartamento: Paxton C - Station$6692 Dormitorios, 2 Baños, 1016 sq ftDisponible AhoraUnidad de apartamento: Private BedroomModelo de apartamento: Paxton C - Station$6692 Dormitorios, 2 Baños, 1016 sq ftDisponible August 21, 2026Wynwood Renovated - Station
$679
2 Dormitorios, 2 Baños, 980 pies²Disponible AhoraGalería del Modelo
Planos
Detalles de Diponibilidad
Precio Fecha Disponibilidad Unidad Pies² Ver Detalles $679/persona Disponible Ahora Private Bedroom 980 $679/persona August 21, 2026 Private Bedroom 980 Características y Comodidades de Modelo
Características
- Accesible en sillas de ruedas (habitaciones)
- Aire acondicionado
- Conexiones para lavadora/secadora
- Ventiladores de techo
Cocina
- Lavavajillas
- Nevera
- Zona de eliminación de desechos
Espacio Vital
- Cubiertas de ventanas
- Techo abovedado
- Vestidores
Espacio al Aire Libre
- Patio
Servicios
- Amueblado
Tasas y precios del modelo
Precio del Modelo
- $679
Detalles y características de la Unidad Private Bedroom
Características Propias
- Amueblado
Características
- Accesible en sillas de ruedas (habitaciones)
- Aire acondicionado
- Conexiones para lavadora/secadora
- Ventiladores de techo
Cocina
- Lavavajillas
- Nevera
- Zona de eliminación de desechos
Espacio Vital
- Cubiertas de ventanas
- Techo abovedado
- Vestidores
Espacio al Aire Libre
- Patio
Tasas y precio de la unidad Private Bedroom
Precio por Unidad
- $679
Ver detalles y estimación de rentaTasas y precios del modelo
Precio
- $679
Detalles y características de la Unidad Private Bedroom
Características Propias
- Amueblado
Características
- Accesible en sillas de ruedas (habitaciones)
- Aire acondicionado
- Conexiones para lavadora/secadora
- Ventiladores de techo
Cocina
- Lavavajillas
- Nevera
- Zona de eliminación de desechos
Espacio Vital
- Cubiertas de ventanas
- Techo abovedado
- Vestidores
Espacio al Aire Libre
- Patio
Tasas y precio de la unidad Private Bedroom
Precio por Unidad
- $679
Ver detalles y estimación de rentaTasas y precios del modelo
Precio
- $679
Modelo de apartamento: Wynwood Renovated - Station$6792 Dormitorios, 2 Baños, 980 sq ftDisponible Ahora![]()
Wynwood Renovated - Station - Plano 1 ![]()
Wynwood Renovated - Station - Plano 2 Unidad de apartamento: Private BedroomModelo de apartamento: Wynwood Renovated - Station$6792 Dormitorios, 2 Baños, up to 980 sq ftDisponible AhoraUnidad de apartamento: Private BedroomModelo de apartamento: Wynwood Renovated - Station$6792 Dormitorios, 2 Baños, up to 980 sq ftDisponible August 21, 2026Paxton B - Station
$689
2 Dormitorios, 2 Baños, 947 pies²Disponible AhoraGalería del Modelo
Planos
Detalles de Diponibilidad
Precio Fecha Disponibilidad Unidad Pies² Ver Detalles $689/persona Disponible Ahora Private Bedroom 947 $689/persona August 21, 2026 Private Bedroom 947 Características y Comodidades de Modelo
Características
- Accesible en sillas de ruedas (habitaciones)
- Aire acondicionado
- Conexiones para lavadora/secadora
- Ventiladores de techo
Cocina
- Lavavajillas
- Nevera
- Zona de eliminación de desechos
Espacio Vital
- Cubiertas de ventanas
- Techo abovedado
- Vestidores
Espacio al Aire Libre
- Patio
Servicios
- Amueblado
Tasas y precios del modelo
Precio del Modelo
- $689
Detalles y características de la Unidad Private Bedroom
Características Propias
- Amueblado
Características
- Accesible en sillas de ruedas (habitaciones)
- Aire acondicionado
- Conexiones para lavadora/secadora
- Ventiladores de techo
Cocina
- Lavavajillas
- Nevera
- Zona de eliminación de desechos
Espacio Vital
- Cubiertas de ventanas
- Techo abovedado
- Vestidores
Espacio al Aire Libre
- Patio
Tasas y precio de la unidad Private Bedroom
Precio por Unidad
- $689
Ver detalles y estimación de rentaTasas y precios del modelo
Precio
- $689
Detalles y características de la Unidad Private Bedroom
Características
- Accesible en sillas de ruedas (habitaciones)
- Aire acondicionado
- Conexiones para lavadora/secadora
- Ventiladores de techo
Cocina
- Lavavajillas
- Nevera
- Zona de eliminación de desechos
Espacio Vital
- Cubiertas de ventanas
- Techo abovedado
- Vestidores
Espacio al Aire Libre
- Patio
Servicios
- Amueblado
Tasas y precio de la unidad Private Bedroom
Precio por Unidad
- $689
Ver detalles y estimación de rentaTasas y precios del modelo
Precio
- $689
Modelo de apartamento: Paxton B - Station$6892 Dormitorios, 2 Baños, 947 sq ftDisponible Ahora![]()
Paxton B - Station - Plano Unidad de apartamento: Private BedroomModelo de apartamento: Paxton B - Station$6892 Dormitorios, 2 Baños, up to 947 sq ftDisponible AhoraUnidad de apartamento: Private BedroomModelo de apartamento: Paxton B - Station$6892 Dormitorios, 2 Baños, up to 947 sq ftDisponible August 21, 2026Wynwood - Station
$639
2 Dormitorios, 2 Baños, 980 pies²Disponible Aug 21Galería del Modelo
Planos
Detalles de Diponibilidad
Precio Fecha Disponibilidad Unidad Pies² $639/persona August 21, 2026 Private 980 Detalles y características de la Unidad Private
Características Propias
- Amueblado
Características
- Accesible en sillas de ruedas (habitaciones)
- Aire acondicionado
- Conexiones para lavadora/secadora
- Ventiladores de techo
Cocina
- Lavavajillas
- Nevera
- Zona de eliminación de desechos
Espacio Vital
- Cubiertas de ventanas
- Techo abovedado
- Vestidores
Espacio al Aire Libre
- Patio
Tasas y precio de la unidad Private
Precio por Unidad
- $639
Ver detalles y estimación de rentaTasas y precios del modelo
Precio
- $639
Modelo de apartamento: Wynwood - Station$6392 Dormitorios, 2 Baños, 980 sq ftDisponible August 21, 2026![]()
Wynwood - Station - Plano 1 ![]()
Wynwood - Station - Plano 2 Unidad de apartamento: PrivateModelo de apartamento: Wynwood - Station$6392 Dormitorios, 2 Baños, up to 980 sq ftDisponible August 21, 20263 Dormitorios
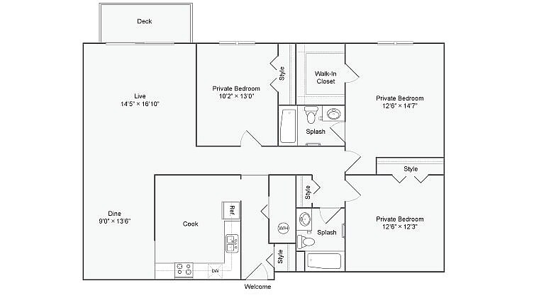
Ver MásMontrose - Station
Desde $519
3 Dormitorios, 2 Baños, 1230 pies²Disponible AhoraEl más baratoEsta opción tiene los precios más bajos para este modeloGalería del Modelo
Planos
Detalles de Diponibilidad
Precio Fecha Disponibilidad Unidad Pies² Ver Detalles $519/persona Disponible Ahora Private 1230 $539/persona Disponible Ahora Private Master Bedroom 1230 $539/persona June 8, 2026 Private 1230 Características y Comodidades de Modelo
Características
- Accesible en sillas de ruedas (habitaciones)
- Aire acondicionado
- Conexiones para lavadora/secadora
- Ventiladores de techo
Cocina
- Lavavajillas
- Nevera
- Zona de eliminación de desechos
Espacio Vital
- Cubiertas de ventanas
- Techo abovedado
- Vestidores
Espacio al Aire Libre
- Patio
Servicios
- Amueblado
Tasas y precios del modelo
Rango de Precios Modelo
- $519 - $539
Detalles y características de la Unidad Private
Características Propias
- Amueblado
Características
- Accesible en sillas de ruedas (habitaciones)
- Aire acondicionado
- Conexiones para lavadora/secadora
- Ventiladores de techo
Cocina
- Lavavajillas
- Nevera
- Zona de eliminación de desechos
Espacio Vital
- Cubiertas de ventanas
- Techo abovedado
- Vestidores
Espacio al Aire Libre
- Patio
Tasas y precio de la unidad Private
Precio por Unidad
- $519
Ver detalles y estimación de rentaTasas y precios del modelo
Rango de Precios Modelo
- $519 - $539
Detalles y características de la Unidad Private Master Bedroom
Características Propias
- Amueblado
Características
- Accesible en sillas de ruedas (habitaciones)
- Aire acondicionado
- Conexiones para lavadora/secadora
- Ventiladores de techo
Cocina
- Lavavajillas
- Nevera
- Zona de eliminación de desechos
Espacio Vital
- Cubiertas de ventanas
- Techo abovedado
- Vestidores
Espacio al Aire Libre
- Patio
Tasas y precio de la unidad Private Master Bedroom
Precio por Unidad
- $539
Ver detalles y estimación de rentaTasas y precios del modelo
Rango de Precios Modelo
- $519 - $539
Detalles y características de la Unidad Private
Características Propias
- Amueblado
Características
- Accesible en sillas de ruedas (habitaciones)
- Aire acondicionado
- Conexiones para lavadora/secadora
- Ventiladores de techo
Cocina
- Lavavajillas
- Nevera
- Zona de eliminación de desechos
Espacio Vital
- Cubiertas de ventanas
- Techo abovedado
- Vestidores
Espacio al Aire Libre
- Patio
Tasas y precio de la unidad Private
Precio por Unidad
- $539
Ver detalles y estimación de rentaTasas y precios del modelo
Rango de Precios Modelo
- $519 - $539
Modelo de apartamento: Montrose - StationDesde $5193 Dormitorios, 2 Baños, 1230 sq ftDisponible Ahora![]()
Montrose - Station - Plano 1 ![]()
Montrose - Station - Plano 2 Unidad de apartamento: PrivateModelo de apartamento: Montrose - Station$5193 Dormitorios, 2 Baños, up to 1230 sq ftDisponible AhoraUnidad de apartamento: Private Master BedroomModelo de apartamento: Montrose - Station$5393 Dormitorios, 2 Baños, up to 1230 sq ftDisponible AhoraUnidad de apartamento: PrivateModelo de apartamento: Montrose - Station$5393 Dormitorios, 2 Baños, up to 1230 sq ftDisponible June 8, 2026Montrose Renovated - Station
Desde $529
3 Dormitorios, 2 Baños, 1230 pies²Disponible AhoraGalería del Modelo
Planos
Detalles de Diponibilidad
Precio Fecha Disponibilidad Unidad Pies² Ver Detalles $529/persona Disponible Ahora Private Bedroom 1230 $549/persona Disponible Ahora Private Master Bedroom 1230 $549/persona June 8, 2026 Private Bedroom 1230 Características y Comodidades de Modelo
Características
- Accesible en sillas de ruedas (habitaciones)
- Aire acondicionado
- Conexiones para lavadora/secadora
- Ventiladores de techo
Cocina
- Lavavajillas
- Nevera
- Zona de eliminación de desechos
Espacio Vital
- Cubiertas de ventanas
- Techo abovedado
- Vestidores
Espacio al Aire Libre
- Patio
Servicios
- Amueblado
Tasas y precios del modelo
Rango de Precios Modelo
- $529 - $549
Detalles y características de la Unidad Private Bedroom
Características
- Accesible en sillas de ruedas (habitaciones)
- Aire acondicionado
- Conexiones para lavadora/secadora
- Ventiladores de techo
Cocina
- Lavavajillas
- Nevera
- Zona de eliminación de desechos
Espacio Vital
- Cubiertas de ventanas
- Techo abovedado
- Vestidores
Espacio al Aire Libre
- Patio
Servicios
- Amueblado
Tasas y precio de la unidad Private Bedroom
Precio por Unidad
- $529
Ver detalles y estimación de rentaTasas y precios del modelo
Rango de Precios Modelo
- $529 - $549
Detalles y características de la Unidad Private Master Bedroom
Características
- Accesible en sillas de ruedas (habitaciones)
- Aire acondicionado
- Conexiones para lavadora/secadora
- Ventiladores de techo
Cocina
- Lavavajillas
- Nevera
- Zona de eliminación de desechos
Espacio Vital
- Cubiertas de ventanas
- Techo abovedado
- Vestidores
Espacio al Aire Libre
- Patio
Servicios
- Amueblado
Tasas y precio de la unidad Private Master Bedroom
Precio por Unidad
- $549
Ver detalles y estimación de rentaTasas y precios del modelo
Rango de Precios Modelo
- $529 - $549
Detalles y características de la Unidad Private Bedroom
Características Propias
- Amueblado
Características
- Accesible en sillas de ruedas (habitaciones)
- Aire acondicionado
- Conexiones para lavadora/secadora
- Ventiladores de techo
Cocina
- Lavavajillas
- Nevera
- Zona de eliminación de desechos
Espacio Vital
- Cubiertas de ventanas
- Techo abovedado
- Vestidores
Espacio al Aire Libre
- Patio
Tasas y precio de la unidad Private Bedroom
Precio por Unidad
- $549
Ver detalles y estimación de rentaTasas y precios del modelo
Rango de Precios Modelo
- $529 - $549
Modelo de apartamento: Montrose Renovated - StationDesde $5293 Dormitorios, 2 Baños, 1230 sq ftDisponible Ahora![]()
Montrose Renovated - Station - Plano 1 ![]()
Montrose Renovated - Station - Plano 2 Unidad de apartamento: Private BedroomModelo de apartamento: Montrose Renovated - Station$5293 Dormitorios, 2 Baños, up to 1230 sq ftDisponible AhoraUnidad de apartamento: Private Master BedroomModelo de apartamento: Montrose Renovated - Station$5493 Dormitorios, 2 Baños, up to 1230 sq ftDisponible AhoraUnidad de apartamento: Private BedroomModelo de apartamento: Montrose Renovated - Station$5493 Dormitorios, 2 Baños, up to 1230 sq ftDisponible June 8, 2026Cambridge A - Station
Desde $569
3 Dormitorios, 2 Baños, 960 pies²Disponible AhoraGalería del Modelo
Planos
Detalles de Diponibilidad
Precio Fecha Disponibilidad Unidad Pies² Ver Detalles $569/persona Disponible Ahora Private Bedroom 960 $599/persona Disponible Ahora Private Master Bedroom 960 $569/persona August 21, 2026 Private Bedroom 960 Características y Comodidades de Modelo
Características
- Accesible en sillas de ruedas (habitaciones)
- Aire acondicionado
- Conexiones para lavadora/secadora
- Ventiladores de techo
Cocina
- Lavavajillas
- Nevera
- Zona de eliminación de desechos
Espacio Vital
- Cubiertas de ventanas
- Techo abovedado
- Vestidores
Espacio al Aire Libre
- Patio
Servicios
- Amueblado
Tasas y precios del modelo
Rango de Precios Modelo
- $569 - $599
Detalles y características de la Unidad Private Bedroom
Características Propias
- Amueblado
Características
- Accesible en sillas de ruedas (habitaciones)
- Aire acondicionado
- Conexiones para lavadora/secadora
- Ventiladores de techo
Cocina
- Lavavajillas
- Nevera
- Zona de eliminación de desechos
Espacio Vital
- Cubiertas de ventanas
- Techo abovedado
- Vestidores
Espacio al Aire Libre
- Patio
Tasas y precio de la unidad Private Bedroom
Precio por Unidad
- $569
Ver detalles y estimación de rentaTasas y precios del modelo
Rango de Precios Modelo
- $569 - $599
Detalles y características de la Unidad Private Master Bedroom
Características Propias
- Amueblado
Características
- Accesible en sillas de ruedas (habitaciones)
- Aire acondicionado
- Conexiones para lavadora/secadora
- Ventiladores de techo
Cocina
- Lavavajillas
- Nevera
- Zona de eliminación de desechos
Espacio Vital
- Cubiertas de ventanas
- Techo abovedado
- Vestidores
Espacio al Aire Libre
- Patio
Tasas y precio de la unidad Private Master Bedroom
Precio por Unidad
- $599
Ver detalles y estimación de rentaTasas y precios del modelo
Rango de Precios Modelo
- $569 - $599
Detalles y características de la Unidad Private Bedroom
Características Propias
- Amueblado
Características
- Accesible en sillas de ruedas (habitaciones)
- Aire acondicionado
- Conexiones para lavadora/secadora
- Ventiladores de techo
Cocina
- Lavavajillas
- Nevera
- Zona de eliminación de desechos
Espacio Vital
- Cubiertas de ventanas
- Techo abovedado
- Vestidores
Espacio al Aire Libre
- Patio
Tasas y precio de la unidad Private Bedroom
Precio por Unidad
- $569
Ver detalles y estimación de rentaTasas y precios del modelo
Rango de Precios Modelo
- $569 - $599
Modelo de apartamento: Cambridge A - StationDesde $5693 Dormitorios, 2 Baños, 960 sq ftDisponible Ahora![]()
Cambridge A - Station - Plano 1 ![]()
Cambridge A - Station - Plano 2 Unidad de apartamento: Private BedroomModelo de apartamento: Cambridge A - Station$5693 Dormitorios, 2 Baños, 960 sq ftDisponible AhoraUnidad de apartamento: Private Master BedroomModelo de apartamento: Cambridge A - Station$5993 Dormitorios, 2 Baños, 960 sq ftDisponible AhoraUnidad de apartamento: Private BedroomModelo de apartamento: Cambridge A - Station$5693 Dormitorios, 2 Baños, 960 sq ftDisponible August 21, 2026Hendrick A - Station
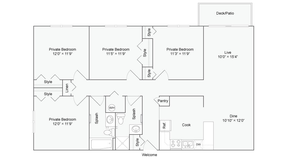
Desde $569
3 Dormitorios, 2 Baños, 1200 pies²Disponible AhoraGalería del Modelo
Planos
Detalles de Diponibilidad
Precio Fecha Disponibilidad Unidad Pies² Ver Detalles $569/persona Disponible Ahora Full 3 Bedroom 1200 $599/persona Disponible Ahora Private Bedroom 1200 $1,797/persona August 21, 2026 Full 3 Bedroom 1200 Características y Comodidades de Modelo
Características
- Accesible en sillas de ruedas (habitaciones)
- Aire acondicionado
- Conexiones para lavadora/secadora
- Ventiladores de techo
Cocina
- Lavavajillas
- Nevera
- Zona de eliminación de desechos
Espacio Vital
- Cubiertas de ventanas
- Techo abovedado
- Vestidores
Espacio al Aire Libre
- Patio
Servicios
- Amueblado
Tasas y precios del modelo
Rango de Precios Modelo
- $569 - $1,797
Detalles y características de la Unidad Full 3 Bedroom
Características
- Accesible en sillas de ruedas (habitaciones)
- Aire acondicionado
- Conexiones para lavadora/secadora
- Ventiladores de techo
Cocina
- Lavavajillas
- Nevera
- Zona de eliminación de desechos
Espacio Vital
- Cubiertas de ventanas
- Techo abovedado
- Vestidores
Espacio al Aire Libre
- Patio
Servicios
- Amueblado
Tasas y precio de la unidad Full 3 Bedroom
Precio por Unidad
- $569
Ver detalles y estimación de rentaTasas y precios del modelo
Rango de Precios Modelo
- $569 - $1,797
Detalles y características de la Unidad Private Bedroom
Características Propias
- Amueblado
Características
- Accesible en sillas de ruedas (habitaciones)
- Aire acondicionado
- Conexiones para lavadora/secadora
- Ventiladores de techo
Cocina
- Lavavajillas
- Nevera
- Zona de eliminación de desechos
Espacio Vital
- Cubiertas de ventanas
- Techo abovedado
- Vestidores
Espacio al Aire Libre
- Patio
Tasas y precio de la unidad Private Bedroom
Precio por Unidad
- $599
Ver detalles y estimación de rentaTasas y precios del modelo
Rango de Precios Modelo
- $569 - $1,797
Detalles y características de la Unidad Full 3 Bedroom
Características Propias
- Amueblado
Características
- Accesible en sillas de ruedas (habitaciones)
- Aire acondicionado
- Conexiones para lavadora/secadora
- Ventiladores de techo
Cocina
- Lavavajillas
- Nevera
- Zona de eliminación de desechos
Espacio Vital
- Cubiertas de ventanas
- Techo abovedado
- Vestidores
Espacio al Aire Libre
- Patio
Tasas y precio de la unidad Full 3 Bedroom
Precio por Unidad
- $1,797
Ver detalles y estimación de rentaTasas y precios del modelo
Rango de Precios Modelo
- $569 - $1,797
Modelo de apartamento: Hendrick A - StationDesde $5693 Dormitorios, 2 Baños, 1200 sq ftDisponible Ahora![]()
Hendrick A - Station - Plano 1 ![]()
Hendrick A - Station - Plano 2 ![]()
Hendrick A - Station - Plano 3 ![]()
Hendrick A - Station - Plano 4 Unidad de apartamento: Full 3 BedroomModelo de apartamento: Hendrick A - Station$5693 Dormitorios, 2 Baños, 1200 sq ftDisponible AhoraUnidad de apartamento: Private BedroomModelo de apartamento: Hendrick A - Station$5993 Dormitorios, 2 Baños, 1200 sq ftDisponible AhoraUnidad de apartamento: Full 3 BedroomModelo de apartamento: Hendrick A - Station$1,7973 Dormitorios, 2 Baños, 1200 sq ftDisponible August 21, 2026Hendrick B - Station
$579
3 Dormitorios, 2 Baños, 1370 pies²Disponible AhoraGalería del Modelo
Planos
Detalles de Diponibilidad
Precio Fecha Disponibilidad Unidad Pies² Ver Detalles $579/persona Disponible Ahora Private Bedroom 1370 $579/persona August 21, 2026 Private Bedroom 1370 Características y Comodidades de Modelo
Características
- Accesible en sillas de ruedas (habitaciones)
- Aire acondicionado
- Conexiones para lavadora/secadora
- Ventiladores de techo
Cocina
- Lavavajillas
- Nevera
- Zona de eliminación de desechos
Espacio Vital
- Cubiertas de ventanas
- Techo abovedado
- Vestidores
Espacio al Aire Libre
- Patio
Servicios
- Amueblado
Tasas y precios del modelo
Precio del Modelo
- $579
Detalles y características de la Unidad Private Bedroom
Características Propias
- Amueblado
Características
- Accesible en sillas de ruedas (habitaciones)
- Aire acondicionado
- Conexiones para lavadora/secadora
- Ventiladores de techo
Cocina
- Lavavajillas
- Nevera
- Zona de eliminación de desechos
Espacio Vital
- Cubiertas de ventanas
- Techo abovedado
- Vestidores
Espacio al Aire Libre
- Patio
Tasas y precio de la unidad Private Bedroom
Precio por Unidad
- $579
Ver detalles y estimación de rentaTasas y precios del modelo
Precio
- $579
Detalles y características de la Unidad Private Bedroom
Características Propias
- Amueblado
Características
- Accesible en sillas de ruedas (habitaciones)
- Aire acondicionado
- Conexiones para lavadora/secadora
- Ventiladores de techo
Cocina
- Lavavajillas
- Nevera
- Zona de eliminación de desechos
Espacio Vital
- Cubiertas de ventanas
- Techo abovedado
- Vestidores
Espacio al Aire Libre
- Patio
Tasas y precio de la unidad Private Bedroom
Precio por Unidad
- $579
Ver detalles y estimación de rentaTasas y precios del modelo
Precio
- $579
Modelo de apartamento: Hendrick B - Station$5793 Dormitorios, 2 Baños, 1370 sq ftDisponible Ahora![]()
Hendrick B - Station - Plano 1 ![]()
Hendrick B - Station - Plano 2 ![]()
Hendrick B - Station - Plano 3 Unidad de apartamento: Private BedroomModelo de apartamento: Hendrick B - Station$5793 Dormitorios, 2 Baños, 1370 sq ftDisponible AhoraUnidad de apartamento: Private BedroomModelo de apartamento: Hendrick B - Station$5793 Dormitorios, 2 Baños, 1370 sq ftDisponible August 21, 2026Cambridge B - Station
Desde $589
3 Dormitorios, 2 Baños, 1000 pies²Disponible AhoraGalería del Modelo
Planos
Detalles de Diponibilidad
Precio Fecha Disponibilidad Unidad Pies² Ver Detalles $589/persona Disponible Ahora Full 3 Bedroom 1000 $619/persona Disponible Ahora Private Bedroom 1000 $1,737/persona August 21, 2026 Full 3 Bedroom 1000 Características y Comodidades de Modelo
Características
- Accesible en sillas de ruedas (habitaciones)
- Aire acondicionado
- Conexiones para lavadora/secadora
- Ventiladores de techo
Cocina
- Lavavajillas
- Nevera
- Zona de eliminación de desechos
Espacio Vital
- Cubiertas de ventanas
- Techo abovedado
- Vestidores
Espacio al Aire Libre
- Patio
Servicios
- Amueblado
Tasas y precios del modelo
Rango de Precios Modelo
- $589 - $1,737
Detalles y características de la Unidad Full 3 Bedroom
Características
- Accesible en sillas de ruedas (habitaciones)
- Aire acondicionado
- Conexiones para lavadora/secadora
- Ventiladores de techo
Cocina
- Lavavajillas
- Nevera
- Zona de eliminación de desechos
Espacio Vital
- Cubiertas de ventanas
- Techo abovedado
- Vestidores
Espacio al Aire Libre
- Patio
Servicios
- Amueblado
Tasas y precio de la unidad Full 3 Bedroom
Precio por Unidad
- $589
Ver detalles y estimación de rentaTasas y precios del modelo
Rango de Precios Modelo
- $589 - $1,737
Detalles y características de la Unidad Private Bedroom
Características Propias
- Amueblado
Características
- Accesible en sillas de ruedas (habitaciones)
- Aire acondicionado
- Conexiones para lavadora/secadora
- Ventiladores de techo
Cocina
- Lavavajillas
- Nevera
- Zona de eliminación de desechos
Espacio Vital
- Cubiertas de ventanas
- Techo abovedado
- Vestidores
Espacio al Aire Libre
- Patio
Tasas y precio de la unidad Private Bedroom
Precio por Unidad
- $619
Ver detalles y estimación de rentaTasas y precios del modelo
Rango de Precios Modelo
- $589 - $1,737
Detalles y características de la Unidad Full 3 Bedroom
Características Propias
- Amueblado
Características
- Accesible en sillas de ruedas (habitaciones)
- Aire acondicionado
- Conexiones para lavadora/secadora
- Ventiladores de techo
Cocina
- Lavavajillas
- Nevera
- Zona de eliminación de desechos
Espacio Vital
- Cubiertas de ventanas
- Techo abovedado
- Vestidores
Espacio al Aire Libre
- Patio
Tasas y precio de la unidad Full 3 Bedroom
Precio por Unidad
- $1,737
Ver detalles y estimación de rentaTasas y precios del modelo
Rango de Precios Modelo
- $589 - $1,737
Modelo de apartamento: Cambridge B - StationDesde $5893 Dormitorios, 2 Baños, 1000 sq ftDisponible Ahora![]()
Cambridge B - Station - Plano 1 ![]()
Cambridge B - Station - Plano 2 Unidad de apartamento: Full 3 BedroomModelo de apartamento: Cambridge B - Station$5893 Dormitorios, 2 Baños, 1000 sq ftDisponible AhoraUnidad de apartamento: Private BedroomModelo de apartamento: Cambridge B - Station$6193 Dormitorios, 2 Baños, 1000 sq ftDisponible AhoraUnidad de apartamento: Full 3 BedroomModelo de apartamento: Cambridge B - Station$1,7373 Dormitorios, 2 Baños, 1000 sq ftDisponible August 21, 2026Cambridge A Renovated - Station
Desde $609
3 Dormitorios, 2 Baños, 960 pies²Disponible AhoraGalería del Modelo
Planos
Detalles de Diponibilidad
Precio Fecha Disponibilidad Unidad Pies² Ver Detalles $609/persona Disponible Ahora Private Bedroom 960 $639/persona Disponible Ahora Private Master Bedroom 960 $609/persona August 21, 2026 Private Bedroom 960 Características y Comodidades de Modelo
Características
- Accesible en sillas de ruedas (habitaciones)
- Aire acondicionado
- Conexiones para lavadora/secadora
- Ventiladores de techo
Cocina
- Lavavajillas
- Nevera
- Zona de eliminación de desechos
Espacio Vital
- Cubiertas de ventanas
- Techo abovedado
- Vestidores
Espacio al Aire Libre
- Patio
Servicios
- Amueblado
Tasas y precios del modelo
Rango de Precios Modelo
- $609 - $639
Detalles y características de la Unidad Private Bedroom
Características Propias
- Amueblado
Características
- Accesible en sillas de ruedas (habitaciones)
- Aire acondicionado
- Conexiones para lavadora/secadora
- Ventiladores de techo
Cocina
- Lavavajillas
- Nevera
- Zona de eliminación de desechos
Espacio Vital
- Cubiertas de ventanas
- Techo abovedado
- Vestidores
Espacio al Aire Libre
- Patio
Tasas y precio de la unidad Private Bedroom
Precio por Unidad
- $609
Ver detalles y estimación de rentaTasas y precios del modelo
Rango de Precios Modelo
- $609 - $639
Detalles y características de la Unidad Private Master Bedroom
Características
- Accesible en sillas de ruedas (habitaciones)
- Aire acondicionado
- Conexiones para lavadora/secadora
- Ventiladores de techo
Cocina
- Lavavajillas
- Nevera
- Zona de eliminación de desechos
Espacio Vital
- Cubiertas de ventanas
- Techo abovedado
- Vestidores
Espacio al Aire Libre
- Patio
Servicios
- Amueblado
Tasas y precio de la unidad Private Master Bedroom
Precio por Unidad
- $639
Ver detalles y estimación de rentaTasas y precios del modelo
Rango de Precios Modelo
- $609 - $639
Detalles y características de la Unidad Private Bedroom
Características Propias
- Amueblado
Características
- Accesible en sillas de ruedas (habitaciones)
- Aire acondicionado
- Conexiones para lavadora/secadora
- Ventiladores de techo
Cocina
- Lavavajillas
- Nevera
- Zona de eliminación de desechos
Espacio Vital
- Cubiertas de ventanas
- Techo abovedado
- Vestidores
Espacio al Aire Libre
- Patio
Tasas y precio de la unidad Private Bedroom
Precio por Unidad
- $609
Ver detalles y estimación de rentaTasas y precios del modelo
Rango de Precios Modelo
- $609 - $639
Modelo de apartamento: Cambridge A Renovated - StationDesde $6093 Dormitorios, 2 Baños, 960 sq ftDisponible Ahora![]()
Cambridge A Renovated - Station - Plano Unidad de apartamento: Private BedroomModelo de apartamento: Cambridge A Renovated - Station$6093 Dormitorios, 2 Baños, up to 960 sq ftDisponible AhoraUnidad de apartamento: Private Master BedroomModelo de apartamento: Cambridge A Renovated - Station$6393 Dormitorios, 2 Baños, up to 960 sq ftDisponible AhoraUnidad de apartamento: Private BedroomModelo de apartamento: Cambridge A Renovated - Station$6093 Dormitorios, 2 Baños, up to 960 sq ftDisponible August 21, 2026Hendrick A Renovated - Station
Desde $609
3 Dormitorios, 2 Baños, 1200 pies²Disponible AhoraGalería del Modelo
Planos
Detalles de Diponibilidad
Precio Fecha Disponibilidad Unidad Pies² Ver Detalles $609/persona Disponible Ahora Private Bedroom 1200 $639/persona Disponible Ahora Private Master Bedroom 1200 $609/persona August 21, 2026 Private Bedroom 1200 Características y Comodidades de Modelo
Características
- Accesible en sillas de ruedas (habitaciones)
- Aire acondicionado
- Conexiones para lavadora/secadora
- Ventiladores de techo
Cocina
- Lavavajillas
- Nevera
- Zona de eliminación de desechos
Espacio Vital
- Cubiertas de ventanas
- Techo abovedado
- Vestidores
Espacio al Aire Libre
- Patio
Servicios
- Amueblado
Tasas y precios del modelo
Rango de Precios Modelo
- $609 - $639
Detalles y características de la Unidad Private Bedroom
Características Propias
- Amueblado
Características
- Accesible en sillas de ruedas (habitaciones)
- Aire acondicionado
- Conexiones para lavadora/secadora
- Ventiladores de techo
Cocina
- Lavavajillas
- Nevera
- Zona de eliminación de desechos
Espacio Vital
- Cubiertas de ventanas
- Techo abovedado
- Vestidores
Espacio al Aire Libre
- Patio
Tasas y precio de la unidad Private Bedroom
Precio por Unidad
- $609
Ver detalles y estimación de rentaTasas y precios del modelo
Rango de Precios Modelo
- $609 - $639
Detalles y características de la Unidad Private Master Bedroom
Características Propias
- Amueblado
Características
- Accesible en sillas de ruedas (habitaciones)
- Aire acondicionado
- Conexiones para lavadora/secadora
- Ventiladores de techo
Cocina
- Lavavajillas
- Nevera
- Zona de eliminación de desechos
Espacio Vital
- Cubiertas de ventanas
- Techo abovedado
- Vestidores
Espacio al Aire Libre
- Patio
Tasas y precio de la unidad Private Master Bedroom
Precio por Unidad
- $639
Ver detalles y estimación de rentaTasas y precios del modelo
Rango de Precios Modelo
- $609 - $639
Detalles y características de la Unidad Private Bedroom
Características Propias
- Amueblado
Características
- Accesible en sillas de ruedas (habitaciones)
- Aire acondicionado
- Conexiones para lavadora/secadora
- Ventiladores de techo
Cocina
- Lavavajillas
- Nevera
- Zona de eliminación de desechos
Espacio Vital
- Cubiertas de ventanas
- Techo abovedado
- Vestidores
Espacio al Aire Libre
- Patio
Tasas y precio de la unidad Private Bedroom
Precio por Unidad
- $609
Ver detalles y estimación de rentaTasas y precios del modelo
Rango de Precios Modelo
- $609 - $639
Modelo de apartamento: Hendrick A Renovated - StationDesde $6093 Dormitorios, 2 Baños, 1200 sq ftDisponible Ahora![]()
Hendrick A Renovated - Station - Plano 1 ![]()
Hendrick A Renovated - Station - Plano 2 ![]()
Hendrick A Renovated - Station - Plano 3 ![]()
Hendrick A Renovated - Station - Plano 4 Unidad de apartamento: Private BedroomModelo de apartamento: Hendrick A Renovated - Station$6093 Dormitorios, 2 Baños, up to 1200 sq ftDisponible AhoraUnidad de apartamento: Private Master BedroomModelo de apartamento: Hendrick A Renovated - Station$6393 Dormitorios, 2 Baños, up to 1200 sq ftDisponible AhoraUnidad de apartamento: Private BedroomModelo de apartamento: Hendrick A Renovated - Station$6093 Dormitorios, 2 Baños, up to 1200 sq ftDisponible August 21, 2026Hendrick B Renovated - Station
$619
3 Dormitorios, 2 Baños, 1370 pies²Disponible AhoraGalería del Modelo
Planos
Detalles de Diponibilidad
Precio Fecha Disponibilidad Unidad Pies² Ver Detalles $619/persona Disponible Ahora Private Bedroom 1370 $619/persona August 21, 2026 Private Bedroom 1370 Características y Comodidades de Modelo
Características
- Accesible en sillas de ruedas (habitaciones)
- Aire acondicionado
- Conexiones para lavadora/secadora
- Ventiladores de techo
Cocina
- Lavavajillas
- Nevera
- Zona de eliminación de desechos
Espacio Vital
- Cubiertas de ventanas
- Techo abovedado
- Vestidores
Espacio al Aire Libre
- Patio
Servicios
- Amueblado
Tasas y precios del modelo
Precio del Modelo
- $619
Detalles y características de la Unidad Private Bedroom
Características Propias
- Amueblado
Características
- Accesible en sillas de ruedas (habitaciones)
- Aire acondicionado
- Conexiones para lavadora/secadora
- Ventiladores de techo
Cocina
- Lavavajillas
- Nevera
- Zona de eliminación de desechos
Espacio Vital
- Cubiertas de ventanas
- Techo abovedado
- Vestidores
Espacio al Aire Libre
- Patio
Tasas y precio de la unidad Private Bedroom
Precio por Unidad
- $619
Ver detalles y estimación de rentaTasas y precios del modelo
Precio
- $619
Detalles y características de la Unidad Private Bedroom
Características
- Accesible en sillas de ruedas (habitaciones)
- Aire acondicionado
- Conexiones para lavadora/secadora
- Ventiladores de techo
Cocina
- Lavavajillas
- Nevera
- Zona de eliminación de desechos
Espacio Vital
- Cubiertas de ventanas
- Techo abovedado
- Vestidores
Espacio al Aire Libre
- Patio
Servicios
- Amueblado
Tasas y precio de la unidad Private Bedroom
Precio por Unidad
- $619
Ver detalles y estimación de rentaTasas y precios del modelo
Precio
- $619
Modelo de apartamento: Hendrick B Renovated - Station$6193 Dormitorios, 2 Baños, 1370 sq ftDisponible Ahora![]()
Hendrick B Renovated - Station - Plano 1 ![]()
Hendrick B Renovated - Station - Plano 2 ![]()
Hendrick B Renovated - Station - Plano 3 ![]()
Hendrick B Renovated - Station - Plano 4 Unidad de apartamento: Private BedroomModelo de apartamento: Hendrick B Renovated - Station$6193 Dormitorios, 2 Baños, up to 1370 sq ftDisponible AhoraUnidad de apartamento: Private BedroomModelo de apartamento: Hendrick B Renovated - Station$6193 Dormitorios, 2 Baños, up to 1370 sq ftDisponible August 21, 2026Reagen - Station
$619
3 Dormitorios, 3 Baños, 1372 pies²Disponible AhoraGalería del Modelo
Planos
Detalles de Diponibilidad
Precio Fecha Disponibilidad Unidad Pies² Ver Detalles $619/persona Disponible Ahora Private Bedroom 1372 $619/persona June 8, 2026 Private Bedroom 1372 $619/persona August 21, 2026 Private Bedroom 1372 Características y Comodidades de Modelo
Características
- Accesible en sillas de ruedas (habitaciones)
- Aire acondicionado
- Conexiones para lavadora/secadora
- Ventiladores de techo
Cocina
- Lavavajillas
- Nevera
- Zona de eliminación de desechos
Espacio Vital
- Cubiertas de ventanas
- Techo abovedado
- Vestidores
Espacio al Aire Libre
- Patio
Servicios
- Amueblado
Tasas y precios del modelo
Precio del Modelo
- $619
Detalles y características de la Unidad Private Bedroom
Características Propias
- Amueblado
Características
- Accesible en sillas de ruedas (habitaciones)
- Aire acondicionado
- Conexiones para lavadora/secadora
- Ventiladores de techo
Cocina
- Lavavajillas
- Nevera
- Zona de eliminación de desechos
Espacio Vital
- Cubiertas de ventanas
- Techo abovedado
- Vestidores
Espacio al Aire Libre
- Patio
Tasas y precio de la unidad Private Bedroom
Precio por Unidad
- $619
Ver detalles y estimación de rentaTasas y precios del modelo
Precio
- $619
Detalles y características de la Unidad Private Bedroom
Características Propias
- Amueblado
Características
- Accesible en sillas de ruedas (habitaciones)
- Aire acondicionado
- Conexiones para lavadora/secadora
- Ventiladores de techo
Cocina
- Lavavajillas
- Nevera
- Zona de eliminación de desechos
Espacio Vital
- Cubiertas de ventanas
- Techo abovedado
- Vestidores
Espacio al Aire Libre
- Patio
Tasas y precio de la unidad Private Bedroom
Precio por Unidad
- $619
Ver detalles y estimación de rentaTasas y precios del modelo
Precio
- $619
Detalles y características de la Unidad Private Bedroom
Características
- Accesible en sillas de ruedas (habitaciones)
- Aire acondicionado
- Conexiones para lavadora/secadora
- Ventiladores de techo
Cocina
- Lavavajillas
- Nevera
- Zona de eliminación de desechos
Espacio Vital
- Cubiertas de ventanas
- Techo abovedado
- Vestidores
Espacio al Aire Libre
- Patio
Servicios
- Amueblado
Tasas y precio de la unidad Private Bedroom
Precio por Unidad
- $619
Ver detalles y estimación de rentaTasas y precios del modelo
Precio
- $619
Modelo de apartamento: Reagen - Station$6193 Dormitorios, 3 Baños, 1372 sq ftDisponible Ahora![]()
Reagen - Station - Plano 1 ![]()
Reagen - Station - Plano 2 ![]()
Reagen - Station - Plano 3 ![]()
Reagen - Station - Plano 4 Unidad de apartamento: Private BedroomModelo de apartamento: Reagen - Station$6193 Dormitorios, 3 Baños, up to 1372 sq ftDisponible AhoraUnidad de apartamento: Private BedroomModelo de apartamento: Reagen - Station$6193 Dormitorios, 3 Baños, up to 1372 sq ftDisponible June 8, 2026Unidad de apartamento: Private BedroomModelo de apartamento: Reagen - Station$6193 Dormitorios, 3 Baños, up to 1372 sq ftDisponible August 21, 2026Cambridge B Renovated - Station
Desde $629
3 Dormitorios, 2 Baños, 1000 pies²Disponible AhoraGalería del Modelo
Planos
Detalles de Diponibilidad
Precio Fecha Disponibilidad Unidad Pies² Ver Detalles $1,767/persona Disponible Ahora Full 3 Bedroom 1000 $629/persona Disponible Ahora Private Bedroom 1000 $659/persona Disponible Ahora Private Master Bedroom 1000 Características y Comodidades de Modelo
Características
- Accesible en sillas de ruedas (habitaciones)
- Aire acondicionado
- Conexiones para lavadora/secadora
- Ventiladores de techo
Cocina
- Lavavajillas
- Nevera
- Zona de eliminación de desechos
Espacio Vital
- Cubiertas de ventanas
- Techo abovedado
- Vestidores
Espacio al Aire Libre
- Patio
Servicios
- Amueblado
Tasas y precios del modelo
Rango de Precios Modelo
- $629 - $1,767
Detalles y características de la Unidad Full 3 Bedroom
Características
- Accesible en sillas de ruedas (habitaciones)
- Aire acondicionado
- Conexiones para lavadora/secadora
- Ventiladores de techo
Cocina
- Lavavajillas
- Nevera
- Zona de eliminación de desechos
Espacio Vital
- Cubiertas de ventanas
- Techo abovedado
- Vestidores
Espacio al Aire Libre
- Patio
Servicios
- Amueblado
Tasas y precio de la unidad Full 3 Bedroom
Precio por Unidad
- $1,767
Ver detalles y estimación de rentaTasas y precios del modelo
Rango de Precios Modelo
- $629 - $1,767
Detalles y características de la Unidad Private Bedroom
Características Propias
- Amueblado
Características
- Accesible en sillas de ruedas (habitaciones)
- Aire acondicionado
- Conexiones para lavadora/secadora
- Ventiladores de techo
Cocina
- Lavavajillas
- Nevera
- Zona de eliminación de desechos
Espacio Vital
- Cubiertas de ventanas
- Techo abovedado
- Vestidores
Espacio al Aire Libre
- Patio
Tasas y precio de la unidad Private Bedroom
Precio por Unidad
- $629
Ver detalles y estimación de rentaTasas y precios del modelo
Rango de Precios Modelo
- $629 - $1,767
Detalles y características de la Unidad Private Master Bedroom
Características Propias
- Amueblado
Características
- Accesible en sillas de ruedas (habitaciones)
- Aire acondicionado
- Conexiones para lavadora/secadora
- Ventiladores de techo
Cocina
- Lavavajillas
- Nevera
- Zona de eliminación de desechos
Espacio Vital
- Cubiertas de ventanas
- Techo abovedado
- Vestidores
Espacio al Aire Libre
- Patio
Tasas y precio de la unidad Private Master Bedroom
Precio por Unidad
- $659
Ver detalles y estimación de rentaTasas y precios del modelo
Rango de Precios Modelo
- $629 - $1,767
Modelo de apartamento: Cambridge B Renovated - StationDesde $6293 Dormitorios, 2 Baños, 1000 sq ftDisponible Ahora![]()
Cambridge B Renovated - Station - Plano Unidad de apartamento: Full 3 BedroomModelo de apartamento: Cambridge B Renovated - Station$1,7673 Dormitorios, 2 Baños, up to 1000 sq ftDisponible AhoraUnidad de apartamento: Private BedroomModelo de apartamento: Cambridge B Renovated - Station$6293 Dormitorios, 2 Baños, up to 1000 sq ftDisponible AhoraUnidad de apartamento: Private Master BedroomModelo de apartamento: Cambridge B Renovated - Station$6593 Dormitorios, 2 Baños, up to 1000 sq ftDisponible AhoraReagen Renovated - Station
$659
3 Dormitorios, 3 Baños, 1372 pies²Disponible AhoraGalería del Modelo
Planos
Detalles de Diponibilidad
Precio Fecha Disponibilidad Unidad Pies² Ver Detalles $659/persona Disponible Ahora Private Bedroom 1372 $659/persona August 21, 2026 Private Bedroom 1372 Características y Comodidades de Modelo
Características
- Accesible en sillas de ruedas (habitaciones)
- Aire acondicionado
- Conexiones para lavadora/secadora
- Ventiladores de techo
Cocina
- Lavavajillas
- Nevera
- Zona de eliminación de desechos
Espacio Vital
- Cubiertas de ventanas
- Techo abovedado
- Vestidores
Espacio al Aire Libre
- Patio
Servicios
- Amueblado
Tasas y precios del modelo
Precio del Modelo
- $659
Detalles y características de la Unidad Private Bedroom
Características Propias
- Amueblado
Características
- Accesible en sillas de ruedas (habitaciones)
- Aire acondicionado
- Conexiones para lavadora/secadora
- Ventiladores de techo
Cocina
- Lavavajillas
- Nevera
- Zona de eliminación de desechos
Espacio Vital
- Cubiertas de ventanas
- Techo abovedado
- Vestidores
Espacio al Aire Libre
- Patio
Tasas y precio de la unidad Private Bedroom
Precio por Unidad
- $659
Ver detalles y estimación de rentaTasas y precios del modelo
Precio
- $659
Detalles y características de la Unidad Private Bedroom
Características Propias
- Amueblado
Características
- Accesible en sillas de ruedas (habitaciones)
- Aire acondicionado
- Conexiones para lavadora/secadora
- Ventiladores de techo
Cocina
- Lavavajillas
- Nevera
- Zona de eliminación de desechos
Espacio Vital
- Cubiertas de ventanas
- Techo abovedado
- Vestidores
Espacio al Aire Libre
- Patio
Tasas y precio de la unidad Private Bedroom
Precio por Unidad
- $659
Ver detalles y estimación de rentaTasas y precios del modelo
Precio
- $659
Modelo de apartamento: Reagen Renovated - Station$6593 Dormitorios, 3 Baños, 1372 sq ftDisponible Ahora![]()
Reagen Renovated - Station - Plano 1 ![]()
Reagen Renovated - Station - Plano 2 ![]()
Reagen Renovated - Station - Plano 3 Unidad de apartamento: Private BedroomModelo de apartamento: Reagen Renovated - Station$6593 Dormitorios, 3 Baños, up to 1372 sq ftDisponible AhoraUnidad de apartamento: Private BedroomModelo de apartamento: Reagen Renovated - Station$6593 Dormitorios, 3 Baños, up to 1372 sq ftDisponible August 21, 20264 Dormitorios
Langley A - Station
Desde $499
4 Dormitorios, 2 Baños, 1430 pies²Disponible AhoraGalería del Modelo
Planos
Detalles de Diponibilidad
Precio Fecha Disponibilidad Unidad Pies² Ver Detalles $499/persona Disponible Ahora Full 4 Bedroom 1430 $1,936/persona August 21, 2026 Full 4 Bedroom 1430 $499/persona August 21, 2026 Private Bedroom 1430 Características y Comodidades de Modelo
Características
- Accesible en sillas de ruedas (habitaciones)
- Aire acondicionado
- Conexiones para lavadora/secadora
- Ventiladores de techo
Cocina
- Lavavajillas
- Nevera
- Zona de eliminación de desechos
Espacio Vital
- Cubiertas de ventanas
- Techo abovedado
- Vestidores
Espacio al Aire Libre
- Patio
Servicios
- Amueblado
Tasas y precios del modelo
Rango de Precios Modelo
- $499 - $1,936
Detalles y características de la Unidad Full 4 Bedroom
Características
- Accesible en sillas de ruedas (habitaciones)
- Aire acondicionado
- Conexiones para lavadora/secadora
- Ventiladores de techo
Cocina
- Lavavajillas
- Nevera
- Zona de eliminación de desechos
Espacio Vital
- Cubiertas de ventanas
- Techo abovedado
- Vestidores
Espacio al Aire Libre
- Patio
Servicios
- Amueblado
Tasas y precio de la unidad Full 4 Bedroom
Precio por Unidad
- $499
Ver detalles y estimación de rentaTasas y precios del modelo
Rango de Precios Modelo
- $499 - $1,936
Detalles y características de la Unidad Full 4 Bedroom
Características Propias
- Amueblado
Características
- Accesible en sillas de ruedas (habitaciones)
- Aire acondicionado
- Conexiones para lavadora/secadora
- Ventiladores de techo
Cocina
- Lavavajillas
- Nevera
- Zona de eliminación de desechos
Espacio Vital
- Cubiertas de ventanas
- Techo abovedado
- Vestidores
Espacio al Aire Libre
- Patio
Tasas y precio de la unidad Full 4 Bedroom
Precio por Unidad
- $1,936
Ver detalles y estimación de rentaTasas y precios del modelo
Rango de Precios Modelo
- $499 - $1,936
Detalles y características de la Unidad Private Bedroom
Características Propias
- Amueblado
Características
- Accesible en sillas de ruedas (habitaciones)
- Aire acondicionado
- Conexiones para lavadora/secadora
- Ventiladores de techo
Cocina
- Lavavajillas
- Nevera
- Zona de eliminación de desechos
Espacio Vital
- Cubiertas de ventanas
- Techo abovedado
- Vestidores
Espacio al Aire Libre
- Patio
Tasas y precio de la unidad Private Bedroom
Precio por Unidad
- $499
Ver detalles y estimación de rentaTasas y precios del modelo
Rango de Precios Modelo
- $499 - $1,936
Modelo de apartamento: Langley A - StationDesde $4994 Dormitorios, 2 Baños, 1430 sq ftDisponible Ahora![]()
Langley A - Station - Plano 1 ![]()
Langley A - Station - Plano 2 ![]()
Langley A - Station - Plano 3 ![]()
Langley A - Station - Plano 4 Unidad de apartamento: Full 4 BedroomModelo de apartamento: Langley A - Station$4994 Dormitorios, 2 Baños, 1430 sq ftDisponible AhoraUnidad de apartamento: Full 4 BedroomModelo de apartamento: Langley A - Station$1,9364 Dormitorios, 2 Baños, 1430 sq ftDisponible August 21, 2026Unidad de apartamento: Private BedroomModelo de apartamento: Langley A - Station$4994 Dormitorios, 2 Baños, 1430 sq ftDisponible August 21, 2026Langley A Renovated - Station
Desde $539
4 Dormitorios, 2 Baños, 1430 pies²Disponible AhoraGalería del Modelo
Planos
Detalles de Diponibilidad
Precio Fecha Disponibilidad Unidad Pies² Ver Detalles $539/persona Disponible Ahora Full 4 Bedroom 1430 $2,076/persona August 21, 2026 Full 4 Bedroom 1430 $539/persona August 21, 2026 Private Bedroom 1430 Características y Comodidades de Modelo
Características
- Accesible en sillas de ruedas (habitaciones)
- Aire acondicionado
- Conexiones para lavadora/secadora
- Ventiladores de techo
Cocina
- Lavavajillas
- Nevera
- Zona de eliminación de desechos
Espacio Vital
- Cubiertas de ventanas
- Techo abovedado
- Vestidores
Espacio al Aire Libre
- Patio
Servicios
- Amueblado
Tasas y precios del modelo
Rango de Precios Modelo
- $539 - $2,076
Detalles y características de la Unidad Full 4 Bedroom
Características Propias
- Amueblado
Características
- Accesible en sillas de ruedas (habitaciones)
- Aire acondicionado
- Conexiones para lavadora/secadora
- Ventiladores de techo
Cocina
- Lavavajillas
- Nevera
- Zona de eliminación de desechos
Espacio Vital
- Cubiertas de ventanas
- Techo abovedado
- Vestidores
Espacio al Aire Libre
- Patio
Tasas y precio de la unidad Full 4 Bedroom
Precio por Unidad
- $539
Ver detalles y estimación de rentaTasas y precios del modelo
Rango de Precios Modelo
- $539 - $2,076
Detalles y características de la Unidad Full 4 Bedroom
Características
- Accesible en sillas de ruedas (habitaciones)
- Aire acondicionado
- Conexiones para lavadora/secadora
- Ventiladores de techo
Cocina
- Lavavajillas
- Nevera
- Zona de eliminación de desechos
Espacio Vital
- Cubiertas de ventanas
- Techo abovedado
- Vestidores
Espacio al Aire Libre
- Patio
Servicios
- Amueblado
Tasas y precio de la unidad Full 4 Bedroom
Precio por Unidad
- $2,076
Ver detalles y estimación de rentaTasas y precios del modelo
Rango de Precios Modelo
- $539 - $2,076
Detalles y características de la Unidad Private Bedroom
Características Propias
- Amueblado
Características
- Accesible en sillas de ruedas (habitaciones)
- Aire acondicionado
- Conexiones para lavadora/secadora
- Ventiladores de techo
Cocina
- Lavavajillas
- Nevera
- Zona de eliminación de desechos
Espacio Vital
- Cubiertas de ventanas
- Techo abovedado
- Vestidores
Espacio al Aire Libre
- Patio
Tasas y precio de la unidad Private Bedroom
Precio por Unidad
- $539
Ver detalles y estimación de rentaTasas y precios del modelo
Rango de Precios Modelo
- $539 - $2,076
Modelo de apartamento: Langley A Renovated - StationDesde $5394 Dormitorios, 2 Baños, 1430 sq ftDisponible Ahora![]()
Langley A Renovated - Station - Plano 1 ![]()
Langley A Renovated - Station - Plano 2 ![]()
Langley A Renovated - Station - Plano 3 ![]()
Langley A Renovated - Station - Plano 4 Unidad de apartamento: Full 4 BedroomModelo de apartamento: Langley A Renovated - Station$5394 Dormitorios, 2 Baños, up to 1430 sq ftDisponible AhoraUnidad de apartamento: Full 4 BedroomModelo de apartamento: Langley A Renovated - Station$2,0764 Dormitorios, 2 Baños, up to 1430 sq ftDisponible August 21, 2026Unidad de apartamento: Private BedroomModelo de apartamento: Langley A Renovated - Station$5394 Dormitorios, 2 Baños, up to 1430 sq ftDisponible August 21, 2026Langley B - Station
$549
4 Dormitorios, 2 Baños, 1500 pies²Disponible AhoraEl más grandeEsta opción tiene las unidades más grandes para este modeloGalería del Modelo
Planos
Detalles de Diponibilidad
Precio Fecha Disponibilidad Unidad Pies² $549/persona Disponible Ahora Private Bedroom 1500 Detalles y características de la Unidad Private Bedroom
Características Propias
- Amueblado
Características
- Accesible en sillas de ruedas (habitaciones)
- Aire acondicionado
- Conexiones para lavadora/secadora
- Ventiladores de techo
Cocina
- Lavavajillas
- Nevera
- Zona de eliminación de desechos
Espacio Vital
- Cubiertas de ventanas
- Techo abovedado
- Vestidores
Espacio al Aire Libre
- Patio
Tasas y precio de la unidad Private Bedroom
Precio por Unidad
- $549
Ver detalles y estimación de rentaTasas y precios del modelo
Precio
- $549
Modelo de apartamento: Langley B - Station$5494 Dormitorios, 2 Baños, 1500 sq ftDisponible Ahora![]()
Langley B - Station - Plano 1 ![]()
Langley B - Station - Plano 2 ![]()
Langley B - Station - Plano 3 ![]()
Langley B - Station - Plano 4 Unidad de apartamento: Private BedroomModelo de apartamento: Langley B - Station$5494 Dormitorios, 2 Baños, 1500 sq ftDisponible AhoraFurnished Casy Renovated - Steinbeck
$519
4 Dormitorios, 2 Baños, up to 1300 pies²Disponible Aug 21Galería del Modelo
Planos
Detalles de Diponibilidad
Precio Fecha Disponibilidad Unidad Pies² $519 August 21, 2026 Private Bedroom 1300 Detalles y características de la Unidad Private Bedroom
Características Propias
- Amueblado
Características
- Accesible en sillas de ruedas (habitaciones)
- Aire acondicionado
- Conexiones para lavadora/secadora
- Ventiladores de techo
Cocina
- Lavavajillas
- Nevera
- Zona de eliminación de desechos
Espacio Vital
- Cubiertas de ventanas
- Techo abovedado
- Vestidores
Espacio al Aire Libre
- Patio
Tasas y precio de la unidad Private Bedroom
Precio por Unidad
- $519
Ver detalles y estimación de rentaTasas y precios del modelo
Precio
- $519
Modelo de apartamento: Furnished Casy Renovated - Steinbeck$5194 Dormitorios, 2 Baños, up to 1300 sq ftDisponible August 21, 2026![]()
Furnished Casy Renovated - Steinbeck - Plano 1 ![]()
Furnished Casy Renovated - Steinbeck - Plano 2 Unidad de apartamento: Private BedroomModelo de apartamento: Furnished Casy Renovated - Steinbeck$5194 Dormitorios, 2 Baños, up to 1300 sq ftDisponible August 21, 2026Strafford - Station
$519
4 Dormitorios, 2 Baños, 1372 pies²Disponible Aug 21Galería del Modelo
Planos
Detalles de Diponibilidad
Precio Fecha Disponibilidad Unidad Pies² $519/persona August 21, 2026 Private Bedroom 1372 Detalles y características de la Unidad Private Bedroom
Características Propias
- Amueblado
Características
- Accesible en sillas de ruedas (habitaciones)
- Aire acondicionado
- Conexiones para lavadora/secadora
- Ventiladores de techo
Cocina
- Lavavajillas
- Nevera
- Zona de eliminación de desechos
Espacio Vital
- Cubiertas de ventanas
- Techo abovedado
- Vestidores
Espacio al Aire Libre
- Patio
Tasas y precio de la unidad Private Bedroom
Precio por Unidad
- $519
Ver detalles y estimación de rentaTasas y precios del modelo
Precio
- $519
Modelo de apartamento: Strafford - Station$5194 Dormitorios, 2 Baños, 1372 sq ftDisponible August 21, 2026![]()
Strafford - Station - Plano 1 ![]()
Strafford - Station - Plano 2 Unidad de apartamento: Private BedroomModelo de apartamento: Strafford - Station$5194 Dormitorios, 2 Baños, 1372 sq ftDisponible August 21, 2026Tremont - Station
$479
4 Dormitorios, 2 Baños, 1450 pies²Disponible Aug 21El más baratoEsta opción tiene los precios más bajos para este modeloGalería del Modelo
Planos
Detalles de Diponibilidad
Precio Fecha Disponibilidad Unidad Pies² $479/persona August 21, 2026 Private Bedroom 1450 Detalles y características de la Unidad Private Bedroom
Características Propias
- Amueblado
Características
- Accesible en sillas de ruedas (habitaciones)
- Aire acondicionado
- Conexiones para lavadora/secadora
- Ventiladores de techo
Cocina
- Lavavajillas
- Nevera
- Zona de eliminación de desechos
Espacio Vital
- Cubiertas de ventanas
- Techo abovedado
- Vestidores
Espacio al Aire Libre
- Patio
Tasas y precio de la unidad Private Bedroom
Precio por Unidad
- $479
Ver detalles y estimación de rentaTasas y precios del modelo
Precio
- $479
Modelo de apartamento: Tremont - Station$4794 Dormitorios, 2 Baños, 1450 sq ftDisponible August 21, 2026![]()
Tremont - Station - Plano 1 ![]()
Tremont - Station - Plano 2 Unidad de apartamento: Private BedroomModelo de apartamento: Tremont - Station$4794 Dormitorios, 2 Baños, up to 1450 sq ftDisponible August 21, 2026Tremont Plus - Station
$539
4 Dormitorios, 2 Baños, 1450 pies²Disponible Aug 21Galería del Modelo
Planos
Detalles de Diponibilidad
Precio Fecha Disponibilidad Unidad Pies² $539/persona August 21, 2026 Private Bedroom 1450 Detalles y características de la Unidad Private Bedroom
Características Propias
- Amueblado
Características
- Accesible en sillas de ruedas (habitaciones)
- Aire acondicionado
- Conexiones para lavadora/secadora
- Ventiladores de techo
Cocina
- Lavavajillas
- Nevera
- Zona de eliminación de desechos
Espacio Vital
- Cubiertas de ventanas
- Techo abovedado
- Vestidores
Espacio al Aire Libre
- Patio
Tasas y precio de la unidad Private Bedroom
Precio por Unidad
- $539
Ver detalles y estimación de rentaTasas y precios del modelo
Precio
- $539
Modelo de apartamento: Tremont Plus - Station$5394 Dormitorios, 2 Baños, 1450 sq ftDisponible August 21, 2026![]()
Tremont Plus - Station - Plano 1 ![]()
Tremont Plus - Station - Plano 2 Unidad de apartamento: Private BedroomModelo de apartamento: Tremont Plus - Station$5394 Dormitorios, 2 Baños, up to 1450 sq ftDisponible August 21, 2026Watson - Station
Desde $509
4 Dormitorios, 3 Baños, 1364 pies²Disponible Aug 21Galería del Modelo
Planos
Detalles de Diponibilidad
Precio Fecha Disponibilidad Unidad Pies² Ver Detalles $509/persona August 21, 2026 Private Bedroom 1364 $579/persona August 21, 2026 Private Master Bedroom 1364 Características y Comodidades de Modelo
Características
- Accesible en sillas de ruedas (habitaciones)
- Aire acondicionado
- Conexiones para lavadora/secadora
- Ventiladores de techo
Cocina
- Lavavajillas
- Nevera
- Zona de eliminación de desechos
Espacio Vital
- Cubiertas de ventanas
- Techo abovedado
- Vestidores
Espacio al Aire Libre
- Patio
Servicios
- Amueblado
Tasas y precios del modelo
Rango de Precios Modelo
- $509 - $579
Detalles y características de la Unidad Private Bedroom
Características Propias
- Amueblado
Características
- Accesible en sillas de ruedas (habitaciones)
- Aire acondicionado
- Conexiones para lavadora/secadora
- Ventiladores de techo
Cocina
- Lavavajillas
- Nevera
- Zona de eliminación de desechos
Espacio Vital
- Cubiertas de ventanas
- Techo abovedado
- Vestidores
Espacio al Aire Libre
- Patio
Tasas y precio de la unidad Private Bedroom
Precio por Unidad
- $509
Ver detalles y estimación de rentaTasas y precios del modelo
Rango de Precios Modelo
- $509 - $579
Detalles y características de la Unidad Private Master Bedroom
Características Propias
- Amueblado
Características
- Accesible en sillas de ruedas (habitaciones)
- Aire acondicionado
- Conexiones para lavadora/secadora
- Ventiladores de techo
Cocina
- Lavavajillas
- Nevera
- Zona de eliminación de desechos
Espacio Vital
- Cubiertas de ventanas
- Techo abovedado
- Vestidores
Espacio al Aire Libre
- Patio
Tasas y precio de la unidad Private Master Bedroom
Precio por Unidad
- $579
Ver detalles y estimación de rentaTasas y precios del modelo
Rango de Precios Modelo
- $509 - $579
Modelo de apartamento: Watson - StationDesde $5094 Dormitorios, 3 Baños, 1364 sq ftDisponible August 21, 2026![]()
Watson - Station - Plano 1 ![]()
Watson - Station - Plano 2 Unidad de apartamento: Private BedroomModelo de apartamento: Watson - Station$5094 Dormitorios, 3 Baños, up to 1364 sq ftDisponible August 21, 2026Unidad de apartamento: Private Master BedroomModelo de apartamento: Watson - Station$5794 Dormitorios, 3 Baños, up to 1364 sq ftDisponible August 21, 20265 Dormitorios
York - Station
Desde $549
5 Dormitorios, 4 Baños, 1818 pies²Disponible AhoraGalería del Modelo
Planos
Detalles de Diponibilidad
Precio Fecha Disponibilidad Unidad Pies² Ver Detalles $549/persona Disponible Ahora Private Bedroom 1818 $579/persona Disponible Ahora Private Master Bedroom 1818 $549/persona August 21, 2026 Private Bedroom 1818 Características y Comodidades de Modelo
Características
- Accesible en sillas de ruedas (habitaciones)
- Aire acondicionado
- Conexiones para lavadora/secadora
- Ventiladores de techo
Cocina
- Lavavajillas
- Nevera
- Zona de eliminación de desechos
Espacio Vital
- Cubiertas de ventanas
- Techo abovedado
- Vestidores
Espacio al Aire Libre
- Patio
Servicios
- Amueblado
Tasas y precios del modelo
Rango de Precios Modelo
- $549 - $579
Detalles y características de la Unidad Private Bedroom
Características
- Accesible en sillas de ruedas (habitaciones)
- Aire acondicionado
- Conexiones para lavadora/secadora
- Ventiladores de techo
Cocina
- Lavavajillas
- Nevera
- Zona de eliminación de desechos
Espacio Vital
- Cubiertas de ventanas
- Techo abovedado
- Vestidores
Espacio al Aire Libre
- Patio
Servicios
- Amueblado
Tasas y precio de la unidad Private Bedroom
Precio por Unidad
- $549
Ver detalles y estimación de rentaTasas y precios del modelo
Rango de Precios Modelo
- $549 - $579
Detalles y características de la Unidad Private Master Bedroom
Características Propias
- Amueblado
Características
- Accesible en sillas de ruedas (habitaciones)
- Aire acondicionado
- Conexiones para lavadora/secadora
- Ventiladores de techo
Cocina
- Lavavajillas
- Nevera
- Zona de eliminación de desechos
Espacio Vital
- Cubiertas de ventanas
- Techo abovedado
- Vestidores
Espacio al Aire Libre
- Patio
Tasas y precio de la unidad Private Master Bedroom
Precio por Unidad
- $579
Ver detalles y estimación de rentaTasas y precios del modelo
Rango de Precios Modelo
- $549 - $579
Detalles y características de la Unidad Private Bedroom
Características Propias
- Amueblado
Características
- Accesible en sillas de ruedas (habitaciones)
- Aire acondicionado
- Conexiones para lavadora/secadora
- Ventiladores de techo
Cocina
- Lavavajillas
- Nevera
- Zona de eliminación de desechos
Espacio Vital
- Cubiertas de ventanas
- Techo abovedado
- Vestidores
Espacio al Aire Libre
- Patio
Tasas y precio de la unidad Private Bedroom
Precio por Unidad
- $549
Ver detalles y estimación de rentaTasas y precios del modelo
Rango de Precios Modelo
- $549 - $579
Modelo de apartamento: York - StationDesde $5495 Dormitorios, 4 Baños, 1818 sq ftDisponible Ahora![]()
York - Station - Plano Unidad de apartamento: Private BedroomModelo de apartamento: York - Station$5495 Dormitorios, 4 Baños, up to 1818 sq ftDisponible AhoraUnidad de apartamento: Private Master BedroomModelo de apartamento: York - Station$5795 Dormitorios, 4 Baños, up to 1818 sq ftDisponible AhoraUnidad de apartamento: Private BedroomModelo de apartamento: York - Station$5495 Dormitorios, 4 Baños, up to 1818 sq ftDisponible August 21, 2026
Programar una Visita
3D Tours
Información de la Comunidad
- Unidades
- Plantas
- Construido en
- Renovado en
- Ver el sitio web de la propiedad
Términos de Arrendamiento
- 12 Meses
- Opciones de Alquiler de Corta Duración
Fees and Policies
Las tarifas que se indican a continuación son proporcionadas por la comunidad y pueden excluir servicios públicos o complementos. Todos los pagos se realizan directamente a la propiedad y no son reembolsables, salvo que se especifique lo contrario. Usa la Calculadora de Costos para determinar los gastos según tus necesidades.
Tasas Requeridas
Básicos de una sola vez
- Pagadero en el momento de la solicitud
- Application Fee Per ApplicantiCharged per applicant.$50.00
- A pagar en el momento de la mudanza
- Administrative FeeiCharged per unit.$0.00
Other Fees and Policies
Tasas por mascotas
- Cat
- One-Time Pet FeeiMax of 2. Charged Per Pet.$200-$200
- Monthly Pet FeeiMax of 2. Charged Per Pet.$25.00/mes
- One-Time Pet FeeiMax of 2. Charged Per Pet.$200-$200
- Monthly Pet FeeiMax of 2. Charged Per Pet.$25.00/mes
Breed Restrictions: Pit Bull Terrier, StaffordshireTerrier, Doberman Pinscher, Rottweiler, Presa Canarios, Akita, Alaskan Malamute, Wolf-hybrid, Mastiff, Chow Chow
Max of 2. Dogs Welcome (some breed restriction see below)<br />Maximum Pets per Apartment: 2<br />Pet Fee per Pet: $200 (non refundable)<br />Monthly Pet Rent per Pet: $25.
Tasas de almacenamiento
- Storage Unit
- Storage DepositiCharged per rentable item.$0.00
- Storage RentiCharged per rentable item.$50.00/mes
Parking Info and Fees
- Covered
Exención de responsabilidad sobre las tasas de propiedad: Based on community-supplied data and independent market research. Subject to change without notice. May exclude fees for mandatory or optional services and usage-based utilities.
Características y Facilidades
Características Propias
- Disponibilidad las 24 horas
- DisabilityAccess
- Acceso a Internet: Alta velocidad
- Two Bark Parks
Servicios
- Mantenimiento En El Lugar
- Servicio De Paquetería
- Property Manager En El Lugar
- Transporte Público
- Acceso Las 24 Horas
- Instalaciones De Lavandería
Características de la Comunidad
- Centro De Negocios
- Casa Club
- Salón
- Salas De Conferencias
- Sin Ascensor
Características al Aire Libre
- Patio
Recreación
- Gimnasio
- Cancha De Baloncesto
- Cancha De Voleibol
- Piscina
Características de la Cocina
- Electrodomésticos De Acero Inoxidable
Características de la Sala de Estar
- Sala De Entretenimiento
- Suelos De Madera Maciza

Mapa
- Compras
- Universidades
- Supermercado
- Médicos

Mapa
Horario e Información de Contacto
| Lunes | 9:00 am–7:00 pm |
| Martes | 9:00 am–7:00 pm |
| Miércoles | 9:00 am–7:00 pm |
| Jueves | 9:00 am–7:00 pm |
| Viernes | 9:00 am–7:00 pm |
| Sábado | 10:00 am–5:00 pm |
| Domingo | 1:00 pm–5:00 pm |
Preguntas Frecuentes sobre The Social West Ames®
¿Donde se encuentra The Social West Ames®?
The Social West Ames® se encuentran en 1320 Coconino Rd cerca de la zona West Ames en Ames, IA
¿Cuál es el rango de alquiler vigente en The Social West Ames®?
El rango de alquiler de Apartamentos 1 dormitorios a 5 dormitorios en The Social West Ames® van desde $479 a $2,076
¿Qué horarios tiene la oficina de alquiler?
- El horario de oficina de The Social West Ames® es
- Lunes 9:00 am–7:00 pm
- Martes 9:00 am–7:00 pm
- Miércoles 9:00 am–7:00 pm
- Jueves 9:00 am–7:00 pm
- Viernes 9:00 am–7:00 pm
- Sábado 10:00 am–5:00 pm
- Domingo 1:00 pm–5:00 pm
¿Se permiten mascotas?
Llámenos hoy para conocer nuestra política de mascotas y saber si las aceptamos.
Calificación Según Estilo de Vida:
Conocer más sobre la búsqueda de estilos de vidaOpiniones y valoraciones de Inquilinos
Verified RenterEnviado por un residente verificado de la comunidad de apartamentos. Los residentes participantes pueden recibir puntos de recompensa a cambio de publicar una reseña durante su período de alquiler, independientemente de la naturaleza de la reseña
March 28, 2026Great place to live. Quiet Neighbors. Very convenient for me to go to work. Less than 10 minutes from work. Quick answers to questions. Maintenance is quick and Nice.Reseña de Apartments.com
Verified RenterEnviado por un residente verificado de la comunidad de apartamentos. Los residentes participantes pueden recibir puntos de recompensa a cambio de publicar una reseña durante su período de alquiler, independientemente de la naturaleza de la reseña
March 25, 2026Overall the apartment and community is great! Everyone seems to be super friendly and will smile or nod when walking past each other. Just a bit noisy with yelling, stomping, and slamming doors. I can hear my downstairs neighbors screaming, and can hear people in the hall way stomping and letting doors slam.Property Manager Responded
March 30, 2026Hi there, Thank you for your fantastic 4-star review! We're thrilled to hear you find the apartment and community great, and that you're experiencing such friendly interactions with your neighbors. We appreciate you bringing the noise concerns to our attention and will be looking into ways to help mitigate these disturbances for a more peaceful living experience for everyone.
Reseña de Apartments.com
Verified RenterEnviado por un residente verificado de la comunidad de apartamentos. Los residentes participantes pueden recibir puntos de recompensa a cambio de publicar una reseña durante su período de alquiler, independientemente de la naturaleza de la reseña
March 25, 2026Great apartments at reasonable price, but the neighborhood can be a little sketchy. It us a good location for students since there are 2 bus stops nearby that can take you to basically anywhere in ames.Property Manager Responded
March 30, 2026Hi there, Thanks for the 4-star review! We're thrilled you find our apartments to be a great value. We appreciate your feedback about the neighborhood and are glad our convenient location near bus stops makes it easy for students to get around Ames!
Reseña de Apartments.com
Verified RenterEnviado por un residente verificado de la comunidad de apartamentos. Los residentes participantes pueden recibir puntos de recompensa a cambio de publicar una reseña durante su período de alquiler, independientemente de la naturaleza de la reseña
March 23, 2026The Social West Ames is a great place to live with well-maintained amenities and an amazing furnished option that makes moving in easy. The location is very convenient, with easy access to campus, nearby spots, and good bus stops. The only downside is maintenance can be a bit slow to respond, but issues do get fixed. Overall, a solid and comfortable living experience.Property Manager Responded
March 26, 2026Hi there, Thank you so much for your fantastic review of The Social West Ames! We're thrilled to hear you're enjoying your living experience with our well-maintained amenities and convenient location. We appreciate your feedback regarding maintenance and are working to improve response times. We're glad you find it a solid and comfortable place to call home!
Reseña de Apartments.com
Verified RenterEnviado por un residente verificado de la comunidad de apartamentos. Los residentes participantes pueden recibir puntos de recompensa a cambio de publicar una reseña durante su período de alquiler, independientemente de la naturaleza de la reseña
March 23, 2026Overall pretty good, maintenance requests are very slow and there have been a few minor issues with my apartment, but the amenities and the overall experience are nice.Property Manager Responded
March 26, 2026Hi there, Thank you for your 4-star review! We're thrilled to hear you're enjoying the amenities and your overall experience at The Social West Ames. We appreciate you bringing your maintenance concerns to our attention and are actively working to improve our response times. If you'd like to discuss your specific maintenance requests or any other apartment issues, please don't hesitate to reach out to us at thesocialwestames@trinity-pm.com.
Reseña de Apartments.com
Verified RenterEnviado por un residente verificado de la comunidad de apartamentos. Los residentes participantes pueden recibir puntos de recompensa a cambio de publicar una reseña durante su período de alquiler, independientemente de la naturaleza de la reseña
March 18, 2026Maintenance orders take awhile to get taken care of but very nice facilities. I don’t have many complaints I wish they salted or shoveled sidewalks better but that’s about it I’ve enjoyed my time hereProperty Manager Responded
March 23, 2026Hi there, Thank you for your kind words and for sharing your feedback! We're so glad to hear you're enjoying the facilities here at The Social West Ames. We appreciate you bringing the sidewalk maintenance to our attention and will certainly look into it. We're happy you've enjoyed your time with us!
Property Manager Responded
March 23, 2026Hi there, Thank you for your kind words and for sharing your feedback! We're so glad to hear you're enjoying the facilities here at The Social West Ames. We appreciate you bringing the sidewalk maintenance to our attention and will certainly look into it. We're happy you've enjoyed your time with us!
Property Manager Responded
March 23, 2026Hi there, Thank you for your kind words and for sharing your feedback! We're so glad to hear you're enjoying the facilities here at The Social West Ames. We appreciate you bringing the sidewalk maintenance to our attention and will certainly look into it. We're happy you've enjoyed your time with us!
Property Manager Responded
March 23, 2026Hi there, Thank you for your kind words and for sharing your feedback! We're so glad to hear you're enjoying the facilities here at The Social West Ames. We appreciate you bringing the sidewalk maintenance to our attention and will certainly look into it. We're happy you've enjoyed your time with us!
Property Manager Responded
March 23, 2026Hi there, Thank you for your kind words and for sharing your feedback! We're so glad to hear you're enjoying the facilities here at The Social West Ames. We appreciate you bringing the sidewalk maintenance to our attention and will certainly look into it. We're happy you've enjoyed your time with us!
Reseña de Apartments.com
Verified RenterEnviado por un residente verificado de la comunidad de apartamentos. Los residentes participantes pueden recibir puntos de recompensa a cambio de publicar una reseña durante su período de alquiler, independientemente de la naturaleza de la reseña
March 10, 2026So far its been a pleasant experience! The staff are super nice. They always take care of the issues i bring up in a timely fashion! So i cant compProperty Manager Responded
March 18, 2026Hi there, We're so happy to hear you're having a pleasant experience at The Social West Ames! It's fantastic to know our staff is making such a great impression and addressing your concerns promptly. We appreciate your wonderful feedback!
Property Manager Responded
March 18, 2026Hi there, We're so happy to hear you're having a pleasant experience at The Social West Ames! It's fantastic to know our staff is making such a great impression and addressing your concerns promptly. We appreciate your wonderful feedback!
Reseña de Apartments.com
Verified RenterEnviado por un residente verificado de la comunidad de apartamentos. Los residentes participantes pueden recibir puntos de recompensa a cambio de publicar una reseña durante su período de alquiler, independientemente de la naturaleza de la reseña
March 6, 2026Great place to stay at the social west in Ames Iowa. There are so many cool places around Ames Iowa to see and do. Soo many bike trails and walking pathsProperty Manager Responded
March 16, 2026Hi there, Thank you for the awesome review! We're so glad you enjoyed your stay at The Social West Ames and loved exploring all the fantastic bike trails and walking paths Ames has to offer. We appreciate you choosing us!
Reseña de Apartments.com
Verified RenterEnviado por un residente verificado de la comunidad de apartamentos. Los residentes participantes pueden recibir puntos de recompensa a cambio de publicar una reseña durante su período de alquiler, independientemente de la naturaleza de la reseña
March 5, 2026I’ve enjoyed living here. It’s very quiet, all of my neighbors are friendly or keep to themselves. The property is usually clean, and the staff in the leasing office is very nice and informative.Property Manager Responded
March 16, 2026Hi there, Thank you for your wonderful review! We're thrilled to hear you're enjoying your time at The Social West Ames. It's fantastic that you appreciate the quiet atmosphere, friendly neighbors, clean property, and our helpful leasing staff. We're so glad to have you as a resident!
Reseña de Apartments.com
Verified RenterEnviado por un residente verificado de la comunidad de apartamentos. Los residentes participantes pueden recibir puntos de recompensa a cambio de publicar una reseña durante su período de alquiler, independientemente de la naturaleza de la reseña
March 1, 2026I’ve really enjoyed living here so far. My overall residential experience has been positive, and any concerns I had were resolved quickly. The team has been attentive and proactive in helping, which made things smooth and stress-freeProperty Manager Responded
March 11, 2026Hi there, Thank you for your wonderful review! We're thrilled to hear you're enjoying your residency and that our team has been attentive and proactive in making your experience smooth and stress-free. We appreciate your kind words!
Reseña de Apartments.com
Verified RenterEnviado por un residente verificado de la comunidad de apartamentos. Los residentes participantes pueden recibir puntos de recompensa a cambio de publicar una reseña durante su período de alquiler, independientemente de la naturaleza de la reseña
February 27, 2026Good Amenities and Maintenance. But front desk is usually scrambling over basic questions and I have paid the price for wrong information given to me.Property Manager Responded
March 6, 2026Hi there, Thank you for your feedback! We're glad to hear you appreciate our amenities and maintenance. We're sorry to learn about your experience with the front desk and the misinformation you received. We're actively working on improving our team's training and would love to discuss this further with you. Please reach out to us at thesocialwestames@trinity-pm.com so we can make things right.
Reseña de Apartments.com
Verified RenterEnviado por un residente verificado de la comunidad de apartamentos. Los residentes participantes pueden recibir puntos de recompensa a cambio de publicar una reseña durante su período de alquiler, independientemente de la naturaleza de la reseña
February 24, 2026My very first time renting and the process was super easy to complete and get moved in! The staff is very friendly and there is lots of fun things to do in the main office for holidays and just because! The gym is my favorite, never overcrowded and comfortable! In walking distance of so many cool stores. 10/10 place to live.Property Manager Responded
February 27, 2026Hi there, Thank you for the fantastic review! We're thrilled to hear you had such a smooth experience moving in and that you're enjoying everything The Social West Ames has to offer, from our friendly staff and fun office events to the gym and convenient location. We appreciate your 10/10 recommendation!
Reseña de Apartments.com
Escuelas Cercanas
Edwards Elementary School
Ames High School
Ames Middle School
Sitios de Interés
Tiempo y distancia desde The Social West Ames®.
Grandes Superficies de Ventas
Autozone
Target
Walmart
Universidad
Tiendas
Fareway
Hy-Vee
Hospitales
Mary Greeley Medical Center
Centros Comerciales
The Social West Ames® tiene 5 centros comerciales en un radio de 2.8 millas.
Barrios cercanos
Rango de Precios de los Alquileres en la Zona
| Dormitorios | Precio Promedio | Más barato | Más caro |
|---|---|---|---|
| Apartamentos Estudio en Ames | $901 | $675 | $1,500 |
| Apartamentos 1 Dormitorios en Ames | $957 | $650 | $1,600 |
| Apartamentos 2 Dormitorios en Ames | $1,055 | $589 | $2,167 |
| Apartamentos 3 Dormitorios en Ames | $946 | $465 | $2,370 |
| Apartamentos 4 Dormitorios en Ames | $937 | $419 | $2,800 |
Ver Apartamentos más destacados en Ames
Por el Precio
- Apartamentos Barato en Ames
- Apartamentos en Ames menos de $500
- Apartamentos en Ames menos de $600
- Apartamentos en Ames menos de $700
- Apartamentos en Ames menos de $800
- Apartamentos en Ames menos de $900
- Apartamentos en Ames menos de $1000
- Apartamentos en Ames menos de $1200
- Apartamentos en Ames menos de $1500
- Apartamentos en Ames menos de $2000
- Apartamentos de Lujo en Ames
Por tipo de comunidad
- Apartamentos en alquiler por el propietario en Ames
- Apartamentos en Ames con Oferta Especial
- Apartamentos en Ames Más Valorados
- Apartamentos en Ames Viviendas Corporativas
- Apartamentos en Ames Amueblado
- Apartamentos en Ames Reja de Entrada Automática
- Apartamentos en Ames Loft
- Apartamentos en Ames De Bajos Ingresos
- Nuevos Apartamentos en Ames
- Apartamentos en Ames Personas Mayores
- Apartamentos en Ames Contratos de Corto Plazo
- Apartamentos en Ames Estudiante
- Apartamentos en Ames con Utilidades Incluidas










































Max of 2. Cats Welcome <br />Maximum Pets per Apartment: 2<br />Pet Fee per Pet: $200 (non refundable)<br />Monthly Pet Rent per Pet: $25.