Photos











- 3 Bedroom Bedrooms
- $2,400Pricing
About 1222 Plato Dr
Modern Corner-Lot Townhome for Rent Welcome Home to Fort Erie! Newly painted. Just 5 minutes from the Peace Bridge,this stylish 3-bedroom,3-bath townhome sits on a premium corner lot with private backyard access and a long driveway. Enjoy a bright,open-concept layout,a modern kitchen,and a spacious primary suite with an ensuite. The versatile basement is ready to be customized to your needs- With over 1,500 sq. ft. of living space,great room sizes,and a family-friendly layout,this home offers modern vibes and plenty of room for everyone. Move-in ready-what more could you want? (id:63800) ID#: 2057485
Property Contact Info
- Contact:
- RICK PATEL
- Broker
- Company:
- RE/MAX MILLENNIUM REAL ESTATE
- Firm
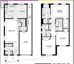
Floorplan Pricing and Availability
New! Interactive Property Map
3 Bedrooms
$2,400
1222 Plato Dr
3 Beds, 3 Baths,Available NowAvailability Details
Price Availability Date Unit $2,400 Available Now 1222 Plato Dr Unit Amenities and Features
Features
- Air Conditioning
- Heat Type - Gas
Unit Rent and Fees
Unit Price
- $2,400
Unit Description
---- SCHEDULE A SHOWING ONLINE AT: http://showmojo.com/lac/e375c7f034 ---- The Garden Court Apartments are looking for great renters to fill a number of current and future vacancies! The one and two bedroom floor plans boast updated flooring and paint, renovated kitchen and dining spaces, in-home heating and window AC, as well as on-site trash service and locked security access. These affordable and well-maintained apartments are located in the heart of Des Moines, with easy access to downtown or the north and west suburbs. Schedule a showing today!! APPLICATION TURNAROUND TIME: 2-3 business days When applying make sure to have income statements, a photo ID, and any other relevant information ready. PETS: All pets are subject to owner approval GUARANTORS: Co-signers are accepted, but must apply separately LEASE LENGTH: 12-Month Standard SECTION 8: Unavailable at this time SMOKING: Smoking is not permitted on the property ADDITIONAL FEES NOT INCLUDED IN RENT: Tenant Management Fee: $34.99/month Lease Origination Fee: $199 one time Application: ONLY $49! For consideration, please note that all applicants 18 and over will be subject to credit, criminal, and eviction background checks. Also, please note that if you take possession of a property after the 20th of the month the remaining prorated till the end of the month will be due on the move-in date. *All information is deemed reliable but not guaranteed and is subject to change. Lawn Care Snow Removal
Model: 1222 Plato Dr$2,4003 Bedroom, 3 Bath, sq ftAvailable Now
Features and Amenities
Interior Features
- Heat Type Gas
- Air Conditioning

Map
- Shopping
- Colleges
- Grocery

Map
Frequently Asked Questions about 1222 Plato Dr
What type of rentals are available at 1222 Plato Dr?
There is currently a 3 Bed 3 Bath Townhome for rent listed at 1222 Plato Dr. It is Available Now.
How much is the rent at 1222 Plato Dr?
1222 Plato Dr is currently listed at $2,400.
What area of town is 1222 Plato Dr located in?
1222 Plato Dr is in the L2A 0C7 Postal Code of Fort Erie, ON.
Points of Interest
Time and distance from 1222 Plato Dr.
Big Box and Retail
Walmart
Colleges and Universities
University of Niagara Falls Canada - Niagara Falls, Ontario
Groceries
Foodland
Harvey's
Nearby Neighborhoods
Nearby Apartments
Rental Price Ranges in the Area
| Bedroom | Average Rent | Cheapest Rent | Highest Rent |
|---|---|---|---|
| Fort Erie 1 Bedroom Apartments | $1,292 | $900 | $1,525 |
| Fort Erie 2 Bedroom Apartments | $1,457 | $1,195 | $1,695 |
| Fort Erie 3 Bedroom Apartments | $1,733 | $1,600 | $1,800 |
