Photos












- 7 Bedroom Bedrooms
- $5,500Pricing
About 59 Westfield Dr
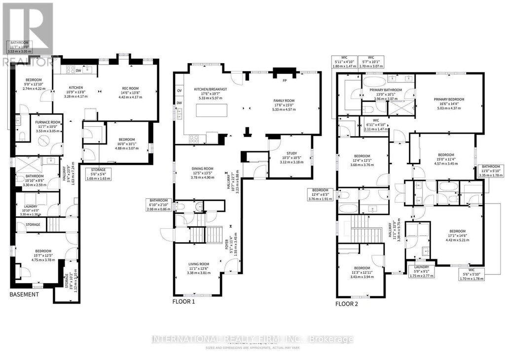
Step into luxury and comfort in this stunning detached home featuring a legal basement apartment with its own private side entrance - perfect for large families,in-law suite or nanny suite. Thoughtfully designed,the upper level features 5 large bedrooms,3 full bathrooms,and a second-floor laundry room. The primary suite boasts a spa-like 5-piece ensuite and dual walk-in closets. Two bedrooms share a stylish Jack & Jill bathroom,one enjoys a semi-ensuite and another is sunlit with front yard views. The main floor features a private office,formal living and dining rooms with oversized windows,a 2-piece powder room,and a family room with a gas fireplace overlooking the backyard. The chefs kitchen offers quartz countertops,stainless steel appliances,a large island with breakfast bar and a sunlit breakfast area with walkout to the yard. The fully finished legal basement apartment features 2 bedrooms,a kitchen,a separate laundry room,a 3-piece bathroom,a private 2-piece ensuite,pot lights,large windows and open-concept living. A large cold room adds extra storage. Located minutes from Highways 401 and 412,schools,shopping,restaurants,and Des Newman WhitBEE Park. Listing photos were taken before the current tenant's occupancy. (id:52069) ID#: 2151076
Property Contact Info
- Contact:
- Rahim Rajab Ali
- Salesperson
- Company:
- INTERNATIONAL REALTY FIRM, INC.
- Firm
Floorplan Pricing and Availability
New! Interactive Property Map
7 Bedrooms
$5,500
59 Westfield Dr
7 Beds, 6 Baths,Available NowAvailability Details
Price Availability Date Unit $5,500 Available Now 59 Westfield Dr Unit Amenities and Features
Features
- Air Conditioning
- Heat Type - Gas
Unit Rent and Fees
Unit Price
- $5,500
Model: 59 Westfield Dr$5,5007 Bedroom, 6 Bath, sq ftAvailable Now
Features and Amenities
On-Site Services
- Garden Style
Interior Features
- Heat Type Gas
- Air Conditioning
Living Area Features
- Vinyl Flooring
- Carpet
- Tile Floors
- Hardwood Floors

Map
- Shopping
- Colleges

Map
What Are Walk Score®, Transit Score®, and Bike Score® Ratings?
- Walk Score® measures the walkability of any address.
- Transit Score® measures access to public transit.
- Bike Score® measures the bikeability of any address.
Frequently Asked Questions about 59 Westfield Dr
What type of rentals are available at 59 Westfield Dr?
There is currently a 7 Bed 6 Bath Home for rent listed at 59 Westfield Dr. It is Available Now.
How much is the rent at 59 Westfield Dr?
59 Westfield Dr is currently listed at $5,500.
What area of town is 59 Westfield Dr located in?
59 Westfield Dr is in the L1P 0E9 Postal Code of Whitby, ON.
Points of Interest
Time and distance from 59 Westfield Dr.
Big Box and Retail
Walmart
Lowe's
Colleges and Universities
University of Ontario Institute of Technology - North Oshawa
Nearby Neighborhoods
Nearby Apartments
Rental Price Ranges in the Area
| Bedroom | Average Rent | Cheapest Rent | Highest Rent |
|---|---|---|---|
| Whitby Studio Apartments | $1,525 | $1,350 | $1,700 |
| Whitby 1 Bedroom Apartments | $1,728 | $1,350 | $1,975 |
| Whitby 2 Bedroom Apartments | $2,009 | $1,600 | $2,595 |
| Whitby 3 Bedroom Apartments | $2,411 | $1,189 | $3,195 |
| Whitby 4 Bedroom Apartments | $2,995 | $2,995 | $2,995 |
