Photos












- 3BR, 2BAHome
- $2,449
- 1,210Square Feet
- Available NowAvailability
Features and Amenities
Features
- Fireplace
Lease Information
Unit Price
- $2,449
About 1219 200th St Ct E
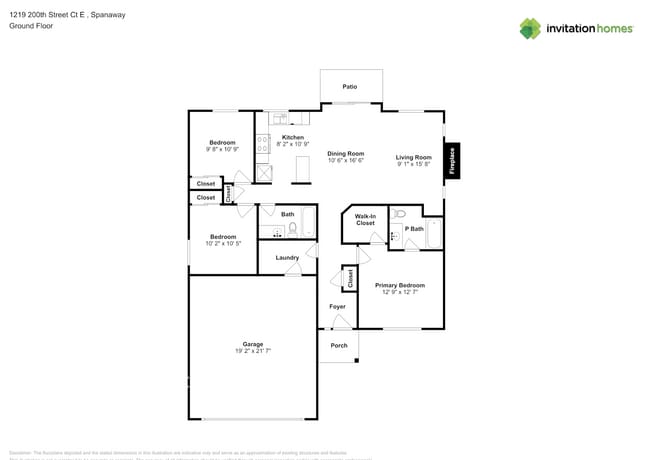
Lease this home and get more from Invitation Homes professional property management. This home comes fully loaded with quality amenities, must-have services, high-end tech and ProCare® professional maintenance. Your estimated total monthly payment is $2488.95. That covers your base rent, $2449.00 + our required services designed to make your life easier: Smart Home with video doorbell $30 and Utility Billing Service Fee $9.95. Base rent varies based on selected lease term. You deserve a quality home that you can shape to fit your personality. And here it is. Invite your family and friends for quality time in a home that reflects your spirit. The living space's stylish finishes offer a blank canvas you can make your own. The cooking space is roomy and set up to accommodate a cook who knows their way around a kitchen. Cooking will be less of a chore thanks to these sleek countertops, premium cabinets and stainless steel appliances. The backyard brings the whole house together. Keep the fun going in this fenced backyard that your furry friends will be more than happy to claim for themselves. Neighborhood amenities include a tot lot and park. Apply online today! At Invitation Homes, we offer pet-friendly, yard-having homes for lease with Smart Home technology in awesome neighborhoods across the country. Live in a great house without the headache and long-term commitment of owning. Discover your dream home with Invitation Homes. Our Lease Easy bundle – which includes Smart Home, Air Filter Delivery, and Utilities Management – is a key part of your worry-free leasing lifestyle. These services are required by your lease at an additional monthly cost. Monthly fees for pets and pools may also apply. Home Features and Amenities: Fenced Yard, Fireplace, Garage, Kitchen Island, Long Lease Terms, Luxury Vinyl Plank, Open Floorplan, Patio, Pet Friendly, Primary Bedroom on Main, Recessed Lighting, Single Story House, Smart Home, Stainless Steel Appliances, Walk in Closet, W/D Hookups, and professionally managed by Invitation Homes. Neighborhood Features and Amenities: Park, Tot Lot This Invitation Home is being enjoyed by another resident, but it will be available soon. You can still apply – contact us for more details or apply now. Invitation Homes is an equal housing lessor under the FHA. Applicable local, state and federal laws may apply. Additional terms and conditions apply. This listing is not an offer to rent. You must submit additional information including an application to rent and an application fee. All leasing information is believed to be accurate, but changes may have occurred since photographs were taken and square footage is estimated. Furthermore, prices and dates may change without notice. See InvitationHomes website for more information. Beware of scams: Employees of Invitation Homes will never ask you for your username and password. Invitation Homes does not advertise on Craigslist, Social Serve, etc. We own our homes; there are no private owners. All funds to lease with Invitation Homes are paid directly through our website, never through wire transfer or payment app like Zelle, Pay Pal, or Cash App. For more info, please submit an inquiry for this home. Applications are subject to our qualification requirements. Additional terms and conditions apply. CONSENT TO CALLS & TEXT MESSAGING: By entering your contact information, you expressly consent to receive emails, calls, and text messages from Invitation Homes including by autodialer, prerecorded or artificial voice and including marketing communications. Msg & Data rates may apply. You also agree to our Terms of Use and our Privacy Policy.
1219 200th St Ct E is located in the 98387 Zip code of Spanaway, WA.
Property Contact Info
Fees and Policies
The fees listed below are community-provided and may exclude utilities or add-ons. All payments are made directly to the property and are non-refundable unless otherwise specified.
Required Fees
Utilities
- Utility Billing Service FeeiCharged per unit.$9.95/mo
- Smart Home with video doorbelliCharged per unit.$30/mo
Pet Policy and Fees
Cats
AllowedDogs
AllowedParking Info and Fees
- Garage Parking
Property Fee Disclaimer: Based on community-supplied data and independent market research. Subject to change without notice. May exclude fees for mandatory or optional services and usage-based utilities.
Features and Amenities
On-Site Services
- Garden Style
Outdoor Features
- Fenced Lot
- Patio
Interior Features
- Fireplace
Living Area Features
- Walk In Closets
Unique Amenities
- Garage Available

Map
- Shopping
- Colleges
- Grocery
- Medical
- Transportation

Map
Frequently Asked Questions about 1219 200th St Ct E
What type of rentals are available at 1219 200th St Ct E?
There is currently a 3 Bed 2 Bath Home for rent with 1,210 listed at 1219 200th St Ct E. It is Available Now.
How much is the rent at 1219 200th St Ct E?
1219 200th St Ct E is currently listed at $2,449.
What area of town is 1219 200th St Ct E located in?
1219 200th St Ct E is in the 98387 Zip Code of Spanaway, WA.
Nearby Schools
About GreatSchools Data on ApartmentHomeLiving.com.
Points of Interest
Time and distance from 1219 200th St Ct E.
Big Box and Retail
Albertsons
Walgreens
Kohl's
Colleges and Universities
Groceries
Haggen
Albertsons
Winco Foods
Hospitals
Military Bases
McChord Air Force Base
Camp Murray Washington
Shopping Centers
1219 200th St Ct E has 5 shopping centers within 1.6 miles.
Transit Stations
Nearby Neighborhoods
Nearby Apartments
Rental Price Ranges in the Area
| Bedroom | Average Rent | Cheapest Rent | Highest Rent |
|---|---|---|---|
| Spanaway Studio Apartments | $1,510 | $1,410 | $1,725 |
| Spanaway 1 Bedroom Apartments | $1,491 | $1,195 | $1,815 |
| Spanaway 2 Bedroom Apartments | $1,920 | $1,400 | $2,432 |
| Spanaway 3 Bedroom Apartments | $2,392 | $2,210 | $2,875 |
| Spanaway 4 Bedroom Apartments | $2,950 | $2,950 | $2,950 |
Browse Top Apartments in Spanaway
By Price
By Community Type
- Spanaway Apartments for Rent by Owner
- Spanaway Apartments with Rent Specials
- Spanaway Top Rated Apartments
- Spanaway Corporate Apartments
- Spanaway Gated Apartments
- Spanaway Military Apartments
- New Spanaway Apartments
- Spanaway Senior Apartments
- Spanaway Student Apartments
- Spanaway Apartments with Utilities Included
