Photos












- 3Dorm., 2BACasa
- $1,465Precio
- 1,343Pies cuadrados
- Disponible ProntoDisponibilidad
Características y Facilidades
Características
- Chimenea
Tasas y precio
Precio por Unidad
- $1,465
Acerca 121 Limestone Ln
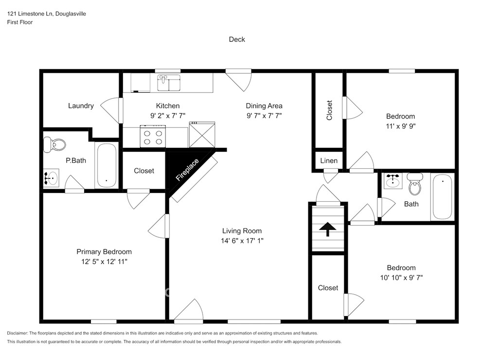
Lease this home and get more from Invitation Homes professional property management. This home comes fully loaded with quality amenities, must-have services, high-end tech and ProCare® professional maintenance. Your estimated total monthly payment is $1609.90. That covers your base rent, $1465.00 + our required services designed to make your life easier: Air Filter Delivery Fee ($9.95), Internet & Media ($85), Smart Home with video doorbell ($40), and Utility Billing Service Fee ($9.95). Base rent varies based on selected lease term. Taking time for yourself will be even easier in a house fitted to your needs. Inject your personality into this beautiful house and you will feel right at home. When you walk into this beautiful house, you will find spacious bedrooms, a finished garage, a covered porch, an attractive fireplace, and luxury vinyl plank flooring. Enjoy preparing meals in a finished kitchen. Stainless steel appliances, granite countertops and beautiful cabinetry give you a worry-free cooking space worthy of you. The backyard brings the whole house together. And when you need a breath of fresh air, step out into a fenced backyard complete with a lovely deck. Apply online today! At Invitation Homes, we offer pet-friendly, yard-having homes for lease with Smart Home technology in awesome neighborhoods across the country. Live in a great house without the headache and long-term commitment of owning. Discover your dream home with Invitation Homes. To make your leasing lifestyle as hassle-free as possible, every Invitation Homes lease requires a subscription to our Lease Easy bundle. You’ll enjoy more convenience and control with standard services that may include air filter delivery, utility management, and Smart Home with video doorbell. Want to take easy to the next level? Lawn care and pest control are also available. Home Features and Amenities: Air Conditioning, Covered Porch, Deck, Fenced Yard, Fireplace, Garage, Granite Countertops, Long Lease Terms, Luxury Vinyl Plank, Pet Friendly, Smart Home, Stainless Steel Appliances, W/D Hookups, and professionally managed by Invitation Homes. Invitation Homes is an equal housing lessor under the FHA. Applicable local, state and federal laws may apply. Additional terms and conditions apply. This listing is not an offer to rent. You must submit additional information including an application to rent and an application fee. All leasing information is believed to be accurate, but changes may have occurred since photographs were taken and square footage is estimated. Furthermore, prices and dates may change without notice. Every approved applicant must confirm the status of pet(s) in their home through and pay applicable pet registration fees prior to the execution of the final lease agreement. See InvitationHomes website for more information. Beware of scams: Employees of Invitation Homes will never ask you for your username and password. Invitation Homes does not advertise on Craigslist, Social Serve, etc. We own our homes; there are no private owners. All funds to lease with Invitation Homes are paid directly through our website, never through wire transfer or payment app like Zelle, Pay Pal, or Cash App. For more info, please submit an inquiry for this home. Applications are subject to our qualification requirements. Additional terms and conditions apply. CONSENT TO CALLS & TEXT MESSAGING: By entering your contact information, you expressly consent to receive emails, calls, and text messages from Invitation Homes including by autodialer, prerecorded or artificial voice and including marketing communications. Msg & Data rates may apply. You also agree to our Terms of Use and our Privacy Policy.
121 Limestone Ln se encuentra en el código postal 30134 de Douglasville, GA.
Información de contacto de la propiedad
Fees and Policies
Las tarifas que figuran a continuación se basan en datos facilitados por la comunidad y pueden excluir tasas y servicios adicionales.
Tasas Requeridas
Utilidades y servicios básicos
- Utility Billing Service FeeiCharged per unit$9.95/mes
- Air Filter Delivery FeeiCharged per unit$9.95/mes
- Smart Home with video doorbelliCharged per unit$40/mes
- Internet & MediaiCharged per unit$85/mes
Pet Policy and Fees
Dogs
- Fees Not Specified
Cats
- Fees Not Specified
Parking Info and Fees
- Garage Parking
Exención de responsabilidad sobre las tasas de propiedad: Based on community-supplied data and independent market research. Subject to change without notice. May exclude fees for mandatory or optional services and usage-based utilities.
Características y Facilidades
Servicios
- Con Jardín
Características al Aire Libre
- Parcela Vallada
- Cubierta
- Porche
Características Interior
- Chimenea
Características únicas
- Garaje

Mapa
- Compras
- Universidades
- Supermercado
- Médicos

Mapa
¿Qué son las clasificaciones Walk Score®, Transit Score® y Bike Score®?
- Walk Score® mide la viabilidad peatonal de cualquier dirección.
- Transit Score® mide el acceso a transporte público.
- Bike Score® mide la infraestructura de rutas para bicicletas de cualquier dirección.
Preguntas Frecuentes sobre 121 Limestone Ln
¿Qué tipo de alquileres hay disponibles en 121 Limestone Ln?
Actualmente hay un Casa de 3 Dormitorios 2 Baños en alquiler con 1,343 en 121 Limestone Ln. Está Disponible pronto .
¿Cuánto cuesta el alquiler ent 121 Limestone Ln?
121 Limestone Ln se lista actualmente en $1,465.
¿En qué zona de la ciudad se encuentra 121 Limestone Ln?
121 Limestone Ln está 30134 en el código postal en Douglasville, GA.
Calificación Según Estilo de Vida:
Conocer más sobre la búsqueda de estilos de vidaEscuelas Cercanas
Irma C. Austin Middle School
South Paulding High School
Connie Dugan Elementary School
Sitios de Interés
Tiempo y distancia desde 121 Limestone Ln.
Grandes Superficies de Ventas
Publix
Walmart
Walgreens
Universidad
Tiendas
Publix
Winn Dixie
Aldi
Hospitales
Tanner Medical Center Villa Rica
Wellstar Douglas Hospital
Wellstar Paulding Hospital
Centros Comerciales
121 Limestone Ln tiene 5 centros comerciales en un radio de 5.5 millas.
Barrios cercanos
Apartamentos Cercanos
Rango de Precios de los Alquileres en la Zona
| Dormitorios | Precio Promedio | Más barato | Más caro |
|---|---|---|---|
| Apartamentos Estudio en Douglasville | $1,122 | $899 | $1,439 |
| Apartamentos 1 Dormitorios en Douglasville | $1,371 | $895 | $2,613 |
| Apartamentos 2 Dormitorios en Douglasville | $1,587 | $1,100 | $2,755 |
| Apartamentos 3 Dormitorios en Douglasville | $1,921 | $1,272 | $2,749 |
| Apartamentos 4 Dormitorios en Douglasville | $1,613 | $1,613 | $1,613 |
Ver Apartamentos más destacados en Douglasville
Por el Precio
Por tipo de comunidad
- Apartamentos en Douglasville con Oferta Especial
- Apartamentos en Douglasville Más Valorados
- Apartamentos en Douglasville Viviendas Corporativas
- Apartamentos en Douglasville Amueblado
- Apartamentos en Douglasville Reja de Entrada Automática
- Apartamentos en Douglasville Loft
- Apartamentos en Douglasville De Bajos Ingresos
- Nuevos Apartamentos en Douglasville
- Apartamentos en Douglasville Personas Mayores
- Apartamentos en Douglasville Contratos de Corto Plazo
- Apartamentos en Douglasville Estudiante
- Apartamentos en Douglasville con Utilidades Incluidas
