Photos












- 4Dorm., 2BACasa
- $2,145Precio
- 1,375Pies cuadrados
- Disponible AhoraDisponibilidad
Tasas y precio
Precio por Unidad
- $2,145
Acerca 212 Jean Wells Dr
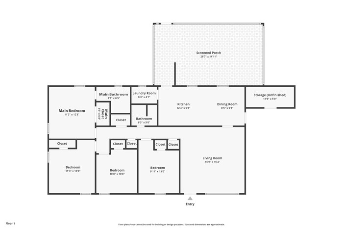
COMING SOON This home is coming soon. Please check to see the estimated availability date. Monthly Recurring Fees: $10.95 - Utility Management Located at 212 Jean Wells Drive in Goose Creek, SC, this single-story home offers 4 bedrooms, 2 bathrooms, and approximately 1,375 square feet of well-organized living space. Set in an established neighborhood, the location places you just minutes from local shopping, dining, and parks, with convenient access to Joint Base Charleston and roughly 25–30 minutes to Downtown Charleston. Inside, fresh interior paint creates a clean, neutral backdrop throughout the home. Hardwood flooring anchors the living room and bedrooms, while the kitchen and dining areas feature durable flooring designed for everyday use. The living room offers generous space and natural light, flowing easily into the dining area for a layout that supports both daily routines and gatherings. The kitchen includes ample cabinetry, practical counter space, and a full appliance package, all arranged for efficient use. The bedroom layout provides separation and flexibility, with a main bedroom featuring its own bathroom and additional bedrooms positioned along the hallway. Bathrooms offer straightforward layouts with classic finishes, including a tub/shower combination and built-in storage elements that support functionality without excess. Out back, a large screened porch extends the living space, creating a comfortable setting to enjoy the outdoors while overlooking a spacious yard framed by mature trees. With its brick exterior, single-level design, inviting porch, and a location that balances neighborhood convenience with access to Charleston-area destinations, this Goose Creek home is a strong opportunity. Apply now! *Maymont Homes provides residents with convenient solutions, including simplified utility billing and flexible rent payment options. Contact us for more details. This information is deemed reliable, but not guaranteed. All measurements are approximate. Actual product and home specifications may vary in dimension or detail. Images are for representational purposes only. Some programs and services may not be available in all market areas. Prices and availability are subject to change without notice. Advertised rent prices do not include the required application fee, the partially refundable reservation fee (due upon application approval), or the mandatory monthly utility management fee (in select market areas.) Residents must maintain renters insurance as specified in their lease. If third-party renters insurance is not provided, residents will be automatically enrolled in our Master Insurance Policy for a fee. Select homes may be located in communities that require a monthly fee for community-specific amenities or services. For complete details, please contact a company leasing representative. Equal Housing Opportunity. Estimated availability date is subject to change based on construction timelines and move-out confirmation. Contact us to schedule a showing.
212 Jean Wells Dr se encuentra en el Barrio Goose Creek y el código postal 29445 de Goose Creek, SC.
Información de contacto de la propiedad
Términos de Arrendamiento
- Têrminos del Alquiler
Fees and Policies
Las tarifas que se indican a continuación son proporcionadas por la comunidad y pueden excluir servicios públicos o complementos. Todos los pagos se realizan directamente a la propiedad y no son reembolsables, salvo que se especifique lo contrario.
Other Fees
Tasas situacionales
- Non Refundable Pet DepositiTotal nonrefundable pet deposit ranges from 250 to 450 dollars depending on number of pets. 250 for the first pet plus 100 for each additional pet, up to a maximum of three pets. This fee ranges from 250.0 to 450.0. Charged Per Unit$250
Complementos personales
- Application FeeiAmount per applicant (18+ years). Charged per unit$55
- Holding DepositiReserves your home for up to 14 days while you finalize your move. The $550 Reservation Binder applies $400 toward your first month’s rent. For Section 8 homes, the fee is $150 with no rent credit. Charged per unit$550
- Security DepositiCharged per unit$2145
- Utilities Setup FeeiCharged per unit$25
- Utilities Monthly FeeiCharged per unit$10.95
- Pet Screening FeeiCharged per unit$25
Tasas por mascotas
- Pet RentiCharged Per Pet$35/mes
- Pet RentiCharged Per Pet$35/mes
Dog
Cat
Exención de responsabilidad sobre las tasas de propiedad: Based on community-supplied data and independent market research. Subject to change without notice. May exclude fees for mandatory or optional services and usage-based utilities.
Características y Facilidades
Servicios
- Con Jardín

Mapa
- Compras
- Universidades
- Supermercado
- Médicos
- Parques

Mapa
¿Qué son las clasificaciones Walk Score®, Transit Score® y Bike Score®?
- Walk Score® mide la viabilidad peatonal de cualquier dirección.
- Transit Score® mide el acceso a transporte público.
- Bike Score® mide la infraestructura de rutas para bicicletas de cualquier dirección.
Preguntas Frecuentes sobre 212 Jean Wells Dr
¿Qué tipo de alquileres hay disponibles en 212 Jean Wells Dr?
Actualmente hay un Casa de 4 Dormitorios 2 Baños en alquiler con 1,375 en 212 Jean Wells Dr. Está Disponible Ahora.
¿Cuánto cuesta el alquiler ent 212 Jean Wells Dr?
212 Jean Wells Dr se lista actualmente en $2,145.
¿En qué zona de la ciudad se encuentra 212 Jean Wells Dr?
Está localizado en el barrio Goose Creek, 212 Jean Wells Dr en el código postal 29445 de Goose Creek, SC.
Escuelas Cercanas
Sitios de Interés
Tiempo y distancia desde 212 Jean Wells Dr.
Grandes Superficies de Ventas
Lowe's
Walgreens
Publix
Universidad
Tiendas
Lidl
Publix
Food Lion
Hospitales
Trident Medical Center
Bases Militares
Charleston Naval Weapons Station
Charleston Air Force Base
Charleston Naval Base
Parques y opciones de recreación
212 Jean Wells Dr tiene 2 parques en un radio de 10.3 millas, incluyendo Middleton Place, y Magnolia Plantation.
Centros Comerciales
212 Jean Wells Dr tiene 5 centros comerciales en un radio de 0.8 millas.
Barrios cercanos
Apartamentos Cercanos
Rango de Precios de los Alquileres en la Zona
| Dormitorios | Precio Promedio | Más barato | Más caro |
|---|---|---|---|
| Apartamentos Estudio en Goose Creek | $1,531 | $1,295 | $2,202 |
| Apartamentos 1 Dormitorios en Goose Creek | $1,546 | $885 | $2,322 |
| Apartamentos 2 Dormitorios en Goose Creek | $1,776 | $1,094 | $3,261 |
| Apartamentos 3 Dormitorios en Goose Creek | $2,159 | $1,290 | $5,550 |
| Apartamentos 4 Dormitorios en Goose Creek | $3,317 | $1,915 | $5,366 |
Ver Apartamentos más destacados en Goose Creek
Por el Precio
Por tipo de comunidad
- Apartamentos en Goose Creek con Oferta Especial
- Apartamentos en Goose Creek Más Valorados
- Apartamentos en Goose Creek Viviendas Corporativas
- Apartamentos en Goose Creek Amueblado
- Apartamentos en Goose Creek Reja de Entrada Automática
- Apartamentos en Goose Creek De Bajos Ingresos
- Apartamentos en Goose Creek Militar
- Nuevos Apartamentos en Goose Creek
- Apartamentos en Goose Creek Personas Mayores
- Apartamentos en Goose Creek Contratos de Corto Plazo
- Apartamentos en Goose Creek Estudiante
- Apartamentos en Goose Creek con Utilidades Incluidas
