Photos










- 1Dorm., 1BA
- $895Más Cargos
- 02-01-2026Disponibilidad
Características y Facilidades
Características
- Acceso a internet de alta velocidad
- Sistema de seguridad
Cocina
- Horno
- Nevera
Tasas y precio
Precio por Unidad
- $895Más Cargos
Depósito
- $895 deposit
Acerca 3337 Reading Rd
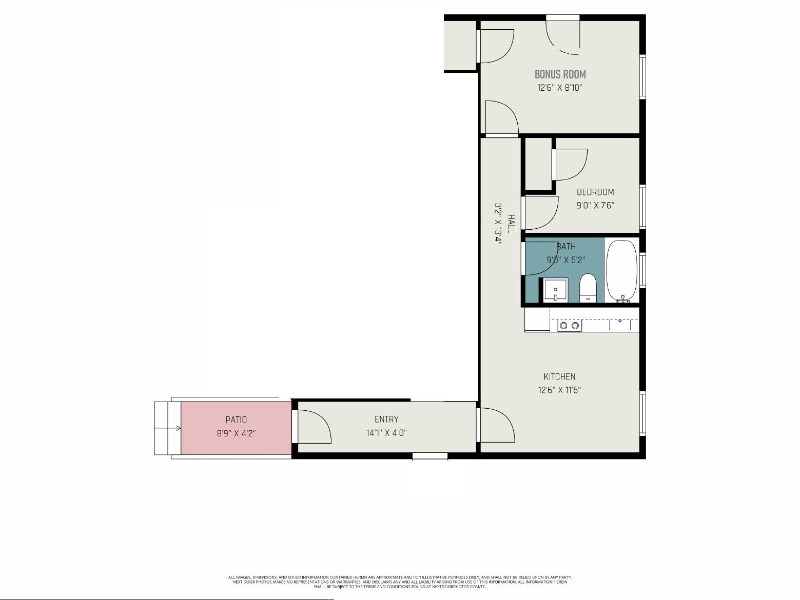
Property Id: 2345446 MOVE-IN SPECIAL! Sign a lease by FEB 1st and receive $150 off your rent for MARCH and APRIL. NOTE: This 1-bedroom unit contains a bonus room suitable for office space or whatever your imagination suggests. Introducing Reading Windsor Apartments! Welcome to a fully renovated building that has undergone a complete transformation from its previous condition. Each sunny apartment has been reimagined with modern finishes, large windows that flood living spaces with natural light, and efficient layouts designed for comfort and convenience. Be the first to live in this newly renovated apartment and enjoy: - Modern kitchen with brand new appliances - Renovated bathrooms with new fixtures and tile - Hardwood-style flooring, and upgraded plumbing/electrical - Bright, airy rooms - On-site laundry and secure entry - 24/7 security camera system Perfectly located close to hospitals, UC and downtown, ideal for students, medical professionals, and anyone who wants easy access to campus, healthcare centers and downtown scene. Under new management with streamlined applications and responsive maintenance. Limited units. Contact us to book a showing!
3337 Reading Rd se encuentra en el Barrio Uptown Cincinnati y el código postal 45229 de Cincinnati, OH.
Información de contacto de la propiedad
Fees and Policies
Las tarifas que se indican a continuación son proporcionadas por la comunidad y pueden excluir servicios públicos o complementos. Todos los pagos se realizan directamente a la propiedad y no son reembolsables, salvo que se especifique lo contrario.
Tasas Requeridas
Básicos de una sola vez
- A pagar en el momento de la mudanza
- Security Deposit - RefundableiCharged Per Unit$895
Exención de responsabilidad sobre las tasas de propiedad: Based on community-supplied data and independent market research. Subject to change without notice. May exclude fees for mandatory or optional services and usage-based utilities.
Características y Facilidades
Características Interior
- Sistema De Seguridad
- Acceso A Internet De Alta Velocidad
Características de la Cocina
- Horno
- Nevera
Características de la Sala de Estar
- Suelos De Vinilo
- Suelos De Baldosas

Mapa
- Compras
- Universidades
- Escuelas
- Supermercado
- Médicos
- Parques

Mapa
¿Qué son las clasificaciones Walk Score®, Transit Score® y Bike Score®?
- Walk Score® mide la viabilidad peatonal de cualquier dirección.
- Transit Score® mide el acceso a transporte público.
- Bike Score® mide la infraestructura de rutas para bicicletas de cualquier dirección.
Preguntas Frecuentes sobre 3337 Reading Rd
¿Donde se encuentra 3337 Reading Rd?
3337 Reading Rd se encuentran en 3337 Reading Rd cerca de la zona Uptown Cincinnati en Cincinnati, OH
¿Cuál es el rango de alquiler vigente en 3337 Reading Rd?
1 dormitorio en 3337 Reading Rd por $895. ¡Llámenos hoy para obtener más información!
¿Se permiten mascotas?
Llámenos hoy para conocer nuestra política de mascotas y saber si las aceptamos.
Calificación Según Estilo de Vida:
Conocer más sobre la búsqueda de estilos de vidaSitios de Interés
Tiempo y distancia desde 3337 Reading Rd.
Arte, Museos y Monumentos
Grandes Superficies de Ventas
Kroger
Target
Petsmart
Universidad
Tiendas
Kroger
Hospitales
Parques y opciones de recreación
3337 Reading Rd tiene 5 parques en un radio de 2.5 millas, incluyendo Hauck Botanical Garden, Cincinnati Zoo, William Howard Taft Historical Site, Friendship Park, y Spring Grove Arboretum.
Restaurantes
Centros Comerciales
3337 Reading Rd tiene 5 centros comerciales en un radio de 2.3 millas.
Barrios cercanos
Rango de Precios de los Alquileres en la Zona
| Dormitorios | Precio Promedio | Más barato | Más caro |
|---|---|---|---|
| Apartamentos Estudio en Cincinnati | $1,231 | $506 | $3,911 |
| Apartamentos 1 Dormitorios en Cincinnati | $1,390 | $250 | $3,784 |
| Apartamentos 2 Dormitorios en Cincinnati | $1,735 | $600 | $6,290 |
| Apartamentos 3 Dormitorios en Cincinnati | $2,158 | $880 | $10,000+ |
| Apartamentos 4 Dormitorios en Cincinnati | $2,117 | $799 | $6,179 |
| Apartamentos 5 Dormitorios en Cincinnati | $3,344 | $749 | $10,000+ |
| Apartamentos 6 Dormitorios en Cincinnati | $4,524 | $3,000 | $9,002 |
Ver Apartamentos más destacados en Cincinnati
Por el Precio
- Apartamentos Barato en Cincinnati
- Apartamentos en Cincinnati menos de $600
- Apartamentos en Cincinnati menos de $700
- Apartamentos en Cincinnati menos de $800
- Apartamentos en Cincinnati menos de $900
- Apartamentos en Cincinnati menos de $1000
- Apartamentos en Cincinnati menos de $1200
- Apartamentos en Cincinnati menos de $1500
- Apartamentos en Cincinnati menos de $2000
- Apartamentos de Lujo en Cincinnati
Por tipo de comunidad
- Apartamentos en alquiler por el propietario en Cincinnati
- Apartamentos en Cincinnati con Oferta Especial
- Apartamentos en Cincinnati Más Valorados
- Apartamentos en Cincinnati Viviendas Corporativas
- Apartamentos en Cincinnati Amueblado
- Apartamentos en Cincinnati Reja de Entrada Automática
- Apartamentos en Cincinnati Loft
- Apartamentos en Cincinnati De Bajos Ingresos
- Apartamentos en Cincinnati Militar
- Nuevos Apartamentos en Cincinnati
- Apartamentos en Cincinnati Personas Mayores
- Apartamentos en Cincinnati Contratos de Corto Plazo
- Apartamentos en Cincinnati Estudiante
- Apartamentos en Cincinnati con Utilidades Incluidas
Por las Características
- Apartamentos en Cincinnati con Pisos de Madera
- Apartamentos en Cincinnati con Lavandería
- Apartamentos en Cincinnati con Estacionamiento Disponible
- Apartamentos en Cincinnati Se Permiten Mascotas
- Apartamentos en Cincinnati con Piscina(s)
- Apartamentos en Cincinnati con Lavadora y Secadora
- Apartamentos en Cincinnati con Estaciones de Carga EV
