Photos












- 5Dorm., 3BACasa
- $2,670
- 3,316Pies cuadrados
- Disponible ProntoDisponibilidad
Características y Facilidades
Características
- Chimenea
Cocina
- Rincón para el desayuno
Tasas y precio
Precio por Unidad
- $2,670
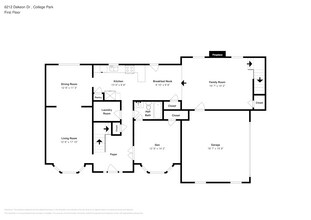
Acerca 6212 Dekeon Dr
Lease this home and get more from Invitation Homes professional property management. This home comes fully loaded with quality amenities, must-have services, high-end tech and ProCare® professional maintenance. Your estimated total monthly payment is $2814.90. That covers your base rent, $2670.00 + our required services designed to make your life easier: Air Filter Delivery Fee ($9.95), Internet & Media ($85), Smart Home with video doorbell ($40), and Utility Billing Service Fee ($9.95). Base rent varies based on selected lease term. *First full month base rent. $500 off with less than 24-month lease. Offer valid on select homes with an approved application by 2/18/26. Offer subject to change at any time at our sole discretion. Gift cards delivered via email within 30 days of move-in. This is the house you've been looking for. It's welcoming, stylish and comfortable. A breathtaking entryway and a functional design all come together to make a comfortable interior ready for you to transform it into your ideal home. Luxury vinyl plank flooring runs throughout the home's living area. The open living area gives you plenty of space for a dining room and entertainment area right by the fireplace. The comfortable kitchen space is complemented with sleek countertops, premium cabinets, and stainless-steel appliances. Meal times and household gatherings will be even sweeter in this kitchen space you can make your own. Turn this fenced backyard into your ideal outdoor space. Set outdoor meals on the patio, make room for outdoor plants and decorate as you see fit to make the yard a space that reflects your sense of style. Neighborhood amenities include a clubhouse and pool. Apply online now! This home is situated with a Gated Community that requires assisted entry. Please contact an Invitation Homes Leasing Specialist prior to scheduling a self-show. At Invitation Homes, we offer pet-friendly, yard-having homes for lease with Smart Home technology in awesome neighborhoods across the country. Live in a great house without the headache and long-term commitment of owning. Discover your dream home with Invitation Homes. To make your leasing lifestyle as hassle-free as possible, every Invitation Homes lease requires a subscription to our Lease Easy bundle. You’ll enjoy more convenience and control with standard services that may include air filter delivery, utility management, and Smart Home with video doorbell. Want to take easy to the next level? Lawn care and pest control are also available. Home Features and Amenities: Air Conditioning, Bay Windows, Breakfast Nook, Fenced Yard, Fireplace, Garage, Long Lease Terms, Luxury Vinyl Plank, Open Floorplan, Patio, Pet Friendly, Smart Home, Stainless Steel Appliances, Walk in Closet, W/D Hookups, and professionally managed by Invitation Homes. Neighborhood Features and Amenities: Clubhouse, Community Pool, Gated Community Invitation Homes is an equal housing lessor under the FHA. Applicable local, state and federal laws may apply. Additional terms and conditions apply. This listing is not an offer to rent. You must submit additional information including an application to rent and an application fee. All leasing information is believed to be accurate, but changes may have occurred since photographs were taken and square footage is estimated. Furthermore, prices and dates may change without notice. Every approved applicant must confirm the status of pet(s) in their home through and pay applicable pet registration fees prior to the execution of the final lease agreement. See InvitationHomes website for more information. Beware of scams: Employees of Invitation Homes will never ask you for your username and password. Invitation Homes does not advertise on Craigslist, Social Serve, etc. We own our homes; there are no private owners. All funds to lease with Invitation Homes are paid directly through our website, never through wire transfer or payment app like Zelle, Pay Pal, or Cash App. For more info, please submit an inquiry for this home. Applications are subject to our qualification requirements. Additional terms and conditions apply. CONSENT TO CALLS & TEXT MESSAGING: By entering your contact information, you expressly consent to receive emails, calls, and text messages from Invitation Homes including by autodialer, prerecorded or artificial voice and including marketing communications. Msg & Data rates may apply. You also agree to our Terms of Use and our Privacy Policy.
6212 Dekeon Dr se encuentra en el Barrio South Fulton y el código postal 30349 de College Park, GA.
Información de contacto de la propiedad
Fees and Policies
Las tarifas que se indican a continuación son proporcionadas por la comunidad y pueden excluir servicios públicos o complementos. Todos los pagos se realizan directamente a la propiedad y no son reembolsables, salvo que se especifique lo contrario.
Tasas Requeridas
Utilidades y servicios básicos
- Utility Billing Service FeeiCharged per unit$9.95/mes
- Air Filter Delivery FeeiCharged per unit$9.95/mes
- Smart Home with video doorbelliCharged per unit$40/mes
- Internet & MediaiCharged per unit$85/mes
Exención de responsabilidad sobre las tasas de propiedad: Based on community-supplied data and independent market research. Subject to change without notice. May exclude fees for mandatory or optional services and usage-based utilities.
Características y Facilidades
Servicios
- Con Jardín
Características al Aire Libre
- Parcela Vallada
- Acceso Controlado
- Patio
Características Interior
- Chimenea
Características de la Cocina
- Rincón Para El Desayuno
Características de la Sala de Estar
- Vestidores
Características únicas
- Garaje

Mapa
- Compras
- Supermercado
- Médicos
- Parques
- Transporte

Mapa
¿Qué son las clasificaciones Walk Score®, Transit Score® y Bike Score®?
- Walk Score® mide la viabilidad peatonal de cualquier dirección.
- Transit Score® mide el acceso a transporte público.
- Bike Score® mide la infraestructura de rutas para bicicletas de cualquier dirección.
Preguntas Frecuentes sobre 6212 Dekeon Dr
¿Qué tipo de alquileres hay disponibles en 6212 Dekeon Dr?
Actualmente hay un Casa de 5 Dormitorios 3 Baños en alquiler con 3,316 en 6212 Dekeon Dr. Está Disponible pronto .
¿Cuánto cuesta el alquiler ent 6212 Dekeon Dr?
6212 Dekeon Dr se lista actualmente en $2,670.
¿En qué zona de la ciudad se encuentra 6212 Dekeon Dr?
Está localizado en el barrio South Fulton, 6212 Dekeon Dr en el código postal 30349 de College Park, GA.
Escuelas Cercanas
Wolf Creek Elementary
Langston Hughes High School
Sitios de Interés
Tiempo y distancia desde 6212 Dekeon Dr.
Grandes Superficies de Ventas
Publix
Autozone
Target
Tiendas
Publix
Kroger
Aldi
Hospitales
Southern Crescent Behavioral Health System - Anchor Hospital Campus
Wellstar Douglas Hospital
Bases Militares
Fort McPherson
Parques y opciones de recreación
6212 Dekeon Dr tiene 1 parque en un radio de 9.2 millas, incluyendo Six Flags Over Georgia.
Restaurantes
Centros Comerciales
6212 Dekeon Dr tiene 5 centros comerciales en un radio de 4.4 millas.
Barrios cercanos
Apartamentos Cercanos
Rango de Precios de los Alquileres en la Zona
| Dormitorios | Precio Promedio | Más barato | Más caro |
|---|---|---|---|
| Apartamentos Estudio en College Park | $1,098 | $800 | $1,770 |
| Apartamentos 1 Dormitorios en College Park | $1,262 | $673 | $2,499 |
| Apartamentos 2 Dormitorios en College Park | $1,355 | $784 | $3,199 |
| Apartamentos 3 Dormitorios en College Park | $1,604 | $889 | $3,025 |
| Apartamentos 4 Dormitorios en College Park | $2,048 | $1,300 | $2,651 |
Ver Apartamentos más destacados en College Park
Por el Precio
- Apartamentos Barato en College Park
- Apartamentos en College Park menos de $700
- Apartamentos en College Park menos de $800
- Apartamentos en College Park menos de $900
- Apartamentos en College Park menos de $1000
- Apartamentos en College Park menos de $1200
- Apartamentos en College Park menos de $1500
- Apartamentos en College Park menos de $2000
- Apartamentos de Lujo en College Park
Por tipo de comunidad
- Apartamentos en alquiler por el propietario en College Park
- Apartamentos en College Park con Oferta Especial
- Apartamentos en College Park Más Valorados
- Apartamentos en College Park Viviendas Corporativas
- Apartamentos en College Park Amueblado
- Apartamentos en College Park Reja de Entrada Automática
- Apartamentos en College Park Loft
- Apartamentos en College Park De Bajos Ingresos
- Nuevos Apartamentos en College Park
- Apartamentos en College Park Personas Mayores
- Apartamentos en College Park Contratos de Corto Plazo
- Apartamentos en College Park con Utilidades Incluidas
