Photos


























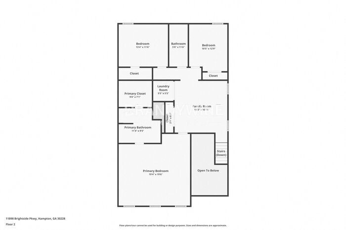
- 4BR, 3.5BA Home
- $2,650 Pricing
- 2,560 Square Feet
- Available Now Availability
Unit Rent and Fees
Unit Price
- $2,650
About 11898 Brightside Pkwy
This home is exclusively offered by Brandywine Homes USA on a first-come, first-approved basis until the lease is signed and the security deposit is paid. Rental Qualifications: Rental Fees: Security Deposit: Varies based on credit, with a standard deposit equal to 1 month's rent. Security Deposit Alternatives available - $150 fee (subject to approval). Additional mandatory fees: $60 application fee per applicant, $100 lease admin fee, and $25 Empower Program fee. Additional fees may apply, including $30 for smart home services, $175 for pool maintenance, and charges for pet fees (3 max), self-guided tours, and RBP Premier insurance. Brandywine Homes USA is an Equal Housing Lessor under the FHA. Lease terms apply. Photos may feature models and virtual staging. BEWARE OF LEASING FRAUD: We do not advertise on Craigslist or Facebook and will never ask you to wire funds. This property allows self guided viewing without an appointment. Contact for details.
11898 Brightside Pkwy is located in the 30228 Zip code of Hampton, GA.
Property Contact Info
- Listed by:
- Agency:
- Vendor Logo:
- Website:
- View Property Website
- Call Us:
- (888) 652-2272
- Disclaimer:
Lease Terms
- 12
Fees and Policies
The fees listed below are community-provided and may exclude utilities or add-ons. All payments are made directly to the property and are non-refundable unless otherwise specified.
Required Fees
One-Time Basics
- Due at Application
- Application FeeiCharged Per Applicant.$60
Pet Policy and Fees
CatsAllowedDogsAllowedProperty Fee Disclaimer: Based on community-supplied data and independent market research. Subject to change without notice. May exclude fees for mandatory or optional services and usage-based utilities.
Features and Amenities
On-Site Services
- Garden Style

Map
- Shopping
- Schools
- Grocery
- Medical

Map
Frequently Asked Questions about 11898 Brightside Pkwy
What type of rental is available at 11898 Brightside Pkwy?
There is currently a 4 Bed 3 Bath Home for rent with 2,560 sq ft listed at 11898 Brightside Pkwy. It is Available Now.
How much is the rent at 11898 Brightside Pkwy?
The rental at 11898 Brightside Pkwy is currently listed at $2,650.
What area of town is 11898 Brightside Pkwy located in?
11898 Brightside Pkwy is in the 30228 Zip Code of Hampton, GA.
Points of Interest
Time and distance from 11898 Brightside Pkwy.
Big Box and Retail
Target
Aldi
Petsmart
Groceries
Sprouts Farmers Market
Aldi
H Mart
Hospitals
Shopping Centers
11898 Brightside Pkwy has 5 shopping centers within 0.7 miles.
Nearby Neighborhoods
Nearby Apartments
Rental Price Ranges in the Area
| Bedroom | Average Rent | Cheapest Rent | Highest Rent |
|---|---|---|---|
| Hampton Studio Apartments | $1,407 | $1,199 | $1,935 |
| Hampton 1 Bedroom Apartments | $1,581 | $1,103 | $5,174 |
| Hampton 2 Bedroom Apartments | $1,879 | $1,050 | $5,355 |
| Hampton 3 Bedroom Apartments | $2,372 | $1,375 | $5,284 |
| Hampton 4 Bedroom Apartments | $3,050 | $2,799 | $3,275 |
Browse Top Apartments in Hampton
By Price
By Community Type
- Hampton Apartments with Rent Specials
- Hampton Top Rated Apartments
- Hampton Corporate Apartments
- Hampton Furnished Apartments
- Hampton Gated Apartments
- Hampton Loft Apartments
- Hampton Low Income Apartments
- New Hampton Apartments
- Hampton Senior Apartments
- Hampton Short-term Apartments
- Hampton Student Apartments
- Hampton Apartments with Utilities Included
