Photos






























- 4BR, 2.5BA Home
- $2,180 Pricing
- 1,896 Square Feet
- Available Now Availability
Unit Rent and Fees
Unit Price
- $2,180
Deposit
- $1,000 deposit
About 139 Shenandoah Ln
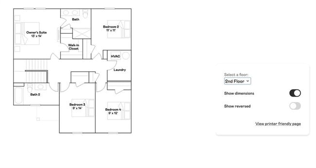
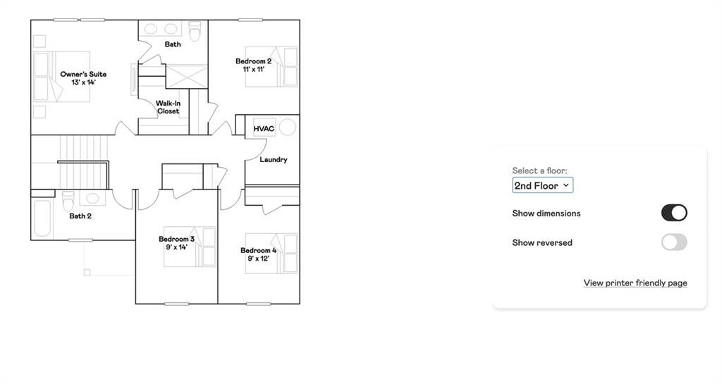
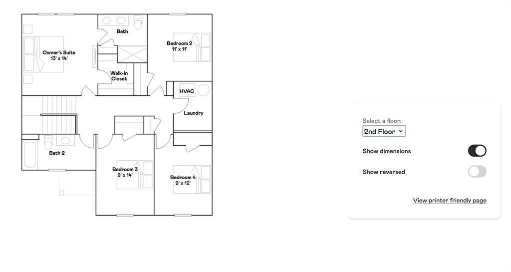
Brand New,Never Lived-In 4-Bedroom Home Modern Living with Community Amenities! Be the first to live in this beautifully designed brand new,never lived-in two-story home,offering the perfect combination of comfort,space,and modern style. As you enter,you're welcomed by a bright,open-concept layout featuring a contemporary kitchen with a large center island perfect for cooking,dining,and entertaining. The kitchen flows seamlessly into the dining area and a spacious Great Room,creating a warm and inviting space for everyday living. Upstairs,all four bedrooms are thoughtfully positioned to provide privacy and convenience. The spacious owner's suite serves as a relaxing retreat,complete with a private bathroom and a large walk-in closet. Enjoy the benefits of a fresh,move-in ready home with brand new finishes throughout,offering a clean and low-maintenance lifestyle. Community Amenities Include: Swimming Pool Pool House Playground Dog Park MLS ID 7740705
139 Shenandoah Ln is located in the 30241 Zip code of Lagrange, GA.
Property Contact Info
Lease Terms
- 12
Fees and Policies
The fees listed below are community-provided and may exclude utilities or add-ons. All payments are made directly to the property and are non-refundable unless otherwise specified.
Required Fees
One-Time Basics
- Due at Move-In
- Security Deposit - RefundableiCharged Per Unit.$1000
Property Fee Disclaimer: Based on community-supplied data and independent market research. Subject to change without notice. May exclude fees for mandatory or optional services and usage-based utilities.
Features and Amenities
On-Site Services
- Garden Style
Interior Features
- Trash Compactor
Kitchen Amenities
- Dishwasher
- Microwave
- Range
- Refrigerator
- Disposal

Map
- Shopping
- Schools
- Grocery
- Medical

Map
Frequently Asked Questions about 139 Shenandoah Ln
What type of rental is available at 139 Shenandoah Ln?
There is currently a 4 Bed 2 Bath Home for rent with 1,896 sq ft listed at 139 Shenandoah Ln. It is Available Now.
How much is the rent at 139 Shenandoah Ln?
The rental at 139 Shenandoah Ln is currently listed at $2,180.
What area of town is 139 Shenandoah Ln located in?
139 Shenandoah Ln is in the 30241 Zip Code of Lagrange, GA.
Points of Interest
Time and distance from 139 Shenandoah Ln.
Big Box and Retail
Goodwill
Autozone
Kroger
Groceries
Kroger
Hospitals
Shopping Centers
139 Shenandoah Ln has 5 shopping centers within 1.3 miles.
Nearby Apartments
Rental Price Ranges in the Area
| Bedroom | Average Rent | Cheapest Rent | Highest Rent |
|---|---|---|---|
| Lagrange Studio Apartments | $1,092 | $800 | $1,285 |
| Lagrange 1 Bedroom Apartments | $1,255 | $830 | $1,650 |
| Lagrange 2 Bedroom Apartments | $1,410 | $875 | $2,000 |
| Lagrange 3 Bedroom Apartments | $1,597 | $1,075 | $2,200 |
| Lagrange 4 Bedroom Apartments | $1,375 | $1,375 | $1,375 |
Browse Top Apartments in Lagrange
By Price
By Community Type
- Lagrange Apartments with Rent Specials
- Lagrange Top Rated Apartments
- Lagrange Corporate Apartments
- Lagrange Furnished Apartments
- Lagrange Gated Apartments
- Lagrange Loft Apartments
- Lagrange Low Income Apartments
- New Lagrange Apartments
- Lagrange Senior Apartments
- Lagrange Short-term Apartments
- Lagrange Apartments with Utilities Included