Photos


- 2BR, 1BA
- $3,195Plus Fees
- Available NowAvailability
Unit Rent and Fees
Unit Price
- $3,195Plus Fees
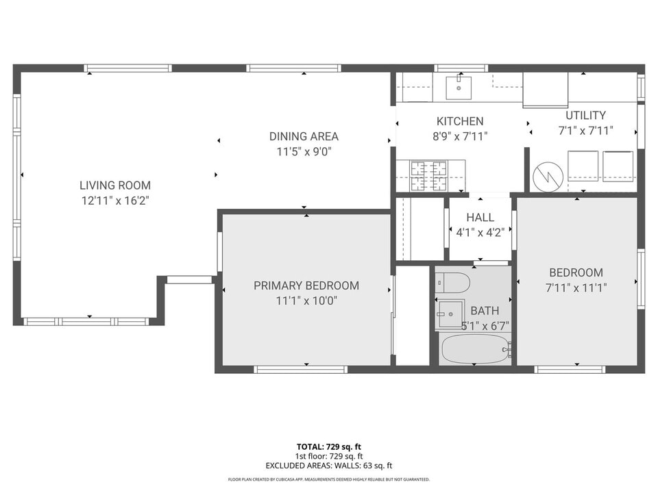
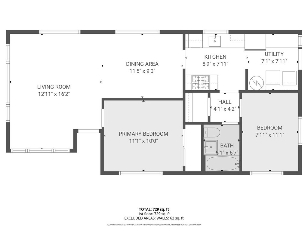
About 2443 Union St
This fully updated 2 BD / 1 BA apartment home features updated flooring, a sleek kitchen with brand new appliances, a spacious living room, washer/dryer in-unit, new modern fixtures throughout, a private backyard and a manual compact storage garage. Nestled between Little Italy and Bankers Hill, Middletown provides easy access to freeways, public transportation, The San Diego Airport and San Diego Bay. RENTAL DETAILS Lease Duration: 12 months Resident Pays: Gas/Electric, Water/Sewer (RUBS), Trash Pickup (RUBS), Cable/Internet Heating/Air: Heater In-Unit/Ceiling Fans Parking: Street Parking / (1) Compact Manual Garage - Storage only Laundry: In-unit Washer/Dryer Pet Policy: $250 Pet Deposit, $30/month Pet Rent SHOWINGS TO BOOK A SHOWING: NOTE: If you are asked to enter your social security number, it is because you did not pass the ID scan or credit card identification check. Our software will only take government issued state Identification Cards with clear, well-lit photos. We must take strict security measures to verify your identity in order to avoid scams. APPLICATIONS Do NOT apply if you have not toured the inside of the rental home in-person. You must tour the rental home prior to applying. There are no exceptions. If you apply prior to touring the inside, your application will be denied. Due to the competitive San Diego rental market, we always have multiple applications pending for every property as prospects can submit electronic applications 24 hours a day, 7 days a week. Therefore, if you choose to submit an application, you agree to the terms and conditions of the application that state your $40.00 application fee is non-refundable regardless if someone ahead of you is approved. To apply, visit The Mendes Company website under “Property Management.” QUALIFICATIONS FOR THIS PROPERTY ONLY: The rental decision is based on these four combined factors: 1. Good Credit History 2. Positive Rental References 3. Gross Monthly Income (at least 2.5 times the monthly rent) 4. Your Lease Start Date **Guarantors/Co-signers are NOT allowed for this property. If you submit a Guarantor/Co-signer Application, the application fee will NOT be refunded.*** SCAM ALERT! The Mendes Company does NOT advertise rental homes or apartments on Craigslist or Facebook. Our “landlords” will never schedule a showing for you or collect payment from you. Showings and applications may only be done on The Mendes Company website. FAIR HOUSING COMPLIANCE The Mendes Company complies with all federal, state. and local fair housing laws and welcomes persons of all race, color, religion, nationality, sex, familial status, disability, sexual orientation, and gender identity.
2443 Union St is located in the Bankers Hill Neighborhood and 92101 Zip code of San Diego, CA.
Property Contact Info
Features and Amenities
Interior Features
- Washer/Dryer
Kitchen Amenities
- Dishwasher
- Microwave
- Refrigerator

Map
- Shopping
- Colleges
- Schools
- Grocery
- Medical
- Parks
- Transportation

Map
What Are Walk Score®, Transit Score®, and Bike Score® Ratings?
- Walk Score® measures the walkability of any address.
- Transit Score® measures access to public transit.
- Bike Score® measures the bikeability of any address.
Frequently Asked Questions about 2443 Union St
What type of rentals are available at 2443 Union St?
There is currently a 2 Bed 1 Bath Apartment for rent listed at 2443 Union St. It is Available Now.
How much is the rent at 2443 Union St?
2443 Union St is currently listed at $3,195.
What area of town is 2443 Union St located in?
Located in the Bankers Hill Neighborhood, 2443 Union St is in the 92101 Zip Code of San Diego, CA.
Points of Interest
Time and distance from 2443 Union St.
Arts Museums and Landmarks
Big Box and Retail
Mervyn's
Walgreens
Goodwill
Colleges and Universities
Groceries
Ralphs
Vons
Whole Foods
Hospitals
Uc San Diego Health Hirest - Hirest Medical Center
Military Bases
San Diego Naval Medical Center
San Diego Marine Corps Recruit Depot
US Marine Corp Recruit Depot
Parks and Recreation
2443 Union St has 5 parks within 10.3 miles, including San Diego Zoo, Old Town State Historic Park, Ocean Beach, Belmont Park, and La Jolla Shores.
Restaurants and Dining
Shopping Centers
2443 Union St has 5 shopping centers within 1.3 miles.
Transit Stations
Nearby Neighborhoods
Nearby Apartments
Rental Price Ranges in the Area
| Bedroom | Average Rent | Cheapest Rent | Highest Rent |
|---|---|---|---|
| San Diego Studio Apartments | $2,428 | $974 | $6,106 |
| San Diego 1 Bedroom Apartments | $2,878 | $1,180 | $10,000+ |
| San Diego 2 Bedroom Apartments | $3,560 | $855 | $10,000+ |
| San Diego 3 Bedroom Apartments | $4,611 | $930 | $10,000+ |
| San Diego 4 Bedroom Apartments | $4,756 | $875 | $10,000+ |
| San Diego 5 Bedroom Apartments | $7,337 | $871 | $10,000+ |
Browse Top Apartments in San Diego
By Price
By Community Type
- San Diego Apartments for Rent by Owner
- San Diego Apartments with Rent Specials
- San Diego Top Rated Apartments
- San Diego Corporate Apartments
- San Diego Furnished Apartments
- San Diego Gated Apartments
- San Diego Loft Apartments
- San Diego Low Income Apartments
- San Diego Military Apartments
- New San Diego Apartments
- San Diego Senior Apartments
- San Diego Short-term Apartments
- San Diego Student Apartments
- San Diego Apartments with Utilities Included
