Photos












- 4Dorm., 2.5BACasa
- $2,240Precio
- 1,567Pies cuadrados
- 11-28-2025Disponibilidad
Tasas y precio
Precio por Unidad
- $2,240
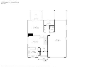
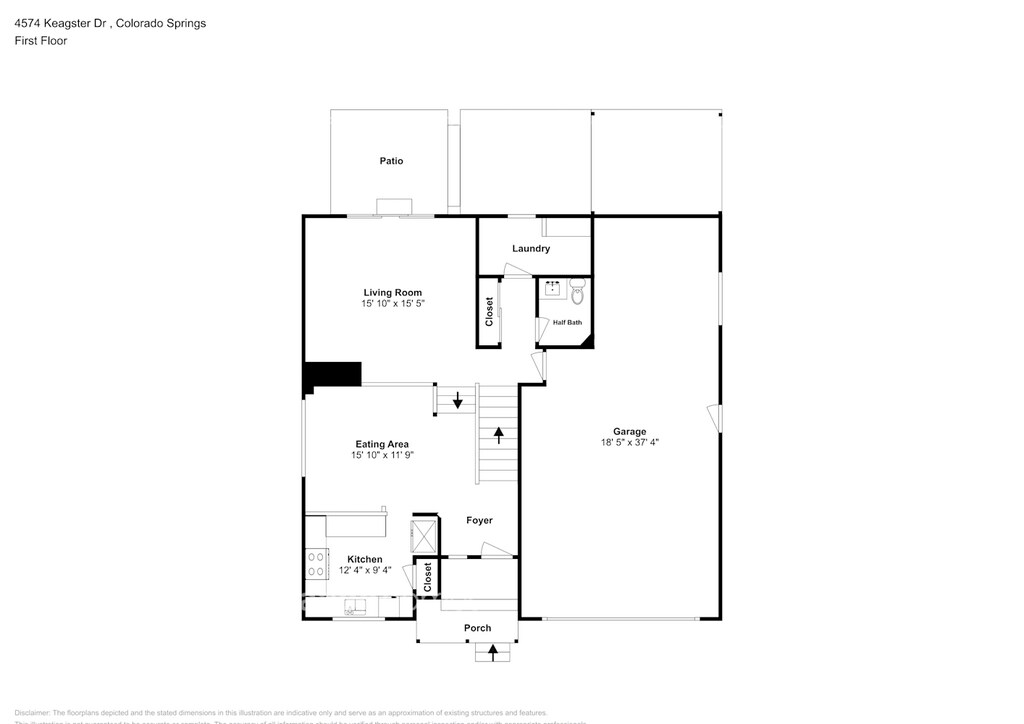
Acerca 4574 Keagster Dr
Lease this home and get more from Invitation Homes professional property management. This home comes fully loaded with quality amenities, must-have services, high-end tech and ProCare® professional maintenance. Your estimated total monthly payment is $2299.90. That covers your base rent, $2240.00 + our required services designed to make your life easier: Air Filter Delivery Fee ($9.95), Smart Home with video doorbell ($40), and Utility Billing Service Fee ($9.95). Base rent varies based on selected lease term. This could all be yours, really. Invite your family and friends for quality time in a home that reflects your spirit. The living space's stylish finishes offer a blank canvas you can make your own. You’ll love the beautiful kitchen complete with premium cabinets, tastefully stained granite countertops and stainless steel appliances. The cooking space is set up to accommodate a cook who knows their way around a kitchen. With this great backyard, you'll get private outdoor space perfect for lounging. The space is complete with a patio and deck. Apply online today! At Invitation Homes, we offer pet-friendly, yard-having homes for lease with Smart Home technology in awesome neighborhoods across the country. Live in a great house without the headache and long-term commitment of owning. Discover your dream home with Invitation Homes. Our Lease Easy bundle – which includes Smart Home, Air Filter Delivery, and Utilities Management – is a key part of your worry-free leasing lifestyle. These services are required by your lease at an additional monthly cost. Monthly fees for pets and pools may also apply. Home Features and Amenities: Covered Porch, Deck, Fenced Yard, Garage, Granite Countertops, Long Lease Terms, Luxury Vinyl Plank, Patio, Pet Friendly, Recessed Lighting, Smart Home, Stainless Steel Appliances, Walk in Closet, W/D Hookups, and professionally managed by Invitation Homes. This Invitation Home is being enjoyed by another resident, but it will be available soon. You can still apply – contact us for more details or apply now. Invitation Homes is an equal housing lessor under the FHA. Applicable local, state and federal laws may apply. Additional terms and conditions apply. This listing is not an offer to rent. You must submit additional information including an application to rent and an application fee. All leasing information is believed to be accurate, but changes may have occurred since photographs were taken and square footage is estimated. Furthermore, prices and dates may change without notice. See InvitationHomes website for more information. Beware of scams: Employees of Invitation Homes will never ask you for your username and password. Invitation Homes does not advertise on Craigslist, Social Serve, etc. We own our homes; there are no private owners. All funds to lease with Invitation Homes are paid directly through our website, never through wire transfer or payment app like Zelle, Pay Pal, or Cash App. For more info, please submit an inquiry for this home. Applications are subject to our qualification requirements. Additional terms and conditions apply. CONSENT TO CALLS & TEXT MESSAGING: By entering your contact information, you expressly consent to receive emails, calls, and text messages from Invitation Homes including by autodialer, prerecorded or artificial voice and including marketing communications. Msg & Data rates may apply. You also agree to our Terms of Use and our Privacy Policy.
4574 Keagster Dr se encuentra en el Barrio Fountain Valley Ranch y el código postal 80911 de Colorado Springs, CO.
Información de contacto de la propiedad
Términos de Arrendamiento
- Têrminos del Alquiler
Fees and Policies
Las tarifas que figuran a continuación se basan en datos facilitados por la comunidad y pueden excluir tasas y servicios adicionales.
Tasas Requeridas
Utilidades y servicios básicos
- Utility Billing Service Fee$9.95/mes
- Air Filter Delivery Fee$9.95/mes
- Smart Home with video doorbell$40/mes
Pet Policy and Fees
Dogs
- Fees Not Specified
Cats
- Fees Not Specified
Parking Info and Fees
- Garage Parking
Exención de responsabilidad sobre las tasas de propiedad: Based on community-supplied data and independent market research. Subject to change without notice. May exclude fees for mandatory or optional services and usage-based utilities.
Características y Facilidades
Características Propias
- Tarifa de envío del filtro de aire
- Casa inteligente con videoportero
- Tarifa por servicio de facturación de servicios públicos
Servicios
- Con Jardín
Características al Aire Libre
- Parcela Vallada
- Cubierta
- Porche
- Patio
Características de la Sala de Estar
- Vestidores
Características únicas
- Garaje

Mapa
- Compras
- Universidades
- Supermercado
- Médicos
- Parques

Mapa
¿Qué son las clasificaciones Walk Score®, Transit Score® y Bike Score®?
- Walk Score® mide la viabilidad peatonal de cualquier dirección.
- Transit Score® mide el acceso a transporte público.
- Bike Score® mide la infraestructura de rutas para bicicletas de cualquier dirección.
Preguntas Frecuentes sobre 4574 Keagster Dr
¿Qué tipo de alquileres hay disponibles en 4574 Keagster Dr?
Actualmente hay un Casa de 4 Dormitorios 2 Baños en alquiler con 1,567 en 4574 Keagster Dr. Está Disponible November 28, 2025.
¿Cuánto cuesta el alquiler ent 4574 Keagster Dr?
4574 Keagster Dr se lista actualmente en $2,240.
¿En qué zona de la ciudad se encuentra 4574 Keagster Dr?
Está localizado en el barrio Fountain Valley Ranch, 4574 Keagster Dr en el código postal 80911 de Colorado Springs, CO.
Acerca del informe portátil de verificación de antecedentes del inquilino
El postulante tiene derecho a proporcionar al administrador o dueño de la propiedad un "Informe portátil de verificación de antecedentes del inquilino (PTSR, por su sigla en inglés) de no más de 30 días de antigüedad, como se establece en el párrafo § 38-12-902(2.5) de los Estatutos Revisados de Colorado; y 2) si el Postulante proporciona al administrador o dueño de la propiedad un PTSR, el administrador o dueño de la propiedad tiene prohibido: a) cobrar al Postulante un honorario por postulación de alquiler; o b) cobrar al Postulante un honorario para que el administrador o dueño de la propiedad acceda o use el PTSR.
Escuelas Cercanas
Sproul Junior High School
Widefield High School
French Elementary School
Sitios de Interés
Tiempo y distancia desde 4574 Keagster Dr.
Arte, Museos y Monumentos
Grandes Superficies de Ventas
Walgreens
Goodwill
Lowe's
Universidad
Pikes Peak Community College - Downtown Studio Campus
Tiendas
Safeway
King Soopers
Hospitales
Bases Militares
Peterson Space Force Base
Parques y opciones de recreación
4574 Keagster Dr tiene 5 parques en un radio de 11.7 millas, incluyendo Palmer Park, Seven Falls, Red Rock Canyon, Rock Ledge Ranch, y Garden of the Gods.
Centros Comerciales
4574 Keagster Dr tiene 5 centros comerciales en un radio de 2.0 millas.
Barrios cercanos
Apartamentos Cercanos
Rango de Precios de los Alquileres en la Zona
| Dormitorios | Precio Promedio | Más barato | Más caro |
|---|---|---|---|
| Apartamentos Estudio en Colorado Springs | $1,320 | $745 | $2,800 |
| Apartamentos 1 Dormitorios en Colorado Springs | $1,462 | $570 | $4,611 |
| Apartamentos 2 Dormitorios en Colorado Springs | $1,778 | $500 | $6,253 |
| Apartamentos 3 Dormitorios en Colorado Springs | $2,240 | $540 | $4,678 |
| Apartamentos 4 Dormitorios en Colorado Springs | $2,592 | $1,719 | $3,363 |
Ver Apartamentos más destacados en Colorado Springs
Por el Precio
- Apartamentos Barato en Colorado Springs
- Apartamentos en Colorado Springs menos de $600
- Apartamentos en Colorado Springs menos de $700
- Apartamentos en Colorado Springs menos de $800
- Apartamentos en Colorado Springs menos de $900
- Apartamentos en Colorado Springs menos de $1000
- Apartamentos en Colorado Springs menos de $1200
- Apartamentos en Colorado Springs menos de $1500
- Apartamentos en Colorado Springs menos de $2000
- Apartamentos de Lujo en Colorado Springs
Por tipo de comunidad
- Apartamentos en alquiler por el propietario en Colorado Springs
- Apartamentos en Colorado Springs con Oferta Especial
- Apartamentos en Colorado Springs Más Valorados
- Apartamentos en Colorado Springs Viviendas Corporativas
- Apartamentos en Colorado Springs Amueblado
- Apartamentos en Colorado Springs Reja de Entrada Automática
- Apartamentos en Colorado Springs Loft
- Apartamentos en Colorado Springs De Bajos Ingresos
- Apartamentos en Colorado Springs Militar
- Nuevos Apartamentos en Colorado Springs
- Apartamentos en Colorado Springs Personas Mayores
- Apartamentos en Colorado Springs Contratos de Corto Plazo
- Apartamentos en Colorado Springs Estudiante
- Apartamentos en Colorado Springs con Utilidades Incluidas
Por las Características
- Apartamentos en Colorado Springs con Pisos de Madera
- Apartamentos en Colorado Springs con Lavandería
- Apartamentos en Colorado Springs con Estacionamiento Disponible
- Apartamentos en Colorado Springs Se Permiten Mascotas
- Apartamentos en Colorado Springs con Piscina(s)
- Apartamentos en Colorado Springs con Lavadora y Secadora
- Apartamentos en Colorado Springs con Estaciones de Carga EV
