Photos





















- 3BR, 2BAHome
- $2,100Price
- 1,895Square Feet
- Available NowAvailability
Unit Rent and Fees
Unit Price
- $2,100
About 1027 Mandalay Ct SW
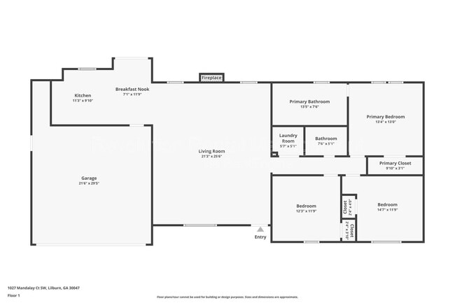
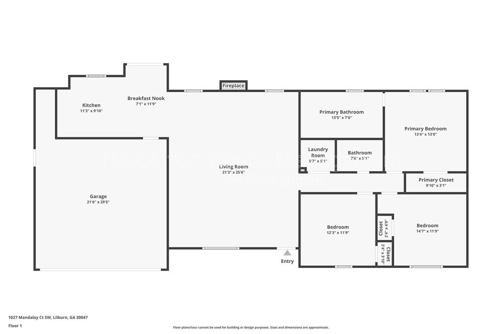
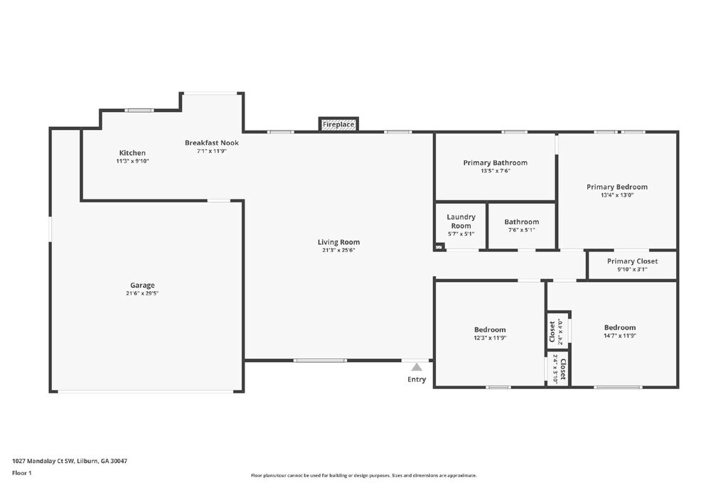
**Charming 3-Bedroom Home with Spacious Living and Outdoor Retreat 1027 Mandalay Ct SW, Lilburn, GA 30047** Welcome to this inviting 3-bedroom, 2-bathroom home offering 1,895 square feet of comfortable living space, ideally situated in a quiet, well-established neighborhood in Lilburn, GA. Step inside to discover a bright and open floor plan featuring a cozy fireplace perfect for relaxing or entertaining. The generously sized living and dining areas flow seamlessly and are complemented by central air conditioning to keep you comfortable year-round. The kitchen comes equipped with a range/stove and offers ample space for meal preparation and dining. Each of the three bedrooms provides flexible space to accommodate your individual needs for rest, work, or recreation. Enjoy the outdoors on the spacious deck overlooking a fully fenced backyardideal for outdoor activities, relaxation, or gardening. Additional amenities include a one-car attached garage for convenient parking and storage. Located near local shopping, dining, parks, and major commuter routes, this home offers both convenience and comfort in a desirable Lilburn location. Don't miss the opportunity to make this well-maintained property your next home. Contact us today to schedule a tour! Revolution is proud to offer a security deposit alternative to all residents! If you don't want to pay a traditional security deposit, you can instead opt to pay a monthly non-refundable fee. Once your application is scored, we will let you know what that fee would be, and you will be able to choose between that and a traditional deposit. All Revolution residents will also pay a fee for a Resident Benefits Package that provides renter's insurance, HVAC filter delivery, credit reporting to boost your credit score, a rental rewards program, and other benefits. The cost of this program along with fees for various things such as pets are listed on our application on our web site at Revolution is proud to be a pet friendly company! We do not discriminate against pets on the basis of age, breed, weight, or other characteristics, as long as the pet is legal and no HOA or Condo Board for the property disallows it. All pets do have to be screened, which you will do at the time of your application, and pet fees will be charged based on the calculated risk of the pet. Revolution Rental Management is committed to providing equal housing opportunities to all individuals, regardless of race, color, religion, sex, national origin, disability, familial status, sexual orientation, gender identity, or any other protected characteristic as defined by applicable law or NARPM Ethics standards. We will not discriminate in the sale, rental, or financing of housing. By submitting your information on this page you consent to being contacted by the Property Manager and RentEngine via SMS, phone, or email.
1027 Mandalay Ct SW is located in the 30047 Zip code of Lilburn, GA.
Property Contact Info
Features and Amenities
On-Site Services
- Garden Style
Interior Features
- Fireplace
Kitchen Amenities
- Range

Map
- Shopping
- Colleges
- Grocery
- Medical
- Parks
- Transportation

Map
What Are Walk Score®, Transit Score®, and Bike Score® Ratings?
- Walk Score® measures the walkability of any address.
- Transit Score® measures access to public transit.
- Bike Score® measures the bikeability of any address.
Frequently Asked Questions about 1027 Mandalay Ct SW
What type of rental is available at 1027 Mandalay Ct SW?
There is currently a 3 Bed 2 Bath Home for rent with 1,895 sq ft listed at 1027 Mandalay Ct SW. It is Available Now.
How much is the rent at 1027 Mandalay Ct SW?
The rental at 1027 Mandalay Ct SW is currently listed at $2,100.
What area of town is 1027 Mandalay Ct SW located in?
1027 Mandalay Ct SW is in the 30047 Zip Code of Lilburn, GA.
Nearby Schools
Camp Creek Elementary School
Parkview High School
About GreatSchools Data on ApartmentHomeLiving.com.
Points of Interest
Time and distance from 1027 Mandalay Ct SW.
Big Box and Retail
Petsmart
Lowe's
Walgreens
Colleges and Universities
Georgia Perimeter College - Clarkston Campus
Groceries
Lidl
Kroger
Aldi
Hospitals
Summit Ridge Center - Psychiatry & Addiction Medicine
Parks and Recreation
1027 Mandalay Ct SW has 1 park within 3.4 miles, including Stone Mountain Park.
Shopping Centers
1027 Mandalay Ct SW has 5 shopping centers within 2.1 miles.
Nearby Neighborhoods
Nearby Apartments
Rental Price Ranges in the Area
| Bedroom | Average Rent | Cheapest Rent | Highest Rent |
|---|---|---|---|
| Lilburn Studio Apartments | $1,392 | $949 | $2,158 |
| Lilburn 1 Bedroom Apartments | $1,330 | $975 | $3,588 |
| Lilburn 2 Bedroom Apartments | $1,630 | $1,032 | $4,101 |
| Lilburn 3 Bedroom Apartments | $2,042 | $1,450 | $3,893 |
| Lilburn 4 Bedroom Apartments | $5,992 | $2,491 | $10,000+ |
Browse Top Apartments in Lilburn
By Price
By Community Type
- Lilburn Apartments with Rent Specials
- Lilburn Top Rated Apartments
- Lilburn Corporate Apartments
- Lilburn Furnished Apartments
- Lilburn Gated Apartments
- Lilburn Low Income Apartments
- New Lilburn Apartments
- Lilburn Senior Apartments
- Lilburn Short-term Apartments
- Lilburn Apartments with Utilities Included
