Photos






























- 3BR, 2BAHome
- $2,750Plus Fees
- 1,471Square Feet
- Available NowAvailability
Unit Rent and Fees
Unit Price
- $2,750Plus Fees
About 30 Dart St
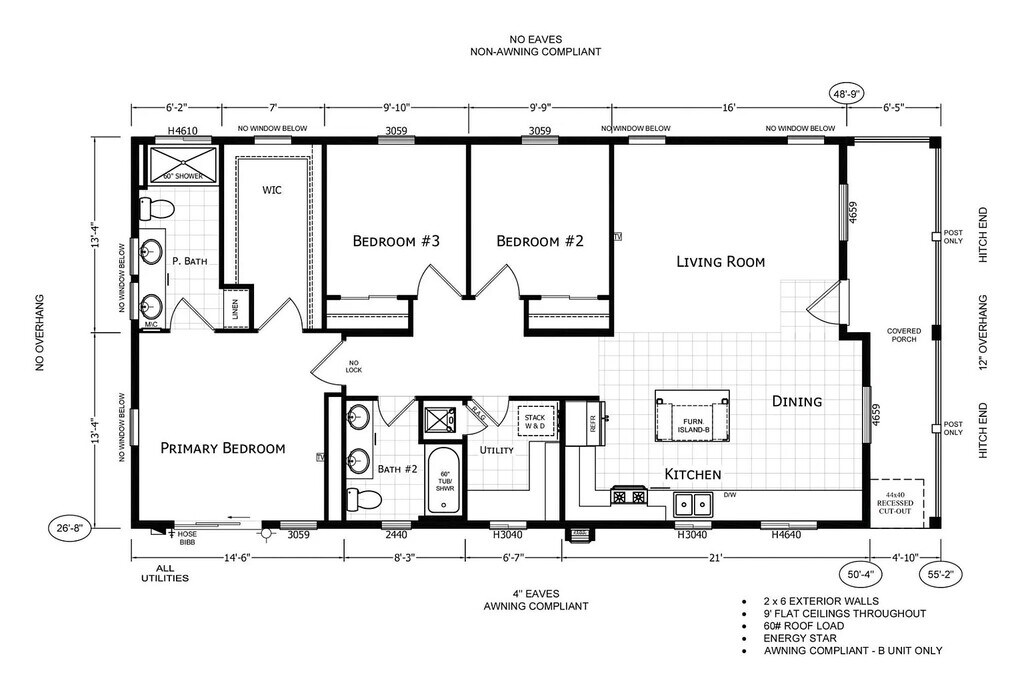
Brand new 2023 construction Craftsman home. Be the first to rent this freshly manufactured Skyline home. Sporting 9 foot ceilings, it combines modern conveniences with a historic old world California charm. Energy efficient e-windows, ultra insulated, it will stay comfortable year around. The porch is large enough for summer entertaining. The optimized floor plan makes this house operated like a larger 2000 sf house. It includes a dedicated laundry room and ADA compliant master shower. Three large bedrooms, and a huge master bedroom closet make it ideal for a family of 4-5. Tenant pays for electric, gas, water, sewer and trash. $750 pet deposit. Facts & Features 3 bedrooms, 2 full bathrooms 1,471 sq ft of living space In-unit washer & dryer Forced-air heating and wall-unit cooling Appliances Included: Refrigerator, range/oven, dishwasher, washer & dryer Parking: Off-street parking (contact manager for details) Exterior & Utilities: Private pool Electricity, water, gas, garbage, and sewage not included in rent Property Type: Single-family residence HOA Amenities: Pool access Location: Loma Linda Lease Term: 1 year
30 Dart St is located in the North Central Neighborhood and 92354 Zip code of Loma Linda, CA.
Property Contact Info
Features and Amenities
On-Site Services
- Garden Style
Interior Features
- Washer/Dryer Hookup
- Washer/Dryer
Kitchen Amenities
- Dishwasher

Map
- Shopping
- Colleges
- Schools
- Grocery
- Medical
- Transportation

Map
What Are Walk Score®, Transit Score®, and Bike Score® Ratings?
- Walk Score® measures the walkability of any address.
- Transit Score® measures access to public transit.
- Bike Score® measures the bikeability of any address.
Frequently Asked Questions about 30 Dart St
What type of rental is available at 30 Dart St?
There is currently a 3 Bed 2 Bath Home for rent with 1,471 sq ft listed at 30 Dart St. It is Available Now.
How much is the rent at 30 Dart St?
The rental at 30 Dart St is currently listed at $2,750.
What area of town is 30 Dart St located in?
Located in the North Central Neighborhood, 30 Dart St is in the 92354 Zip Code of Loma Linda, CA.
Points of Interest
Time and distance from 30 Dart St.
Arts Museums and Landmarks
Big Box and Retail
Aldi
Petsmart
Lowe's
Colleges and Universities
Groceries
Aldi
Smart & Final
Baker's
Hospitals
Loma Linda University Children's Hospital
Loma Linda University Medical Center
Loma Linda University Behavioral Medical Center
Shopping Centers
30 Dart St has 5 shopping centers within 0.6 miles.
Transit Stations
San Bernardino-Inland Empire-Orange County Line
San Bernardino-San Bernardino Line
Rialto-San Bernardino Line
Nearby Neighborhoods
Nearby Apartments
Rental Price Ranges in the Area
| Bedroom | Average Rent | Cheapest Rent | Highest Rent |
|---|---|---|---|
| Loma Linda Studio Apartments | $1,841 | $1,525 | $2,269 |
| Loma Linda 1 Bedroom Apartments | $2,151 | $1,567 | $2,564 |
| Loma Linda 2 Bedroom Apartments | $2,500 | $1,850 | $3,050 |
| Loma Linda 3 Bedroom Apartments | $2,832 | $2,150 | $3,218 |
| Loma Linda 4 Bedroom Apartments | $2,600 | $2,600 | $2,600 |
Browse Top Apartments in Loma Linda
By Price
By Community Type
- Loma Linda Apartments for Rent by Owner
- Loma Linda Apartments with Rent Specials
- Loma Linda Top Rated Apartments
- Loma Linda Corporate Apartments
- Loma Linda Furnished Apartments
- Loma Linda Gated Apartments
- Loma Linda Low Income Apartments
- New Loma Linda Apartments
- Loma Linda Senior Apartments
- Loma Linda Short-term Apartments
- Loma Linda Student Apartments
- Loma Linda Apartments with Utilities Included
