Photos






























- 5BR, 3BAHome
- $2,650
- 2,696Square Feet
- 02-01-2026Availability
Unit Rent and Fees
Unit Price
- $2,650
Deposit
- $2,650 deposit
About 3845 Rory Pond Ct
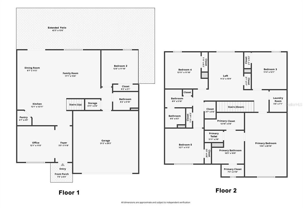
One or more photo(s) has been virtually staged. ***2025 NEWER HOME WITH PEACEFUL POND & SUNSET VIEWS ON A DEAD-END STREET,AND UPGRADED FEATURES*** This spacious home offers 5 BEDROOMS (including a 1st Floor Guest Bedroom),3 BATHROOMS,a versatile OFFICE/FLEX/BONUS ROOM,and an additional LOFT to fit all your family’s needs. Located in the desirable LAKES AT LAUREL HIGHLANDS,you’ll enjoy resort-style amenities including a sparkling Pool,Clubhouse,Fitness Center,and Playground surrounded by nature. UPGRADED FEATURES INCLUDE: WATER SOFTENER,1st-FLOOR WALK-IN SHOWER by Guest Bedroom,TILE FLOORING THROUGHOUT DOWNSTAIRS (NO CARPET),and a FULLY FENCED BACKYARD with a NEW OVERSIZED & EXTENDED PATIO—ideal for creating your dream outdoor oasis with tranquil WATER VIEWS and DAILY SUNSETS. An inviting foyer opens to a LARGE OFFICE/FLEX ROOM,perfect for work or relaxation. The OPEN-CONCEPT KITCHEN features rich dark SOLID WOOD CABINETS,STAINLESS STEEL APPLIANCES,GRANITE COUNTERTOPS,and a WALK-IN PANTRY,flowing seamlessly into the GREAT ROOM for easy entertaining and everyday living. From the dining area,sliding glass doors lead to your private OUTDOOR RETREAT. The downstairs also includes a GUEST BEDROOM with an ADJACENT FULL BATHROOM,providing privacy and comfort for visitors or in-laws. Upstairs,a cozy LOFT AREA makes a great playroom,den,or extra gathering space. Retreat to the spacious PRIMARY SUITE with Ensuite Bathroom,HIS & HERS WALK-IN CLOSETS,large walk-in shower,dual vanities,linen closet,and private toilet room. The remaining three bedrooms share a well-appointed bathroom with dual vanities and a separate tub/shower combo with toilet. The LAUNDRY ROOM is conveniently located upstairs to simplify daily chores. Conveniently located near the Polk Parkway,top Medical Facilities,Hospitals,Shopping,and Restaurants. Don’t miss the chance to make this exceptional home yours—schedule your showing today! ***THIS HOME IS ALSO FOR SALE,AND OWNERS WOULD CONSIDER A LEASE WITH OPTION TO BUY*** MLS# TB8470174
3845 Rory Pond Ct is located in the Southwest Polk Neighborhood and 33803 Zip code of Lakeland, FL.
Property Contact Info
Features and Amenities
Unique Amenities
- NewConstruction
On-Site Services
- Garden Style
Outdoor Features
- Waterfront
Unique Amenities
- Garage Available

Map
- Shopping
- Colleges
- Grocery
- Medical
- Parks

Map
What Are Walk Score®, Transit Score®, and Bike Score® Ratings?
- Walk Score® measures the walkability of any address.
- Transit Score® measures access to public transit.
- Bike Score® measures the bikeability of any address.
Frequently Asked Questions about 3845 Rory Pond Ct
What type of rental is available at 3845 Rory Pond Ct?
There is currently a 5 Bed 3 Bath Home for rent with 2,696 sq ft listed at 3845 Rory Pond Ct. It is Available February 1, 2026.
How much is the rent at 3845 Rory Pond Ct?
The rental at 3845 Rory Pond Ct is currently listed at $2,650.
What area of town is 3845 Rory Pond Ct located in?
Located in the Southwest Polk Neighborhood, 3845 Rory Pond Ct is in the 33803 Zip Code of Lakeland, FL.
Nearby Schools
About GreatSchools Data on ApartmentHomeLiving.com.
Points of Interest
Time and distance from 3845 Rory Pond Ct.
Big Box and Retail
Kohl's
Publix
Autozone
Colleges and Universities
Hillsborough Community College - Plant City Campus
Groceries
Publix
Aldi
Winn-Dixie
Hospitals
Lakeland Regional Medical Center
South Florida Baptist Hospital
Bartow Regional Medical Center
Parks and Recreation
3845 Rory Pond Ct has 5 parks within 6.9 miles, including Curtis Peterson Park, Adair Park, Barnett Park, Dobbins Park, and Gator Family Theme Park.
Shopping Centers
3845 Rory Pond Ct has 5 shopping centers within 2.4 miles.
Nearby Neighborhoods
Nearby Apartments
Rental Price Ranges in the Area
| Bedroom | Average Rent | Cheapest Rent | Highest Rent |
|---|---|---|---|
| Lakeland Studio Apartments | $1,290 | $857 | $2,393 |
| Lakeland 1 Bedroom Apartments | $1,468 | $750 | $2,399 |
| Lakeland 2 Bedroom Apartments | $1,715 | $900 | $2,782 |
| Lakeland 3 Bedroom Apartments | $2,005 | $1,245 | $3,319 |
| Lakeland 4 Bedroom Apartments | $2,159 | $1,430 | $2,341 |
Browse Top Apartments in Lakeland
By Price
By Community Type
- Lakeland Apartments for Rent by Owner
- Lakeland Apartments with Rent Specials
- Lakeland Top Rated Apartments
- Lakeland Corporate Apartments
- Lakeland Furnished Apartments
- Lakeland Gated Apartments
- New Lakeland Apartments
- Lakeland Senior Apartments
- Lakeland Short-term Apartments
- Lakeland Student Apartments
- Lakeland Apartments with Utilities Included
