Photos












- 3BR, 2.5BAHome
- $2,095Pricing
- 1,768Square Feet
- Available NowAvailability
Rent and Fees
Unit Price
- $2,095
About 30 Howard Ave, Unit B306
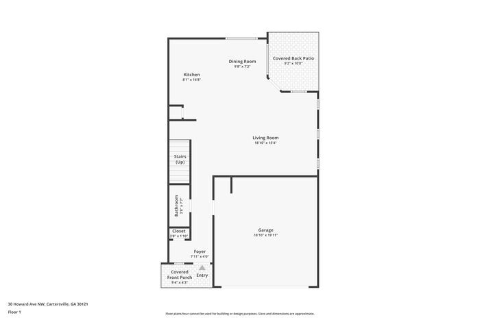
MOVE-IN READY This home is move-in ready. Schedule your tour now or start your application today. Monthly Recurring Fees: $25.00 - Smart Home $10.95 - Utility Management 30 Howard Ave NW offers 3 bedrooms, 2.5 bathrooms, and 1,768 square feet of thoughtfully planned two-story living. The main level is designed for easy flow, creating a welcoming entry that opens into generous shared spaces while keeping everyday functionality front and center. On the first floor, durable hard-surface flooring carries through the living and dining areas, offering flexibility for different layouts and uses. The kitchen anchors the space with ample cabinetry, granite-style countertops, black appliances, and a center island that adds prep and gathering space. Just beyond the dining area, a rear door opens to the patio, extending the living space outdoors in a natural, usable way. Upstairs, all three bedrooms are positioned for privacy. The main bedroom features a spacious layout, a walk-in closet, and an en-suite bathroom with dual sinks and a tub-shower combination. Two additional bedrooms share a full hallway bathroom, while the convenient half bath downstairs adds everyday ease for guests. A dedicated laundry area completes the interior layout. Out back, the patio provides a comfortable spot for outdoor seating or downtime, while the surrounding community offers shared amenities that enhance daily living. This smart home comes equipped with a smart lock and smart thermostat for added convenience and efficiency. Located close to local shopping, dining, and commuter routes, this home brings together layout, features, and location in one inviting opportunity. Apply Now! *Maymont Homes provides residents with convenient solutions, including simplified utility billing and flexible rent payment options. Contact us for more details. This information is deemed reliable, but not guaranteed. All measurements are approximate. Actual product and home specifications may vary in dimension or detail. Images are for representational purposes only. Some programs and services may not be available in all market areas. Prices and availability are subject to change without notice. Advertised rent prices do not include the required application fee, the partially refundable reservation fee (due upon application approval), or the mandatory monthly utility management fee (in select market areas.) Residents must maintain renters insurance as specified in their lease. If third-party renters insurance is not provided, residents will be automatically enrolled in our Master Insurance Policy for a fee. Select homes may be located in communities that require a monthly fee for community-specific amenities or services. For complete details, please contact a company leasing representative. Equal Housing Opportunity. This property is subject to homeowners' association (HOA) governance; restrictions and covenants may apply. Estimated availability date is subject to change based on construction timelines and move-out confirmation. This property allows self guided viewing without an appointment. Contact for details.
30 Howard Ave, Unit B306 is located in the 30121 Zip code of Cartersville, GA.
Property Contact Info
Fees and Policies
The fees listed below are community-provided and may exclude utilities or add-ons. All payments are made directly to the property and are non-refundable unless otherwise specified.
Other Fees
Situational Fees
- Non Refundable Pet DepositiTotal nonrefundable pet deposit ranges from 250 to 450 dollars depending on number of pets. 250 for the first pet plus 100 for each additional pet, up to a maximum of three pets. This fee ranges from 250.0 to 450.0. Charged Per Unit$250
Personal Add-Ons
- Application FeeiAmount per applicant (18+ years). Charged per unit$55
- Holding DepositiReserves your home for up to 14 days while you finalize your move. The $550 Reservation Binder applies $400 toward your first month’s rent. For Section 8 homes, the fee is $150 with no rent credit. Charged per unit$550
- Security DepositiCharged per unit$2095
- Utilities Setup FeeiCharged per unit$25
- Utilities Monthly FeeiCharged per unit$10.95
- Smart Home FeeiCharged per unit$25
- Pet Screening FeeiCharged per unit$25
Pet Fees
- Pet RentiCharged per pet each month where permitted by state and local law. Charged Per Pet$35/mo
- Pet RentiCharged Per Pet$35/mo
Dog
Cat
Property Fee Disclaimer: Based on community-supplied data and independent market research. Subject to change without notice. May exclude fees for mandatory or optional services and usage-based utilities.
Features and Amenities
On-Site Services
- Garden Style

Map
- Shopping
- Grocery

Map
What Are Walk Score®, Transit Score®, and Bike Score® Ratings?
- Walk Score® measures the walkability of any address.
- Transit Score® measures access to public transit.
- Bike Score® measures the bikeability of any address.
Frequently Asked Questions about 30 Howard Ave, Unit B306
What type of rentals are available at 30 Howard Ave, Unit B306?
There is currently a 3 Bed 2 Bath Home for rent with 1,768 listed at 30 Howard Ave. It is Available Now.
How much is the rent at 30 Howard Ave, Unit B306?
30 Howard Ave, Unit B306 at 30 Howard Ave is currently listed at $2,095.
What area of town is 30 Howard Ave, Unit B306 located in?
30 Howard Ave, Unit B306 is in the 30121 Zip Code of Cartersville, GA.
Lifestyle Ratings
Learn more about Lifestyle SearchNearby Schools
Cass Middle School
Clear Creek Elementary School
About GreatSchools Data on ApartmentHomeLiving.com.
Points of Interest
Time and distance from 30 Howard Ave, Unit B306.
Big Box and Retail
Aldi
Staples
Walgreen's
Groceries
Aldi
Kroger
Shopping Centers
30 Howard Ave, Unit B306 has 5 shopping centers within 5.2 miles.
Nearby Neighborhoods
Nearby Apartments
Rental Price Ranges in the Area
| Bedroom | Average Rent | Cheapest Rent | Highest Rent |
|---|---|---|---|
| Cartersville Studio Apartments | $1,228 | $1,171 | $1,276 |
| Cartersville 1 Bedroom Apartments | $1,400 | $830 | $2,633 |
| Cartersville 2 Bedroom Apartments | $1,691 | $1,172 | $6,077 |
| Cartersville 3 Bedroom Apartments | $2,235 | $1,372 | $7,258 |
| Cartersville 4 Bedroom Apartments | $6,020 | $1,850 | $10,000+ |
Browse Top Apartments in Cartersville
By Price
By Community Type
- Cartersville Apartments with Rent Specials
- Cartersville Top Rated Apartments
- Cartersville Corporate Apartments
- Cartersville Furnished Apartments
- Cartersville Gated Apartments
- Cartersville Low Income Apartments
- New Cartersville Apartments
- Cartersville Senior Apartments
- Cartersville Short-term Apartments
- Cartersville Apartments with Utilities Included
