Photos












- 3BR, 3BAHome
- $2,599Price
- 2,353Square Feet
- Available SoonAvailability
Rent and Fees
Unit Price
- $2,599
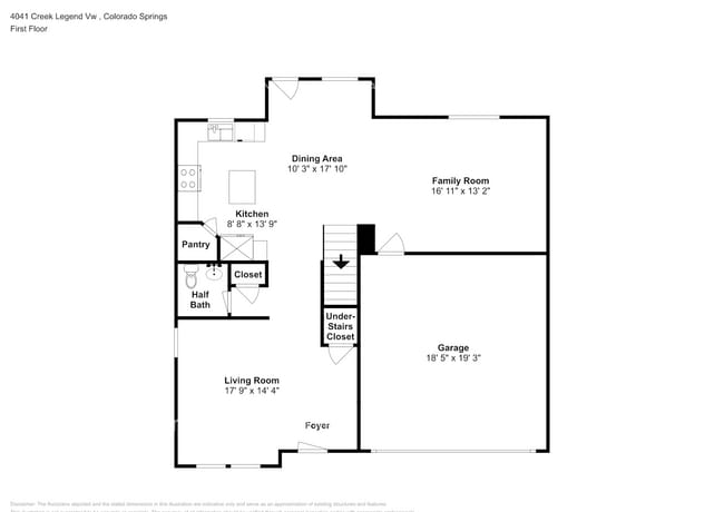
About 4041 Creek Legend View
Lease this home and get more from Invitation Homes professional property management. This home comes fully loaded with quality amenities, must-have services, high-end tech and ProCare® professional maintenance. Your estimated total monthly payment is $2658.90. That covers your base rent, $2599.00 + our required services designed to make your life easier: Air Filter Delivery Fee ($9.95), Smart Home with video doorbell ($40), and Utility Billing Service Fee ($9.95). Base rent varies based on selected lease term. This is the house where needs and wants live together. From the moment you walk through the front door, you’ll know – it’s the one. This open floor plan offers you plenty of room to live your best lives. Picture yourself in this welcoming living area with luxury vinyl plank flooring. The upscale kitchen boasts a layout perfect for both cooking and entertaining. The granite countertops and stainless steel appliances look great and are easy to clean. You'll get a fenced backyard that offers a bit of privacy from the outside world, a patio and plenty of space to exercise or simply relax. Apply online today! Invitation Homes complies with all applicable law relating to source of income, including CRS 38-12-904(1)(c). If we discover that you are applying with assistance, your credit score will not be factored into your eligibility. At Invitation Homes, we offer pet-friendly, yard-having homes for lease with Smart Home technology in awesome neighborhoods across the country. Live in a great house without the headache and long-term commitment of owning. Discover your dream home with Invitation Homes. Our Lease Easy bundle – which includes Smart Home, Air Filter Delivery, and Utilities Management – is a key part of your worry-free leasing lifestyle. These services are required by your lease at an additional monthly cost. Monthly fees for pets and pools may also apply. Home Features and Amenities: Covered Porch, Fenced Yard, Garage, Granite Countertops, Kitchen Island, Long Lease Terms, Luxury Vinyl Plank, Open Floorplan, Patio, Pet Friendly, Recessed Lighting, Smart Home, Stainless Steel Appliances, Walk in Closet, W/D Hookups, and professionally managed by Invitation Homes. This Invitation Home is currently being renovated, but it will be available soon. You can still apply – contact us for more details or apply now. Invitation Homes is an equal housing lessor under the FHA. Applicable local, state and federal laws may apply. Additional terms and conditions apply. This listing is not an offer to rent. You must submit additional information including an application to rent and an application fee. All leasing information is believed to be accurate, but changes may have occurred since photographs were taken and square footage is estimated. Furthermore, prices and dates may change without notice. See InvitationHomes website for more information. Beware of scams: Employees of Invitation Homes will never ask you for your username and password. Invitation Homes does not advertise on Craigslist, Social Serve, etc. We own our homes; there are no private owners. All funds to lease with Invitation Homes are paid directly through our website, never through wire transfer or payment app like Zelle, Pay Pal, or Cash App. For more info, please submit an inquiry for this home. Applications are subject to our qualification requirements. Additional terms and conditions apply. CONSENT TO CALLS & TEXT MESSAGING: By entering your contact information, you expressly consent to receive emails, calls, and text messages from Invitation Homes including by autodialer, prerecorded or artificial voice and including marketing communications. Msg & Data rates may apply. You also agree to our Terms of Use and our Privacy Policy.
4041 Creek Legend View is located in the 80911 Zip code of Colorado Springs, CO.
Property Contact Info
Fees and Policies
The fees listed below are community-provided and may exclude utilities or add-ons. All payments are made directly to the property and are non-refundable unless otherwise specified.
Required Fees
Utilities & Essentials
- Utility Billing Service FeeiCharged per unit$9.95/mo
- Air Filter Delivery FeeiCharged per unit$9.95/mo
- Smart Home with video doorbelliCharged per unit$40/mo
Property Fee Disclaimer: Based on community-supplied data and independent market research. Subject to change without notice. May exclude fees for mandatory or optional services and usage-based utilities.
Features and Amenities
On-Site Services
- Garden Style
Outdoor Features
- Fenced Lot
- Porch
- Patio
Living Area Features
- Walk In Closets
Unique Amenities
- Garage Available

Map
- Shopping
- Colleges
- Grocery
- Medical
- Parks

Map
What Are Walk Score®, Transit Score®, and Bike Score® Ratings?
- Walk Score® measures the walkability of any address.
- Transit Score® measures access to public transit.
- Bike Score® measures the bikeability of any address.
Frequently Asked Questions about 4041 Creek Legend View
What type of rentals are available at 4041 Creek Legend View?
There is currently a 3 Bed 3 Bath Home for rent with 2,353 listed at 4041 Creek Legend View. It is Available Soon .
How much is the rent at 4041 Creek Legend View?
4041 Creek Legend View is currently listed at $2,599.
What area of town is 4041 Creek Legend View located in?
4041 Creek Legend View is in the 80911 Zip Code of Colorado Springs, CO.
About Portable Tenant Screening Reports:
Applicant has the right to provide the property manager or owner with a Portable Tenant Screening Report (PTSR) that is not more than 30 days old, as defined in § 38-12-902(2.5), Colorado Revised Statutes; and 2) if Applicant provides the property manager or owner with a PTSR, the property manager or owner is prohibited from: a) charging Applicant a rental application fee; or b) charging Applicant a fee for the property manager or owner to access or use the PTSR.
Lifestyle Ratings
Learn more about Lifestyle SearchNearby Schools
Sproul Junior High School
Pinello Elementary School
Widefield High School
About GreatSchools Data on ApartmentHomeLiving.com.
Points of Interest
Time and distance from 4041 Creek Legend View.
Arts Museums and Landmarks
Big Box and Retail
Walgreens
Goodwill
Autozone
Colleges and Universities
Pikes Peak Community College - Centennial Campus
Pikes Peak Community College - Downtown Studio Campus
Groceries
King Soopers
Safeway
Hospitals
Cedar Springs Behavioral Health System
Uch - Memorial Health System
Centura Health - Penrose St. Francis Health Services
Military Bases
Peterson Space Force Base
Parks and Recreation
4041 Creek Legend View has 5 parks within 10.2 miles, including Seven Falls, Palmer Park, Red Rock Canyon, Rock Ledge Ranch, and Garden of the Gods.
Shopping Centers
4041 Creek Legend View has 5 shopping centers within 1.8 miles.
Nearby Neighborhoods
Nearby Apartments
Rental Price Ranges in the Area
| Bedroom | Average Rent | Cheapest Rent | Highest Rent |
|---|---|---|---|
| Colorado Springs Studio Apartments | $1,326 | $750 | $2,800 |
| Colorado Springs 1 Bedroom Apartments | $1,488 | $570 | $4,611 |
| Colorado Springs 2 Bedroom Apartments | $1,799 | $588 | $5,305 |
| Colorado Springs 3 Bedroom Apartments | $2,260 | $750 | $6,140 |
| Colorado Springs 4 Bedroom Apartments | $2,585 | $1,185 | $3,935 |
| Colorado Springs 6 Bedroom Apartments | $2,650 | $2,650 | $2,650 |
Browse Top Apartments in Colorado Springs
By Price
- Cheap Colorado Springs Apartments
- Colorado Springs Apartments Under $600
- Colorado Springs Apartments Under $700
- Colorado Springs Apartments Under $800
- Colorado Springs Apartments Under $900
- Colorado Springs Apartments Under $1000
- Colorado Springs Apartments Under $1200
- Colorado Springs Apartments Under $1500
- Colorado Springs Apartments Under $2000
- Colorado Springs Luxury Apartments
By Community Type
- Colorado Springs Apartments for Rent by Owner
- Colorado Springs Apartments with Rent Specials
- Colorado Springs Top Rated Apartments
- Colorado Springs Corporate Apartments
- Colorado Springs Furnished Apartments
- Colorado Springs Gated Apartments
- Colorado Springs Loft Apartments
- Colorado Springs Low Income Apartments
- Colorado Springs Military Apartments
- New Colorado Springs Apartments
- Colorado Springs Senior Apartments
- Colorado Springs Short-term Apartments
- Colorado Springs Student Apartments
- Colorado Springs Apartments with Utilities Included
By Amenities
- Colorado Springs Apartments with Hardwood Floors
- Colorado Springs Apartments with Laundry Rooms
- Colorado Springs Apartments with Parking
- Colorado Springs Pet Friendly Apartments
- Colorado Springs Apartments with Swimming Pool
- Colorado Springs Apartments with Washer/Dryer
- Colorado Springs Apartments with EV Charging
