Photos






























- 2BR, 2BAHome
- $2,500Pricing
- 1,282Square Feet
- Available NowAvailability
Unit Rent and Fees
Unit Price
- $2,500
About 1505 Commodore Ct
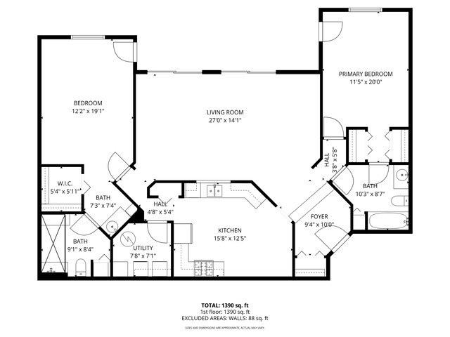
Welcome home to this meticulously maintained,conveniently located,first floor end-unit. This 2-bedroom,2-bathroom residence offers the rare advantage of dual primary suites,each with its own attached bath and private patio access through new doors (2024) - a unique feature. Step inside to an open entry with a subtle step-down and a spacious closet,leading into a light-filled living and dining area. Vinyl wood-look flooring (2023) runs throughout,creating a seamless,modern feel. The living room/dining room combo is anchored by an oversized wall of sliders that flood the space with natural light and open to a charming paver patio. The kitchen features a stainless steel stove,refrigerator,and microwave (2023),an ample eating area highlighted by a sparkling crystal chandelier,and a thoughtfully designed pass-through cutout that brings in light while connecting to the living space. Full-size laundry room with newer high-end washer and dryer (2023). The primary suite offs a walk-in closet,newer 6-panel doors,patio access,and an updated bath with a marble-topped vanity and newer fixtures,plus a separate toilet and tub area. The second bedroom - located on the opposite side of the unit for added privacy - includes double closets,patio access,and an attached bath also accessible from the main living area,featuring a Coran-topped vanity,updated toilet,and fixtures. All of this in a fantastic location - just minutes to the Metra train,highways,restaurants,shopping and Wintrust Field. Move to this one-of-a-kind property today !!! MLS# MRD12579228 Based on information submitted to the MLS GRID as of [see last changed date above]. All data is obtained from various sources and may not have been verified by broker or MLS GRID. Supplied Open House Information is subject to change without notice. All information should be independently reviewed and verified for accuracy. Properties may or may not be listed by the office/agent presenting the information. Some IDX listings have been excluded from this website. Prices displayed on all Sold listings are the Last Known Listing Price and may not be the actual selling price.
1505 Commodore Ct is located in the Far Northwest Suburban Cook Neighborhood and 60193 Zip code of Schaumburg, IL.
Property Contact Info
Features and Amenities
On-Site Services
- Garden Style
Interior Features
- Heat Type Gas
- Washer/Dryer
- Air Conditioning
Kitchen Amenities
- Dishwasher
- Microwave
- Refrigerator
- Disposal
Unique Amenities
- Garage Available

Map
- Shopping
- Colleges
- Grocery
- Medical
- Transportation

Map
Frequently Asked Questions about 1505 Commodore Ct
What type of rental is available at 1505 Commodore Ct?
There is currently a 2 Bed 2 Bath Home for rent with 1,282 sq ft listed at 1505 Commodore Ct. It is Available Now.
How much is the rent at 1505 Commodore Ct?
The rental at 1505 Commodore Ct is currently listed at $2,500.
What area of town is 1505 Commodore Ct located in?
Located in the Far Northwest Suburban Cook Neighborhood, 1505 Commodore Ct is in the 60193 Zip Code of Schaumburg, IL.
Nearby Schools
Robert Frost Junior High School
Schaumburg High School
Hanover Highlands Elementary School
Lincoln Prairie School
About GreatSchools Data on ApartmentHomeLiving.com.
Points of Interest
Time and distance from 1505 Commodore Ct.
Big Box and Retail
Petco
Walgreens
Target
Colleges and Universities
Groceries
Jewel-Osco
Aldi
Whole Foods
Hospitals
Health Alexian Brothers Behavioral Health Hospital
Military Bases
US Military Reservation Elk Grove
U.S. Military Reservation
Meadowdale International Raceway
Shopping Centers
1505 Commodore Ct has 5 shopping centers within 0.5 miles.
Transit Stations
Schaumburg Station-Milwaukee District West Line
Hanover Park Station-Milwaukee District West Line
Nearby Neighborhoods
Nearby Apartments
Rental Price Ranges in the Area
| Bedroom | Average Rent | Cheapest Rent | Highest Rent |
|---|---|---|---|
| Schaumburg Studio Apartments | $1,987 | $1,150 | $6,000 |
| Schaumburg 1 Bedroom Apartments | $1,835 | $1,195 | $3,120 |
| Schaumburg 2 Bedroom Apartments | $2,212 | $1,455 | $4,500 |
| Schaumburg 3 Bedroom Apartments | $3,951 | $1,860 | $10,000+ |
| Schaumburg 4 Bedroom Apartments | $14,728 | $10,000 | $10,000+ |
Browse Top Apartments in Schaumburg
By Price
By Community Type
- Schaumburg Apartments for Rent by Owner
- Schaumburg Apartments with Rent Specials
- Schaumburg Top Rated Apartments
- Schaumburg Corporate Apartments
- Schaumburg Furnished Apartments
- Schaumburg Gated Apartments
- Schaumburg Loft Apartments
- Schaumburg Low Income Apartments
- New Schaumburg Apartments
- Schaumburg Senior Apartments
- Schaumburg Short-term Apartments
- Schaumburg Student Apartments
- Schaumburg Apartments with Utilities Included
