Photos






























- 4BR, 2.5BAHome
- $1,890Price
- 1,885Square Feet
- Available NowAvailability
Unit Rent and Fees
Unit Price
- $1,890
Deposit
- $1,890 deposit
About 152 Ghost Stories Wy
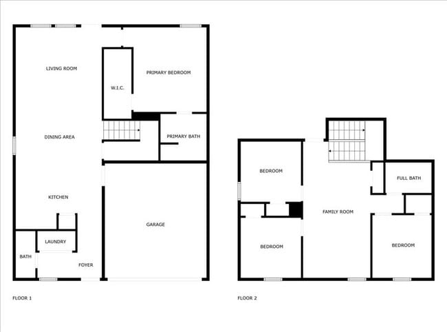
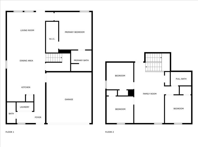
Welcome to 152 Ghost Stories Way, a brand-new two-story home in the desirable Firefly Pointe community offering 1,885 sq ft of thoughtfully designed living space on a 5,663 sq ft lot. Built in 2025, this modern home features an open-concept main floor where the kitchen flows into the dining area and spacious living room, creating a perfect setting for entertaining or everyday comfort. The first level also includes a convenient half bath, laundry room, and direct access to the two-car garage. At the rear, the private owner's suite offers an en-suite bath and walk-in closet. Upstairs, three additional bedrooms share a full bath and surround a central family room, providing flexible space for relaxation, work, or play. Outside, the manageable lot offers low-maintenance enjoyment, ideal for quiet evenings or weekend gatherings. With its prime location near local parks, schools, and amenities, this home blends modern design, comfort, and convenience in the heart of Hutto. All CHL Property Management residents are enrolled in the Resident Benefits Package (RBP) for $49.99/month, which includes liability insurance, air filter delivery (where applicable), move-in concierge, a resident rewards program, on-demand pest control, and more! Details available upon application. Please note: Internet service will be added on top of the rent at $69/month.
152 Ghost Stories Wy is located in the Far Northeast Neighborhood and 78634 Zip code of Hutto, TX.
Property Contact Info
Features and Amenities
On-Site Services
- Garden Style
Pet Policy
- No Pets Allowed

Map
- Shopping
- Colleges
- Grocery
- Medical
- Transportation

Map
What Are Walk Score®, Transit Score®, and Bike Score® Ratings?
- Walk Score® measures the walkability of any address.
- Transit Score® measures access to public transit.
- Bike Score® measures the bikeability of any address.
Frequently Asked Questions about 152 Ghost Stories Wy
What type of rental is available at 152 Ghost Stories Wy?
There is currently a 4 Bed 2 Bath Home for rent with 1,885 sq ft listed at 152 Ghost Stories Wy. It is Available Now.
How much is the rent at 152 Ghost Stories Wy?
The rental at 152 Ghost Stories Wy is currently listed at $1,890.
What area of town is 152 Ghost Stories Wy located in?
Located in the Far Northeast Neighborhood, 152 Ghost Stories Wy is in the 78634 Zip Code of Hutto, TX.
Nearby Schools
Hutto High School
Veterans Hill Elementary School
About GreatSchools Data on ApartmentHomeLiving.com.
Points of Interest
Time and distance from 152 Ghost Stories Wy.
Big Box and Retail
Goodwill
Autozone
Lowe's
Colleges and Universities
Austin Community College - Round Rock Campus
Groceries
Heb
Randall's
Hospitals
Shopping Centers
152 Ghost Stories Wy has 5 shopping centers within 2.5 miles.
Transit Stations
Nearby Neighborhoods
Nearby Apartments
Rental Price Ranges in the Area
| Bedroom | Average Rent | Cheapest Rent | Highest Rent |
|---|---|---|---|
| Hutto Studio Apartments | $1,160 | $936 | $1,329 |
| Hutto 1 Bedroom Apartments | $1,329 | $850 | $3,055 |
| Hutto 2 Bedroom Apartments | $1,707 | $1,192 | $4,316 |
| Hutto 3 Bedroom Apartments | $2,056 | $1,399 | $8,117 |
| Hutto 4 Bedroom Apartments | $2,824 | $1,700 | $8,461 |
Browse Top Apartments in Hutto
By Price
By Community Type
- Hutto Apartments for Rent by Owner
- Hutto Apartments with Rent Specials
- Hutto Top Rated Apartments
- Hutto Corporate Apartments
- Hutto Furnished Apartments
- Hutto Gated Apartments
- Hutto Loft Apartments
- Hutto Low Income Apartments
- New Hutto Apartments
- Hutto Senior Apartments
- Hutto Short-term Apartments
- Hutto Apartments with Utilities Included
